- 280 m² Wohnfläche
- 1.657 m² Grundstücksfläche
- 7 Zimmer
- 1.377 m² Garten
- ab sofort Verfügbarkeit
1230, Wien, Liesing
Einfamilienhaus in bester Maurer Lage
-
Sonja Kaspar s.kaspar@otto.at +43 664 854 85 15
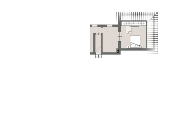
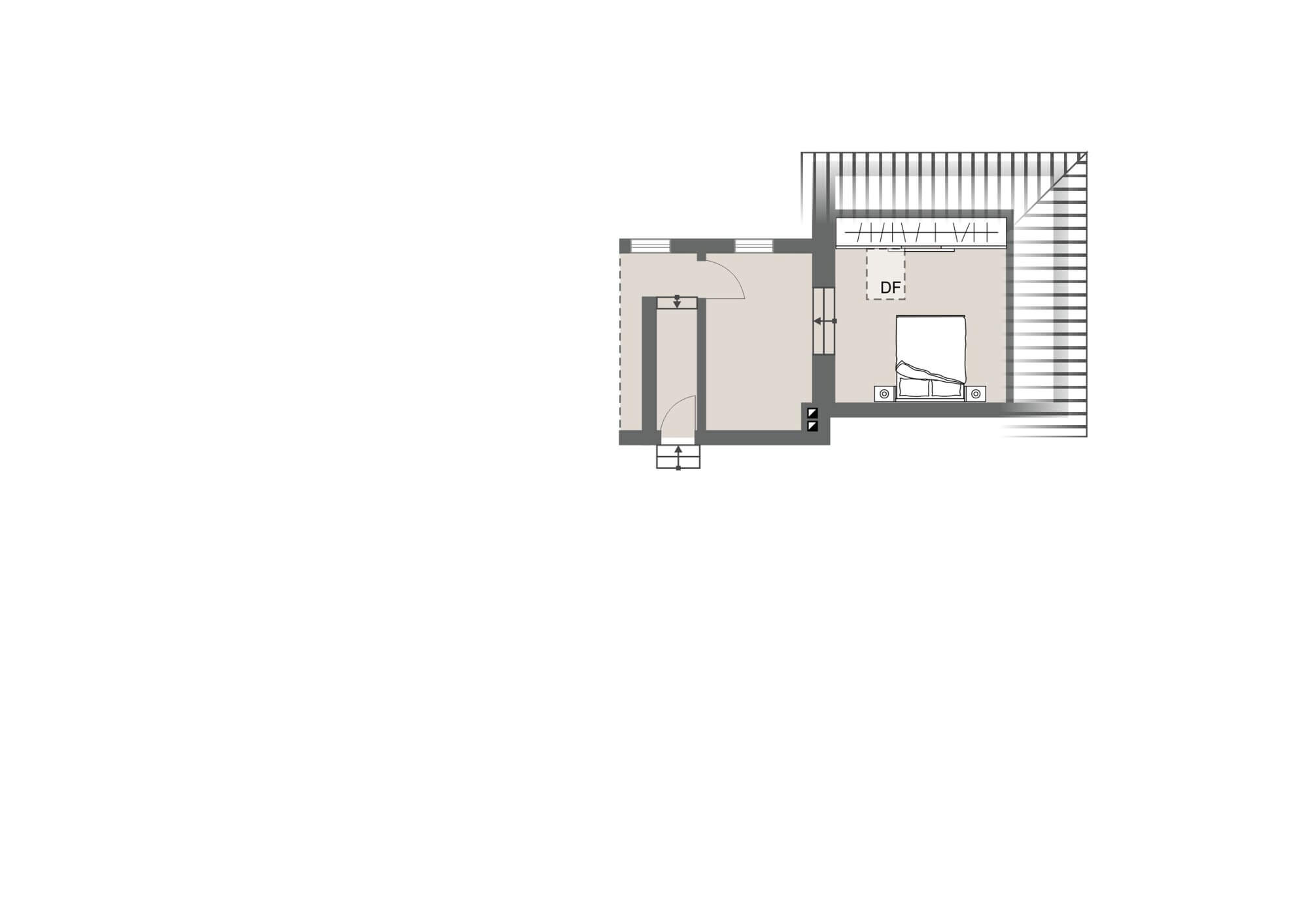
Ausstattung
Das Haupthaus verfügt über 7 Zimmer, eine Veranda, 1 Diele, 1 Küche und 2 WC im Erdgeschoß und über 2 Zimmer und eine große Terrasse im Obergeschoß.
Das Nebenhaus bietet Raum für ein Büro., einen Gäste- oder Fitnessbereich.
Zustand: sanierungsbedürftig
Die Liegenschaft befindet sich in einer Schutzzone.
Flächenwidmung: WI 4,5m gBB
Lage
Der Heurigen und Villenort Mauer liegt im Süden von Wien und gehört zum Bezirk Liesing. Die Region ist bekannt für ihre idyllische Lage und ihren ländlichen Charakter, während sie gleichzeitig eine enge Verbindung zur pulsierenden Metropole bietet.
Die öffentliche Anbindung ist durch die Buslinien 56a und 60a gegeben, die Station ist nur wenige Gehminuten entfernt.
Sämtliche Einkaufsmöglichkeiten befinden sich in der näheren Umgebung. Schulen, Kindergärten und diverse medizinische Einrichtungen bieten eine perfekte Infrastruktur. Gleichzeitig gibt es vielfältige Möglichkeiten der Freizeitgestaltung durch den Lainzer Tiergarten und eine buntes Gastronomieangebot.
Details & Downloads
- Objektnummer IVW-K-25-12830
- Grundstücksfläche 1.657 m²
- Wohnfläche 280 m²
- Zimmer 7
- Terrasse 1 (0 m²)
- Garten 1.377 m²
- Verfügbar ab ab sofort
- Kaufpreis € 1.950.000
- Provision 3 % des Kaufpreises zzgl. 20% USt.
- HWB wird nachgereicht
- fGEE wird nachgereicht
- Baujahr 1890
- Keller Nein
Sonstige Angaben
1230, Wien, Liesing
€ 1.950.000
Kaufpreis
-
Sonja Kaspar s.kaspar@otto.at +43 664 854 85 15
Objekt Nr. IVW-K-25-12830
für Ihre Anfrage!
wird sich in Kürze bei Ihnen melden.
Vielen Dank für Ihre Anfrage! In Kürze melden wir uns bei Ihnen. Wir freuen uns darauf, Ihnen bei der Suche nach Ihrer Wunschimmobilie zu helfen. Entdecken Sie in der Zwischenzeit weitere attraktive Immobilien aus unserem Portfolio. Lassen Sie sich inspirieren und finden Sie Ihre Favoriten.
in der Nähe
1230, Wien, Liesing
Arbeiten & Wohnen unter einem Dach
- 295 m²
- 11 Zimmer
- Terrasse
- Verfügbar sofort
€ 1.300.000
2371, Hinterbrühl
Villenjuwel in Ruhelage von Hinterbrühl
- 400 m²
- Terrasse
- Verfügbar nach Vereinbarung
€ 5.950.000
Wien, 14. Penzing
Perfekte Kombination aus Wohnen & Arbeiten
- 345 m²
- 10 Zimmer
- Terrasse
- Balkon
- Verfügbar nach Vereinbarung
€ 2.289.000
Wien, 14. Penzing
Moderne Villa mit Garten und Pool
- 182 m²
- 4 Zimmer
- Garten
- Terrasse
- Balkon
- Verfügbar nach Vereinbarung
€ 2.350.000
2340, Mödling
Einzigartiges Ensemble in privatem Park
- 980 m²
- 22 Zimmer
- Garten
- Terrasse
- Verfügbar nach Vereinbarung
Preis auf Anfrage
Wien, 16. Ottakring
Wilhelminenberg - Projekt mit Potential
- 253 m²
- Garten
- Terrasse
- Verfügbar sofort
€ 1.590.000
1160, Wien,
Familienvilla am Wilhelminenberg
- 253 m²
- Garten
- Terrasse
- Verfügbar sofort
€ 1.590.000
Wien, 18. Währing
Villa Schapira
- 622 m²
- Garten
- Terrasse
- Verfügbar ab sofort
Preis auf Anfrage
- Neu
Wien, 18. Währing
Mitten im Cottage - Villa mit großem Garten
- 412 m²
- 12 Zimmer
- Garten
- Terrasse
- Verfügbar nach Vereinbarung
Preis auf Anfrage
Wien, 19. Döbling
Unique living in Döbling
- 129 m²
- 4 Zimmer
- Garten
- Terrasse
- Balkon
- Verfügbar Q4 2023
€ 1.490.000
Wien, 19. Döbling
Unique living in Döbling
- 129 m²
- 4 Zimmer
- Garten
- Terrasse
- Balkon
- Verfügbar Q4 2023
€ 1.649.000
Wien, 19. Döbling
Unique living in Döbling
- 129 m²
- 4 Zimmer
- Garten
- Terrasse
- Balkon
- Verfügbar Q4 2023
€ 1.789.000
Wien, 19. Döbling
Einfamilienhaus in repräsentativer Lage
- 187 m²
- 6 Zimmer
- Terrasse
- Balkon
- Verfügbar ab sofort
€ 2.340.000
Wien, 19. Döbling
Villa Luminea: Designer-Villa mit unvergleichlichem Blick über Wien
- 362 m²
- 5 Zimmer
- Terrasse
- Balkon
- Verfügbar nach Vereinbarung
€ 8.750.000
3400, Klosterneuburg / Weidlingbach
Landgut bei Klosterneuburg
- 1.030 m²
- 11 Zimmer
- Garten
- Verfügbar nach Vereinbarung
€ 4.900.000
Wien, 19. Döbling
Toplage in Grinzing - Doppelhaushälfte mit Terrasse und Garten
- 155 m²
- 5 Zimmer
- Terrasse
- Verfügbar ab sofort
€ 1.550.000
2500, Baden
Prestigevolle "Villa Fröhlich" mit Baugenehmigung für umfassende Modernisierung
- 700 m²
- Verfügbar nach Vereinbarung
€ 1.600.000
in der Nähe
1230, Wien, Liesing
Arbeiten & Wohnen unter einem Dach
- 295 m²
- 11 Zimmer
- Terrasse
- Verfügbar sofort
€ 1.300.000
2371, Hinterbrühl
Villenjuwel in Ruhelage von Hinterbrühl
- 400 m²
- Terrasse
- Verfügbar nach Vereinbarung
€ 5.950.000
Wien, 14. Penzing
Perfekte Kombination aus Wohnen & Arbeiten
- 345 m²
- 10 Zimmer
- Terrasse
- Balkon
- Verfügbar nach Vereinbarung
€ 2.289.000
Wien, 14. Penzing
Moderne Villa mit Garten und Pool
- 182 m²
- 4 Zimmer
- Garten
- Terrasse
- Balkon
- Verfügbar nach Vereinbarung
€ 2.350.000
2340, Mödling
Einzigartiges Ensemble in privatem Park
- 980 m²
- 22 Zimmer
- Garten
- Terrasse
- Verfügbar nach Vereinbarung
Preis auf Anfrage
Wien, 16. Ottakring
Wilhelminenberg - Projekt mit Potential
- 253 m²
- Garten
- Terrasse
- Verfügbar sofort
€ 1.590.000
1160, Wien,
Familienvilla am Wilhelminenberg
- 253 m²
- Garten
- Terrasse
- Verfügbar sofort
€ 1.590.000
Wien, 18. Währing
Villa Schapira
- 622 m²
- Garten
- Terrasse
- Verfügbar ab sofort
Preis auf Anfrage
- Neu
Wien, 18. Währing
Mitten im Cottage - Villa mit großem Garten
- 412 m²
- 12 Zimmer
- Garten
- Terrasse
- Verfügbar nach Vereinbarung
Preis auf Anfrage
Wien, 19. Döbling
Unique living in Döbling
- 129 m²
- 4 Zimmer
- Garten
- Terrasse
- Balkon
- Verfügbar Q4 2023
€ 1.490.000
Wien, 19. Döbling
Unique living in Döbling
- 129 m²
- 4 Zimmer
- Garten
- Terrasse
- Balkon
- Verfügbar Q4 2023
€ 1.649.000
Wien, 19. Döbling
Unique living in Döbling
- 129 m²
- 4 Zimmer
- Garten
- Terrasse
- Balkon
- Verfügbar Q4 2023
€ 1.789.000
Wien, 19. Döbling
Einfamilienhaus in repräsentativer Lage
- 187 m²
- 6 Zimmer
- Terrasse
- Balkon
- Verfügbar ab sofort
€ 2.340.000
Wien, 19. Döbling
Villa Luminea: Designer-Villa mit unvergleichlichem Blick über Wien
- 362 m²
- 5 Zimmer
- Terrasse
- Balkon
- Verfügbar nach Vereinbarung
€ 8.750.000
3400, Klosterneuburg / Weidlingbach
Landgut bei Klosterneuburg
- 1.030 m²
- 11 Zimmer
- Garten
- Verfügbar nach Vereinbarung
€ 4.900.000
Wien, 19. Döbling
Toplage in Grinzing - Doppelhaushälfte mit Terrasse und Garten
- 155 m²
- 5 Zimmer
- Terrasse
- Verfügbar ab sofort
€ 1.550.000
2500, Baden
Prestigevolle "Villa Fröhlich" mit Baugenehmigung für umfassende Modernisierung
- 700 m²
- Verfügbar nach Vereinbarung
€ 1.600.000