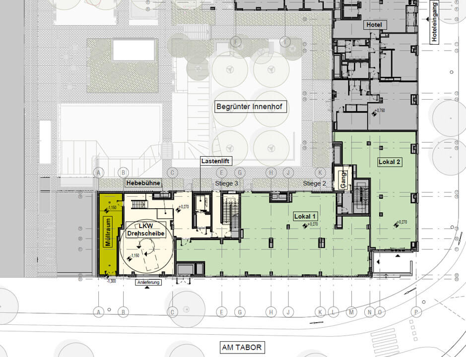
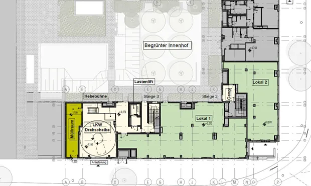
- ca. 409 m² Nutzfläche
- Ab April 2026 Verfügbarkeit
Wien, 2. Leopoldstadt
Geschäftsflächen im Nordbahnviertel
-
Nicole Ivancich, MA n.ivancich@otto.at +43 664 964 34 76
Ausstattung
Zustand bei Übergabe: Edelrohbau bzw. gemäß BAB
Lage
Die exzellente Anbindung an den Verkehrsknotenpunkt Praterstern bietet sowohl einfachen Zugang zu öffentliche Verkehrsmittel wie U-Bahn, Straßenbahn und Bussen als auch zu regionalen und überregionalen Verkehrswegen.
Das Geschäftslokal direkt an der Straßenbahnstation Bruno-Marek-Allee besticht durch ideale Sichtbarkeit mit großen Schaufensterflächen.
Öffentliche Verkehrsanbindung:
U-Bahn: U1/U2 - Station Praterstern
Straßenbahn: O, 12
Bus: 82A
Details & Downloads
- Objektnummer IVG-R-12884/EG+KG
- Nutzfläche ca. 409 m²
- Verkaufsfläche ca. 319 m²
- Lagerfläche ca. 90 m²
- Verfügbar ab Ab April 2026
- Nettomiete/Monat € 6.546,24
- Netto-Betriebskosten/Monat € 1.022,15
- Kaution mind. 6 Monate in Form einer Bankgarantie (bonitätsabhängig)
- Provision 3 BMM zzgl. 20% USt.
- HWB 54,9 kWh/m²
- Energieklasse C
- fGEE 0,49
Sonstige Angaben
Wien, 2. Leopoldstadt
€ 6.546,24
Nettomiete/Monat zzgl. BK, zzgl. USt.
-
Nicole Ivancich, MA n.ivancich@otto.at +43 664 964 34 76
Objekt Nr. IVG-R-12884/EG+KG
für Ihre Anfrage!
wird sich in Kürze bei Ihnen melden.
Vielen Dank für Ihre Anfrage! In Kürze melden wir uns bei Ihnen. Wir freuen uns darauf, Ihnen bei der Suche nach Ihrer Wunschimmobilie zu helfen. Entdecken Sie in der Zwischenzeit weitere attraktive Immobilien aus unserem Portfolio. Lassen Sie sich inspirieren und finden Sie Ihre Favoriten.
in der Nähe
Wien, 1. Innere Stadt
Eck-Geschäftsfläche Nähe Schwedenplatz
- ca. 258 m² Nutzfläche
- Verfügbar Nach Vereinbarung
€ 6.950,00 /Monat netto
Wien, 1. Innere Stadt
Geschäftslokal in zentraler Innenstadtlage
- ca. 387 m² Nutzfläche
- Verfügbar Nach Vereinbarung
€ 4.600,00 /Monat netto
Wien, 20. Brigittenau
Ansprechendes Eck-Geschäftslokal
- ca. 100 m² Nutzfläche
- Verfügbar Nach Vereinbarung
€ 1.363,44 /Monat netto
Wien, 1. Innere Stadt
Außergewöhnliche Geschäftsfläche im Herzen von Wien
- ca. 262 m² Nutzfläche
- Verfügbar Nach Vereinbarung
Preis auf Anfrage
Wien, 1. Innere Stadt
Top Geschäftslokal nächst Kohlmarkt
- ca. 73 m² Nutzfläche
- Verfügbar Nach Vereinbarung
Preis auf Anfrage
Wien, 1. Innere Stadt
Top Geschäftslokal nächst Kohlmarkt
- ca. 154 m² Nutzfläche
- Verfügbar Nach Vereinbarung
Preis auf Anfrage
Wien, 1. Innere Stadt
Repräsentative Geschäftsfläche nähe Kaufhaus Steffl
- ca. 181 m² Nutzfläche
- Verfügbar Nach Vereinbarung
Preis auf Anfrage
Wien, 1. Innere Stadt
Prachtvolle Geschäftsfläche im Palais Erdödy-Fürstenberg
- ca. 170 m² Nutzfläche
- Verfügbar Nach Vereinbarung
€ 7.000,00 /Monat netto
Wien, 1. Innere Stadt
Geschäftslokal mit großer Schaufensterfläche
- ca. 66 m² Nutzfläche
- Verfügbar Nach Vereinbarung
€ 5.369,65 /Monat netto
Wien, 1. Innere Stadt
Top Geschäftslokal im 1. Bezirk
- ca. 180 m² Nutzfläche
- Verfügbar Ab Juli 2025
€ 8.000,00 /Monat netto
Wien, 3. Landstraße
Geschäftsfläche im Post am Rochus
- ca. 56 m² Nutzfläche
- Verfügbar Ab sofort
€ 1.125,80 /Monat netto
Wien, 3. Landstraße
Geschäftsfläche im Post am Rochus
- ca. 85 m² Nutzfläche
- Verfügbar Ab sofort
€ 1.690,80 /Monat netto
Wien, 3. Landstraße
Gastrofläche im Work-Life Building
- ca. 242 m² Nutzfläche
- Verfügbar Ab Q1 2026
€ 4.111,96 /Monat netto
Wien, 3. Landstraße
Gastrofläche im Work-Life Building
- ca. 183 m² Nutzfläche
- Verfügbar Ab Q1 2026
€ 3.104,54 /Monat netto
Wien, 6. Mariahilf
Pop Up Fläche inmitten der Mariahilfer Straße
- ca. 341 m² Nutzfläche
- Verfügbar Ab sofort
€ 25.000,00 /Monat netto
Wien, 3. Landstraße
Geschäftsfläche in zentraler Lage
- ca. 181 m² Nutzfläche
- Verfügbar Nach Vereinbarung
€ 2.172,72 /Monat netto
Wien, 3. Landstraße
Geschäftsfläche in zentraler Lage
- ca. 112 m² Nutzfläche
- Verfügbar Nach Vereinbarung
€ 1.342,32 /Monat netto
Wien, 3. Landstraße
Geschäftsfläche in zentraler Lage
- ca. 69 m² Nutzfläche
- Verfügbar Nach Vereinbarung
€ 830,40 /Monat netto
Wien, 3. Landstraße
Geschäftsfläche in zentraler Lage
- ca. 90 m² Nutzfläche
- Verfügbar Nach Vereinbarung
€ 1.082,52 /Monat netto
Wien, 21. Floridsdorf
Geschäftslokal nähe "Am Spitz"
- ca. 786 m² Nutzfläche
- Verfügbar Nach Vereinbarung
€ 10.214,36 /Monat netto
in der Nähe
Wien, 1. Innere Stadt
Eck-Geschäftsfläche Nähe Schwedenplatz
- ca. 258 m² Nutzfläche
- Verfügbar Nach Vereinbarung
€ 6.950,00 /Monat netto
Wien, 1. Innere Stadt
Geschäftslokal in zentraler Innenstadtlage
- ca. 387 m² Nutzfläche
- Verfügbar Nach Vereinbarung
€ 4.600,00 /Monat netto
Wien, 20. Brigittenau
Ansprechendes Eck-Geschäftslokal
- ca. 100 m² Nutzfläche
- Verfügbar Nach Vereinbarung
€ 1.363,44 /Monat netto
Wien, 1. Innere Stadt
Außergewöhnliche Geschäftsfläche im Herzen von Wien
- ca. 262 m² Nutzfläche
- Verfügbar Nach Vereinbarung
Preis auf Anfrage
Wien, 1. Innere Stadt
Top Geschäftslokal nächst Kohlmarkt
- ca. 73 m² Nutzfläche
- Verfügbar Nach Vereinbarung
Preis auf Anfrage
Wien, 1. Innere Stadt
Top Geschäftslokal nächst Kohlmarkt
- ca. 154 m² Nutzfläche
- Verfügbar Nach Vereinbarung
Preis auf Anfrage
Wien, 1. Innere Stadt
Repräsentative Geschäftsfläche nähe Kaufhaus Steffl
- ca. 181 m² Nutzfläche
- Verfügbar Nach Vereinbarung
Preis auf Anfrage
Wien, 1. Innere Stadt
Prachtvolle Geschäftsfläche im Palais Erdödy-Fürstenberg
- ca. 170 m² Nutzfläche
- Verfügbar Nach Vereinbarung
€ 7.000,00 /Monat netto
Wien, 1. Innere Stadt
Geschäftslokal mit großer Schaufensterfläche
- ca. 66 m² Nutzfläche
- Verfügbar Nach Vereinbarung
€ 5.369,65 /Monat netto
Wien, 1. Innere Stadt
Top Geschäftslokal im 1. Bezirk
- ca. 180 m² Nutzfläche
- Verfügbar Ab Juli 2025
€ 8.000,00 /Monat netto
Wien, 3. Landstraße
Geschäftsfläche im Post am Rochus
- ca. 56 m² Nutzfläche
- Verfügbar Ab sofort
€ 1.125,80 /Monat netto
Wien, 3. Landstraße
Geschäftsfläche im Post am Rochus
- ca. 85 m² Nutzfläche
- Verfügbar Ab sofort
€ 1.690,80 /Monat netto
Wien, 3. Landstraße
Gastrofläche im Work-Life Building
- ca. 242 m² Nutzfläche
- Verfügbar Ab Q1 2026
€ 4.111,96 /Monat netto
Wien, 3. Landstraße
Gastrofläche im Work-Life Building
- ca. 183 m² Nutzfläche
- Verfügbar Ab Q1 2026
€ 3.104,54 /Monat netto
Wien, 6. Mariahilf
Pop Up Fläche inmitten der Mariahilfer Straße
- ca. 341 m² Nutzfläche
- Verfügbar Ab sofort
€ 25.000,00 /Monat netto
Wien, 3. Landstraße
Geschäftsfläche in zentraler Lage
- ca. 181 m² Nutzfläche
- Verfügbar Nach Vereinbarung
€ 2.172,72 /Monat netto
Wien, 3. Landstraße
Geschäftsfläche in zentraler Lage
- ca. 112 m² Nutzfläche
- Verfügbar Nach Vereinbarung
€ 1.342,32 /Monat netto
Wien, 3. Landstraße
Geschäftsfläche in zentraler Lage
- ca. 69 m² Nutzfläche
- Verfügbar Nach Vereinbarung
€ 830,40 /Monat netto
Wien, 3. Landstraße
Geschäftsfläche in zentraler Lage
- ca. 90 m² Nutzfläche
- Verfügbar Nach Vereinbarung
€ 1.082,52 /Monat netto
Wien, 21. Floridsdorf
Geschäftslokal nähe "Am Spitz"
- ca. 786 m² Nutzfläche
- Verfügbar Nach Vereinbarung
€ 10.214,36 /Monat netto