- ca. 718 m² Nutzfläche
- Q4 2025 / Q1 2026 Verfügbarkeit
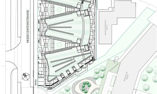
Wien, 11. Simmering
MC 15 - Ein Bürogebäude, das Effizienz, Innovation und Umweltbewusstsein vereint.
-
Philipp Granabetter, BSc (WU) MA p.granabetter@otto.at +43 664 851 64 41
Alle Immobilien zu diesem Projekt

Ausstattung
- Hohlraumboden, Estrich
- Kühlung
- Wärmepumpen (Tiefenbohrungen)
- Brunnenanlage zur Versorgung der Toiletten
- mech. Be- und Entlüftung
- flexible Raumkonfiguration
- Photovoltaikanlage für alle Mieter
- hauseigene Tiefgarage mit (E-Lademöglichkeit)
- Gastronomie im Haus geplant
- teilweise Terrassen
Lage
Öffentliche Verkehrsanbindung:
- U-Bahn: U3
- Bus: 72a, 76a
Individualverkehr:
- Autobahn: A23, A4
Details & Downloads
- Objektnummer IVG-O-11160/2-202+3
- Nutzfläche ca. 718 m²
- Freifläche ca. 134 m²
- teilbar ab ca. 278 m²
- Verfügbar ab Q4 2025 / Q1 2026
- Nettomiete/Monat € 18,50 /m²
- Kaution 3-6 BMM (bonitätsabhängig)
- Provision 3 BMM zzgl. 20 % USt.
- HWB wird nachgereicht
- fGEE wird nachgereicht
- Baujahr 2024
- Heizung Zentralheizung
Wien, 11. Simmering
€ 18,50 /m²
Nettomiete/Monat zzgl. BK, zzgl. USt.
-
Philipp Granabetter, BSc (WU) MA p.granabetter@otto.at +43 664 851 64 41
Objekt Nr. IVG-O-11160/2-202+3
für Ihre Anfrage!
wird sich in Kürze bei Ihnen melden.
Vielen Dank für Ihre Anfrage! In Kürze melden wir uns bei Ihnen. Wir freuen uns darauf, Ihnen bei der Suche nach Ihrer Wunschimmobilie zu helfen. Entdecken Sie in der Zwischenzeit weitere attraktive Immobilien aus unserem Portfolio. Lassen Sie sich inspirieren und finden Sie Ihre Favoriten.
in der Nähe

Wien, 11. Simmering
MARXIMUM
- ca. 269 m² Nutzfläche
- Verfügbar Nach Vereinbarung
€ 9,00 /m²/Monat netto

Wien, 11. Simmering
MARXIMUM - Büro mit Terrasse
- ca. 450 m² Nutzfläche
- Verfügbar nach Vereinbarung
€ 12,90 /m²/Monat netto

- Neu
Wien, 11. Simmering
MC 15 - Ein Bürogebäude, das Effizienz, Innovation und Umweltbewusstsein vereint.
- ca. 1.146 m² Nutzfläche
- Verfügbar Q4 2025 / Q1 2026
€ 18,50 /m²/Monat netto

- Neu
Wien, 11. Simmering
MC 15 - Ein Bürogebäude, das Effizienz, Innovation und Umweltbewusstsein vereint.
- ca. 868 m² Nutzfläche
- Verfügbar Q4 2025 / Q1 2026
€ 18,50 /m²/Monat netto

- Neu
Wien, 11. Simmering
MC 15 - Ein Bürogebäude, das Effizienz, Innovation und Umweltbewusstsein vereint.
- ca. 568 m² Nutzfläche
- Verfügbar Q4 2025 / Q1 2026
€ 18,50 /m²/Monat netto

- Neu
Wien, 11. Simmering
MC 15 - Ein Bürogebäude, das Effizienz, Innovation und Umweltbewusstsein vereint.
- ca. 440 m² Nutzfläche
- Verfügbar Q4 2025 / Q1 2026
€ 18,50 /m²/Monat netto

- Neu
Wien, 11. Simmering
MC 15 - Ein Bürogebäude, das Effizienz, Innovation und Umweltbewusstsein vereint.
- ca. 278 m² Nutzfläche
- Verfügbar Q4 2025 / Q1 2026
€ 18,50 /m²/Monat netto

- Neu
Wien, 11. Simmering
MC 15 - Ein Bürogebäude, das Effizienz, Innovation und Umweltbewusstsein vereint.
- ca. 282 m² Nutzfläche
- Verfügbar Q4 2025 / Q1 2026
€ 18,50 /m²/Monat netto

- Neu
Wien, 11. Simmering
MC 15 - Ein Bürogebäude, das Effizienz, Innovation und Umweltbewusstsein vereint.
- ca. 285 m² Nutzfläche
- Verfügbar Q4 2025 / Q1 2026
€ 18,50 /m²/Monat netto

- Neu
Wien, 11. Simmering
MC 15 - Ein Bürogebäude, das Effizienz, Innovation und Umweltbewusstsein vereint.
- ca. 300 m² Nutzfläche
- Verfügbar Q4 2025 / Q1 2026
€ 18,50 /m²/Monat netto

Wien, 11. Simmering
MC 15 - Ihr neuer Bürostandort
- ca. 3.631 m² Nutzfläche
- Verfügbar Sommer 2025
€ 18,50 /m²/Monat netto

Wien, 11. Simmering
MC 15 - Ein Bürogebäude, das Effizienz, Innovation und Umweltbewusstsein vereint.
- ca. 8.702 m² Nutzfläche
- Verfügbar Sommer 2025
€ 18,50 /m²/Monat netto

Wien, 11. Simmering
MC 15 - Ein Bürogebäude, das Effizienz, Innovation und Umweltbewusstsein vereint.
- ca. 358 m² Nutzfläche
- Verfügbar Sommer 2025
€ 23,40 /m²/Monat netto

Wien, 11. Simmering
MC 15 - Ein Bürogebäude, das Effizienz, Innovation und Umweltbewusstsein vereint.
- ca. 1.586 m² Nutzfläche
- Verfügbar Sommer 2025
€ 18,50 /m²/Monat netto

Wien, 11. Simmering
MC 15 - Ein Bürogebäude, das Effizienz, Innovation und Umweltbewusstsein vereint.
- ca. 1.762 m² Nutzfläche
- Verfügbar Sommer 2025
€ 18,50 /m²/Monat netto

Wien, 11. Simmering
MC 15 - Ein Bürogebäude, das Effizienz, Innovation und Umweltbewusstsein vereint.
- ca. 1.763 m² Nutzfläche
- Verfügbar Sommer 2025
€ 23,40 /m²/Monat netto

Wien, 3. Landstraße
TRICORE - all-in-one Office Lösungen
- ca. 155 m² Nutzfläche
- Verfügbar Ab sofort
€ 14,50 /m²/Monat netto

Wien, 3. Landstraße
TRICORE - all-in-one Office Lösungen
- ca. 200 m² Nutzfläche
- Verfügbar Ab sofort
€ 14,50 /m²/Monat netto

Wien, 3. Landstraße
TRICORE - all-in-one Office Lösungen
- ca. 260 m² Nutzfläche
- Verfügbar Ab sofort
€ 14,00 /m²/Monat netto

- Neu
Wien, 3. Landstraße
Bürohaus Franzosengraben
- ca. 33 m² Nutzfläche
- Verfügbar Ab sofort
€ 11,00 /m²/Monat netto
in der Nähe

Wien, 11. Simmering
MARXIMUM
- ca. 269 m² Nutzfläche
- Verfügbar Nach Vereinbarung
€ 9,00 /m²/Monat netto

Wien, 11. Simmering
MARXIMUM - Büro mit Terrasse
- ca. 450 m² Nutzfläche
- Verfügbar nach Vereinbarung
€ 12,90 /m²/Monat netto

- Neu
Wien, 11. Simmering
MC 15 - Ein Bürogebäude, das Effizienz, Innovation und Umweltbewusstsein vereint.
- ca. 1.146 m² Nutzfläche
- Verfügbar Q4 2025 / Q1 2026
€ 18,50 /m²/Monat netto

- Neu
Wien, 11. Simmering
MC 15 - Ein Bürogebäude, das Effizienz, Innovation und Umweltbewusstsein vereint.
- ca. 868 m² Nutzfläche
- Verfügbar Q4 2025 / Q1 2026
€ 18,50 /m²/Monat netto

- Neu
Wien, 11. Simmering
MC 15 - Ein Bürogebäude, das Effizienz, Innovation und Umweltbewusstsein vereint.
- ca. 568 m² Nutzfläche
- Verfügbar Q4 2025 / Q1 2026
€ 18,50 /m²/Monat netto

- Neu
Wien, 11. Simmering
MC 15 - Ein Bürogebäude, das Effizienz, Innovation und Umweltbewusstsein vereint.
- ca. 440 m² Nutzfläche
- Verfügbar Q4 2025 / Q1 2026
€ 18,50 /m²/Monat netto

- Neu
Wien, 11. Simmering
MC 15 - Ein Bürogebäude, das Effizienz, Innovation und Umweltbewusstsein vereint.
- ca. 278 m² Nutzfläche
- Verfügbar Q4 2025 / Q1 2026
€ 18,50 /m²/Monat netto

- Neu
Wien, 11. Simmering
MC 15 - Ein Bürogebäude, das Effizienz, Innovation und Umweltbewusstsein vereint.
- ca. 282 m² Nutzfläche
- Verfügbar Q4 2025 / Q1 2026
€ 18,50 /m²/Monat netto

- Neu
Wien, 11. Simmering
MC 15 - Ein Bürogebäude, das Effizienz, Innovation und Umweltbewusstsein vereint.
- ca. 285 m² Nutzfläche
- Verfügbar Q4 2025 / Q1 2026
€ 18,50 /m²/Monat netto

- Neu
Wien, 11. Simmering
MC 15 - Ein Bürogebäude, das Effizienz, Innovation und Umweltbewusstsein vereint.
- ca. 300 m² Nutzfläche
- Verfügbar Q4 2025 / Q1 2026
€ 18,50 /m²/Monat netto

Wien, 11. Simmering
MC 15 - Ihr neuer Bürostandort
- ca. 3.631 m² Nutzfläche
- Verfügbar Sommer 2025
€ 18,50 /m²/Monat netto

Wien, 11. Simmering
MC 15 - Ein Bürogebäude, das Effizienz, Innovation und Umweltbewusstsein vereint.
- ca. 8.702 m² Nutzfläche
- Verfügbar Sommer 2025
€ 18,50 /m²/Monat netto

Wien, 11. Simmering
MC 15 - Ein Bürogebäude, das Effizienz, Innovation und Umweltbewusstsein vereint.
- ca. 358 m² Nutzfläche
- Verfügbar Sommer 2025
€ 23,40 /m²/Monat netto

Wien, 11. Simmering
MC 15 - Ein Bürogebäude, das Effizienz, Innovation und Umweltbewusstsein vereint.
- ca. 1.586 m² Nutzfläche
- Verfügbar Sommer 2025
€ 18,50 /m²/Monat netto

Wien, 11. Simmering
MC 15 - Ein Bürogebäude, das Effizienz, Innovation und Umweltbewusstsein vereint.
- ca. 1.762 m² Nutzfläche
- Verfügbar Sommer 2025
€ 18,50 /m²/Monat netto

Wien, 11. Simmering
MC 15 - Ein Bürogebäude, das Effizienz, Innovation und Umweltbewusstsein vereint.
- ca. 1.763 m² Nutzfläche
- Verfügbar Sommer 2025
€ 23,40 /m²/Monat netto

Wien, 3. Landstraße
TRICORE - all-in-one Office Lösungen
- ca. 155 m² Nutzfläche
- Verfügbar Ab sofort
€ 14,50 /m²/Monat netto

Wien, 3. Landstraße
TRICORE - all-in-one Office Lösungen
- ca. 200 m² Nutzfläche
- Verfügbar Ab sofort
€ 14,50 /m²/Monat netto

Wien, 3. Landstraße
TRICORE - all-in-one Office Lösungen
- ca. 260 m² Nutzfläche
- Verfügbar Ab sofort
€ 14,00 /m²/Monat netto

- Neu
Wien, 3. Landstraße
Bürohaus Franzosengraben
- ca. 33 m² Nutzfläche
- Verfügbar Ab sofort
€ 11,00 /m²/Monat netto