- ca. 8.702 m² Nutzfläche
 - Sommer 2025 Verfügbarkeit
 
Wien, 11. Simmering
MC 15 - Ein Bürogebäude, das Effizienz, Innovation und Umweltbewusstsein vereint.
- 
				
	
	Philipp Granabetter, BSc (WU) MA p.granabetter@otto.at +43 664 851 64 41
 
Alle Immobilien zu diesem Projekt
Ausstattung
- Hohlraumboden, Estrich
 - Kühlung
 - Wärmepumpen (Tiefenbohrungen)
 - Brunnenanlage zur Versorgung der Toiletten
 - mech. Be- und Entlüftung
 - flexible Raumkonfiguration
 - Photovoltaikanlage für alle Mieter
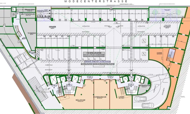
 - hauseigene Tiefgarage mit (E-Lademöglichkeit)
 - Gastronomie im Haus geplant
 - teilweise Terrassen
 
Lage
öffentliche Verkehrsanbindung: 
U-Bahn: U3 
Bus: 72a, 76a
Individualverkehr: 
Autobahn: A23, A4
Details & Downloads
- Objektnummer IVG-O-11160/Ges
 - Nutzfläche ca. 8.702 m²
 - teilbar ab ca. 252 m²
 - Verfügbar ab Sommer 2025
 - Nettomiete/Monat € 18,50 /m²
 - Kaution 3-6 BMM (bonitätsabhängig)
 - Provision 3 BMM zzgl. 20 % USt.
 - HWB wird nachgereicht
 - fGEE wird nachgereicht
 - Baujahr 2024
 - Heizung Zentralheizung
 
- 
			
									
									
	
	
			
		
		
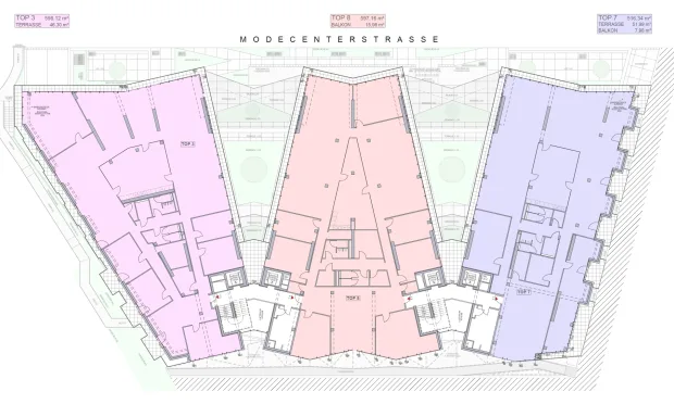
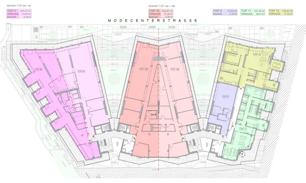
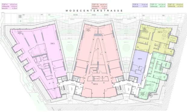
	Alle Grundrisse ZIP Archiv
 - 
				
									
									
	
			
		
		
	Grundriss Übersichtsplan JPG · 129 KB
 - 
				
									
									
	
			
		
		
	Grundriss Grundriss_2.KG JPG · 180 KB
 - 
				
									
									
	
			
		
		
	Grundriss Grundriss_1.KG JPG · 186 KB
 - 
				
									
									
	
			
		
		
	Grundriss Grundriss_EG_Zonierungsvariante JPG · 242 KB
 - 
				
									
									
	
			
		
		
	Grundriss Grundriss_1.OG JPG · 197 KB
 - 
				
									
									
	
			
		
		
	Grundriss Grundriss_1.OG_Zonierungsvariante JPG · 206 KB
 - 
				
									
									
	
			
		
		
	Grundriss Grundriss_2.OG JPG · 205 KB
 - 
				
									
									
	
			
		
		
	Grundriss Grundriss_2.OG_Zonierungsvariante Teilung JPG · 211 KB
 - 
				
									
									
	
			
		
		
	Grundriss Grundriss_2.OG_Zonierungsvariante Verbindung JPG · 198 KB
 - 
				
									
									
	
			
		
		
	Grundriss Grundriss_1.DG JPG · 203 KB
 - 
				
									
									
	
			
		
		
	Grundriss Grundriss_1.DG_Zonierungsvariante JPG · 214 KB
 - 
				
									
									
	
			
		
		
	Grundriss Grundriss_2.DG JPG · 252 KB
 - 
				
									
									
	
			
		
		
	Grundriss Grundriss_2.DG_Zonierungsvariante JPG · 234 KB
 
Wien, 11. Simmering
€ 18,50 /m²
Nettomiete/Monat zzgl. BK, zzgl. USt.
- 
					
		
	
	Philipp Granabetter, BSc (WU) MA p.granabetter@otto.at +43 664 851 64 41
 
Objekt Nr. IVG-O-11160/Ges
für Ihre Anfrage!
wird sich in Kürze bei Ihnen melden.
Vielen Dank für Ihre Anfrage! In Kürze melden wir uns bei Ihnen. Wir freuen uns darauf, Ihnen bei der Suche nach Ihrer Wunschimmobilie zu helfen. Entdecken Sie in der Zwischenzeit weitere attraktive Immobilien aus unserem Portfolio. Lassen Sie sich inspirieren und finden Sie Ihre Favoriten.
in der Nähe
Wien, 3. Landstraße
TRICORE - all-in-one Office Lösungen
- ca. 155 m² Nutzfläche
 - Verfügbar Ab sofort
 
€ 14,50 /m²/Monat netto
Wien, 3. Landstraße
TRICORE - all-in-one Office Lösungen
- ca. 200 m² Nutzfläche
 - Verfügbar Ab sofort
 
€ 14,50 /m²/Monat netto
Wien, 3. Landstraße
TRICORE - all-in-one Office Lösungen
- ca. 260 m² Nutzfläche
 - Verfügbar Ab sofort
 
€ 14,00 /m²/Monat netto
Wien, 11. Simmering
MARXIMUM - Büro mit Terrasse
- ca. 450 m² Nutzfläche
 - Verfügbar nach Vereinbarung
 
€ 12,90 /m²/Monat netto
Wien, 11. Simmering
MARXIMUM
- ca. 269 m² Nutzfläche
 - Verfügbar Nach Vereinbarung
 
€ 9,00 /m²/Monat netto
- Neu
 
Wien, 11. Simmering
MC 15 - Ein Bürogebäude, das Effizienz, Innovation und Umweltbewusstsein vereint.
- ca. 718 m² Nutzfläche
 - Verfügbar Q4 2025 / Q1 2026
 
€ 18,50 /m²/Monat netto
- Neu
 
Wien, 11. Simmering
MC 15 - Ein Bürogebäude, das Effizienz, Innovation und Umweltbewusstsein vereint.
- ca. 1.146 m² Nutzfläche
 - Verfügbar Q4 2025 / Q1 2026
 
€ 18,50 /m²/Monat netto
- Neu
 
Wien, 11. Simmering
MC 15 - Ein Bürogebäude, das Effizienz, Innovation und Umweltbewusstsein vereint.
- ca. 868 m² Nutzfläche
 - Verfügbar Q4 2025 / Q1 2026
 
€ 18,50 /m²/Monat netto
- Neu
 
Wien, 11. Simmering
MC 15 - Ein Bürogebäude, das Effizienz, Innovation und Umweltbewusstsein vereint.
- ca. 568 m² Nutzfläche
 - Verfügbar Q4 2025 / Q1 2026
 
€ 18,50 /m²/Monat netto
Wien, 11. Simmering
MC 15 - Ein Bürogebäude, das Effizienz, Innovation und Umweltbewusstsein vereint.
- ca. 440 m² Nutzfläche
 - Verfügbar Q4 2025 / Q1 2026
 
€ 18,50 /m²/Monat netto
Wien, 11. Simmering
MC 15 - Ein Bürogebäude, das Effizienz, Innovation und Umweltbewusstsein vereint.
- ca. 278 m² Nutzfläche
 - Verfügbar Q4 2025 / Q1 2026
 
€ 18,50 /m²/Monat netto
Wien, 11. Simmering
MC 15 - Ein Bürogebäude, das Effizienz, Innovation und Umweltbewusstsein vereint.
- ca. 282 m² Nutzfläche
 - Verfügbar Q4 2025 / Q1 2026
 
€ 18,50 /m²/Monat netto
Wien, 11. Simmering
MC 15 - Ein Bürogebäude, das Effizienz, Innovation und Umweltbewusstsein vereint.
- ca. 285 m² Nutzfläche
 - Verfügbar Q4 2025 / Q1 2026
 
€ 18,50 /m²/Monat netto
Wien, 11. Simmering
MC 15 - Ein Bürogebäude, das Effizienz, Innovation und Umweltbewusstsein vereint.
- ca. 300 m² Nutzfläche
 - Verfügbar Q4 2025 / Q1 2026
 
€ 18,50 /m²/Monat netto
Wien, 11. Simmering
MC 15 - Ihr neuer Bürostandort
- ca. 3.631 m² Nutzfläche
 - Verfügbar Sommer 2025
 
€ 18,50 /m²/Monat netto
Wien, 11. Simmering
MC 15 - Ein Bürogebäude, das Effizienz, Innovation und Umweltbewusstsein vereint.
- ca. 358 m² Nutzfläche
 - Verfügbar Sommer 2025
 
€ 23,40 /m²/Monat netto
Wien, 11. Simmering
MC 15 - Ein Bürogebäude, das Effizienz, Innovation und Umweltbewusstsein vereint.
- ca. 1.586 m² Nutzfläche
 - Verfügbar Sommer 2025
 
€ 18,50 /m²/Monat netto
Wien, 11. Simmering
MC 15 - Ein Bürogebäude, das Effizienz, Innovation und Umweltbewusstsein vereint.
- ca. 1.762 m² Nutzfläche
 - Verfügbar Sommer 2025
 
€ 18,50 /m²/Monat netto
Wien, 11. Simmering
MC 15 - Ein Bürogebäude, das Effizienz, Innovation und Umweltbewusstsein vereint.
- ca. 1.763 m² Nutzfläche
 - Verfügbar Sommer 2025
 
€ 23,40 /m²/Monat netto
Wien, 3. Landstraße
Bürohaus Franzosengraben
- ca. 33 m² Nutzfläche
 - Verfügbar Ab sofort
 
€ 11,00 /m²/Monat netto
in der Nähe
Wien, 3. Landstraße
TRICORE - all-in-one Office Lösungen
- ca. 155 m² Nutzfläche
 - Verfügbar Ab sofort
 
€ 14,50 /m²/Monat netto
Wien, 3. Landstraße
TRICORE - all-in-one Office Lösungen
- ca. 200 m² Nutzfläche
 - Verfügbar Ab sofort
 
€ 14,50 /m²/Monat netto
Wien, 3. Landstraße
TRICORE - all-in-one Office Lösungen
- ca. 260 m² Nutzfläche
 - Verfügbar Ab sofort
 
€ 14,00 /m²/Monat netto
Wien, 11. Simmering
MARXIMUM - Büro mit Terrasse
- ca. 450 m² Nutzfläche
 - Verfügbar nach Vereinbarung
 
€ 12,90 /m²/Monat netto
Wien, 11. Simmering
MARXIMUM
- ca. 269 m² Nutzfläche
 - Verfügbar Nach Vereinbarung
 
€ 9,00 /m²/Monat netto
- Neu
 
Wien, 11. Simmering
MC 15 - Ein Bürogebäude, das Effizienz, Innovation und Umweltbewusstsein vereint.
- ca. 718 m² Nutzfläche
 - Verfügbar Q4 2025 / Q1 2026
 
€ 18,50 /m²/Monat netto
- Neu
 
Wien, 11. Simmering
MC 15 - Ein Bürogebäude, das Effizienz, Innovation und Umweltbewusstsein vereint.
- ca. 1.146 m² Nutzfläche
 - Verfügbar Q4 2025 / Q1 2026
 
€ 18,50 /m²/Monat netto
- Neu
 
Wien, 11. Simmering
MC 15 - Ein Bürogebäude, das Effizienz, Innovation und Umweltbewusstsein vereint.
- ca. 868 m² Nutzfläche
 - Verfügbar Q4 2025 / Q1 2026
 
€ 18,50 /m²/Monat netto
- Neu
 
Wien, 11. Simmering
MC 15 - Ein Bürogebäude, das Effizienz, Innovation und Umweltbewusstsein vereint.
- ca. 568 m² Nutzfläche
 - Verfügbar Q4 2025 / Q1 2026
 
€ 18,50 /m²/Monat netto
Wien, 11. Simmering
MC 15 - Ein Bürogebäude, das Effizienz, Innovation und Umweltbewusstsein vereint.
- ca. 440 m² Nutzfläche
 - Verfügbar Q4 2025 / Q1 2026
 
€ 18,50 /m²/Monat netto
Wien, 11. Simmering
MC 15 - Ein Bürogebäude, das Effizienz, Innovation und Umweltbewusstsein vereint.
- ca. 278 m² Nutzfläche
 - Verfügbar Q4 2025 / Q1 2026
 
€ 18,50 /m²/Monat netto
Wien, 11. Simmering
MC 15 - Ein Bürogebäude, das Effizienz, Innovation und Umweltbewusstsein vereint.
- ca. 282 m² Nutzfläche
 - Verfügbar Q4 2025 / Q1 2026
 
€ 18,50 /m²/Monat netto
Wien, 11. Simmering
MC 15 - Ein Bürogebäude, das Effizienz, Innovation und Umweltbewusstsein vereint.
- ca. 285 m² Nutzfläche
 - Verfügbar Q4 2025 / Q1 2026
 
€ 18,50 /m²/Monat netto
Wien, 11. Simmering
MC 15 - Ein Bürogebäude, das Effizienz, Innovation und Umweltbewusstsein vereint.
- ca. 300 m² Nutzfläche
 - Verfügbar Q4 2025 / Q1 2026
 
€ 18,50 /m²/Monat netto
Wien, 11. Simmering
MC 15 - Ihr neuer Bürostandort
- ca. 3.631 m² Nutzfläche
 - Verfügbar Sommer 2025
 
€ 18,50 /m²/Monat netto
Wien, 11. Simmering
MC 15 - Ein Bürogebäude, das Effizienz, Innovation und Umweltbewusstsein vereint.
- ca. 358 m² Nutzfläche
 - Verfügbar Sommer 2025
 
€ 23,40 /m²/Monat netto
Wien, 11. Simmering
MC 15 - Ein Bürogebäude, das Effizienz, Innovation und Umweltbewusstsein vereint.
- ca. 1.586 m² Nutzfläche
 - Verfügbar Sommer 2025
 
€ 18,50 /m²/Monat netto
Wien, 11. Simmering
MC 15 - Ein Bürogebäude, das Effizienz, Innovation und Umweltbewusstsein vereint.
- ca. 1.762 m² Nutzfläche
 - Verfügbar Sommer 2025
 
€ 18,50 /m²/Monat netto
Wien, 11. Simmering
MC 15 - Ein Bürogebäude, das Effizienz, Innovation und Umweltbewusstsein vereint.
- ca. 1.763 m² Nutzfläche
 - Verfügbar Sommer 2025
 
€ 23,40 /m²/Monat netto
Wien, 3. Landstraße
Bürohaus Franzosengraben
- ca. 33 m² Nutzfläche
 - Verfügbar Ab sofort
 
€ 11,00 /m²/Monat netto