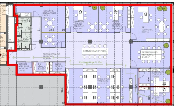
- ca. 335 m² Nutzfläche
- Nach Vereinbarung Verfügbarkeit
Wien, 20. Brigittenau
Offen gestaltete Bürofläche
-
Isabella Plessl i.plessl@otto.at +43 664 885 90 403
Ausstattung
- Lift
- Teeküche
- Öffenbare Fenster
- Bauteilkühlung
- Luftwechsel 1,5-fach/Stunde
- 3,03 Meter Raumhöhe
- Doppelboden
- Flexibel gestaltbare Flächen
- Außen oder innen liegender Sonnenschutz
- Garage im Gebäude
Lage
Durch die optimale Verkehrsanbindung zählt dieses Bürogebäude zu einem der erstklassigen Business Locations in Wien.
Der Zugang zur U-Bahn-Linie U6 befindet sich in unmittelbarer Nähe, wodurch das Shopping & Entertainment Center „Millennium City” in nur 5 Minuten erreicht werden kann, dessen Angebot reichhaltige Mittagssnacks, Geschäfte, ein Fitnessstudio, sowie auch ein Kino umfasst.
Innerhalb von nur 10 Minuten ist die Wiener Innenstadt erreichbar.
Weiters erschließt der nahe gelegene S-Bahn-Knotenpunkt Handelskai das große Einzugsgebiet des Wiener Umlandes.
Details & Downloads
- Objektnummer IVG-O-03844/B3
- Nutzfläche ca. 335 m²
- Verfügbar ab Nach Vereinbarung
- Nettomiete/Monat € 14,50 /m²
- Netto-Betriebskosten/Monat € 4,50 /m²
- Kaution 3-6 BMM (bonitätsabhängig)
- Provision 3 BMM zzgl. 20% USt.
- HWB 63,0 kWh/m²
- Energieklasse C
- fGEE wird nachgereicht
- Heizung Fernwärme
Wien, 20. Brigittenau
€ 14,50 /m²
Nettomiete/Monat zzgl. BK, zzgl. USt.
-
Isabella Plessl i.plessl@otto.at +43 664 885 90 403
Objekt Nr. IVG-O-03844/B3
für Ihre Anfrage!
wird sich in Kürze bei Ihnen melden.
Vielen Dank für Ihre Anfrage! In Kürze melden wir uns bei Ihnen. Wir freuen uns darauf, Ihnen bei der Suche nach Ihrer Wunschimmobilie zu helfen. Entdecken Sie in der Zwischenzeit weitere attraktive Immobilien aus unserem Portfolio. Lassen Sie sich inspirieren und finden Sie Ihre Favoriten.
in der Nähe
Wien, 20. Brigittenau
RIVERGATE
- ca. 636 m² Nutzfläche
- Verfügbar Nach Vereinbarung
€ 15,50 /m²/Monat netto
Wien, 20. Brigittenau
RIVERGATE
- ca. 889 m² Nutzfläche
- Verfügbar Nach Vereinbarung
€ 15,50 /m²/Monat netto
Wien, 20. Brigittenau
RIVERGATE
- ca. 677 m² Nutzfläche
- Verfügbar Nach Vereinbarung
€ 12,50 /m²/Monat netto
Wien, 20. Brigittenau
RIVERGATE - Working Environment
- ca. 1.917 m² Nutzfläche
- Verfügbar Nach Vereinbarung
€ 19,90 /m²/Monat netto
Wien, 20. Brigittenau
RIVERGATE
- ca. 351 m² Nutzfläche
- Verfügbar Nach Vereinbarung
€ 14,90 /m²/Monat netto
Wien, 20. Brigittenau
RIVERGATE - Working Environment
- ca. 659 m² Nutzfläche
- Verfügbar Nach Vereinbarung
€ 15,50 /m²/Monat netto
Wien, 20. Brigittenau
MILLENNIUM TOWER - Moderne Büros mit Weitblick
- ca. 503 m² Nutzfläche
- Verfügbar Nach Vereinbarung
€ 21,95 /m²/Monat netto
Wien, 20. Brigittenau
MILLENNIUM TOWER
- ca. 425 m² Nutzfläche
- Verfügbar ab sofort
€ 12,50 /m²/Monat netto
Wien, 20. Brigittenau
Bürogebäude OPTIMUM
- ca. 435 m² Nutzfläche
- Verfügbar Nach Vereinbarung
€ 13,00 /m²/Monat netto
Wien, 19. Döbling
Modernes Bürogebäude in historischem Umfeld
- ca. 3.516 m² Nutzfläche
- Verfügbar Nach Vereinbarung
€ 14,00 /m²/Monat netto
Wien, 19. Döbling
SQUARE ONE
- ca. 216 m² Nutzfläche
- Verfügbar Nach Vereinbarung
€ 15,00 /m²/Monat netto
Wien, 19. Döbling
SQUARE ONE
- ca. 608 m² Nutzfläche
- Verfügbar Nach Vereinbarung
€ 15,50 /m²/Monat netto
Wien, 19. Döbling
Modern Arbeiten in zentraler Lage
- ca. 5.092 m² Nutzfläche
- Verfügbar Nach Vereinbarung
€ 19,70 /m²/Monat netto
Wien, 19. Döbling
Skyline Offices Wien
- ca. 1.566 m² Nutzfläche
- Verfügbar nach Vereinbarung
€ 16,50 /m²/Monat netto
Wien, 9. Alsergrund
FRANCIS - Arbeiten im Althan Quartier
- ca. 728 m² Nutzfläche
- Verfügbar nach Vereinbarung
€ 29,00 /m²/Monat netto
Wien, 9. Alsergrund
FRANCIS - Arbeiten im Althan Quartier
- ca. 728 m² Nutzfläche
- Verfügbar nach Vereinbarung
€ 29,00 /m²/Monat netto
Wien, 9. Alsergrund
FRANCIS - Arbeiten im Althan Quartier
- ca. 744 m² Nutzfläche
- Verfügbar nach Vereinbarung
€ 29,00 /m²/Monat netto
Wien, 9. Alsergrund
FRANCIS - Arbeiten im Althan Quartier
- ca. 744 m² Nutzfläche
- Verfügbar nach Vereinbarung
€ 29,00 /m²/Monat netto
Wien, 9. Alsergrund
FRANCIS - Arbeiten im Althan Quartier
- ca. 1.846 m² Nutzfläche
- Verfügbar nach Vereinbarung
€ 18,50 /m²/Monat netto
Wien, 9. Alsergrund
FRANCIS - Arbeiten im Althan Quartier
- ca. 1.560 m² Nutzfläche
- Verfügbar nach Vereinbarung
€ 18,50 /m²/Monat netto
in der Nähe
Wien, 20. Brigittenau
RIVERGATE
- ca. 636 m² Nutzfläche
- Verfügbar Nach Vereinbarung
€ 15,50 /m²/Monat netto
Wien, 20. Brigittenau
RIVERGATE
- ca. 889 m² Nutzfläche
- Verfügbar Nach Vereinbarung
€ 15,50 /m²/Monat netto
Wien, 20. Brigittenau
RIVERGATE
- ca. 677 m² Nutzfläche
- Verfügbar Nach Vereinbarung
€ 12,50 /m²/Monat netto
Wien, 20. Brigittenau
RIVERGATE - Working Environment
- ca. 1.917 m² Nutzfläche
- Verfügbar Nach Vereinbarung
€ 19,90 /m²/Monat netto
Wien, 20. Brigittenau
RIVERGATE
- ca. 351 m² Nutzfläche
- Verfügbar Nach Vereinbarung
€ 14,90 /m²/Monat netto
Wien, 20. Brigittenau
RIVERGATE - Working Environment
- ca. 659 m² Nutzfläche
- Verfügbar Nach Vereinbarung
€ 15,50 /m²/Monat netto
Wien, 20. Brigittenau
MILLENNIUM TOWER - Moderne Büros mit Weitblick
- ca. 503 m² Nutzfläche
- Verfügbar Nach Vereinbarung
€ 21,95 /m²/Monat netto
Wien, 20. Brigittenau
MILLENNIUM TOWER
- ca. 425 m² Nutzfläche
- Verfügbar ab sofort
€ 12,50 /m²/Monat netto
Wien, 20. Brigittenau
Bürogebäude OPTIMUM
- ca. 435 m² Nutzfläche
- Verfügbar Nach Vereinbarung
€ 13,00 /m²/Monat netto
Wien, 19. Döbling
Modernes Bürogebäude in historischem Umfeld
- ca. 3.516 m² Nutzfläche
- Verfügbar Nach Vereinbarung
€ 14,00 /m²/Monat netto
Wien, 19. Döbling
SQUARE ONE
- ca. 216 m² Nutzfläche
- Verfügbar Nach Vereinbarung
€ 15,00 /m²/Monat netto
Wien, 19. Döbling
SQUARE ONE
- ca. 608 m² Nutzfläche
- Verfügbar Nach Vereinbarung
€ 15,50 /m²/Monat netto
Wien, 19. Döbling
Modern Arbeiten in zentraler Lage
- ca. 5.092 m² Nutzfläche
- Verfügbar Nach Vereinbarung
€ 19,70 /m²/Monat netto
Wien, 19. Döbling
Skyline Offices Wien
- ca. 1.566 m² Nutzfläche
- Verfügbar nach Vereinbarung
€ 16,50 /m²/Monat netto
Wien, 9. Alsergrund
FRANCIS - Arbeiten im Althan Quartier
- ca. 728 m² Nutzfläche
- Verfügbar nach Vereinbarung
€ 29,00 /m²/Monat netto
Wien, 9. Alsergrund
FRANCIS - Arbeiten im Althan Quartier
- ca. 728 m² Nutzfläche
- Verfügbar nach Vereinbarung
€ 29,00 /m²/Monat netto
Wien, 9. Alsergrund
FRANCIS - Arbeiten im Althan Quartier
- ca. 744 m² Nutzfläche
- Verfügbar nach Vereinbarung
€ 29,00 /m²/Monat netto
Wien, 9. Alsergrund
FRANCIS - Arbeiten im Althan Quartier
- ca. 744 m² Nutzfläche
- Verfügbar nach Vereinbarung
€ 29,00 /m²/Monat netto
Wien, 9. Alsergrund
FRANCIS - Arbeiten im Althan Quartier
- ca. 1.846 m² Nutzfläche
- Verfügbar nach Vereinbarung
€ 18,50 /m²/Monat netto
Wien, 9. Alsergrund
FRANCIS - Arbeiten im Althan Quartier
- ca. 1.560 m² Nutzfläche
- Verfügbar nach Vereinbarung
€ 18,50 /m²/Monat netto