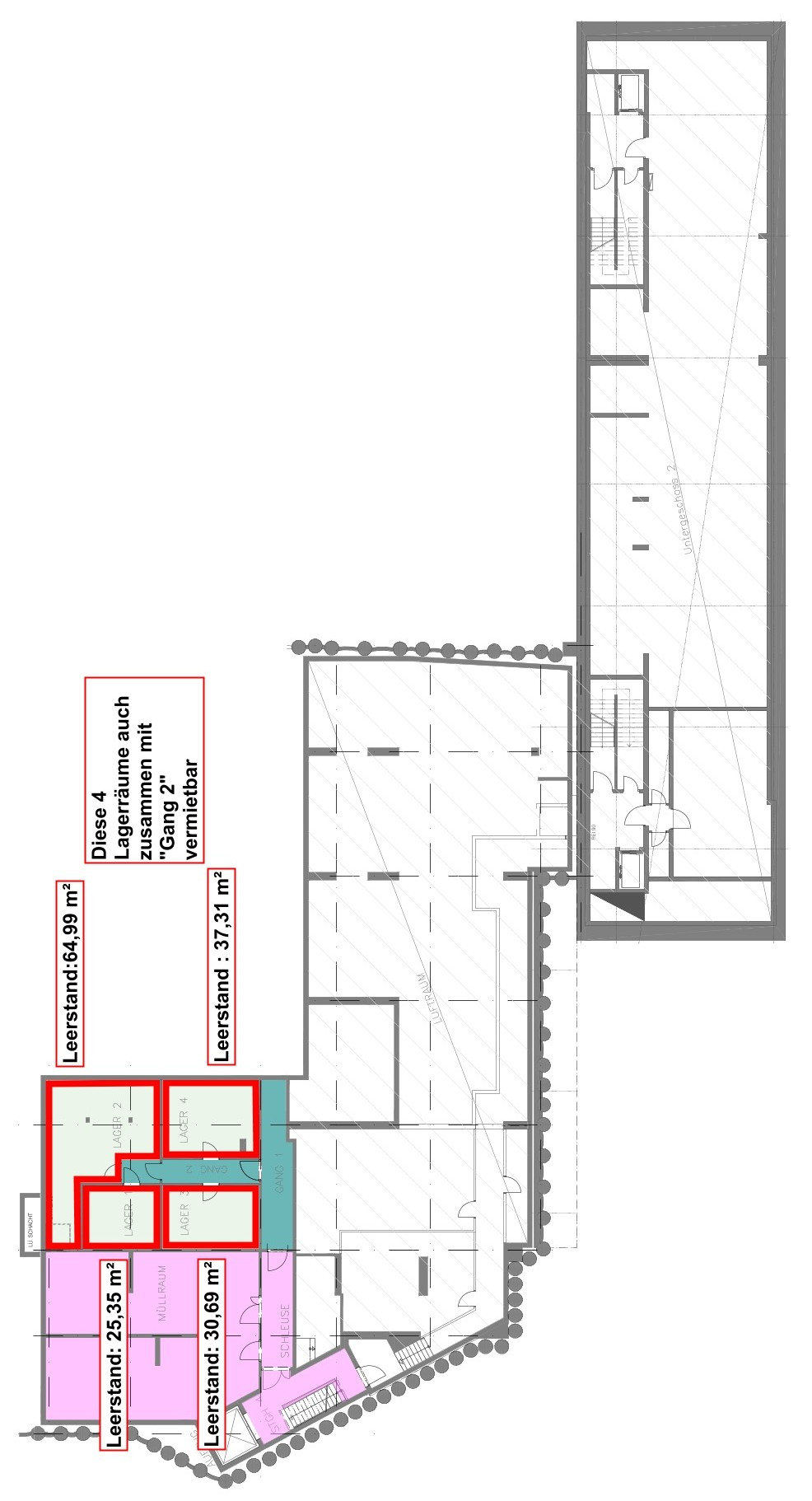
- ca. 303 m² Nutzfläche
- Nach Vereinbarung Verfügbarkeit
Wien, 3. Landstraße
Marxbox - Büro- und Laborflächen
-
Isabella Plessl i.plessl@otto.at +43 664 885 90 403
Alle Immobilien zu diesem Projekt
Ausstattung
- Flexible Raumkonfiguration möglich
- Doppelboden
- Betonkernaktivierung
- Öffenbare Fenster
- Teeküchenanschlüsse
- Getrennte Sanitärbereich
- Lift
- Hauseigene Tiefgarage
- Mieterspezifische Wünsche können teilweise noch berücksichtigt werden.
Lage
Der unmittelbar vor dem Gebäude liegende Robert Hochner Park bietet Freiraum für erholsame Arbeitspausen.
Die restaurierten Schlachthaushallen sorgen für ein ganz besonderes Flair und beherbergen das moderne Restaurant "Marx Restauration" sowie demnächst eine Cafeteria. Die strategisch perfekte Lage sorgt für eine optimale Verkehrsanbindung in die Innenstadt bzw. zum Flughafen.
Öffentliche Verkehrsanbindung:
U-Bahn: U3 Schlachthausgasse
Straßenbahn: 18, 71
Autobus: 74A
Schnellbahn: S7 (Flughafenschnellbahn)
Individualverkehr: A 23, A4 Autobahnabfahrt St. Marx
Details & Downloads
- Objektnummer IVG-O-02216/52
- Nutzfläche ca. 303 m²
- Freifläche ca. 182 m²
- Verfügbar ab Nach Vereinbarung
- Nettomiete/Monat € 16,50 /m²
- Netto-Betriebskosten/Monat € 4,50 /m²
- Kaution 3-6 BMM (bonitätsabhängig)
- Provision 3 BMM zzgl. 20 % USt.
- HWB 41,4 kWh/m²
- Energieklasse B
- fGEE 1,06
Wien, 3. Landstraße
€ 16,50 /m²
Nettomiete/Monat zzgl. BK, zzgl. USt.
-
Isabella Plessl i.plessl@otto.at +43 664 885 90 403
Objekt Nr. IVG-O-02216/52
für Ihre Anfrage!
wird sich in Kürze bei Ihnen melden.
Vielen Dank für Ihre Anfrage! In Kürze melden wir uns bei Ihnen. Wir freuen uns darauf, Ihnen bei der Suche nach Ihrer Wunschimmobilie zu helfen. Entdecken Sie in der Zwischenzeit weitere attraktive Immobilien aus unserem Portfolio. Lassen Sie sich inspirieren und finden Sie Ihre Favoriten.
in der Nähe
Wien, 3. Landstraße
Marxbox - Büro- und Laborflächen
- ca. 143 m² Nutzfläche
- Verfügbar Nach Vereinbarung
€ 16,50 /m²/Monat netto
Wien, 3. Landstraße
Marxbox - Büro- und Laborflächen
- ca. 1.184 m² Nutzfläche
- Verfügbar Nach Vereinbarung
€ 16,50 /m²/Monat netto
Wien, 3. Landstraße
Marxbox - Büro- und Laborflächen
- ca. 136 m² Nutzfläche
- Verfügbar Nach Vereinbarung
€ 16,50 /m²/Monat netto
Wien, 3. Landstraße
Marxbox - Büro- und Laborflächen
- ca. 627 m² Nutzfläche
- Verfügbar Nach Vereinbarung
€ 16,50 /m²/Monat netto
Wien, 3. Landstraße
Marxbox - Büro- und Laborflächen
- ca. 312 m² Nutzfläche
- Verfügbar Nach Vereinbarung
€ 16,50 /m²/Monat netto
Wien, 3. Landstraße
Marxbox - Büro- und Laborflächen
- ca. 654 m² Nutzfläche
- Verfügbar nach Vereinbarung
€ 16,50 /m²/Monat netto
Wien, 3. Landstraße
SOLARIS
- ca. 337 m² Nutzfläche
- Verfügbar Nach Vereinbarung
€ 13,50 /m²/Monat netto
Wien, 3. Landstraße
SOLARIS
- ca. 540 m² Nutzfläche
- Verfügbar Nach Vereinbarung
€ 13,50 /m²/Monat netto
Wien, 3. Landstraße
SOLARIS
- ca. 575 m² Nutzfläche
- Verfügbar Nach Vereinbarung
€ 14,50 /m²/Monat netto
Wien, 3. Landstraße
SOLARIS
- ca. 589 m² Nutzfläche
- Verfügbar nach Vereinbarung
€ 14,50 /m²/Monat netto
Wien, 3. Landstraße
Büros im MQM
- ca. 432 m² Nutzfläche
- Verfügbar Nach Vereinbarung
€ 13,00 /m²/Monat netto
Wien, 3. Landstraße
Büros im MQM
- ca. 3.623 m² Nutzfläche
- Verfügbar Nach Vereinbarung
€ 13,00 /m²/Monat netto
Wien, 3. Landstraße
Büros im MQM
- ca. 348 m² Nutzfläche
- Verfügbar Nach Vereinbarung
€ 13,00 /m²/Monat netto
Wien, 3. Landstraße
Büros im MQM
- ca. 1.295 m² Nutzfläche
- Verfügbar Nach Vereinbarung
€ 13,00 /m²/Monat netto
Wien, 3. Landstraße
Büros im MQM
- ca. 878 m² Nutzfläche
- Verfügbar Nach Vereinbarung
€ 13,00 /m²/Monat netto
Wien, 3. Landstraße
Büros im MQM
- ca. 417 m² Nutzfläche
- Verfügbar Nach Vereinbarung
€ 13,00 /m²/Monat netto
Wien, 3. Landstraße
Büros im MQM
- ca. 983 m² Nutzfläche
- Verfügbar Nach Vereinbarung
€ 13,00 /m²/Monat netto
Wien, 3. Landstraße
Büros im MQM
- ca. 494 m² Nutzfläche
- Verfügbar Nach Vereinbarung
€ 13,00 /m²/Monat netto
Wien, 3. Landstraße
Büros im MQM
- ca. 2.641 m² Nutzfläche
- Verfügbar Nach Vereinbarung
€ 13,00 /m²/Monat netto
Wien, 3. Landstraße
Büros im MQM
- ca. 1.542 m² Nutzfläche
- Verfügbar Nach Vereinbarung
€ 13,00 /m²/Monat netto
in der Nähe
Wien, 3. Landstraße
Marxbox - Büro- und Laborflächen
- ca. 143 m² Nutzfläche
- Verfügbar Nach Vereinbarung
€ 16,50 /m²/Monat netto
Wien, 3. Landstraße
Marxbox - Büro- und Laborflächen
- ca. 1.184 m² Nutzfläche
- Verfügbar Nach Vereinbarung
€ 16,50 /m²/Monat netto
Wien, 3. Landstraße
Marxbox - Büro- und Laborflächen
- ca. 136 m² Nutzfläche
- Verfügbar Nach Vereinbarung
€ 16,50 /m²/Monat netto
Wien, 3. Landstraße
Marxbox - Büro- und Laborflächen
- ca. 627 m² Nutzfläche
- Verfügbar Nach Vereinbarung
€ 16,50 /m²/Monat netto
Wien, 3. Landstraße
Marxbox - Büro- und Laborflächen
- ca. 312 m² Nutzfläche
- Verfügbar Nach Vereinbarung
€ 16,50 /m²/Monat netto
Wien, 3. Landstraße
Marxbox - Büro- und Laborflächen
- ca. 654 m² Nutzfläche
- Verfügbar nach Vereinbarung
€ 16,50 /m²/Monat netto
Wien, 3. Landstraße
SOLARIS
- ca. 337 m² Nutzfläche
- Verfügbar Nach Vereinbarung
€ 13,50 /m²/Monat netto
Wien, 3. Landstraße
SOLARIS
- ca. 540 m² Nutzfläche
- Verfügbar Nach Vereinbarung
€ 13,50 /m²/Monat netto
Wien, 3. Landstraße
SOLARIS
- ca. 575 m² Nutzfläche
- Verfügbar Nach Vereinbarung
€ 14,50 /m²/Monat netto
Wien, 3. Landstraße
SOLARIS
- ca. 589 m² Nutzfläche
- Verfügbar nach Vereinbarung
€ 14,50 /m²/Monat netto
Wien, 3. Landstraße
Büros im MQM
- ca. 432 m² Nutzfläche
- Verfügbar Nach Vereinbarung
€ 13,00 /m²/Monat netto
Wien, 3. Landstraße
Büros im MQM
- ca. 3.623 m² Nutzfläche
- Verfügbar Nach Vereinbarung
€ 13,00 /m²/Monat netto
Wien, 3. Landstraße
Büros im MQM
- ca. 348 m² Nutzfläche
- Verfügbar Nach Vereinbarung
€ 13,00 /m²/Monat netto
Wien, 3. Landstraße
Büros im MQM
- ca. 1.295 m² Nutzfläche
- Verfügbar Nach Vereinbarung
€ 13,00 /m²/Monat netto
Wien, 3. Landstraße
Büros im MQM
- ca. 878 m² Nutzfläche
- Verfügbar Nach Vereinbarung
€ 13,00 /m²/Monat netto
Wien, 3. Landstraße
Büros im MQM
- ca. 417 m² Nutzfläche
- Verfügbar Nach Vereinbarung
€ 13,00 /m²/Monat netto
Wien, 3. Landstraße
Büros im MQM
- ca. 983 m² Nutzfläche
- Verfügbar Nach Vereinbarung
€ 13,00 /m²/Monat netto
Wien, 3. Landstraße
Büros im MQM
- ca. 494 m² Nutzfläche
- Verfügbar Nach Vereinbarung
€ 13,00 /m²/Monat netto
Wien, 3. Landstraße
Büros im MQM
- ca. 2.641 m² Nutzfläche
- Verfügbar Nach Vereinbarung
€ 13,00 /m²/Monat netto
Wien, 3. Landstraße
Büros im MQM
- ca. 1.542 m² Nutzfläche
- Verfügbar Nach Vereinbarung
€ 13,00 /m²/Monat netto