- ab ca. 945 m² Nutzfläche
- Nach Vereinbarung Verfügbarkeit
Wien, 21. Floridsdorf
Modernes Arbeiten im FutureHub North
Ausstattung
- Hochwertige Büromöbel, sowohl voll- als auch teilmöbeliert
- Jahreszeitgesteuerte Außenjalousien
- Stehleuchten sind anwesenheitsgesteuert, außenlichtabhängig und voll dimmbar
- Siemens Conference Center - Geeignet für Pressekonferenzen, Kongresse oder Hausmessen mit moderner Ausstattung (Beamer, W-LAN, Mediensteuerung, Doordisplays, eindrucksvolle Atmosphäre)
- Kindergarten
- Bücherei
- Kultursportverein
- Medizincenter
- E-Auto
- Ladestationen
- Co-working Space
Gebäude 63/64/69/70:
- Gebäude nach LEED-Gold Standard zertifiziert
- Zentrale Klimatisierung mit Filterung der Frischluft
- Sensorgesteuerter Sonnenschutz
- 2,90m Nettogeschosshöhe, 2,50m unter Gangkoffer
- Doppelboden
- Akkustikdecke
- Phonebooth
- Zutrittskontrolle (Alle Mitarbeiter benötigen Chip-Zugangskarte, Kosten je ~35€)
- Direkter Zugang zum Siemens City Hauptgebäude und seinen Services
- Tiefgaragenstellplätze nach Absprache möglich
- Optional Möbelmiete
- Kantinen Service
Gebäude 14 - ehemalige Lehrwerkstätte:
- Laminat und beschichteter Betonboden
- Klimatisiert
- Radiatoren
- Teeküche
- Getrennte Sanitäreinheiten
- Zutrittskontrolle (Alle Mitarbeiter benötigen Chip-Zugangskarte, Kosten je ~35€)
- Außenparkplätze nach Absprache möglich
- Werkstattfläche auch als Open Office möglich
- Lichte Raumhöhe 3,30m
- Zwei Lastenaufzüge, kein Lift
- Druckluftanlage im 2.OG
- Tragfähigkeit im 2.OG 500kg/m²
- Belegungsplan Architekturbüro
- Kantinen Service
Gebäude 16 - "Industriebüro"/Lager:
- Teppichfliesen und Laminat
- Radiatoren
- Teeküche
- Getrennte Sanitäreinheiten
- Zutrittskontrolle (Alle Mitarbeiter benötigen Chip-Zugangskarte, Kosten je ~35€)
- Außenparkplätze nach Absprache möglich
- Kein Lift, Ein Lastenaufzug
- Nach Absprache Möglichkeit eines neuen Bodens und Anstrichs
- Logistiklager als Mieter im EG
- Kantinen Service
Gebäude 33:
- Doppelboden mit Teppichboden
- Radiatoren
- Teilklimatisiert
- Teeküche
- Getrennte Sanitäreinheiten
- Außenparkplätze nach Absprache möglich
- Vier Lifts
- Ausbildungszentren und Büros von Siemens im Gebäude
- 360° Blick über Floridsdorf
- Kantinen Service
Gebäude 35 - ehemaliger Kindergarten:
- PVC-Boden
- Radiatoren
- Teeküche
- Getrennte Sanitäreinheiten
- Außenparkplätze nach Absprache möglich
- „Drop-Off“-Parkplatzbereich
- 3 Gruppenräume, je ein Sanitärkern
- 1 großer Bewegungsraum
- Bürofläche
- „Malraum“
- Kantinen Service
- Bezugsfertig auf aktuellem Standard
- Mietdauer bis Ende 2028
Verfügbare Einheiten (7)
- Objektnummer IVG-O-10812/14-2
- Nutzfläche ca. 2.407 m²
- Verfügbar ab Nach Vereinbarung
- Nettomiete/Monat € 12,90 /m²
- Netto-Betriebskosten/Monat € 4,50 /m²
- Kaution 3-6 BMM (bonitätsabhängig)
- Provision 3 BMM zzgl. 20 % USt.
- HWB wird nachgereicht
- fGEE wird nachgereicht
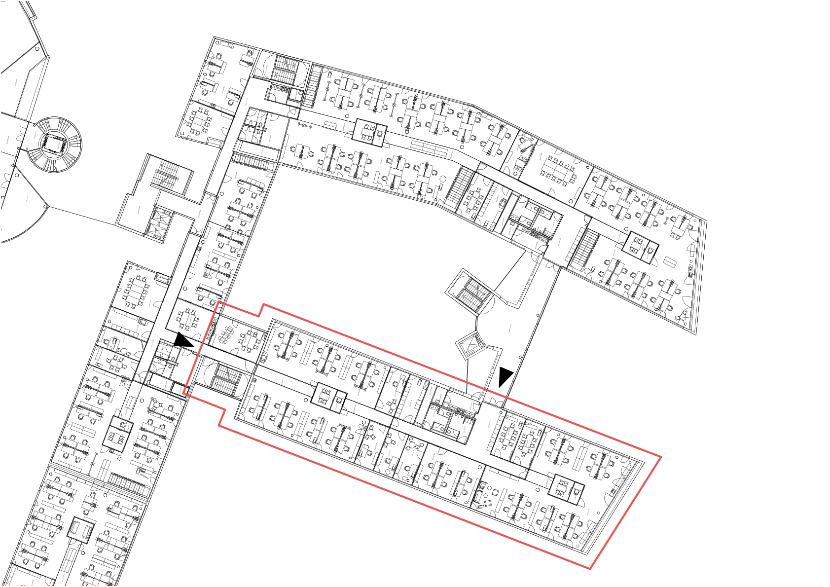
- Objektnummer IVG-O-10812/63-1
- Nutzfläche ca. 919 m²
- Verfügbar ab Nach Vereinbarung
- Nettomiete/Monat € 14,00 /m²
- Netto-Betriebskosten/Monat € 4,90 /m²
- Kaution 3-6 BMM (bonitätsabhängig)
- Provision 3 BMM zzgl. 20 % USt.
- HWB wird nachgereicht
- fGEE wird nachgereicht
- Objektnummer IVG-O-10812/63-1+2
- Nutzfläche ca. 1.963 m²
- Verfügbar ab Nach Vereinbarung
- Nettomiete/Monat € 14,95 /m²
- Netto-Betriebskosten/Monat € 4,99 /m²
- Kaution 3-6 BMM (bonitätsabhängig)
- Provision 3 BMM zzgl. 20 % USt.
- HWB wird nachgereicht
- fGEE wird nachgereicht
- Objektnummer IVG-O-10812/63-2
- Nutzfläche ca. 932 m²
- Verfügbar ab Nach Vereinbarung
- Nettomiete/Monat € 14,00 /m²
- Netto-Betriebskosten/Monat € 4,90 /m²
- Kaution 3-6 BMM (bonitätsabhängig)
- Provision 3 BMM zzgl. 20 % USt.
- HWB wird nachgereicht
- fGEE wird nachgereicht
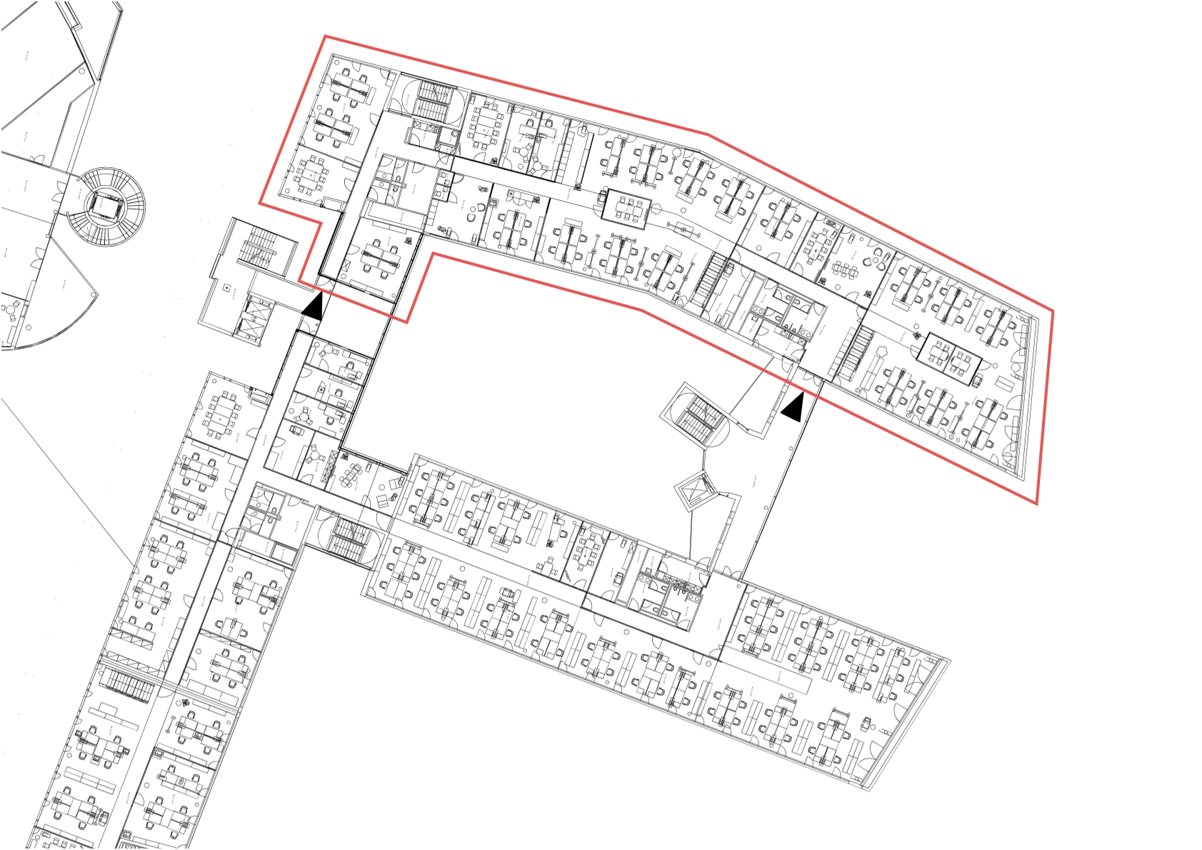
- Objektnummer IVG-O-10812/64-1
- Nutzfläche ca. 685 m²
- Verfügbar ab Nach Vereinbarung
- Nettomiete/Monat € 14,00 /m²
- Netto-Betriebskosten/Monat € 4,90 /m²
- Kaution 3-6 BMM (bonitätsabhängig)
- Provision 3 BMM zzgl. 20 % USt.
- HWB wird nachgereicht
- fGEE wird nachgereicht
- Objektnummer IVG-O-10812/64-1+2
- Nutzfläche ca. 1.457 m²
- Verfügbar ab Nach Vereinbarung
- Nettomiete/Monat € 14,95 /m²
- Netto-Betriebskosten/Monat € 4,99 /m²
- Kaution 3-6 BMM (bonitätsabhängig)
- Provision 3 BMM zzgl. 20 % USt.
- HWB wird nachgereicht
- fGEE wird nachgereicht
- Objektnummer IVG-O-10812/64-2
- Nutzfläche ca. 676 m²
- Verfügbar ab Nach Vereinbarung
- Nettomiete/Monat € 14,00 /m²
- Netto-Betriebskosten/Monat € 4,90 /m²
- Kaution 3-6 BMM (bonitätsabhängig)
- Provision 3 BMM zzgl. 20 % USt.
- HWB wird nachgereicht
- fGEE wird nachgereicht
Lage
Öffentliche Verkehrsanbindung:
- S-Bahn: S1, S2, S3, S7
- Bus: 28A, 31A
- Zug: Bahnhof Siemensstraße
Individualverkehr:
- Drei Zufahrten für PKWs
- Eine Zufahrt auch für LKWs
Parken:
- Parkplatzflächen für PKW, Motorrad und Fahrrad für Kunden und Mitarbeiter (>2.500 Parkplätze)
- Außenstellplätze: je € 60,00 / Stellplatz
- Garagenstellplätze: je € 120,00 / Stellplatz (pro 100 m² 1 Stellplatz)
- E-Ladestationen für Gäste und Mieter verfügbar!
Details & Downloads
- Objektnummer IVG-O-10812
- teilbar ab ca. 945 m²
- Verfügbar ab Nach Vereinbarung
- Nettomiete/Monat ab € 12,90 /m²
- Kaution 3-6 BMM (bonitätsabhängig)
- Provision 3 BMM zzgl. 20 % USt.
- HWB wird nachgereicht
- Energieklasse A++
- fGEE wird nachgereicht
-
Alle Grundrisse ZIP Archiv
-
Grundriss Lageplan Gebäude JPG · 261 KB
-
Grundriss Gebäude 64 2. OG JPG · 201 KB
-
Grundriss Gebäude 64 1. OG JPG · 181 KB
-
Grundriss Gebäude 63 2. OG JPG · 204 KB
-
Grundriss Gebäude 63 1. OG JPG · 184 KB
-
Grundriss Gebäude 33 5. OG JPG · 112 KB
-
Grundriss Gebäude 14 2. OG JPG · 120 KB
Wien, 21. Floridsdorf
ab € 12,90 /m²
Nettomiete/Monat zzgl. BK, zzgl. USt.
-
Helmut Wanjek h.wanjek@otto.at +43 664 854 91 93
Objekt Nr. IVG-O-10812
für Ihre Anfrage!
wird sich in Kürze bei Ihnen melden.
Vielen Dank für Ihre Anfrage! In Kürze melden wir uns bei Ihnen. Wir freuen uns darauf, Ihnen bei der Suche nach Ihrer Wunschimmobilie zu helfen. Entdecken Sie in der Zwischenzeit weitere attraktive Immobilien aus unserem Portfolio. Lassen Sie sich inspirieren und finden Sie Ihre Favoriten.
Projekte
- Neu
Wien, 1. Innere Stadt
Erstbezug - High-Class Büroflächen im Kärntnerringhof
- 8 Einheiten
- ab ca. 106 m²
- Verfügbar Nach Vereinbarung
Wien, 4. Wieden
Helle Altbauflächen mit Blick auf Schloss Belvedere
- Verfügbar Nach Vereinbarung
Wien, 2. Leopoldstadt
Moderne Büros an der Lassallestraße
- 2 Einheiten
- ab ca. 319 m²
- Verfügbar Nach Vereinbarung
Wien, 1. Innere Stadt
Stilvolle City-Büros im sanierten Wiener Altbau
- 3 Einheiten
- Verfügbar Nach Vereinbarung
Wien, 9. Alsergrund
Repräsentative Büroflächen mit Blick auf die Votivkirche
- 1 Einheit
- Verfügbar Nach Vereinbarung
Wien, 23. Liesing
Büro-Lager-Kombi mit großzügiger Grünfläche
- Verfügbar Nach Vereinbarung
Wien, 2. Leopoldstadt
Büroflächen im HSW-Officepark Nähe Praterstern
- 4 Einheiten
- ab ca. 161 m²
- Verfügbar Nach Vereinbarung
Wien, 2. Leopoldstadt
RUND VIER - Seeblick oder doch Trabrennbahn?
- 2 Einheiten
- ab ca. 413 m²
- Verfügbar Nach Vereinbarung
Wien, 4. Wieden
Altbaubüro im 4. Bezirk
- 1 Einheit
- Verfügbar Nach Vereinbarung
Wien, 3. Landstraße
Hochwertige Büroflächen im Fabiani Haus
- ab ca. 163 m²
- Verfügbar Nach Vereinbarung
Wien, 23. Liesing
Fabrik1230 - Das neue Grätzlzentrum
- 6 Einheiten
- ab ca. 84 m²
- Verfügbar Nach Vereinbarung
Wien, 3. Landstraße
Moderne Bürofläche in der Nähe des
Schwarzenbergplatzes
- 2 Einheiten
- Verfügbar nach Vereinbarung
Wien, 3. Landstraße
LOOP Offices
- 7 Einheiten
- Verfügbar Q4 / 2026
Wien, 11. Simmering
Moderne Büros zwischen Hauptbahnhof und Flughafen!
- 9 Einheiten
- Verfügbar Nach Vereinbarung
Wien, 3. Landstraße
DOCKS – 9.000 Quadratmeter Gestaltungsraum
- 6 Einheiten
- ab ca. 400 m²
- Verfügbar Nach Vereinbarung
Wien, 3. Landstraße
enna – Das Work-Life-Building
- 6 Einheiten
- ab ca. 364 m²
- Verfügbar Nach Vereinbarung
Wien, 11. Simmering
MC 15 - Ein Bürogebäude, das Effizienz, Innovation und Umweltbewusstsein vereint.
- 15 Einheiten
- ab ca. 250 m²
- Verfügbar Q3 2026
Wien, 22. Donaustadt
ROBIN Seestadt
- 4 Einheiten
- Verfügbar Nach Vereinbarung
Wien, 12. Meidling
EURO PLAZA 1 - Ihr All-in-1 Büro
- 3 Einheiten
- ab ca. 384 m²
- Verfügbar Nach Vereinbarung
Wien, 3. Landstraße
VILLAGE WORKS | Premium-Büroflächen in neuem Stadtviertel | Erstbezug
- 19 Einheiten
- ab ca. 250 m²
- Verfügbar Ende 2025
Projekte
- Neu
Wien, 1. Innere Stadt
Erstbezug - High-Class Büroflächen im Kärntnerringhof
- 8 Einheiten
- ab ca. 106 m²
- Verfügbar Nach Vereinbarung
Wien, 4. Wieden
Helle Altbauflächen mit Blick auf Schloss Belvedere
- Verfügbar Nach Vereinbarung
Wien, 2. Leopoldstadt
Moderne Büros an der Lassallestraße
- 2 Einheiten
- ab ca. 319 m²
- Verfügbar Nach Vereinbarung
Wien, 1. Innere Stadt
Stilvolle City-Büros im sanierten Wiener Altbau
- 3 Einheiten
- Verfügbar Nach Vereinbarung
Wien, 9. Alsergrund
Repräsentative Büroflächen mit Blick auf die Votivkirche
- 1 Einheit
- Verfügbar Nach Vereinbarung
Wien, 23. Liesing
Büro-Lager-Kombi mit großzügiger Grünfläche
- Verfügbar Nach Vereinbarung
Wien, 2. Leopoldstadt
Büroflächen im HSW-Officepark Nähe Praterstern
- 4 Einheiten
- ab ca. 161 m²
- Verfügbar Nach Vereinbarung
Wien, 2. Leopoldstadt
RUND VIER - Seeblick oder doch Trabrennbahn?
- 2 Einheiten
- ab ca. 413 m²
- Verfügbar Nach Vereinbarung
Wien, 4. Wieden
Altbaubüro im 4. Bezirk
- 1 Einheit
- Verfügbar Nach Vereinbarung
Wien, 3. Landstraße
Hochwertige Büroflächen im Fabiani Haus
- ab ca. 163 m²
- Verfügbar Nach Vereinbarung
Wien, 23. Liesing
Fabrik1230 - Das neue Grätzlzentrum
- 6 Einheiten
- ab ca. 84 m²
- Verfügbar Nach Vereinbarung
Wien, 3. Landstraße
Moderne Bürofläche in der Nähe des
Schwarzenbergplatzes
- 2 Einheiten
- Verfügbar nach Vereinbarung
Wien, 3. Landstraße
LOOP Offices
- 7 Einheiten
- Verfügbar Q4 / 2026
Wien, 11. Simmering
Moderne Büros zwischen Hauptbahnhof und Flughafen!
- 9 Einheiten
- Verfügbar Nach Vereinbarung
Wien, 3. Landstraße
DOCKS – 9.000 Quadratmeter Gestaltungsraum
- 6 Einheiten
- ab ca. 400 m²
- Verfügbar Nach Vereinbarung
Wien, 3. Landstraße
enna – Das Work-Life-Building
- 6 Einheiten
- ab ca. 364 m²
- Verfügbar Nach Vereinbarung
Wien, 11. Simmering
MC 15 - Ein Bürogebäude, das Effizienz, Innovation und Umweltbewusstsein vereint.
- 15 Einheiten
- ab ca. 250 m²
- Verfügbar Q3 2026
Wien, 22. Donaustadt
ROBIN Seestadt
- 4 Einheiten
- Verfügbar Nach Vereinbarung
Wien, 12. Meidling
EURO PLAZA 1 - Ihr All-in-1 Büro
- 3 Einheiten
- ab ca. 384 m²
- Verfügbar Nach Vereinbarung
Wien, 3. Landstraße
VILLAGE WORKS | Premium-Büroflächen in neuem Stadtviertel | Erstbezug
- 19 Einheiten
- ab ca. 250 m²
- Verfügbar Ende 2025