- ab ca. 400 m² Nutzfläche
- Nach Vereinbarung Verfügbarkeit
Wien, 3. Landstraße
LANDMARX
Ausstattung
- Lift
- Fenstern öffenbar
- Sonnenschutz außen/elektrisch
- Abgehängte Decke
- Beleuchtung Spiegelrasterleuchten
- EDV u. Telefon-Verkabelung vermieterseitig: CAT7
- Bodenbelag Teppichfleisen
- Heizung Radiatoren
- Kühlung über Kühlbalken
- Mechanische Be- und Entlüftung
- Teeküchenanschlüsse bzw. tlw. ausgestattete Teeküchen
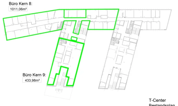
Verfügbare Einheiten (1)
- Objektnummer IVG-O-11132/E4.8
- Nutzfläche ca. 1.112 m²
- Verfügbar ab Nach Vereinbarung
- Nettomiete/Monat € 14,50 /m²
- Netto-Betriebskosten/Monat € 3,87 /m²
- Kaution 3-6 BMM (bonitätsabhängig)
- Provision 3 BMM zzgl. 20 % USt.
- HWB 56,0 kWh/m²
- Energieklasse B
- fGEE 0,85
- Baujahr 2004
- Heizung Zentralheizung, Fernwärme
Lage
Der Rennweg verbindet die Innenstadt über den Schwarzenbergplatz mit der Simmeringer Hauptstraße Richtung Südost-Tangente. Somit ergibt sich eine sehr gute Anbindung sowohl zur Wiener Innenstadt als auch zum Flughafen Schwechat.
Es befinden sich ein Restaurant, ein Café und eine Kantine im Haus. Weitere Möglichkeiten der Nahversorgung sind in der näheren Umgebung gegeben und können fußläufig erreicht werden.
Öffentliche Verkehrsanbindung:
- U-Bahn: U3 Station Schlachthausgasse
- Bus: 74A Station Grasbergergasse
- Straßenbahn: 18, 71 Station St. Marx
- S-Bahn: S7 Station Vienna Bio Center St. Marx
Die individuelle Anbindung zeichnet sich durch die in unmittelbarer Nähe befindliche Auffahrt zur Südosttangente bzw. zur Flughafenautobahn St. Marx aus.
Details & Downloads
- Objektnummer IVG-O-11132
- teilbar ab ca. 400 m²
- Stellplätze 212
- Preis Stellplatz € 150,00 pro Monat
- Verfügbar ab Nach Vereinbarung
- Nettomiete/Monat ab € 14,50 /m²
- Kaution 3-6 Bruttomonatsmieten
- Provision 3 BMM zzgl. 20 % USt.
- HWB 56,0 kWh/m²
- Energieklasse C
- fGEE 0,85
- Baujahr 2004
- Heizung Zentralheizung, Fernwärme
Wien, 3. Landstraße
ab € 14,50 /m²
Nettomiete/Monat zzgl. BK, zzgl. USt.
-
Philipp Granabetter, BSc (WU) MA p.granabetter@otto.at +43 664 851 64 41
Objekt Nr. IVG-O-11132
für Ihre Anfrage!
wird sich in Kürze bei Ihnen melden.
Vielen Dank für Ihre Anfrage! In Kürze melden wir uns bei Ihnen. Wir freuen uns darauf, Ihnen bei der Suche nach Ihrer Wunschimmobilie zu helfen. Entdecken Sie in der Zwischenzeit weitere attraktive Immobilien aus unserem Portfolio. Lassen Sie sich inspirieren und finden Sie Ihre Favoriten.
Projekte
- Neu
Wien, 1. Innere Stadt
Erstbezug - High-Class Büroflächen im Kärntnerringhof
- 8 Einheiten
- ab ca. 106 m²
- Verfügbar Nach Vereinbarung
Wien, 4. Wieden
Helle Altbauflächen mit Blick auf Schloss Belvedere
- Verfügbar Nach Vereinbarung
Wien, 2. Leopoldstadt
Moderne Büros an der Lassallestraße
- 2 Einheiten
- ab ca. 319 m²
- Verfügbar Nach Vereinbarung
Wien, 1. Innere Stadt
Stilvolle City-Büros im sanierten Wiener Altbau
- 3 Einheiten
- Verfügbar Nach Vereinbarung
Wien, 9. Alsergrund
Repräsentative Büroflächen mit Blick auf die Votivkirche
- 1 Einheit
- Verfügbar Nach Vereinbarung
Wien, 23. Liesing
Büro-Lager-Kombi mit großzügiger Grünfläche
- Verfügbar Nach Vereinbarung
Wien, 2. Leopoldstadt
Büroflächen im HSW-Officepark Nähe Praterstern
- 4 Einheiten
- ab ca. 161 m²
- Verfügbar Nach Vereinbarung
Wien, 2. Leopoldstadt
RUND VIER - Seeblick oder doch Trabrennbahn?
- 2 Einheiten
- ab ca. 413 m²
- Verfügbar Nach Vereinbarung
Wien, 4. Wieden
Altbaubüro im 4. Bezirk
- 1 Einheit
- Verfügbar Nach Vereinbarung
Wien, 3. Landstraße
Hochwertige Büroflächen im Fabiani Haus
- ab ca. 163 m²
- Verfügbar Nach Vereinbarung
Wien, 23. Liesing
Fabrik1230 - Das neue Grätzlzentrum
- 6 Einheiten
- ab ca. 84 m²
- Verfügbar Nach Vereinbarung
Wien, 3. Landstraße
Moderne Bürofläche in der Nähe des
Schwarzenbergplatzes
- 2 Einheiten
- Verfügbar nach Vereinbarung
Wien, 3. Landstraße
LOOP Offices
- 7 Einheiten
- Verfügbar Q4 / 2026
Wien, 11. Simmering
Moderne Büros zwischen Hauptbahnhof und Flughafen!
- 9 Einheiten
- Verfügbar Nach Vereinbarung
Wien, 3. Landstraße
DOCKS – 9.000 Quadratmeter Gestaltungsraum
- 6 Einheiten
- ab ca. 400 m²
- Verfügbar Nach Vereinbarung
Wien, 3. Landstraße
enna – Das Work-Life-Building
- 6 Einheiten
- ab ca. 364 m²
- Verfügbar Nach Vereinbarung
Wien, 11. Simmering
MC 15 - Ein Bürogebäude, das Effizienz, Innovation und Umweltbewusstsein vereint.
- 15 Einheiten
- ab ca. 250 m²
- Verfügbar Q3 2026
Wien, 22. Donaustadt
ROBIN Seestadt
- 4 Einheiten
- Verfügbar Nach Vereinbarung
Wien, 12. Meidling
EURO PLAZA 1 - Ihr All-in-1 Büro
- 3 Einheiten
- ab ca. 384 m²
- Verfügbar Nach Vereinbarung
Wien, 21. Floridsdorf
Modernes Arbeiten im FutureHub North
- 7 Einheiten
- ab ca. 945 m²
- Verfügbar Nach Vereinbarung
Projekte
- Neu
Wien, 1. Innere Stadt
Erstbezug - High-Class Büroflächen im Kärntnerringhof
- 8 Einheiten
- ab ca. 106 m²
- Verfügbar Nach Vereinbarung
Wien, 4. Wieden
Helle Altbauflächen mit Blick auf Schloss Belvedere
- Verfügbar Nach Vereinbarung
Wien, 2. Leopoldstadt
Moderne Büros an der Lassallestraße
- 2 Einheiten
- ab ca. 319 m²
- Verfügbar Nach Vereinbarung
Wien, 1. Innere Stadt
Stilvolle City-Büros im sanierten Wiener Altbau
- 3 Einheiten
- Verfügbar Nach Vereinbarung
Wien, 9. Alsergrund
Repräsentative Büroflächen mit Blick auf die Votivkirche
- 1 Einheit
- Verfügbar Nach Vereinbarung
Wien, 23. Liesing
Büro-Lager-Kombi mit großzügiger Grünfläche
- Verfügbar Nach Vereinbarung
Wien, 2. Leopoldstadt
Büroflächen im HSW-Officepark Nähe Praterstern
- 4 Einheiten
- ab ca. 161 m²
- Verfügbar Nach Vereinbarung
Wien, 2. Leopoldstadt
RUND VIER - Seeblick oder doch Trabrennbahn?
- 2 Einheiten
- ab ca. 413 m²
- Verfügbar Nach Vereinbarung
Wien, 4. Wieden
Altbaubüro im 4. Bezirk
- 1 Einheit
- Verfügbar Nach Vereinbarung
Wien, 3. Landstraße
Hochwertige Büroflächen im Fabiani Haus
- ab ca. 163 m²
- Verfügbar Nach Vereinbarung
Wien, 23. Liesing
Fabrik1230 - Das neue Grätzlzentrum
- 6 Einheiten
- ab ca. 84 m²
- Verfügbar Nach Vereinbarung
Wien, 3. Landstraße
Moderne Bürofläche in der Nähe des
Schwarzenbergplatzes
- 2 Einheiten
- Verfügbar nach Vereinbarung
Wien, 3. Landstraße
LOOP Offices
- 7 Einheiten
- Verfügbar Q4 / 2026
Wien, 11. Simmering
Moderne Büros zwischen Hauptbahnhof und Flughafen!
- 9 Einheiten
- Verfügbar Nach Vereinbarung
Wien, 3. Landstraße
DOCKS – 9.000 Quadratmeter Gestaltungsraum
- 6 Einheiten
- ab ca. 400 m²
- Verfügbar Nach Vereinbarung
Wien, 3. Landstraße
enna – Das Work-Life-Building
- 6 Einheiten
- ab ca. 364 m²
- Verfügbar Nach Vereinbarung
Wien, 11. Simmering
MC 15 - Ein Bürogebäude, das Effizienz, Innovation und Umweltbewusstsein vereint.
- 15 Einheiten
- ab ca. 250 m²
- Verfügbar Q3 2026
Wien, 22. Donaustadt
ROBIN Seestadt
- 4 Einheiten
- Verfügbar Nach Vereinbarung
Wien, 12. Meidling
EURO PLAZA 1 - Ihr All-in-1 Büro
- 3 Einheiten
- ab ca. 384 m²
- Verfügbar Nach Vereinbarung
Wien, 21. Floridsdorf
Modernes Arbeiten im FutureHub North
- 7 Einheiten
- ab ca. 945 m²
- Verfügbar Nach Vereinbarung