- ab ca. 17 m² Nutzfläche
- 02.2026 Verfügbarkeit
2351, Wiener Neudorf
Individuelle Lager- und Büroflächen in idealer Lage
Ausstattung
Der Standort wurde einer kompletten Modernisierung unterzogen:
Fenster wurden erneuert
Lastenaufzug wurde fertiggestellt
Glasfaser wurde ins Gebäude eingeleitet.
Alle Büroflächen umfassen im wesentlichen folgende Maßnahmen:
- Neue moderne Küche inkl. aller Küchengeräte
- Neue EDV Verkabelung inkl. Patchraum
- Neue moderne Bodenbeläge
- Neue Stromverkabelung inkl. eigenen Stromzähler
- Neue energieeffiziente Fenster
- Neue Rasterdecken inkl. moderner LED Beleuchtung
- Neue Sanitäranlagen
- Raumaufteilung folgt den Mieterbedürfnissen
- Klimatisierung optional
Zusätzliche Serviceleistung
- Optional: Internet, Reinigung, etc.
- Technische Planung
- Schlüsselfertige Umsetzung direkt vom Eigentümer
Verfügbare Einheiten (6)
- Objektnummer IVG-I-12658/1
- Nutzfläche ca. 1.802 m²
- Bürofläche ca. 30 m²
- Lagerfläche ca. 1.772 m²
- Verfügbar ab 03/2026
- Nettomiete/Monat € 11.715,08
- Netto-Betriebskosten/Monat € 1.387,79
- Kaution 3 - 6 Bruttomonatsmieten je nach Bonität des Mieters
- Provision 3 Bruttomonatsmieten
- HWB 90,6 kWh/m²
- fGEE wird nachgereicht
- Heizung Gasheizung
- Befeuerung Gas
- Objektnummer IVG-I-12658/2
- Nutzfläche ca. 1.029 m²
- Lagerfläche ca. 1.029 m²
- teilbar ab ca. 739 m²
- Verfügbar ab 03/2026
- Nettomiete/Monat € 6.689,02
- Netto-Betriebskosten/Monat € 793,10
- Kaution 3 - 6 Bruttomonatsmieten je nach Bonität des Mieters
- Provision 3 Bruttomonatsmieten
- HWB 90,6 kWh/m²
- fGEE wird nachgereicht
- Heizung Gasheizung
- Befeuerung Gas
- Objektnummer IVG-I-12658/3
- Nutzfläche ca. 2.831 m²
- Bürofläche ca. 30 m²
- Lagerfläche ca. 2.801 m²
- teilbar ab ca. 739 m²
- Verfügbar ab 02.2026
- Nettomiete/Monat € 18.404,10
- Netto-Betriebskosten/Monat € 2.179,10
- Kaution 3 - 6 Bruttomonatsmieten je nach Bonität des Mieters
- Provision 3 Bruttomonatsmieten
- HWB 90,6 kWh/m²
- fGEE wird nachgereicht
- Heizung Gasheizung
- Befeuerung Gas
- Objektnummer IVG-I-12658/4
- Nutzfläche ca. 192 m²
- Verfügbar ab 02.2026
- Nettomiete/Monat € 13,00 /m²
- Netto-Betriebskosten/Monat € 1,75 /m²
- Kaution 3 - 6 Bruttomonatsmieten je nach Bonität des Mieters
- Provision 3 Bruttomonatsmieten zzgl. 20 % USt.
- HWB 90,6 kWh/m²
- fGEE wird nachgereicht
- Heizung Gasheizung
- Befeuerung Gas
- Objektnummer IVG-I-12658/6
- Nutzfläche ca. 190 m²
- Verfügbar ab 02.2026
- Nettomiete/Monat € 13,00 /m²
- Netto-Betriebskosten/Monat € 1,75 /m²
- Kaution 3 - 6 Bruttomonatsmieten je nach Bonität des Mieters
- Provision 3 Bruttomonatsmieten
- HWB 90,6 kWh/m²
- fGEE wird nachgereicht
- Heizung Gasheizung
- Befeuerung Gas
- Objektnummer IVG-I-12658/7
- Nutzfläche ca. 189 m²
- Verfügbar ab 02.2026
- Nettomiete/Monat € 13,00 /m²
- Netto-Betriebskosten/Monat € 1,75 /m²
- Kaution 3 - 6 Bruttomonatsmieten je nach Bonität des Mieters
- Provision 3 Bruttomonatsmieten zzgl. 20 % USt.
- HWB 90,6 kWh/m²
- fGEE wird nachgereicht
- Heizung Gasheizung
- Befeuerung Gas
Lage
Die Liegenschaft befindet sich in unmittelbarer Nähe des Autobahnzubringers Wr. Neudorf (A2/S1). Darüber hinaus kann das Zentrum von Wien auch gut über die Bundesstraße 17 erschlossen werden.
Individualverkehr:
Autobahn: A2/A6 und in Folge A23 und S1
Bundestraße: B17
Die Autobuslinie 261/263 sowie die Badner Bahn befinden sich in unmittelbarer Nähe.
Details & Downloads
- Objektnummer IVG-I-12658
- Verfügbar ab 02.2026
- Nettomiete/Monat ab € 13,00
- Kaution 3BMM
- Provision 3BMM
- HWB 90,6 kWh/m²
- fGEE wird nachgereicht
- Heizung Gasheizung
- Befeuerung Gas
-
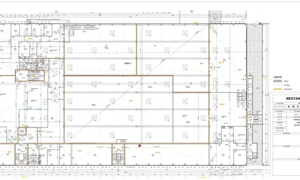
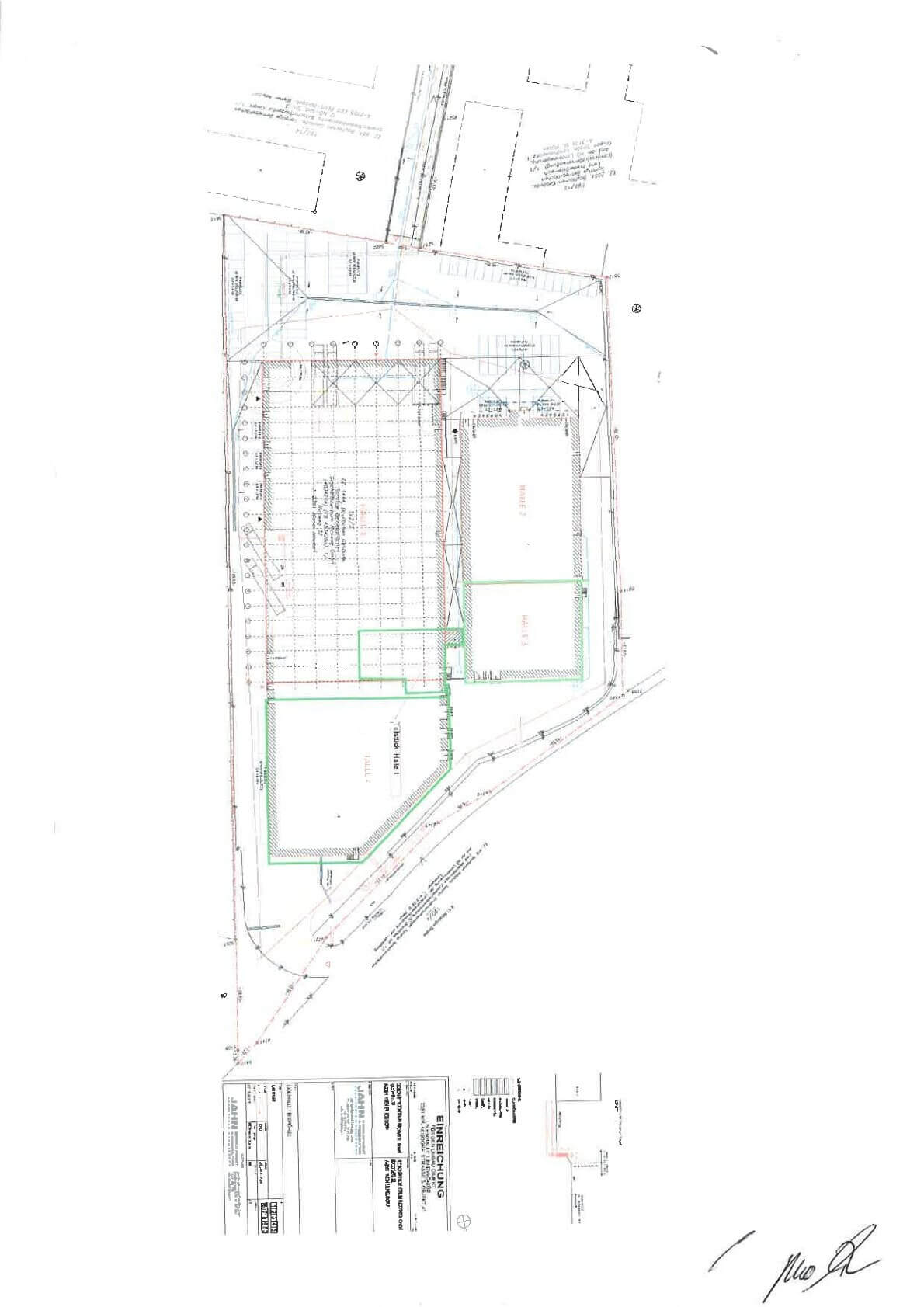
Alle Grundrisse ZIP Archiv
-
Grundriss Bestandsplan_Halle 4 JPG · 166 KB
-
Grundriss Halle 1_EG JPG · 184 KB
-
Grundriss Halle 1_OG JPG · 199 KB
-
Grundriss Halle 1_UG JPG · 118 KB
-
Grundriss Büro_Obj41 JPG · 147 KB
-
Grundriss Garage_Werkstatt _Obj41 JPG · 77 KB
-
Grundriss kombinierte_Mietfläche_Halle3und4 JPG · 93 KB
2351, Wiener Neudorf
ab € 13,00 /m²
Nettomiete/Monat zzgl. BK, zzgl. USt.
-
Alexandra Fischer a.fischer@otto.at +43 664 854 85 18
Objekt Nr. IVG-I-12658
für Ihre Anfrage!
wird sich in Kürze bei Ihnen melden.
Vielen Dank für Ihre Anfrage! In Kürze melden wir uns bei Ihnen. Wir freuen uns darauf, Ihnen bei der Suche nach Ihrer Wunschimmobilie zu helfen. Entdecken Sie in der Zwischenzeit weitere attraktive Immobilien aus unserem Portfolio. Lassen Sie sich inspirieren und finden Sie Ihre Favoriten.
Projekte
1210, Wien, Floridsdorf
Lagerhalle in Strebersdorf - Wien NORD
- 2 Einheiten
- ab ca. 400 m²
- Verfügbar ab Q3 2026
Wien, 22. Donaustadt
Lagerhalle mit Büro im Wiener Norden
- Verfügbar Nach Vereinbarung
Wien, 22. Donaustadt
Moderne Lagerhalle im Wiener Norden
- Verfügbar nach Vereinbarung
3382, Loosdorf
Hochwertiges Kühllager an der A1
- 1 Einheit
- ab ca. 6.270 m²
- Verfügbar Q3 2025
2100, Korneuburg
Erstbezug Kühl- und Tiefkühllagerhalle in Korneuburg
- ab ca. 1.527 m²
- Verfügbar Nach Vereinbarung
Wien, 21. Floridsdorf
Optimal gelegene Betriebsobjekt mit Lager- und Bürofläche
- 2 Einheiten
- Verfügbar Nach Vereinbarung
2460, Bruck an der Leitha
Logistikpark Bruck A4
- ab ca. 2.265 m²
- Verfügbar
Trnava, Slowakei
Industriepark Trnava - provisionsfreie Vermietung
- Verfügbar nach Vereinbarung
2201, Hagenbrunn
Lager & Freiflächen nahe G3 / Hagenbrunn
- 1 Einheit
- ab ca. 57 m²
- Verfügbar nach Vereinbarung
Wien, 21. Floridsdorf
Hallenobjekte an der U1 / Wien-Nord
- 2 Einheiten
- ab ca. 2.000 m²
- Verfügbar Nach Vereinbarung
Wien, 22. Donaustadt
Attraktives Betriebsobjekt in 1220 Wien
- 1 Einheit
- Verfügbar Ende Q4 2025
2540, Bad Vöslau
Gewerbepark an der A2
- 4 Einheiten
- ab ca. 1.340 m²
- Verfügbar Q2 2025
Senec, Slowakei
Slowakei - Senec: perfekt gelegene Logistikhalle / provisionsfreie Anmietung
- 2 Einheiten
- ab ca. 3.300 m²
- Verfügbar sofort
4694, Ohlsdorf
Industrie- und Wirtschaftspark Ehrenfeld / Oberösterreich
- 3 Einheiten
- ab ca. 3.500 m²
- Verfügbar Q2 2025 / Q4 2025
Wien, 21. Floridsdorf
Betriebsliegenschaft im Norden Wiens
- Verfügbar nach Vereinbarung
Wien, 23. Liesing
Präsentative Lagerflächen
- 1 Einheit
- ab ca. 891 m²
- Verfügbar Nach Vereinbarung
2542, Kottingbrunn
Industrie- & Logistikpark südlich von Wien
- 5 Einheiten
- Verfügbar nach Vereinbarung
3131, Inzersdorf ob der Traisen
Industriepark ST. POELTEN NORD
- Verfügbar Nach Vereinbarung
Wien, 23. Liesing
CITY PARK VIENNA - Multifunktionales Gewerbeobjekt
- 1 Einheit
- ab ca. 1.565 m²
- Verfügbar Nach Vereinbarung
Wien, 22. Donaustadt
Business Park Vienna
- 7 Einheiten
- ab ca. 1.289 m²
- Verfügbar Q1 2026
Projekte
1210, Wien, Floridsdorf
Lagerhalle in Strebersdorf - Wien NORD
- 2 Einheiten
- ab ca. 400 m²
- Verfügbar ab Q3 2026
Wien, 22. Donaustadt
Lagerhalle mit Büro im Wiener Norden
- Verfügbar Nach Vereinbarung
Wien, 22. Donaustadt
Moderne Lagerhalle im Wiener Norden
- Verfügbar nach Vereinbarung
3382, Loosdorf
Hochwertiges Kühllager an der A1
- 1 Einheit
- ab ca. 6.270 m²
- Verfügbar Q3 2025
2100, Korneuburg
Erstbezug Kühl- und Tiefkühllagerhalle in Korneuburg
- ab ca. 1.527 m²
- Verfügbar Nach Vereinbarung
Wien, 21. Floridsdorf
Optimal gelegene Betriebsobjekt mit Lager- und Bürofläche
- 2 Einheiten
- Verfügbar Nach Vereinbarung
2460, Bruck an der Leitha
Logistikpark Bruck A4
- ab ca. 2.265 m²
- Verfügbar
Trnava, Slowakei
Industriepark Trnava - provisionsfreie Vermietung
- Verfügbar nach Vereinbarung
2201, Hagenbrunn
Lager & Freiflächen nahe G3 / Hagenbrunn
- 1 Einheit
- ab ca. 57 m²
- Verfügbar nach Vereinbarung
Wien, 21. Floridsdorf
Hallenobjekte an der U1 / Wien-Nord
- 2 Einheiten
- ab ca. 2.000 m²
- Verfügbar Nach Vereinbarung
Wien, 22. Donaustadt
Attraktives Betriebsobjekt in 1220 Wien
- 1 Einheit
- Verfügbar Ende Q4 2025
2540, Bad Vöslau
Gewerbepark an der A2
- 4 Einheiten
- ab ca. 1.340 m²
- Verfügbar Q2 2025
Senec, Slowakei
Slowakei - Senec: perfekt gelegene Logistikhalle / provisionsfreie Anmietung
- 2 Einheiten
- ab ca. 3.300 m²
- Verfügbar sofort
4694, Ohlsdorf
Industrie- und Wirtschaftspark Ehrenfeld / Oberösterreich
- 3 Einheiten
- ab ca. 3.500 m²
- Verfügbar Q2 2025 / Q4 2025
Wien, 21. Floridsdorf
Betriebsliegenschaft im Norden Wiens
- Verfügbar nach Vereinbarung
Wien, 23. Liesing
Präsentative Lagerflächen
- 1 Einheit
- ab ca. 891 m²
- Verfügbar Nach Vereinbarung
2542, Kottingbrunn
Industrie- & Logistikpark südlich von Wien
- 5 Einheiten
- Verfügbar nach Vereinbarung
3131, Inzersdorf ob der Traisen
Industriepark ST. POELTEN NORD
- Verfügbar Nach Vereinbarung
Wien, 23. Liesing
CITY PARK VIENNA - Multifunktionales Gewerbeobjekt
- 1 Einheit
- ab ca. 1.565 m²
- Verfügbar Nach Vereinbarung
Wien, 22. Donaustadt
Business Park Vienna
- 7 Einheiten
- ab ca. 1.289 m²
- Verfügbar Q1 2026