- approx. 163 sq m Gross leasable area
- By arrangement Availability
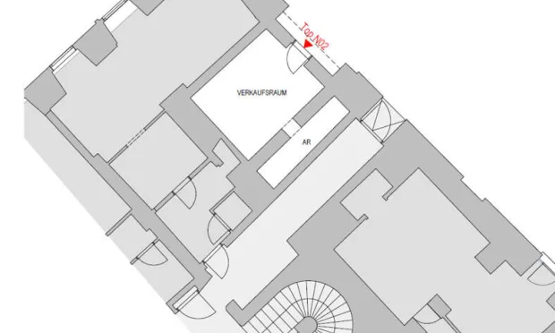
Vienna, 3. Landstraße
Premium Office Spaces at Fabiani House
-
Magdalena Pesic, BSc m.pesic@otto.at +43 676 480 36 74
All Units on this Development

Facilities
- Flexible room layout possible
- Cooling via fan coils
- External blinds
- Modern kitchen
- Server room with CAT7 IT cabling (from previous tenant)
Location
The attractive Fabiani House is located at Ungargasse 59-61 / Barichgasse 40-42, offering excellent accessibility by both public transport and private vehicles. The surrounding area is characterized by historic residential buildings, and the infrastructure is excellent, with the Rennweg S-Bahn station and numerous shops for everyday needs nearby.
Transport Connections
Public Transport:
- U-Bahn: U3, U4 (Wien Mitte station)
- Bus: 4A (Ungargasse / Neulinggasse stop)
- Tram: O, 1 (Ungargasse / Neulinggasse stop)
- S-Bahn: various lines (Rennweg station)
By Car:
- Approximately 4 minutes to the city center
- Local amenities in the immediate vicinity
Details & Downloads
- Property-ID IVG-O-12337/3.3
- GLA approx. 163 sq m
- Ready-to-use By arrangement
- Net rent price per month € 16.00 /sq m
- Net operating costs € 2.57 /sq m/month
- Deposit 3–6 months’ gross rent deposit (depending on creditworthiness)
- Commission 3 gross monthly rents plus 20% VAT
- EPC 63.2 kWh/sq m
- Energy demand class C
- fGEE 1.13
- Heating District heating
- Lighting District heating
Vienna, 3. Landstraße
€ 16.00 /sq m
Net rent/month excl. operating costs
-
Magdalena Pesic, BSc m.pesic@otto.at +43 676 480 36 74
Property-ID IVG-O-12337/3.3
for your Request!
will get in touch with you shortly.
Thank you for your request! We will get back to you shortly. We look forward to assisting you in finding your ideal property. In the meantime, explore more attractive properties from our portfolio. Get inspired and find your favorites.
nearby

Vienna, 3. Landstraße
"Zentrum Rennweg"
- approx. 215 sq m gross leasable area
- Available By arrangement
€ 13.75 /sq m/month net

Vienna, 3. Landstraße
"Center Rennweg"
- approx. 219 sq m gross leasable area
- Available By arrangement
€ 13.75 /sq m/month net

Vienna, 3. Landstraße
Modern offices in the center of Rennweg
- approx. 157 sq m gross leasable area
- Available By arrangement
€ 13.75 /sq m/month net

Vienna, 3. Landstraße
Rennweg - modern working!
- approx. 470 sq m gross leasable area
- Available By arrangement
€ 13.75 /sq m/month net

Vienna, 3. Landstraße
Rennweg - modern working!
- approx. 463 sq m gross leasable area
- Available By arrangement
€ 13.75 /sq m/month net

Vienna, 3. Landstraße
LANDMARX
- approx. 1,112 sq m gross leasable area
- Available By arrangement
€ 14.50 /sq m/month net

Vienna, 3. Landstraße
Premium Office Spaces at Fabiani House
- approx. 163 sq m gross leasable area
- Available By arrangement
€ 16.00 /sq m/month net

Vienna, 3. Landstraße
Neulinggasse office building
- approx. 159 sq m gross leasable area
- Available By arrangement
€ 1,990.73 /month net

Vienna, 3. Landstraße
Simply magnificent!
- approx. 360 sq m gross leasable area
- Available By arrangement
€ 16.50 /sq m/month net

Vienna, 3. Landstraße
QBIK
- approx. 1,316 sq m gross leasable area
- Available Nach Vereinbarung
€ 13.00 /sq m/month net

Vienna, 3. Landstraße
- approx. 401 sq m gross leasable area
- Available
€ 16.00 /sq m/month net

Vienna, 3. Landstraße
- approx. 200 sq m gross leasable area
- Available
€ 16.00 /sq m/month net

Vienna, 3. Landstraße
Modern Medical/Practice Spaces in the 3rd District – Flexibly Configurable
- approx. 318 sq m gross leasable area
- Available By arrangement
€ 17.90 /sq m/month net

Vienna, 3. Landstraße
DOCKS – 9,000 sqm of flexible workspace
- approx. 779 sq m gross leasable area
- Available By arrangement
from € 15.00 /sq m/month net

Vienna, 3. Landstraße
DOCKS – 9,000 sqm of flexible workspace
- approx. 501 sq m gross leasable area
- Available By arrangement
from € 15.00 /sq m/month net

Vienna, 3. Landstraße
DOCKS – 9,000 sqm of flexible workspace
- approx. 762 sq m gross leasable area
- Available By arrangement
from € 15.00 /sq m/month net

Vienna, 3. Landstraße
DOCKS – 9,000 sqm of flexible workspace
- approx. 443 sq m gross leasable area
- Available By arrangement
from € 15.00 /sq m/month net

Vienna, 3. Landstraße
DOCKS – 9,000 sqm of flexible workspace
- approx. 440 sq m gross leasable area
- Available By arrangement
from € 15.00 /sq m/month net

Vienna, 3. Landstraße
DOCKS – 9,000 sqm of flexible workspace
- approx. 400 sq m gross leasable area
- Available By arrangement
from € 15.00 /sq m/month net

Vienna, 3. Landstraße
VILLAGE WORKS
- approx. 377 sq m gross leasable area
- Available End of 2025
€ 18.90 /sq m/month net
nearby

Vienna, 3. Landstraße
"Zentrum Rennweg"
- approx. 215 sq m gross leasable area
- Available By arrangement
€ 13.75 /sq m/month net

Vienna, 3. Landstraße
"Center Rennweg"
- approx. 219 sq m gross leasable area
- Available By arrangement
€ 13.75 /sq m/month net

Vienna, 3. Landstraße
Modern offices in the center of Rennweg
- approx. 157 sq m gross leasable area
- Available By arrangement
€ 13.75 /sq m/month net

Vienna, 3. Landstraße
Rennweg - modern working!
- approx. 470 sq m gross leasable area
- Available By arrangement
€ 13.75 /sq m/month net

Vienna, 3. Landstraße
Rennweg - modern working!
- approx. 463 sq m gross leasable area
- Available By arrangement
€ 13.75 /sq m/month net

Vienna, 3. Landstraße
LANDMARX
- approx. 1,112 sq m gross leasable area
- Available By arrangement
€ 14.50 /sq m/month net

Vienna, 3. Landstraße
Premium Office Spaces at Fabiani House
- approx. 163 sq m gross leasable area
- Available By arrangement
€ 16.00 /sq m/month net

Vienna, 3. Landstraße
Neulinggasse office building
- approx. 159 sq m gross leasable area
- Available By arrangement
€ 1,990.73 /month net

Vienna, 3. Landstraße
Simply magnificent!
- approx. 360 sq m gross leasable area
- Available By arrangement
€ 16.50 /sq m/month net

Vienna, 3. Landstraße
QBIK
- approx. 1,316 sq m gross leasable area
- Available Nach Vereinbarung
€ 13.00 /sq m/month net

Vienna, 3. Landstraße
- approx. 401 sq m gross leasable area
- Available
€ 16.00 /sq m/month net

Vienna, 3. Landstraße
- approx. 200 sq m gross leasable area
- Available
€ 16.00 /sq m/month net

Vienna, 3. Landstraße
Modern Medical/Practice Spaces in the 3rd District – Flexibly Configurable
- approx. 318 sq m gross leasable area
- Available By arrangement
€ 17.90 /sq m/month net

Vienna, 3. Landstraße
DOCKS – 9,000 sqm of flexible workspace
- approx. 779 sq m gross leasable area
- Available By arrangement
from € 15.00 /sq m/month net

Vienna, 3. Landstraße
DOCKS – 9,000 sqm of flexible workspace
- approx. 501 sq m gross leasable area
- Available By arrangement
from € 15.00 /sq m/month net

Vienna, 3. Landstraße
DOCKS – 9,000 sqm of flexible workspace
- approx. 762 sq m gross leasable area
- Available By arrangement
from € 15.00 /sq m/month net

Vienna, 3. Landstraße
DOCKS – 9,000 sqm of flexible workspace
- approx. 443 sq m gross leasable area
- Available By arrangement
from € 15.00 /sq m/month net

Vienna, 3. Landstraße
DOCKS – 9,000 sqm of flexible workspace
- approx. 440 sq m gross leasable area
- Available By arrangement
from € 15.00 /sq m/month net

Vienna, 3. Landstraße
DOCKS – 9,000 sqm of flexible workspace
- approx. 400 sq m gross leasable area
- Available By arrangement
from € 15.00 /sq m/month net

Vienna, 3. Landstraße
VILLAGE WORKS
- approx. 377 sq m gross leasable area
- Available End of 2025
€ 18.90 /sq m/month net