- approx. 769 sq m Gross leasable area
- By arrangement Availability
Vienna, 7. Neubau
Top Corner-store on Mariahilfer Straße
-
Natalia Woskowicz, MSc n.woskowicz@otto.at +43 676 357 68 45
Facilities
Handover condition: by agreement.
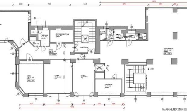
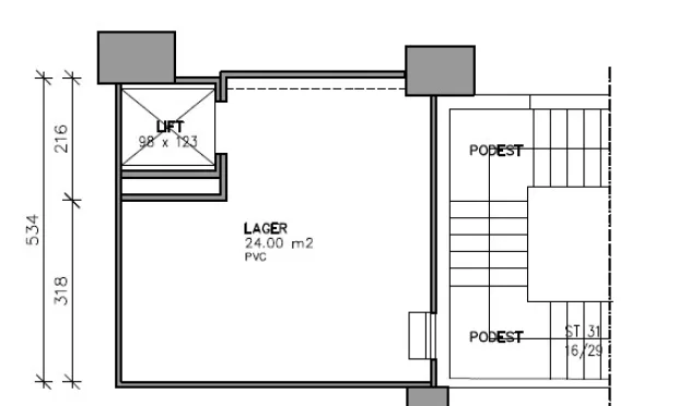
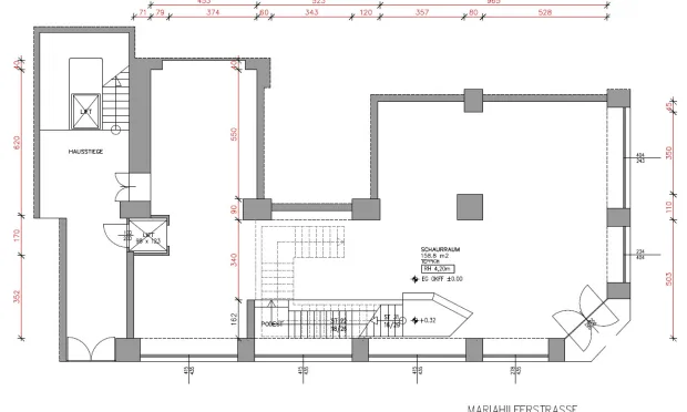
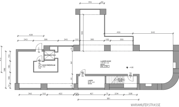
Floor plans in pdf. format can be sent on request.
For further details on Mariahilfer Strasse, we can send you a fact sheet with important figures, data and facts as well as a current key plan on request.
Location
The property is located in the middle of the street, in a high-frequency zone. The location environment will be further enhanced by new projects, such as the already open IKEA near the Westbahnhof, the Lamarr, as well as the extension of the U2/U5 in the coming months and years.
Public transport links:
- U3 Neubaugasse & Zieglergasse subway line, U6 Westbahnhof subway line.
- Streetcar lines: 6,9,18,52,60
- Bus line: 13A
- S-Bahn: Westbahnhof
Garage spaces can be rented in the surrounding area.
Details & Downloads
- Property-ID IVG-R-04336
- GLA approx. 769 sq m
- Ready-to-use By arrangement
- Net rent price per month € 35,000.00
- Net operating costs € 1,391.89
- Deposit 3-6 gross monthly rents (depending on credit rating)
- Commission 3 gross monthly rents plus 20% VAT
- EPC in progress
- fGEE in progress
Additional
Vienna, 7. Neubau
€ 35,000.00
Net rent/month excl. operating costs
-
Natalia Woskowicz, MSc n.woskowicz@otto.at +43 676 357 68 45
Property-ID IVG-R-04336
for your Request!
will get in touch with you shortly.
Thank you for your request! We will get back to you shortly. We look forward to assisting you in finding your ideal property. In the meantime, explore more attractive properties from our portfolio. Get inspired and find your favorites.
nearby

Vienna, 6. Mariahilf
Pop-up space in the centre of Mariahilfer Strasse
- approx. 341 sq m gross leasable area
- Available Immediately
€ 25,000.00 /month net

Vienna, 1. Innere Stadt
Top Location near Kohlmarkt!
- approx. 154 sq m gross leasable area
- Available By arrangement
Price on request

Vienna, 1. Innere Stadt
Top business premises in 1st district
- approx. 180 sq m gross leasable area
- Available From July 2025
€ 8,000.00 /month net

Vienna, 1. Innere Stadt
Business premises with large shop window area
- approx. 66 sq m gross leasable area
- Available By arrangement
€ 5,369.65 /month net

Vienna, 1. Innere Stadt
Representative Retail Space Near Kaufhaus Steffl
- approx. 181 sq m gross leasable area
- Available By arrangement
€ 6,320.30 /month net

Vienna, 1. Innere Stadt
Gorgeous retail space at Palais Erdödy-Fürstenberg
- approx. 170 sq m gross leasable area
- Available By arrangement
€ 7,000.00 /month net

Vienna, 1. Innere Stadt
Prestigious business premises in the 1st district
- approx. 123 sq m gross leasable area
- Available By arrangement
€ 7,408.20 /month net

Vienna, 12. Meidling
Attractive retail space in busy location
- approx. 106 sq m gross leasable area
- Available By arrangement
€ 2,328.48 /month net

Vienna, 1. Innere Stadt
Corner Retail Space in Prime Location
- approx. 141 sq m gross leasable area
- Available By arrangement
€ 4,074.50 /month net

Vienna, 1. Innere Stadt
Corner retail space near Schwedenplatz
- approx. 344 sq m gross leasable area
- Available 1st Janurary 2026
€ 6,342.84 /month net

Vienna, 3. Landstraße
VILLAGE WORKS - Retail space
- approx. 384 sq m gross leasable area
- Available End of 2025
€ 6,831.19 /month net

Vienna, 3. Landstraße
VILLAGE WORKS - Retail space
- approx. 272 sq m gross leasable area
- Available End of 2025
€ 4,761.05 /month net

Vienna, 13. Hietzing
Retail space at Ekazent Hietzing
- approx. 164 sq m gross leasable area
- Available By arrangement
€ 5,683.66 /month net

Vienna, 13. Hietzing
Retail space at Ekazent Hietzing
- approx. 29 sq m gross leasable area
- Available Q1/Q2 2025
€ 1,513.72 /month net

Vienna, 20. Brigittenau
Attractive corner store
- approx. 100 sq m gross leasable area
- Available By arrangement
€ 1,363.44 /month net

Vienna, 3. Landstraße
Restaurant area in Work-Life Building
- approx. 242 sq m gross leasable area
- Available From Q1/2026
€ 4,111.96 /month net

Vienna, 3. Landstraße
Restaurant area in Work-Life Building
- approx. 183 sq m gross leasable area
- Available From Q1/2026
€ 3,104.54 /month net

Vienna, 3. Landstraße
Commercial premises in a central location
- approx. 181 sq m gross leasable area
- Available By arrangement
€ 2,172.72 /month net

Vienna, 3. Landstraße
Commercial premises in a central location
- approx. 112 sq m gross leasable area
- Available By arrangement
€ 1,342.32 /month net

Vienna, 3. Landstraße
Commercial premises in a central location
- approx. 69 sq m gross leasable area
- Available By arrangement
€ 830.40 /month net
nearby

Vienna, 6. Mariahilf
Pop-up space in the centre of Mariahilfer Strasse
- approx. 341 sq m gross leasable area
- Available Immediately
€ 25,000.00 /month net

Vienna, 1. Innere Stadt
Top Location near Kohlmarkt!
- approx. 154 sq m gross leasable area
- Available By arrangement
Price on request

Vienna, 1. Innere Stadt
Top business premises in 1st district
- approx. 180 sq m gross leasable area
- Available From July 2025
€ 8,000.00 /month net

Vienna, 1. Innere Stadt
Business premises with large shop window area
- approx. 66 sq m gross leasable area
- Available By arrangement
€ 5,369.65 /month net

Vienna, 1. Innere Stadt
Representative Retail Space Near Kaufhaus Steffl
- approx. 181 sq m gross leasable area
- Available By arrangement
€ 6,320.30 /month net

Vienna, 1. Innere Stadt
Gorgeous retail space at Palais Erdödy-Fürstenberg
- approx. 170 sq m gross leasable area
- Available By arrangement
€ 7,000.00 /month net

Vienna, 1. Innere Stadt
Prestigious business premises in the 1st district
- approx. 123 sq m gross leasable area
- Available By arrangement
€ 7,408.20 /month net

Vienna, 12. Meidling
Attractive retail space in busy location
- approx. 106 sq m gross leasable area
- Available By arrangement
€ 2,328.48 /month net

Vienna, 1. Innere Stadt
Corner Retail Space in Prime Location
- approx. 141 sq m gross leasable area
- Available By arrangement
€ 4,074.50 /month net

Vienna, 1. Innere Stadt
Corner retail space near Schwedenplatz
- approx. 344 sq m gross leasable area
- Available 1st Janurary 2026
€ 6,342.84 /month net

Vienna, 3. Landstraße
VILLAGE WORKS - Retail space
- approx. 384 sq m gross leasable area
- Available End of 2025
€ 6,831.19 /month net

Vienna, 3. Landstraße
VILLAGE WORKS - Retail space
- approx. 272 sq m gross leasable area
- Available End of 2025
€ 4,761.05 /month net

Vienna, 13. Hietzing
Retail space at Ekazent Hietzing
- approx. 164 sq m gross leasable area
- Available By arrangement
€ 5,683.66 /month net

Vienna, 13. Hietzing
Retail space at Ekazent Hietzing
- approx. 29 sq m gross leasable area
- Available Q1/Q2 2025
€ 1,513.72 /month net

Vienna, 20. Brigittenau
Attractive corner store
- approx. 100 sq m gross leasable area
- Available By arrangement
€ 1,363.44 /month net

Vienna, 3. Landstraße
Restaurant area in Work-Life Building
- approx. 242 sq m gross leasable area
- Available From Q1/2026
€ 4,111.96 /month net

Vienna, 3. Landstraße
Restaurant area in Work-Life Building
- approx. 183 sq m gross leasable area
- Available From Q1/2026
€ 3,104.54 /month net

Vienna, 3. Landstraße
Commercial premises in a central location
- approx. 181 sq m gross leasable area
- Available By arrangement
€ 2,172.72 /month net

Vienna, 3. Landstraße
Commercial premises in a central location
- approx. 112 sq m gross leasable area
- Available By arrangement
€ 1,342.32 /month net

Vienna, 3. Landstraße
Commercial premises in a central location
- approx. 69 sq m gross leasable area
- Available By arrangement
€ 830.40 /month net