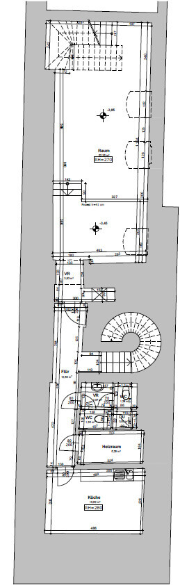
- approx. 262 sq m Gross leasable area
- Q1 2026 Availability
Vienna, 1. Innere Stadt
Exceptional commercial space in the heart of Vienna
-
Dipl. BW (BA) Anja Mutschler a.mutschler@otto.at +43 676 359 96 09
Facilities
- Spacious sales areas with street-facing display windows
- Classic period building fabric with vaulted ceilings
- Storage, staff and technical rooms in the basement
- Gas central heating
- Connection to the building’s central cooling system after refurbishment (proportionate operating costs for cooling to follow)
- Sanitary facilities and staff room available
- Advertising opportunities via mounting signs on the façade
- High footfall and attractive visibility location
Location
The retail space is located in an absolute prime city-centre location in Vienna’s 1st district. This Street connects the prestigious shopping streets Kohlmarkt, Graben and Herrengasse and is considered one of Vienna’s most exclusive retail and commercial locations.
The surroundings are characterised by high-end retail, luxury brands, banks, law firms and upscale gastronomy. Thanks to its proximity to landmarks such as the Hofburg, Freyung and the Golden Quarter, the location benefits from strong international footfall and a affluent clientele.
In the immediate vicinity are renowned brands such as Rolex, Omega, Wolford, Akris and Hugo Boss, as well as other premium retailers and boutiques.
Public transport connections:
- Underground: U3 “Herrengasse” (approx. 190 m), U1/U3 “Stephansplatz” (approx. 500 m)
- Bus: Lines 1A, 2A (approx. 220 m)
- Tram: Lines 1, 2, 71, D (approx. 750 m)
- Trains/regional services: Vienna Franz-Josefs-Bahnhof (approx. 10 minutes by underground)
Private transport:
Access via the Ring; “Am Hof” car park (approx. 750 m)
Details & Downloads
- Property-ID IVG-R-12874
- GLA approx. 262 sq m
- Sales area approx. 195 sq m
- Ready-to-use Q1 2026
- Net rent price per month Price on request
- Deposit EUR 90.500,00
- Commission 3 gross monthly rents plus 20% VAT
- EPC in progress
- fGEE in progress
Additional
Vienna, 1. Innere Stadt
Price on request
-
Dipl. BW (BA) Anja Mutschler a.mutschler@otto.at +43 676 359 96 09
Property-ID IVG-R-12874
for your Request!
will get in touch with you shortly.
Thank you for your request! We will get back to you shortly. We look forward to assisting you in finding your ideal property. In the meantime, explore more attractive properties from our portfolio. Get inspired and find your favorites.
nearby
Vienna, 1. Innere Stadt
Top business premises in 1st district
- approx. 180 sq m gross leasable area
- Available From July 2025
€ 8,000.00 /month net
Vienna, 1. Innere Stadt
Business premises with large shop window area
- approx. 66 sq m gross leasable area
- Available By arrangement
€ 5,369.65 /month net
Vienna, 1. Innere Stadt
Top Location near Kohlmarkt!
- approx. 73 sq m gross leasable area
- Available By arrangement
Price on request
Vienna, 1. Innere Stadt
Top Location near Kohlmarkt!
- approx. 154 sq m gross leasable area
- Available By arrangement
Price on request
Vienna, 1. Innere Stadt
Representative Retail Space Near Kaufhaus Steffl
- approx. 181 sq m gross leasable area
- Available By arrangement
€ 6,320.30 /month net
Vienna, 1. Innere Stadt
Gorgeous retail space at Palais Erdödy-Fürstenberg
- approx. 170 sq m gross leasable area
- Available By arrangement
€ 7,000.00 /month net
Vienna, 1. Innere Stadt
Commercial premises in central location
- approx. 387 sq m gross leasable area
- Available By arrangement
€ 4,600.00 /month net
Vienna, 6. Mariahilf
Pop-up space in the centre of Mariahilfer Strasse
- approx. 341 sq m gross leasable area
- Available Immediately
€ 25,000.00 /month net
Vienna, 7. Neubau
Top Corner-store on Mariahilfer Straße
- approx. 769 sq m gross leasable area
- Available By arrangement
€ 35,000.00 /month net
Vienna, 2. Leopoldstadt
Retail premises in the Nordbahnviertel
- approx. 409 sq m gross leasable area
- Available From April 2026
€ 6,546.24 /month net
Vienna, 20. Brigittenau
Attractive corner store
- approx. 100 sq m gross leasable area
- Available By arrangement
€ 1,363.44 /month net
Vienna, 3. Landstraße
VILLAGE WORKS - Retail space
- approx. 213 sq m gross leasable area
- Available End of 2025
€ 3,787.31 /month net
Vienna, 3. Landstraße
VILLAGE WORKS - Retail space
- approx. 384 sq m gross leasable area
- Available End of 2025
Price on request
Vienna, 3. Landstraße
VILLAGE WORKS - Retail space
- approx. 272 sq m gross leasable area
- Available End of 2025
Price on request
Vienna, 3. Landstraße
Restaurant area in Work-Life Building
- approx. 242 sq m gross leasable area
- Available From Q1/2026
€ 4,111.96 /month net
Vienna, 3. Landstraße
Restaurant area in Work-Life Building
- approx. 183 sq m gross leasable area
- Available From Q1/2026
€ 3,104.54 /month net
Vienna, 3. Landstraße
Commercial premises in a central location
- approx. 181 sq m gross leasable area
- Available By arrangement
€ 2,172.72 /month net
Vienna, 3. Landstraße
Commercial premises in a central location
- approx. 112 sq m gross leasable area
- Available By arrangement
€ 1,342.32 /month net
Vienna, 3. Landstraße
Commercial premises in a central location
- approx. 69 sq m gross leasable area
- Available By arrangement
€ 830.40 /month net
Vienna, 3. Landstraße
Commercial premises in a central location
- approx. 90 sq m gross leasable area
- Available By arrangement
€ 1,082.52 /month net
nearby
Vienna, 1. Innere Stadt
Top business premises in 1st district
- approx. 180 sq m gross leasable area
- Available From July 2025
€ 8,000.00 /month net
Vienna, 1. Innere Stadt
Business premises with large shop window area
- approx. 66 sq m gross leasable area
- Available By arrangement
€ 5,369.65 /month net
Vienna, 1. Innere Stadt
Top Location near Kohlmarkt!
- approx. 73 sq m gross leasable area
- Available By arrangement
Price on request
Vienna, 1. Innere Stadt
Top Location near Kohlmarkt!
- approx. 154 sq m gross leasable area
- Available By arrangement
Price on request
Vienna, 1. Innere Stadt
Representative Retail Space Near Kaufhaus Steffl
- approx. 181 sq m gross leasable area
- Available By arrangement
€ 6,320.30 /month net
Vienna, 1. Innere Stadt
Gorgeous retail space at Palais Erdödy-Fürstenberg
- approx. 170 sq m gross leasable area
- Available By arrangement
€ 7,000.00 /month net
Vienna, 1. Innere Stadt
Commercial premises in central location
- approx. 387 sq m gross leasable area
- Available By arrangement
€ 4,600.00 /month net
Vienna, 6. Mariahilf
Pop-up space in the centre of Mariahilfer Strasse
- approx. 341 sq m gross leasable area
- Available Immediately
€ 25,000.00 /month net
Vienna, 7. Neubau
Top Corner-store on Mariahilfer Straße
- approx. 769 sq m gross leasable area
- Available By arrangement
€ 35,000.00 /month net
Vienna, 2. Leopoldstadt
Retail premises in the Nordbahnviertel
- approx. 409 sq m gross leasable area
- Available From April 2026
€ 6,546.24 /month net
Vienna, 20. Brigittenau
Attractive corner store
- approx. 100 sq m gross leasable area
- Available By arrangement
€ 1,363.44 /month net
Vienna, 3. Landstraße
VILLAGE WORKS - Retail space
- approx. 213 sq m gross leasable area
- Available End of 2025
€ 3,787.31 /month net
Vienna, 3. Landstraße
VILLAGE WORKS - Retail space
- approx. 384 sq m gross leasable area
- Available End of 2025
Price on request
Vienna, 3. Landstraße
VILLAGE WORKS - Retail space
- approx. 272 sq m gross leasable area
- Available End of 2025
Price on request
Vienna, 3. Landstraße
Restaurant area in Work-Life Building
- approx. 242 sq m gross leasable area
- Available From Q1/2026
€ 4,111.96 /month net
Vienna, 3. Landstraße
Restaurant area in Work-Life Building
- approx. 183 sq m gross leasable area
- Available From Q1/2026
€ 3,104.54 /month net
Vienna, 3. Landstraße
Commercial premises in a central location
- approx. 181 sq m gross leasable area
- Available By arrangement
€ 2,172.72 /month net
Vienna, 3. Landstraße
Commercial premises in a central location
- approx. 112 sq m gross leasable area
- Available By arrangement
€ 1,342.32 /month net
Vienna, 3. Landstraße
Commercial premises in a central location
- approx. 69 sq m gross leasable area
- Available By arrangement
€ 830.40 /month net
Vienna, 3. Landstraße
Commercial premises in a central location
- approx. 90 sq m gross leasable area
- Available By arrangement
€ 1,082.52 /month net