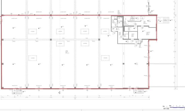
- approx. 1,268 sq m Gross leasable area
- nach Vereinbarung Availability
- 8 m Clear height
1300, Flughafen Wien
Logistics Hub at Vienna International Airport
-
Dipl. Wirt. Ing. (FH) Wolfgang von Poellnitz w.vonpoellnitz@otto.at +43 664 511 62 20
Facilities
Warehouse
- Lighting: arcade rooflights, smoke vents
- Clear height 8.00 - 8.3 m
- industrial floor
- zero level sectional doors 270/310 cm or 300/400 cm (depending on unit), 1 sectional door 450/650 cm in each of UNIT 1 warehouses
- hydraulic dock levellers
- circulating air heater (district heating)
- high voltage current
Office
- openable windows
- air conditioning
- Cable ducts
- Blinds
- Separate access
Location
The property in question is located in the 'Cargo North' area in the immediate vicinity of the premises of Vienna International Airport Schwechat.
Vienna International Airport Schwechat is located in the southeast of Vienna and offers itself above all as a location for companies in specialized industries - such as air cargo, freight forwarding and logistics, pharmaceutical companies, wholesale and retail, catering and gastronomy as well as service companies. In this context, Vienna International Airport Schwechat can be seen both as an economic engine and as a hub with regard to the Central and Eastern European markets, which gives the location an additional significance.
The connection to the individual traffic is given via the airport area and can be described as very good. The location can be reached quickly via the direct connection to the B9 Preßburger Bundesstraße as well as via the A4 Ostautobahn or S1 Wiener Außenring-Schnellstraße.
Only a few minutes walk from the property is the stop of the Vienna Airport Lines and Airliner, which connects the location with the 3rd district of Vienna and the main station.
Details & Downloads
- Property-ID IVG-I-11700/BT1-UO-S
- GLA approx. 1,268 sq m
- Office space approx. 334 sq m
- Warehouse approx. 933 sq m
- Ready-to-use nach Vereinbarung
- Net rent price per month Price on request
- Deposit 3-6 BMM (bonitätsabhängig)
- Commission 3 BMM
- EPC 40.4 kWh/sq m
- Energy demand class B
- fGEE 0.89
- Year of construction 2008
- Heating District heating
- Lighting District heating
1300, Flughafen Wien
Price on request
-
Dipl. Wirt. Ing. (FH) Wolfgang von Poellnitz w.vonpoellnitz@otto.at +43 664 511 62 20
Property-ID IVG-I-11700/BT1-UO-S
for your Request!
will get in touch with you shortly.
Thank you for your request! We will get back to you shortly. We look forward to assisting you in finding your ideal property. In the meantime, explore more attractive properties from our portfolio. Get inspired and find your favorites.
nearby
1300, Flughafen Wien
Logistics Hub at Vienna International Airport
- approx. 1,115 sq m gross leasable area
- Available nach Vereinbarung
Price on request
1300, Flughafen Wien
Logistics Hub at Vienna International Airport
- approx. 3,342 sq m gross leasable area
- Available nach Vereinbarung
Price on request
1300, Flughafen Wien
Logistics Facility / Vienna Airport
- approx. 2,277 sq m gross leasable area
- Available nach Vereinbarung
Price on request
1300, Flughafen Wien
Logistics Hub at Vienna International Airport
- approx. 1,153 sq m gross leasable area
- Available nach Vereinbarung
Price on request
1300, Flughafen Wien
Logistics Hub at Vienna International Airport
- approx. 569 sq m gross leasable area
- Available nach Vereinbarung
Price on request
1300, Flughafen Wien
Logistics Hub at Vienna International Airport
- approx. 940 sq m gross leasable area
- Available nach Vereinbarung
Price on request
2320, Schwechat
Modern offices and warehouse areas close to VIENNA Int. Airport & S1+A4 Motorways
- approx. 722 sq m gross leasable area
- Available available 1/2020
€ 3,610.00 /month net
2431, Enzersdorf an der Fischa
Logistics hall near Vienna-Schwechat Airport
- approx. 7,066 sq m gross leasable area
- Available nach Vereinbarung
Price on request
Vienna, 22. Donaustadt
Business Park Vienna North
- approx. 1,490 sq m gross leasable area
- Available by arrangement
Price on request
Vienna, 22. Donaustadt
Business Park Vienna North
- approx. 6,290 sq m gross leasable area
- Available by arrangement
Price on request
Vienna, 22. Donaustadt
Business Park Vienna North
- approx. 2,430 sq m gross leasable area
- Available by arrangement
Price on request
Vienna, 22. Donaustadt
Business Park Vienna North
- approx. 1,875 sq m gross leasable area
- Available by arrangement
Price on request
Vienna, 22. Donaustadt
Business Park Vienna North
- approx. 54,029 sq m gross leasable area
- Available by arrangement
Price on request
Vienna, 22. Donaustadt
Business Park Vienna North
- approx. 1,955 sq m gross leasable area
- Available by arrangement
Price on request
Vienna, 22. Donaustadt
Business Park Vienna North
- approx. 3,540 sq m gross leasable area
- Available by arrangement
Price on request
Vienna, 22. Donaustadt
Business Park Vienna North
- approx. 6,781 sq m gross leasable area
- Available by arrangement
Price on request
Vienna, 22. Donaustadt
Attractive commercial property in 1220 Vienna
- approx. 7,496 sq m gross leasable area
- Available Q4 2025
Price on request
Vienna, 21. Floridsdorf
Hall properties on the U1 line / Vienna North
- approx. 4,445 sq m gross leasable area
- Available nach Vereinbarung
€ 31,116.12 /month net
Vienna, 21. Floridsdorf
Hall properties on the U1 line / Vienna North
- approx. 5,022 sq m gross leasable area
- Available nach Vereinbarung
€ 35,153.72 /month net
- New
2460, Bruck an der Leitha
Logistics and Industrial park on A4 Motorway
- approx. 5,934 sq m gross leasable area
- Available Q1 or Q2 2026
Price on request
nearby
1300, Flughafen Wien
Logistics Hub at Vienna International Airport
- approx. 1,115 sq m gross leasable area
- Available nach Vereinbarung
Price on request
1300, Flughafen Wien
Logistics Hub at Vienna International Airport
- approx. 3,342 sq m gross leasable area
- Available nach Vereinbarung
Price on request
1300, Flughafen Wien
Logistics Facility / Vienna Airport
- approx. 2,277 sq m gross leasable area
- Available nach Vereinbarung
Price on request
1300, Flughafen Wien
Logistics Hub at Vienna International Airport
- approx. 1,153 sq m gross leasable area
- Available nach Vereinbarung
Price on request
1300, Flughafen Wien
Logistics Hub at Vienna International Airport
- approx. 569 sq m gross leasable area
- Available nach Vereinbarung
Price on request
1300, Flughafen Wien
Logistics Hub at Vienna International Airport
- approx. 940 sq m gross leasable area
- Available nach Vereinbarung
Price on request
2320, Schwechat
Modern offices and warehouse areas close to VIENNA Int. Airport & S1+A4 Motorways
- approx. 722 sq m gross leasable area
- Available available 1/2020
€ 3,610.00 /month net
2431, Enzersdorf an der Fischa
Logistics hall near Vienna-Schwechat Airport
- approx. 7,066 sq m gross leasable area
- Available nach Vereinbarung
Price on request
Vienna, 22. Donaustadt
Business Park Vienna North
- approx. 1,490 sq m gross leasable area
- Available by arrangement
Price on request
Vienna, 22. Donaustadt
Business Park Vienna North
- approx. 6,290 sq m gross leasable area
- Available by arrangement
Price on request
Vienna, 22. Donaustadt
Business Park Vienna North
- approx. 2,430 sq m gross leasable area
- Available by arrangement
Price on request
Vienna, 22. Donaustadt
Business Park Vienna North
- approx. 1,875 sq m gross leasable area
- Available by arrangement
Price on request
Vienna, 22. Donaustadt
Business Park Vienna North
- approx. 54,029 sq m gross leasable area
- Available by arrangement
Price on request
Vienna, 22. Donaustadt
Business Park Vienna North
- approx. 1,955 sq m gross leasable area
- Available by arrangement
Price on request
Vienna, 22. Donaustadt
Business Park Vienna North
- approx. 3,540 sq m gross leasable area
- Available by arrangement
Price on request
Vienna, 22. Donaustadt
Business Park Vienna North
- approx. 6,781 sq m gross leasable area
- Available by arrangement
Price on request
Vienna, 22. Donaustadt
Attractive commercial property in 1220 Vienna
- approx. 7,496 sq m gross leasable area
- Available Q4 2025
Price on request
Vienna, 21. Floridsdorf
Hall properties on the U1 line / Vienna North
- approx. 4,445 sq m gross leasable area
- Available nach Vereinbarung
€ 31,116.12 /month net
Vienna, 21. Floridsdorf
Hall properties on the U1 line / Vienna North
- approx. 5,022 sq m gross leasable area
- Available nach Vereinbarung
€ 35,153.72 /month net
- New
2460, Bruck an der Leitha
Logistics and Industrial park on A4 Motorway
- approx. 5,934 sq m gross leasable area
- Available Q1 or Q2 2026
Price on request