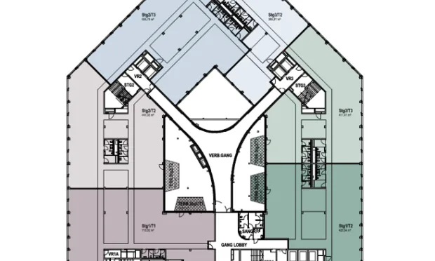
- approx. 2,344 sq m Gross leasable area
- Q4 2025 Availability
Vienna, 2. Leopoldstadt
LeopoldQuartier Office
- 
				
	  Isabella Plessl i.plessl@otto.at +43 664 885 90 403 
All Units on this Development
 
		
		
	Facilities
- Bodenaufbau: Doppelboden
- Holzoberlflächen: Stützen, Träger und Balken in Brettschichtholz
- Holz-Hybrid-Bauweise, Holzart: Fichte, FSC-zertifiziert
- Sonnenschutz: außenliegend, elektrisch, witterungsgeführt
- Geothermieanlage
- Heizung/Kühlung: Heiz- und Kühldecken, individuell regelbar
- Lüftung: Mechanische Zu- und Abluftanlage
- Manuelle Lüftung: Lüftungsflügel in jeder 2. Achse
- Mietbereichseingänge: Glas-Rahmentüren
Location
Öffentliche Anbindung:
- U-Bahn U4 Station Rossauer Lände
- Straßenbahn: Linie 31
Verkehrsanbindung:
Die Hauptverkehrsstraßen Obere Donaustraße sowie Maria-Theresien-Straße bieten für den Individualverkehr eine gute Anbindung
Distanzen:
- In den Augarten: 5 min. (zu Fuß)
- Zur U4 Rossauer Lände: 5 min. (zu Fuß)
- In den 1. Bezirk: 10 min. (zu Fuß)
- Zum Flughafen: 20 min. (Auto)
- PKW-Stellplätze: bis zu 130
- Sharing-Angebot: Elektro-Autos und E-Bikes
- E-Ladestationen: 32
- Fahrradabstellraum: im EG
Details & Downloads
- Property-ID IVG-O-04327/1
- GLA approx. 2,344 sq m
- Outside surface approx. 59 sq m
- divisible from approx. 390 sq m
- Ready-to-use Q4 2025
- Net rent price per month € 23.60 /sq m
- Net operating costs € 4.97 /sq m/month
- Deposit 3-6 BMM (bonitätsabhängig)
- Commission 3 BMM zzgl. 20 % USt.
- EPC in progress
- fGEE in progress
- Year of construction 2025
- Heating Geothermal energy
Vienna, 2. Leopoldstadt
€ 23.60 /sq m
Net rent/month excl. operating costs
- 
					
		
	  Isabella Plessl i.plessl@otto.at +43 664 885 90 403 
Property-ID IVG-O-04327/1
for your Request!
will get in touch with you shortly.
Thank you for your request! We will get back to you shortly. We look forward to assisting you in finding your ideal property. In the meantime, explore more attractive properties from our portfolio. Get inspired and find your favorites.
nearby
 
					
										
					Vienna, 2. Leopoldstadt
LeopoldQuartier Office
- approx. 506 sq m gross leasable area
- Available Q4 2025
€ 25.10 /sq m/month net
 
					
										
					Vienna, 2. Leopoldstadt
LeopoldQuartier Office
- approx. 857 sq m gross leasable area
- Available Q4 2025
€ 24.60 /sq m/month net
 
					
										
					Vienna, 2. Leopoldstadt
LeopoldQuartier Office
- approx. 429 sq m gross leasable area
- Available Q4 2025
€ 24.10 /sq m/month net
 
					
										
					Vienna, 2. Leopoldstadt
LeopoldQuartier Office
- approx. 830 sq m gross leasable area
- Available Q4 2025
€ 23.60 /sq m/month net
 
					
										
					Vienna, 2. Leopoldstadt
LeopoldQuartier Office
- approx. 3,579 sq m gross leasable area
- Available Q4 2025
€ 24.10 /sq m/month net
 
					
										
					Vienna, 2. Leopoldstadt
LeopoldQuartier Office
- approx. 3,514 sq m gross leasable area
- Available Q4 2025
€ 24.60 /sq m/month net
 
					
										
					Vienna, 2. Leopoldstadt
LeopoldQuartier Office
- approx. 3,535 sq m gross leasable area
- Available Q4 2025
€ 25.10 /sq m/month net
 
					
										
					Vienna, 2. Leopoldstadt
LeopoldQuartier Office
- approx. 3,299 sq m gross leasable area
- Available Q4 2025
€ 25.60 /sq m/month net
 
					
										
					Vienna, 2. Leopoldstadt
LeopoldQuartier Office
- approx. 2,485 sq m gross leasable area
- Available Q4 2025
€ 26.10 /sq m/month net
 
					
										
					Vienna, 2. Leopoldstadt
LeopoldQuartier Office
- approx. 857 sq m gross leasable area
- Available Q4 2025
€ 25.10 /sq m/month net
 
					
										
					Vienna, 1. Innere Stadt
High-quality office on Fleischmarkt
- approx. 638 sq m gross leasable area
- Available nach Vereinbarung
€ 24.00 /sq m/month net
 
					
										
					- New
Vienna, 1. Innere Stadt
Prestigious office space in a prime location
- approx. 277 sq m gross leasable area
- Available Nach Vereinbarung
€ 18.78 /sq m/month net
 
					
										
					Vienna, 1. Innere Stadt
Prestigious office space in a prime location
- approx. 228 sq m gross leasable area
- Available Nach Vereinbarung
€ 18.37 /sq m/month net
 
					
										
					Vienna, 1. Innere Stadt
Prestigious office space in a prime location
- approx. 120 sq m gross leasable area
- Available Nach Vereinbarung
€ 18.27 /sq m/month net
 
					
										
					Vienna, 1. Innere Stadt
Prestigious office space in a prime location
- approx. 108 sq m gross leasable area
- Available Nach Vereinbarung
€ 18.43 /sq m/month net
 
					
										
					Vienna, 1. Innere Stadt
Prime office address in Vienna’s city center!
- approx. 126 sq m gross leasable area
- Available Effective immediatel
€ 19.00 /sq m/month net
 
					
										
					Vienna, 1. Innere Stadt
- approx. 650 sq m gross leasable area
- Available
€ 23.50 /sq m/month net
 
					
										
					Vienna, 1. Innere Stadt
Elegant Historic Office near Stephansplatz
- approx. 290 sq m gross leasable area
- Available By arrangement
€ 35.00 /sq m/month net
 
					
										
					Vienna, 3. Landstraße
Modern office spaces at VIE
- approx. 1,624 sq m gross leasable area
- Available By arrangement
€ 16.90 /sq m/month net
 
					
										
					Vienna, 4. Wieden
Ensemble Schwarzenbergplatz
- approx. 514 sq m gross leasable area
- Available By arrangement
€ 20.50 /sq m/month net
nearby
 
					
										
					Vienna, 2. Leopoldstadt
LeopoldQuartier Office
- approx. 506 sq m gross leasable area
- Available Q4 2025
€ 25.10 /sq m/month net
 
					
										
					Vienna, 2. Leopoldstadt
LeopoldQuartier Office
- approx. 857 sq m gross leasable area
- Available Q4 2025
€ 24.60 /sq m/month net
 
					
										
					Vienna, 2. Leopoldstadt
LeopoldQuartier Office
- approx. 429 sq m gross leasable area
- Available Q4 2025
€ 24.10 /sq m/month net
 
					
										
					Vienna, 2. Leopoldstadt
LeopoldQuartier Office
- approx. 830 sq m gross leasable area
- Available Q4 2025
€ 23.60 /sq m/month net
 
					
										
					Vienna, 2. Leopoldstadt
LeopoldQuartier Office
- approx. 3,579 sq m gross leasable area
- Available Q4 2025
€ 24.10 /sq m/month net
 
					
										
					Vienna, 2. Leopoldstadt
LeopoldQuartier Office
- approx. 3,514 sq m gross leasable area
- Available Q4 2025
€ 24.60 /sq m/month net
 
					
										
					Vienna, 2. Leopoldstadt
LeopoldQuartier Office
- approx. 3,535 sq m gross leasable area
- Available Q4 2025
€ 25.10 /sq m/month net
 
					
										
					Vienna, 2. Leopoldstadt
LeopoldQuartier Office
- approx. 3,299 sq m gross leasable area
- Available Q4 2025
€ 25.60 /sq m/month net
 
					
										
					Vienna, 2. Leopoldstadt
LeopoldQuartier Office
- approx. 2,485 sq m gross leasable area
- Available Q4 2025
€ 26.10 /sq m/month net
 
					
										
					Vienna, 2. Leopoldstadt
LeopoldQuartier Office
- approx. 857 sq m gross leasable area
- Available Q4 2025
€ 25.10 /sq m/month net
 
					
										
					Vienna, 1. Innere Stadt
High-quality office on Fleischmarkt
- approx. 638 sq m gross leasable area
- Available nach Vereinbarung
€ 24.00 /sq m/month net
 
					
										
					- New
Vienna, 1. Innere Stadt
Prestigious office space in a prime location
- approx. 277 sq m gross leasable area
- Available Nach Vereinbarung
€ 18.78 /sq m/month net
 
					
										
					Vienna, 1. Innere Stadt
Prestigious office space in a prime location
- approx. 228 sq m gross leasable area
- Available Nach Vereinbarung
€ 18.37 /sq m/month net
 
					
										
					Vienna, 1. Innere Stadt
Prestigious office space in a prime location
- approx. 120 sq m gross leasable area
- Available Nach Vereinbarung
€ 18.27 /sq m/month net
 
					
										
					Vienna, 1. Innere Stadt
Prestigious office space in a prime location
- approx. 108 sq m gross leasable area
- Available Nach Vereinbarung
€ 18.43 /sq m/month net
 
					
										
					Vienna, 1. Innere Stadt
Prime office address in Vienna’s city center!
- approx. 126 sq m gross leasable area
- Available Effective immediatel
€ 19.00 /sq m/month net
 
					
										
					Vienna, 1. Innere Stadt
- approx. 650 sq m gross leasable area
- Available
€ 23.50 /sq m/month net
 
					
										
					Vienna, 1. Innere Stadt
Elegant Historic Office near Stephansplatz
- approx. 290 sq m gross leasable area
- Available By arrangement
€ 35.00 /sq m/month net
 
					
										
					Vienna, 3. Landstraße
Modern office spaces at VIE
- approx. 1,624 sq m gross leasable area
- Available By arrangement
€ 16.90 /sq m/month net
 
					
										
					Vienna, 4. Wieden
Ensemble Schwarzenbergplatz
- approx. 514 sq m gross leasable area
- Available By arrangement
€ 20.50 /sq m/month net
 
				
			 
				
			 
				
			 
				
			 
				
			 
				
			 
				
			 
				
			 
				
			 
							
						 
							
						 
							
						 
						
					 
						
					