- ca. 1.174 m² Nutzfläche
- Q4 2025 Verfügbarkeit
Wien, 23. Liesing
Silo Next
-
Philipp Granabetter, BSc (WU) MA p.granabetter@otto.at +43 664 851 64 41
Lage
Der Standort besticht durch seine hervorragende Lage mit erstklassiger Verkehrsanbindung – öffentlich wie individuell – und mit der geplanten wie bestehenden Infrastruktur.
Die Stadtautobahnen und die SCS, Österreichs größtes Shopping- und Entertainmentcenter, sind in wenigen Minuten erreichbar. Zahlreiche Parkmöglichkeiten in den Tiefgaragen machen die Anreise für Mitarbeiter und Gäste attraktiv.
Die campusartige Struktur zwischen den drei einzelnen Gebäuden schafft unterschiedlich gestaltete grüne Freiräume. Die Silo Liesing Offices vereinen Business, Urbanität sowie Lebensqualität auf höchstem Niveau und werden als zukunftsweisender Unternehmensstandort neue Maßstäbe im Süden Wiens setzen.
ÖFFENTLICHE VERKEHRSANBINDUNG
- U-Bahn: U6 - Station Perfektastraße befindet sich in unmittelbarer Nähe
- Bus: 64A, 255, 266, N64
Details & Downloads
- Objektnummer IVG-O-12105/4
- Nutzfläche ca. 1.174 m²
- Verfügbar ab Q4 2025
- Nettomiete/Monat Preis auf Anfrage
- Kaution
- Provision
- HWB wird nachgereicht
- fGEE wird nachgereicht
-
Alle Grundrisse ZIP Archiv
-
Grundriss Musterplan JPG · 140 KB
-
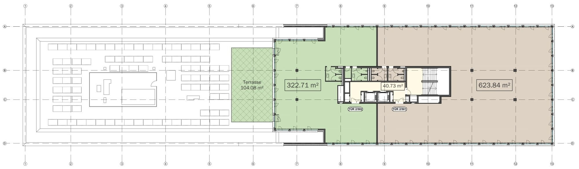
Grundriss OG6 - 2 Mieter JPG · 67 KB
-
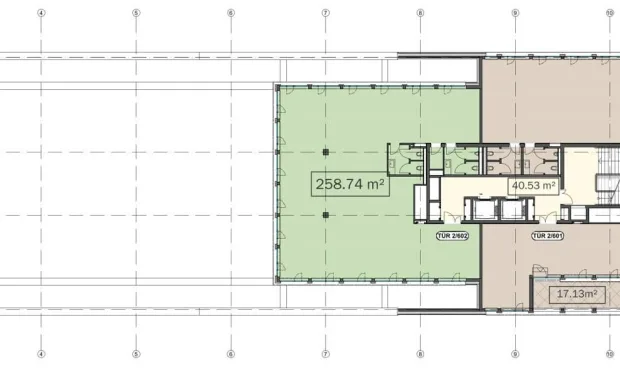
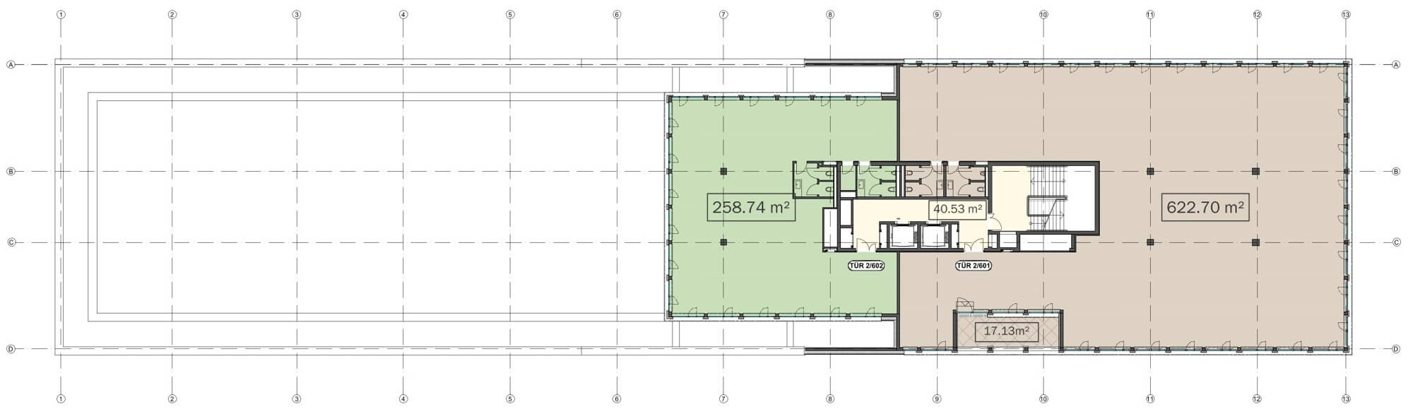
Grundriss OG5 - 2 Mieter JPG · 94 KB
-
Grundriss OG4 - 3 Mieter JPG · 80 KB
-
Grundriss OG3 - 2 Mieter JPG · 72 KB
-
Grundriss OG2 - 2 Mieter JPG · 73 KB
-
Grundriss OG1 - 2 Mieter JPG · 70 KB
-
Grundriss EG - 3 Mieter JPG · 87 KB
-
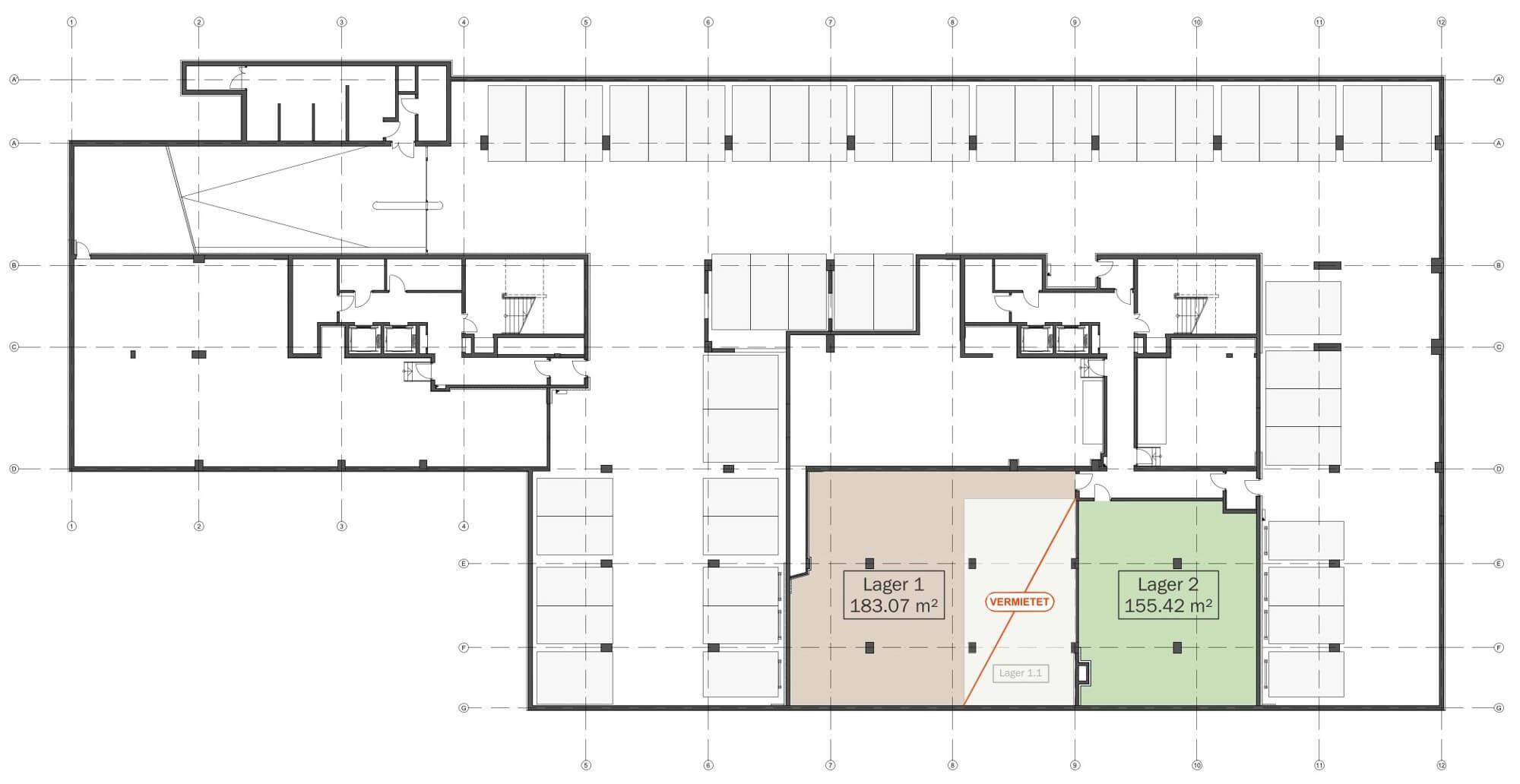
Grundriss UG JPG · 100 KB
-
Grundriss MUSTERBELEGUNGSPLAN OG3 - 2 MIETER JPG · 126 KB
-
Grundriss MUSTERBELEGUNGSPLAN OG5 - 2 Mieter JPG · 122 KB
Wien, 23. Liesing
Preis auf Anfrage
-
Philipp Granabetter, BSc (WU) MA p.granabetter@otto.at +43 664 851 64 41
Objekt Nr. IVG-O-12105/4
für Ihre Anfrage!
wird sich in Kürze bei Ihnen melden.
Vielen Dank für Ihre Anfrage! In Kürze melden wir uns bei Ihnen. Wir freuen uns darauf, Ihnen bei der Suche nach Ihrer Wunschimmobilie zu helfen. Entdecken Sie in der Zwischenzeit weitere attraktive Immobilien aus unserem Portfolio. Lassen Sie sich inspirieren und finden Sie Ihre Favoriten.
in der Nähe
Wien, 23. Liesing
Silo Next
- ca. 474 m² Nutzfläche
- Verfügbar Q4 2025
Preis auf Anfrage
Wien, 23. Liesing
Silo Next
- ca. 947 m² Nutzfläche
- Verfügbar Q4 2025
Preis auf Anfrage
Wien, 23. Liesing
SILO Plus
- ca. 348 m² Nutzfläche
- Verfügbar nach Vereinbarung
€ 14,00 /m²/Monat netto
Wien, 23. Liesing
SILO Plus
- ca. 469 m² Nutzfläche
- Verfügbar nach Vereinbarung
€ 13,90 /m²/Monat netto
Wien, 23. Liesing
CITY PARK VIENNA
- ca. 1.170 m² Nutzfläche
- Verfügbar Nach Vereinbarung
€ 13,25 /m²/Monat netto
Wien, 23. Liesing
Fabrik1230 - Das neue Grätzlzentrum
- ca. 164 m² Nutzfläche
- Verfügbar Ab sofort
€ 18,00 /m²/Monat netto
Wien, 23. Liesing
Fabrik1230 - Das neue Grätzlzentrum
- ca. 170 m² Nutzfläche
- Verfügbar Ab sofort
€ 16,00 /m²/Monat netto
Wien, 23. Liesing
Fabrik1230 - Das neue Grätzlzentrum
- ca. 446 m² Nutzfläche
- Verfügbar Ab sofort
€ 16,00 /m²/Monat netto
Wien, 23. Liesing
Fabrik1230 - Das neue Grätzlzentrum
- ca. 366 m² Nutzfläche
- Verfügbar Nach Vereinbarung
€ 16,00 /m²/Monat netto
Wien, 23. Liesing
Fabrik1230 - Das neue Grätzlzentrum
- ca. 24 m² Nutzfläche
- Verfügbar Nach Vereinbarung
€ 25,00 /m²/Monat netto
Wien, 23. Liesing
Fabrik1230 - Das neue Grätzlzentrum
- ca. 84 m² Nutzfläche
- Verfügbar Nach Vereinbarung
€ 16,00 /m²/Monat netto
Wien, 23. Liesing
Fabrik1230 - Das neue Grätzlzentrum
- ca. 505 m² Nutzfläche
- Verfügbar Nach Vereinbarung
€ 16,00 /m²/Monat netto
Wien, 12. Meidling
Günstige Büros mit guter Anbindung in Meidling/ Altmannsdorfer Ast
- ca. 227 m² Nutzfläche
- Verfügbar Ab 01.02.2026
€ 11,00 /m²/Monat netto
Wien, 12. Meidling
Inno Center Retro
- ca. 308 m² Nutzfläche
- Verfügbar Nach Vereinbarung
€ 14,50 /m²/Monat netto
Wien, 12. Meidling
Inno Center Retro
- ca. 224 m² Nutzfläche
- Verfügbar Nach Vereinbarung
€ 14,50 /m²/Monat netto
Wien, 12. Meidling
Inno Center Retro
- ca. 617 m² Nutzfläche
- Verfügbar Nach Vereinbarung
€ 14,10 /m²/Monat netto
Wien, 12. Meidling
Inno Center Retro
- ca. 4.489 m² Nutzfläche
- Verfügbar Nach Vereinbarung
€ 64.728,42 /Monat netto
Wien, 12. Meidling
EURO PLAZA 5 - Modernes Arbeiten mit Campus-Feeling
- ca. 283 m² Nutzfläche
- Verfügbar Nach Vereinbarung
€ 15,90 /m²/Monat netto
Wien, 12. Meidling
EURO PLAZA 5 - Modernes Arbeiten mit Campus-Feeling
- ca. 896 m² Nutzfläche
- Verfügbar Nach Vereinbarung
€ 15,90 /m²/Monat netto
Wien, 12. Meidling
EURO PLAZA 5 - Modernes Arbeiten mit Campus-Feeling
- ca. 571 m² Nutzfläche
- Verfügbar 03 / 2025
€ 15,90 /m²/Monat netto
in der Nähe
Wien, 23. Liesing
Silo Next
- ca. 474 m² Nutzfläche
- Verfügbar Q4 2025
Preis auf Anfrage
Wien, 23. Liesing
Silo Next
- ca. 947 m² Nutzfläche
- Verfügbar Q4 2025
Preis auf Anfrage
Wien, 23. Liesing
SILO Plus
- ca. 348 m² Nutzfläche
- Verfügbar nach Vereinbarung
€ 14,00 /m²/Monat netto
Wien, 23. Liesing
SILO Plus
- ca. 469 m² Nutzfläche
- Verfügbar nach Vereinbarung
€ 13,90 /m²/Monat netto
Wien, 23. Liesing
CITY PARK VIENNA
- ca. 1.170 m² Nutzfläche
- Verfügbar Nach Vereinbarung
€ 13,25 /m²/Monat netto
Wien, 23. Liesing
Fabrik1230 - Das neue Grätzlzentrum
- ca. 164 m² Nutzfläche
- Verfügbar Ab sofort
€ 18,00 /m²/Monat netto
Wien, 23. Liesing
Fabrik1230 - Das neue Grätzlzentrum
- ca. 170 m² Nutzfläche
- Verfügbar Ab sofort
€ 16,00 /m²/Monat netto
Wien, 23. Liesing
Fabrik1230 - Das neue Grätzlzentrum
- ca. 446 m² Nutzfläche
- Verfügbar Ab sofort
€ 16,00 /m²/Monat netto
Wien, 23. Liesing
Fabrik1230 - Das neue Grätzlzentrum
- ca. 366 m² Nutzfläche
- Verfügbar Nach Vereinbarung
€ 16,00 /m²/Monat netto
Wien, 23. Liesing
Fabrik1230 - Das neue Grätzlzentrum
- ca. 24 m² Nutzfläche
- Verfügbar Nach Vereinbarung
€ 25,00 /m²/Monat netto
Wien, 23. Liesing
Fabrik1230 - Das neue Grätzlzentrum
- ca. 84 m² Nutzfläche
- Verfügbar Nach Vereinbarung
€ 16,00 /m²/Monat netto
Wien, 23. Liesing
Fabrik1230 - Das neue Grätzlzentrum
- ca. 505 m² Nutzfläche
- Verfügbar Nach Vereinbarung
€ 16,00 /m²/Monat netto
Wien, 12. Meidling
Günstige Büros mit guter Anbindung in Meidling/ Altmannsdorfer Ast
- ca. 227 m² Nutzfläche
- Verfügbar Ab 01.02.2026
€ 11,00 /m²/Monat netto
Wien, 12. Meidling
Inno Center Retro
- ca. 308 m² Nutzfläche
- Verfügbar Nach Vereinbarung
€ 14,50 /m²/Monat netto
Wien, 12. Meidling
Inno Center Retro
- ca. 224 m² Nutzfläche
- Verfügbar Nach Vereinbarung
€ 14,50 /m²/Monat netto
Wien, 12. Meidling
Inno Center Retro
- ca. 617 m² Nutzfläche
- Verfügbar Nach Vereinbarung
€ 14,10 /m²/Monat netto
Wien, 12. Meidling
Inno Center Retro
- ca. 4.489 m² Nutzfläche
- Verfügbar Nach Vereinbarung
€ 64.728,42 /Monat netto
Wien, 12. Meidling
EURO PLAZA 5 - Modernes Arbeiten mit Campus-Feeling
- ca. 283 m² Nutzfläche
- Verfügbar Nach Vereinbarung
€ 15,90 /m²/Monat netto
Wien, 12. Meidling
EURO PLAZA 5 - Modernes Arbeiten mit Campus-Feeling
- ca. 896 m² Nutzfläche
- Verfügbar Nach Vereinbarung
€ 15,90 /m²/Monat netto
Wien, 12. Meidling
EURO PLAZA 5 - Modernes Arbeiten mit Campus-Feeling
- ca. 571 m² Nutzfläche
- Verfügbar 03 / 2025
€ 15,90 /m²/Monat netto