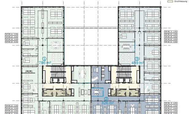
- ca. 469 m² Nutzfläche
 - nach Vereinbarung Verfügbarkeit
 
Wien, 23. Liesing
SILO Plus
- 
				
	
	Isabella Plessl i.plessl@otto.at +43 664 885 90 403
 
Ausstattung
Innovative Arbeitsräume für morgen
- Zukunftsweisende Gebäudetechnik
 - Nutzung erneuerbarer Ressourcen (Geothermie, Photovoltaik)
 - Bestes Raumklima durch ökologische Baustoffe
 - Thermische Behaglichkeit durch kontrollierte Lüftung
 - Großzügige Raumhöhen
 - Modernste Kommunikationstechnologien
 
Key Facts
- Repräsentatives urbanes Architekturkonzept
 - Direkte U-Bahnanbindung (U6)
 - Schnelle Erreichbarkeit von Flughafen, Hauptbahnhof und Stadtzentrum mit dem PKW
 - Innovativer Standort im Süden Wiens
 - Niedrige Betriebskosten
 - ÖGNI-Zertifizierung
 - Außenjalousien für Sonnen- und Blendschutz
 - Lichtdurchflutete Büros dank großzügiger Raumhöhe (2,91 m)
 - Kantine für 200 Personen in der Nähe
 - grüne Erholungszone zwischen den drei Gebäuden
 
Lage
Der Standort besticht durch seine hervorragende Lage mit erstklassiger Verkehrsanbindung – öffentlich wie individuell – und mit der geplanten wie bestehenden Infrastruktur. 
Die Stadtautobahnen und die SCS, Österreichs größtes Shopping- und Entertainmentcenter, sind in wenigen Minuten erreichbar. Zahlreiche Parkmöglichkeiten in den Tiefgaragen machen die Anreise für Mitarbeiter und Gäste attraktiv. 
Die campusartige Struktur zwischen den drei einzelnen Gebäuden schafft unterschiedlich gestaltete grüne Freiräume. Die Silo Liesing Offices vereinen Business, Urbanität sowie Lebensqualität auf höchstem Niveau und werden als zukunftsweisender Unternehmensstandort neue Maßstäbe im Süden Wiens setzen.
VERKEHRSANBINDUNG
U-Bahn: U6
Bus: 64A, 255, 266, N64
U-Bahn-Station Perfektastraße befindet sich in unmittelbarer Nähe
Details & Downloads
- Objektnummer GW-19-023111/23
 - Nutzfläche ca. 469 m²
 - Verfügbar ab nach Vereinbarung
 - Nettomiete/Monat € 13,90 /m²
 - Netto-Betriebskosten/Monat € 2,90 /m²
 - Kaution 3-6 BMM (bonitätsabhängig)
 - Provision 3 BMM zzgl. 20 % USt.
 - HWB 23,0 kWh/m²
 - Energieklasse A
 - fGEE 0,58
 
Wien, 23. Liesing
€ 13,90 /m²
Nettomiete/Monat zzgl. BK, zzgl. USt.
- 
					
		
	
	Isabella Plessl i.plessl@otto.at +43 664 885 90 403
 
Objekt Nr. GW-19-023111/23
für Ihre Anfrage!
wird sich in Kürze bei Ihnen melden.
Vielen Dank für Ihre Anfrage! In Kürze melden wir uns bei Ihnen. Wir freuen uns darauf, Ihnen bei der Suche nach Ihrer Wunschimmobilie zu helfen. Entdecken Sie in der Zwischenzeit weitere attraktive Immobilien aus unserem Portfolio. Lassen Sie sich inspirieren und finden Sie Ihre Favoriten.
in der Nähe
Wien, 23. Liesing
SILO Plus
- ca. 348 m² Nutzfläche
 - Verfügbar nach Vereinbarung
 
€ 14,00 /m²/Monat netto
Wien, 23. Liesing
CITY PARK VIENNA
- ca. 1.170 m² Nutzfläche
 - Verfügbar Nach Vereinbarung
 
€ 13,25 /m²/Monat netto
Wien, 23. Liesing
Fabrik1230 - Das neue Grätzlzentrum
- ca. 164 m² Nutzfläche
 - Verfügbar Ab sofort
 
€ 18,00 /m²/Monat netto
Wien, 23. Liesing
Fabrik1230 - Das neue Grätzlzentrum
- ca. 170 m² Nutzfläche
 - Verfügbar Ab sofort
 
€ 16,00 /m²/Monat netto
Wien, 23. Liesing
Büros in der Slamastraße zu mieten!
- ca. 4.800 m² Nutzfläche
 - Verfügbar nach Vereinbarung
 
€ 7,00 /m²/Monat netto
Wien, 23. Liesing
Büros in der Slamastraße zu mieten!
- ca. 582 m² Nutzfläche
 - Verfügbar nach Vereinbarung
 
€ 7,00 /m²/Monat netto
Wien, 23. Liesing
Büros in der Slamastraße zu mieten!
- ca. 1.500 m² Nutzfläche
 - Verfügbar nach Vereinbarung
 
€ 7,00 /m²/Monat netto
Wien, 23. Liesing
Büros in der Slamastraße zu mieten!
- ca. 1.020 m² Nutzfläche
 - Verfügbar nach Vereinbarung
 
€ 7,00 /m²/Monat netto
Wien, 23. Liesing
Büros in der Slamastraße zu mieten!
- ca. 363 m² Nutzfläche
 - Verfügbar nach Vereinbarung
 
€ 7,00 /m²/Monat netto
Wien, 23. Liesing
Büros in der Slamastraße zu mieten!
- ca. 1.485 m² Nutzfläche
 - Verfügbar nach Vereinbarung
 
€ 7,00 /m²/Monat netto
Wien, 23. Liesing
Büros in der Slamastraße zu mieten!
- ca. 540 m² Nutzfläche
 - Verfügbar nach Vereinbarung
 
€ 7,00 /m²/Monat netto
Wien, 23. Liesing
Fabrik1230 - Das neue Grätzlzentrum
- ca. 84 m² Nutzfläche
 - Verfügbar Nach Vereinbarung
 
€ 16,00 /m²/Monat netto
Wien, 23. Liesing
Fabrik1230 - Das neue Grätzlzentrum
- ca. 505 m² Nutzfläche
 - Verfügbar Nach Vereinbarung
 
€ 16,00 /m²/Monat netto
Wien, 12. Meidling
Günstige Büros mit guter Anbindung in Meidling/ Altmannsdorfer Ast
- ca. 255 m² Nutzfläche
 - Verfügbar Nach Vereinbarung
 
€ 11,00 /m²/Monat netto
Wien, 12. Meidling
Inno Center Retro
- ca. 308 m² Nutzfläche
 - Verfügbar Nach Vereinbarung
 
€ 14,50 /m²/Monat netto
Wien, 12. Meidling
Inno Center Retro
- ca. 646 m² Nutzfläche
 - Verfügbar Nach Vereinbarung
 
€ 14,10 /m²/Monat netto
Wien, 12. Meidling
Inno Center Retro
- ca. 224 m² Nutzfläche
 - Verfügbar Nach Vereinbarung
 
€ 14,50 /m²/Monat netto
Wien, 12. Meidling
Inno Center Retro
- ca. 617 m² Nutzfläche
 - Verfügbar Nach Vereinbarung
 
€ 14,10 /m²/Monat netto
Wien, 12. Meidling
Inno Center Retro
- ca. 4.489 m² Nutzfläche
 - Verfügbar Nach Vereinbarung
 
€ 64.728,42 /Monat netto
Wien, 12. Meidling
Euro Plaza 5 - Modernes Arbeiten mit Campus-Feeling
- ca. 283 m² Nutzfläche
 - Verfügbar Nach Vereinbarung
 
€ 15,90 /m²/Monat netto
in der Nähe
Wien, 23. Liesing
SILO Plus
- ca. 348 m² Nutzfläche
 - Verfügbar nach Vereinbarung
 
€ 14,00 /m²/Monat netto
Wien, 23. Liesing
CITY PARK VIENNA
- ca. 1.170 m² Nutzfläche
 - Verfügbar Nach Vereinbarung
 
€ 13,25 /m²/Monat netto
Wien, 23. Liesing
Fabrik1230 - Das neue Grätzlzentrum
- ca. 164 m² Nutzfläche
 - Verfügbar Ab sofort
 
€ 18,00 /m²/Monat netto
Wien, 23. Liesing
Fabrik1230 - Das neue Grätzlzentrum
- ca. 170 m² Nutzfläche
 - Verfügbar Ab sofort
 
€ 16,00 /m²/Monat netto
Wien, 23. Liesing
Büros in der Slamastraße zu mieten!
- ca. 4.800 m² Nutzfläche
 - Verfügbar nach Vereinbarung
 
€ 7,00 /m²/Monat netto
Wien, 23. Liesing
Büros in der Slamastraße zu mieten!
- ca. 582 m² Nutzfläche
 - Verfügbar nach Vereinbarung
 
€ 7,00 /m²/Monat netto
Wien, 23. Liesing
Büros in der Slamastraße zu mieten!
- ca. 1.500 m² Nutzfläche
 - Verfügbar nach Vereinbarung
 
€ 7,00 /m²/Monat netto
Wien, 23. Liesing
Büros in der Slamastraße zu mieten!
- ca. 1.020 m² Nutzfläche
 - Verfügbar nach Vereinbarung
 
€ 7,00 /m²/Monat netto
Wien, 23. Liesing
Büros in der Slamastraße zu mieten!
- ca. 363 m² Nutzfläche
 - Verfügbar nach Vereinbarung
 
€ 7,00 /m²/Monat netto
Wien, 23. Liesing
Büros in der Slamastraße zu mieten!
- ca. 1.485 m² Nutzfläche
 - Verfügbar nach Vereinbarung
 
€ 7,00 /m²/Monat netto
Wien, 23. Liesing
Büros in der Slamastraße zu mieten!
- ca. 540 m² Nutzfläche
 - Verfügbar nach Vereinbarung
 
€ 7,00 /m²/Monat netto
Wien, 23. Liesing
Fabrik1230 - Das neue Grätzlzentrum
- ca. 84 m² Nutzfläche
 - Verfügbar Nach Vereinbarung
 
€ 16,00 /m²/Monat netto
Wien, 23. Liesing
Fabrik1230 - Das neue Grätzlzentrum
- ca. 505 m² Nutzfläche
 - Verfügbar Nach Vereinbarung
 
€ 16,00 /m²/Monat netto
Wien, 12. Meidling
Günstige Büros mit guter Anbindung in Meidling/ Altmannsdorfer Ast
- ca. 255 m² Nutzfläche
 - Verfügbar Nach Vereinbarung
 
€ 11,00 /m²/Monat netto
Wien, 12. Meidling
Inno Center Retro
- ca. 308 m² Nutzfläche
 - Verfügbar Nach Vereinbarung
 
€ 14,50 /m²/Monat netto
Wien, 12. Meidling
Inno Center Retro
- ca. 646 m² Nutzfläche
 - Verfügbar Nach Vereinbarung
 
€ 14,10 /m²/Monat netto
Wien, 12. Meidling
Inno Center Retro
- ca. 224 m² Nutzfläche
 - Verfügbar Nach Vereinbarung
 
€ 14,50 /m²/Monat netto
Wien, 12. Meidling
Inno Center Retro
- ca. 617 m² Nutzfläche
 - Verfügbar Nach Vereinbarung
 
€ 14,10 /m²/Monat netto
Wien, 12. Meidling
Inno Center Retro
- ca. 4.489 m² Nutzfläche
 - Verfügbar Nach Vereinbarung
 
€ 64.728,42 /Monat netto
Wien, 12. Meidling
Euro Plaza 5 - Modernes Arbeiten mit Campus-Feeling
- ca. 283 m² Nutzfläche
 - Verfügbar Nach Vereinbarung
 
€ 15,90 /m²/Monat netto