- ca. 592 m² Nutzfläche
- Ende 2025 Verfügbarkeit
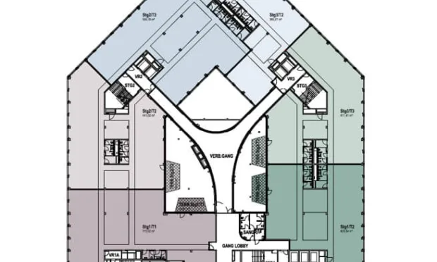
Wien, 2. Leopoldstadt
LeopoldQuartier Office | Modernes Büro in Holzhybridbauweise | Nahe Donaukanal
-
Isabella Plessl i.plessl@otto.at +43 664 885 90 403
Alle Immobilien zu diesem Projekt
Ausstattung
- Bodenaufbau: Doppelboden
- Holzoberlflächen: Stützen, Träger und Balken in Brettschichtholz
- Holz-Hybrid-Bauweise, Holzart: Fichte, FSC-zertifiziert
- Sonnenschutz: außenliegend, elektrisch, witterungsgeführt
- Geothermieanlage
- Heizung/Kühlung: Heiz- und Kühldecken, individuell regelbar
- Lüftung: Mechanische Zu- und Abluftanlage
- Manuelle Lüftung: Lüftungsflügel in jeder 2. Achse
- Mietbereichseingänge: Glas-Rahmentüren
Lage
Öffentliche Anbindung:
- U-Bahn U4 Station Rossauer Lände
- Straßenbahn: Linie 31
Verkehrsanbindung:
Die Hauptverkehrsstraßen Obere Donaustraße sowie Maria-Theresien-Straße bieten für den Individualverkehr eine gute Anbindung
Distanzen:
- In den Augarten: 5 min. (zu Fuß)
- Zur U4 Rossauer Lände: 5 min. (zu Fuß)
- In den 1. Bezirk: 10 min. (zu Fuß)
- Zum Flughafen: 20 min. (Auto)
- PKW-Stellplätze: bis zu 130
- Sharing-Angebot: Elektro-Autos und E-Bikes
- E-Ladestationen: 32
- Fahrradabstellraum: im EG
Details & Downloads
- Objektnummer IVG-O-04327/2_T3
- Nutzfläche ca. 592 m²
- teilbar ab ca. 390 m²
- Verfügbar ab Ende 2025
- Nettomiete/Monat € 23,60 /m²
- Netto-Betriebskosten/Monat € 4,97 /m²
- Kaution 3-6 Bruttomonatsmieten
- Provision 3 BMM zzgl. 20 % USt.
- HWB 27,7 kWh/m²
- Energieklasse B
- fGEE 0,65
- Baujahr 2025
- Heizung Geothermie
Wien, 2. Leopoldstadt
€ 23,60 /m²
Nettomiete/Monat zzgl. BK, zzgl. USt.
-
Isabella Plessl i.plessl@otto.at +43 664 885 90 403
Objekt Nr. IVG-O-04327/2_T3
für Ihre Anfrage!
wird sich in Kürze bei Ihnen melden.
Vielen Dank für Ihre Anfrage! In Kürze melden wir uns bei Ihnen. Wir freuen uns darauf, Ihnen bei der Suche nach Ihrer Wunschimmobilie zu helfen. Entdecken Sie in der Zwischenzeit weitere attraktive Immobilien aus unserem Portfolio. Lassen Sie sich inspirieren und finden Sie Ihre Favoriten.
in der Nähe
- Neu
Wien, 2. Leopoldstadt
LeopoldQuartier Office
- ca. 560 m² Nutzfläche
- Verfügbar Ende 2025
€ 24,10 /m²/Monat netto
- Neu
Wien, 2. Leopoldstadt
LeopoldQuartier Office
- ca. 524 m² Nutzfläche
- Verfügbar Ende 2025
€ 24,10 /m²/Monat netto
- Neu
Wien, 2. Leopoldstadt
LeopoldQuartier Office
- ca. 497 m² Nutzfläche
- Verfügbar Ende 2025
€ 24,10 /m²/Monat netto
- Neu
Wien, 2. Leopoldstadt
LeopoldQuartier Office
- ca. 548 m² Nutzfläche
- Verfügbar Ende 2025
€ 24,10 /m²/Monat netto
- Neu
Wien, 2. Leopoldstadt
LeopoldQuartier Office
- ca. 586 m² Nutzfläche
- Verfügbar Ende 2025
€ 24,10 /m²/Monat netto
- Neu
Wien, 2. Leopoldstadt
LeopoldQuartier Office | Modernes Büro in Holzhybridbauweise | Nahe Donaukanal
- ca. 449 m² Nutzfläche
- Verfügbar Ende 2025
€ 23,60 /m²/Monat netto
- Neu
Wien, 2. Leopoldstadt
LeopoldQuartier Office | Modernes Büro in Holzhybridbauweise | Nahe Donaukanal
- ca. 469 m² Nutzfläche
- Verfügbar Ende 2025
€ 23,60 /m²/Monat netto
- Neu
Wien, 2. Leopoldstadt
LeopoldQuartier Office | Modernes Büro in Holzhybridbauweise | Nahe Donaukanal
- ca. 439 m² Nutzfläche
- Verfügbar Ende 2025
€ 23,60 /m²/Monat netto
- Neu
Wien, 2. Leopoldstadt
LeopoldQuartier Office | Modernes Büro in Holzhybridbauweise | Nahe Donaukanal
- ca. 390 m² Nutzfläche
- Verfügbar Ende 2025
€ 23,60 /m²/Monat netto
Wien, 2. Leopoldstadt
LeopoldQuartier Office | Modernes Büro in Holzhybridbauweise | Nahe Donaukanal
- ca. 400 m² Nutzfläche
- Verfügbar Ende 2025
€ 20,00 /m²/Monat netto
Wien, 2. Leopoldstadt
LeopoldQuartier Office | Modernes Büro in Holzhybridbauweise | Nahe Donaukanal
- ca. 855 m² Nutzfläche
- Verfügbar Ende 2025
€ 24,60 /m²/Monat netto
Wien, 2. Leopoldstadt
LeopoldQuartier Office | Modernes Büro in Holzhybridbauweise | Nahe Donaukanal
- ca. 2.339 m² Nutzfläche
- Verfügbar Ende 2025
€ 23,60 /m²/Monat netto
Wien, 2. Leopoldstadt
LeopoldQuartier Office | Modernes Büro in Holzhybridbauweise | Nahe Donaukanal
- ca. 2.715 m² Nutzfläche
- Verfügbar Ende 2025
€ 24,10 /m²/Monat netto
Wien, 2. Leopoldstadt
LeopoldQuartier Office | Modernes Büro in Holzhybridbauweise | Nahe Donaukanal
- ca. 3.506 m² Nutzfläche
- Verfügbar Ende 2025
€ 24,60 /m²/Monat netto
Wien, 2. Leopoldstadt
LeopoldQuartier Office | Modernes Büro in Holzhybridbauweise | Nahe Donaukanal
- ca. 3.286 m² Nutzfläche
- Verfügbar Ende 2025
€ 25,60 /m²/Monat netto
Wien, 2. Leopoldstadt
LeopoldQuartier Office | Modernes Büro in Holzhybridbauweise | Nahe Donaukanal
- ca. 2.466 m² Nutzfläche
- Verfügbar Ende 2025
€ 26,10 /m²/Monat netto
- Neu
Wien, 1. Innere Stadt
hochwertiges Büro mieten 1010 Wien – 95 m² Bürofläche Biberstraße
- ca. 96 m² Nutzfläche
- Verfügbar Nach Vereinbarung
€ 22,00 /m²/Monat netto
Wien, 1. Innere Stadt
Hochwertiges Büro am Fleischmarkt
- ca. 638 m² Nutzfläche
- Verfügbar Nach Vereinbarung
€ 24,00 /m²/Monat netto
Wien, 1. Innere Stadt
Büro mit Altbaucharme im Herzen von Wien
- ca. 289 m² Nutzfläche
- Verfügbar Nach Vereinbarung
€ 5.202,00 /Monat netto
- Neu
Wien, 1. Innere Stadt
Repräsentatives Altbaubüro in erstklassiger Innenstadtlage - Wollzeile
- ca. 204 m² Nutzfläche
- Verfügbar Nach Vereinbarung
€ 18,00 /m²/Monat netto
in der Nähe
- Neu
Wien, 2. Leopoldstadt
LeopoldQuartier Office
- ca. 560 m² Nutzfläche
- Verfügbar Ende 2025
€ 24,10 /m²/Monat netto
- Neu
Wien, 2. Leopoldstadt
LeopoldQuartier Office
- ca. 524 m² Nutzfläche
- Verfügbar Ende 2025
€ 24,10 /m²/Monat netto
- Neu
Wien, 2. Leopoldstadt
LeopoldQuartier Office
- ca. 497 m² Nutzfläche
- Verfügbar Ende 2025
€ 24,10 /m²/Monat netto
- Neu
Wien, 2. Leopoldstadt
LeopoldQuartier Office
- ca. 548 m² Nutzfläche
- Verfügbar Ende 2025
€ 24,10 /m²/Monat netto
- Neu
Wien, 2. Leopoldstadt
LeopoldQuartier Office
- ca. 586 m² Nutzfläche
- Verfügbar Ende 2025
€ 24,10 /m²/Monat netto
- Neu
Wien, 2. Leopoldstadt
LeopoldQuartier Office | Modernes Büro in Holzhybridbauweise | Nahe Donaukanal
- ca. 449 m² Nutzfläche
- Verfügbar Ende 2025
€ 23,60 /m²/Monat netto
- Neu
Wien, 2. Leopoldstadt
LeopoldQuartier Office | Modernes Büro in Holzhybridbauweise | Nahe Donaukanal
- ca. 469 m² Nutzfläche
- Verfügbar Ende 2025
€ 23,60 /m²/Monat netto
- Neu
Wien, 2. Leopoldstadt
LeopoldQuartier Office | Modernes Büro in Holzhybridbauweise | Nahe Donaukanal
- ca. 439 m² Nutzfläche
- Verfügbar Ende 2025
€ 23,60 /m²/Monat netto
- Neu
Wien, 2. Leopoldstadt
LeopoldQuartier Office | Modernes Büro in Holzhybridbauweise | Nahe Donaukanal
- ca. 390 m² Nutzfläche
- Verfügbar Ende 2025
€ 23,60 /m²/Monat netto
Wien, 2. Leopoldstadt
LeopoldQuartier Office | Modernes Büro in Holzhybridbauweise | Nahe Donaukanal
- ca. 400 m² Nutzfläche
- Verfügbar Ende 2025
€ 20,00 /m²/Monat netto
Wien, 2. Leopoldstadt
LeopoldQuartier Office | Modernes Büro in Holzhybridbauweise | Nahe Donaukanal
- ca. 855 m² Nutzfläche
- Verfügbar Ende 2025
€ 24,60 /m²/Monat netto
Wien, 2. Leopoldstadt
LeopoldQuartier Office | Modernes Büro in Holzhybridbauweise | Nahe Donaukanal
- ca. 2.339 m² Nutzfläche
- Verfügbar Ende 2025
€ 23,60 /m²/Monat netto
Wien, 2. Leopoldstadt
LeopoldQuartier Office | Modernes Büro in Holzhybridbauweise | Nahe Donaukanal
- ca. 2.715 m² Nutzfläche
- Verfügbar Ende 2025
€ 24,10 /m²/Monat netto
Wien, 2. Leopoldstadt
LeopoldQuartier Office | Modernes Büro in Holzhybridbauweise | Nahe Donaukanal
- ca. 3.506 m² Nutzfläche
- Verfügbar Ende 2025
€ 24,60 /m²/Monat netto
Wien, 2. Leopoldstadt
LeopoldQuartier Office | Modernes Büro in Holzhybridbauweise | Nahe Donaukanal
- ca. 3.286 m² Nutzfläche
- Verfügbar Ende 2025
€ 25,60 /m²/Monat netto
Wien, 2. Leopoldstadt
LeopoldQuartier Office | Modernes Büro in Holzhybridbauweise | Nahe Donaukanal
- ca. 2.466 m² Nutzfläche
- Verfügbar Ende 2025
€ 26,10 /m²/Monat netto
- Neu
Wien, 1. Innere Stadt
hochwertiges Büro mieten 1010 Wien – 95 m² Bürofläche Biberstraße
- ca. 96 m² Nutzfläche
- Verfügbar Nach Vereinbarung
€ 22,00 /m²/Monat netto
Wien, 1. Innere Stadt
Hochwertiges Büro am Fleischmarkt
- ca. 638 m² Nutzfläche
- Verfügbar Nach Vereinbarung
€ 24,00 /m²/Monat netto
Wien, 1. Innere Stadt
Büro mit Altbaucharme im Herzen von Wien
- ca. 289 m² Nutzfläche
- Verfügbar Nach Vereinbarung
€ 5.202,00 /Monat netto
- Neu
Wien, 1. Innere Stadt
Repräsentatives Altbaubüro in erstklassiger Innenstadtlage - Wollzeile
- ca. 204 m² Nutzfläche
- Verfügbar Nach Vereinbarung
€ 18,00 /m²/Monat netto