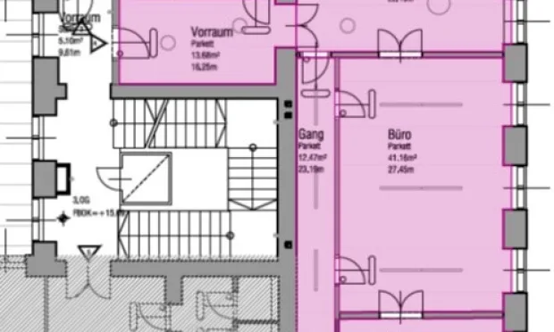
- ca. 148 m² Nutzfläche
- Nach Vereinbarung Verfügbarkeit
Wien, 1. Innere Stadt
Traumhaftes Altbaubüro nahe zur ehemaligen Börse
-
Magdalena Lemut, BSc (WU) m.lemut@otto.at +43 676 480 36 74
Ausstattung
Hinsichtlich der Ausstattung kann sicherlich von einem „high-end“ Objekt gesprochen werden, um nachstehend nur einige Details zu nennen:
- Eichenparkett
- teils traumhafte Original-Flügeltüren
- originale Fensterläden
- voll ausgestattete Küche
- Stromversorgung und EDV-Cat 7 Verkabelung der Büroarbeitsplätze unter Putz
- hochwertigste LED Beleuchtung
Lage
Anbindung an den öffentlichen Verkehr
- Bus Linie 1A, 3A, 40A
- Straßenbahn Linie Ringlinien, 31, 71
- U Bahn Linie U2, U4
Individualverkehr unmittelbar angebunden
- Schottenring
- Franz Josefs Kai
- Rudolfsplatz
- Neutorgasse
Details & Downloads
- Objektnummer IVG-O-AM-12327/3a
- Nutzfläche ca. 148 m²
- Verfügbar ab Nach Vereinbarung
- Nettomiete/Monat € 22,50 /m²
- Netto-Betriebskosten/Monat € 5,75 /m²
- Kaution 3-6 BMM (bonitätsabhängig)
- Provision 3 BMM zzgl. 20 % USt.
- HWB 133,0 kWh/m²
- fGEE 2,33
- Heizung Fernwärme
Wien, 1. Innere Stadt
€ 22,50 /m²
Nettomiete/Monat zzgl. BK, zzgl. USt.
-
Magdalena Lemut, BSc (WU) m.lemut@otto.at +43 676 480 36 74
Objekt Nr. IVG-O-AM-12327/3a
für Ihre Anfrage!
wird sich in Kürze bei Ihnen melden.
Vielen Dank für Ihre Anfrage! In Kürze melden wir uns bei Ihnen. Wir freuen uns darauf, Ihnen bei der Suche nach Ihrer Wunschimmobilie zu helfen. Entdecken Sie in der Zwischenzeit weitere attraktive Immobilien aus unserem Portfolio. Lassen Sie sich inspirieren und finden Sie Ihre Favoriten.
in der Nähe
Wien, 1. Innere Stadt
R13 | Traumhafte Altbau Revitalisierung in 1010 Wien!
- ca. 3.294 m² Nutzfläche
- Verfügbar Q1 2027
€ 79.000,00 /Monat netto
- Neu
Wien, 1. Innere Stadt
Repräsentatives Altbaubüro am Schottenring – Klimatisiert mit Blick auf die Börse
- ca. 208 m² Nutzfläche
- Verfügbar Nach Vereinbarung
€ 20,00 /m²/Monat netto
Wien, 1. Innere Stadt
Attraktives Büro im historischen Wiener Börsegebäude
- ca. 124 m² Nutzfläche
- Verfügbar Nach Vereinbarung
€ 19,90 /m²/Monat netto
Wien, 1. Innere Stadt
Kleines Innenstadtjuwel in 1010!
- ca. 52 m² Nutzfläche
- Verfügbar Nach Vereinbarung
€ 20,00 /m²/Monat netto
Wien, 1. Innere Stadt
Repräsentative Altbau-Büroeinheit mit moderner Ausstattung zur Untermiete
- ca. 140 m² Nutzfläche
- Verfügbar 01.04.2026
€ 20,00 /m²/Monat netto
Wien, 1. Innere Stadt
Hochwertiges Büro am Fleischmarkt
- ca. 638 m² Nutzfläche
- Verfügbar Nach Vereinbarung
€ 24,00 /m²/Monat netto
- Neu
Wien, 9. Alsergrund
Attraktive Bürofläche in zentraler Lage
- ca. 311 m² Nutzfläche
- Verfügbar Nach Vereinbarung
€ 17,00 /m²/Monat netto
- Neu
Wien, 2. Leopoldstadt
LeopoldQuartier Office
- ca. 560 m² Nutzfläche
- Verfügbar Ende 2025
€ 24,10 /m²/Monat netto
- Neu
Wien, 2. Leopoldstadt
LeopoldQuartier Office
- ca. 524 m² Nutzfläche
- Verfügbar Ende 2025
€ 24,10 /m²/Monat netto
- Neu
Wien, 2. Leopoldstadt
LeopoldQuartier Office
- ca. 497 m² Nutzfläche
- Verfügbar Ende 2025
€ 24,10 /m²/Monat netto
- Neu
Wien, 2. Leopoldstadt
LeopoldQuartier Office
- ca. 548 m² Nutzfläche
- Verfügbar Ende 2025
€ 24,10 /m²/Monat netto
- Neu
Wien, 2. Leopoldstadt
LeopoldQuartier Office
- ca. 586 m² Nutzfläche
- Verfügbar Ende 2025
€ 24,10 /m²/Monat netto
- Neu
Wien, 2. Leopoldstadt
LeopoldQuartier Office | Modernes Büro in Holzhybridbauweise | Nahe Donaukanal
- ca. 449 m² Nutzfläche
- Verfügbar Ende 2025
€ 23,60 /m²/Monat netto
- Neu
Wien, 2. Leopoldstadt
LeopoldQuartier Office | Modernes Büro in Holzhybridbauweise | Nahe Donaukanal
- ca. 592 m² Nutzfläche
- Verfügbar Ende 2025
€ 23,60 /m²/Monat netto
- Neu
Wien, 2. Leopoldstadt
LeopoldQuartier Office | Modernes Büro in Holzhybridbauweise | Nahe Donaukanal
- ca. 469 m² Nutzfläche
- Verfügbar Ende 2025
€ 23,60 /m²/Monat netto
- Neu
Wien, 2. Leopoldstadt
LeopoldQuartier Office | Modernes Büro in Holzhybridbauweise | Nahe Donaukanal
- ca. 439 m² Nutzfläche
- Verfügbar Ende 2025
€ 23,60 /m²/Monat netto
- Neu
Wien, 2. Leopoldstadt
LeopoldQuartier Office | Modernes Büro in Holzhybridbauweise | Nahe Donaukanal
- ca. 390 m² Nutzfläche
- Verfügbar Ende 2025
€ 23,60 /m²/Monat netto
Wien, 2. Leopoldstadt
LeopoldQuartier Office | Modernes Büro in Holzhybridbauweise | Nahe Donaukanal
- ca. 400 m² Nutzfläche
- Verfügbar Ende 2025
€ 20,00 /m²/Monat netto
Wien, 2. Leopoldstadt
LeopoldQuartier Office | Modernes Büro in Holzhybridbauweise | Nahe Donaukanal
- ca. 855 m² Nutzfläche
- Verfügbar Ende 2025
€ 24,60 /m²/Monat netto
Wien, 2. Leopoldstadt
LeopoldQuartier Office | Modernes Büro in Holzhybridbauweise | Nahe Donaukanal
- ca. 2.339 m² Nutzfläche
- Verfügbar Ende 2025
€ 23,60 /m²/Monat netto
in der Nähe
Wien, 1. Innere Stadt
R13 | Traumhafte Altbau Revitalisierung in 1010 Wien!
- ca. 3.294 m² Nutzfläche
- Verfügbar Q1 2027
€ 79.000,00 /Monat netto
- Neu
Wien, 1. Innere Stadt
Repräsentatives Altbaubüro am Schottenring – Klimatisiert mit Blick auf die Börse
- ca. 208 m² Nutzfläche
- Verfügbar Nach Vereinbarung
€ 20,00 /m²/Monat netto
Wien, 1. Innere Stadt
Attraktives Büro im historischen Wiener Börsegebäude
- ca. 124 m² Nutzfläche
- Verfügbar Nach Vereinbarung
€ 19,90 /m²/Monat netto
Wien, 1. Innere Stadt
Kleines Innenstadtjuwel in 1010!
- ca. 52 m² Nutzfläche
- Verfügbar Nach Vereinbarung
€ 20,00 /m²/Monat netto
Wien, 1. Innere Stadt
Repräsentative Altbau-Büroeinheit mit moderner Ausstattung zur Untermiete
- ca. 140 m² Nutzfläche
- Verfügbar 01.04.2026
€ 20,00 /m²/Monat netto
Wien, 1. Innere Stadt
Hochwertiges Büro am Fleischmarkt
- ca. 638 m² Nutzfläche
- Verfügbar Nach Vereinbarung
€ 24,00 /m²/Monat netto
- Neu
Wien, 9. Alsergrund
Attraktive Bürofläche in zentraler Lage
- ca. 311 m² Nutzfläche
- Verfügbar Nach Vereinbarung
€ 17,00 /m²/Monat netto
- Neu
Wien, 2. Leopoldstadt
LeopoldQuartier Office
- ca. 560 m² Nutzfläche
- Verfügbar Ende 2025
€ 24,10 /m²/Monat netto
- Neu
Wien, 2. Leopoldstadt
LeopoldQuartier Office
- ca. 524 m² Nutzfläche
- Verfügbar Ende 2025
€ 24,10 /m²/Monat netto
- Neu
Wien, 2. Leopoldstadt
LeopoldQuartier Office
- ca. 497 m² Nutzfläche
- Verfügbar Ende 2025
€ 24,10 /m²/Monat netto
- Neu
Wien, 2. Leopoldstadt
LeopoldQuartier Office
- ca. 548 m² Nutzfläche
- Verfügbar Ende 2025
€ 24,10 /m²/Monat netto
- Neu
Wien, 2. Leopoldstadt
LeopoldQuartier Office
- ca. 586 m² Nutzfläche
- Verfügbar Ende 2025
€ 24,10 /m²/Monat netto
- Neu
Wien, 2. Leopoldstadt
LeopoldQuartier Office | Modernes Büro in Holzhybridbauweise | Nahe Donaukanal
- ca. 449 m² Nutzfläche
- Verfügbar Ende 2025
€ 23,60 /m²/Monat netto
- Neu
Wien, 2. Leopoldstadt
LeopoldQuartier Office | Modernes Büro in Holzhybridbauweise | Nahe Donaukanal
- ca. 592 m² Nutzfläche
- Verfügbar Ende 2025
€ 23,60 /m²/Monat netto
- Neu
Wien, 2. Leopoldstadt
LeopoldQuartier Office | Modernes Büro in Holzhybridbauweise | Nahe Donaukanal
- ca. 469 m² Nutzfläche
- Verfügbar Ende 2025
€ 23,60 /m²/Monat netto
- Neu
Wien, 2. Leopoldstadt
LeopoldQuartier Office | Modernes Büro in Holzhybridbauweise | Nahe Donaukanal
- ca. 439 m² Nutzfläche
- Verfügbar Ende 2025
€ 23,60 /m²/Monat netto
- Neu
Wien, 2. Leopoldstadt
LeopoldQuartier Office | Modernes Büro in Holzhybridbauweise | Nahe Donaukanal
- ca. 390 m² Nutzfläche
- Verfügbar Ende 2025
€ 23,60 /m²/Monat netto
Wien, 2. Leopoldstadt
LeopoldQuartier Office | Modernes Büro in Holzhybridbauweise | Nahe Donaukanal
- ca. 400 m² Nutzfläche
- Verfügbar Ende 2025
€ 20,00 /m²/Monat netto
Wien, 2. Leopoldstadt
LeopoldQuartier Office | Modernes Büro in Holzhybridbauweise | Nahe Donaukanal
- ca. 855 m² Nutzfläche
- Verfügbar Ende 2025
€ 24,60 /m²/Monat netto
Wien, 2. Leopoldstadt
LeopoldQuartier Office | Modernes Büro in Holzhybridbauweise | Nahe Donaukanal
- ca. 2.339 m² Nutzfläche
- Verfügbar Ende 2025
€ 23,60 /m²/Monat netto