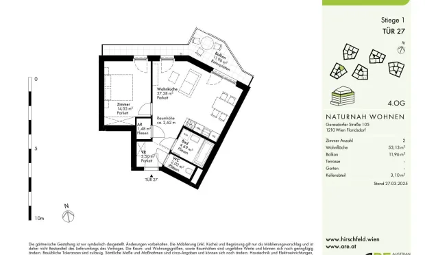
- 53 m² Wohnfläche
- 2 Zimmer
- 12 m² Balkon
- sofort Verfügbarkeit
- 1 Badezimmer
Wien, 21. Floridsdorf
Erstbezug – Idyllisch im Grünen – Großes Outdoor-Areal
-
Frau Sonja Kaspar & Frau Elisabeth Papsch home@otto.at +43 1 512 77 77 808
Alle Immobilien zu diesem Projekt

Ausstattung
- Fenster: Kunststoff mit 3 fach-Isolierverglasung
- Alle Fenster und Fenstertüren mit Außenjalousien
- Bodenbelag Sanitär-/Abstellräume: Unglasierte Feinsteinzeug Fliese
- Bodenbelag/ Wohnräume: Eichen Parkett
Jeder Wohnung ist ein Kellerabteil zugeordnet.
Zum Haus/ Anlage:
Kleinkinderspielpatz, Jugend/Kinderspielplatz
Im Außenbereich der Anlage gibt es Fahrradboxen, im Haus Fahrradabstellräume, sowie einen Fahrrad-Reparatur-Platz.
Es besteht die Möglichkeit einen Garagenstellplatz zu erwerben und diesen mit einer E-Ladestation auszustatten.
Den Bewohnern stehen weiters Paketboxen zur Verfügung.
Das nachhaltige Wohnen zeichnet sich aus wie folgt:
- Wärmepumpen: Diese Systeme nutzen Umgebungswärme zur Beheizung und Kühlung der Gebäude.
- Geothermie: Hierbei werden Erdsonden und Brunnen verwendet, um die in der Erde gespeicherte Wärmeenergie zu nutzen.
- Photovoltaik-Anlagen: Diese Solaranlagen erzeugen Strom aus Sonnenenergie und tragen zur Energieversorgung des Quartiers bei.
- Kühlung und Heizung: Fußbodenheizung
Ein weiteres Merkmal des Quartiers ist seine autofreie Oberfläche, was zur Reduktion von Lärm und Luftverschmutzung beiträgt und die Sicherheit der Fußgänger erhöht. Für Elektrofahrzeuge stehen Ladestationen in der Tiefgarage zur Verfügung, was die Nutzung umweltfreundlicher Transportmittel fördert. Die begrünten Plätze zwischen den Häusern, bieten den Bewohnern schöne Ruheoasen um die sonnigen Tage auszuschöpfen.
Jeder Wohnung ist ein Einlagrungsraum zugeordnet. Die Größe des Einlagerungsraumes kann dem Grundriss entnommen werden.
Die genaue Raumaufteilung entnehmen Sie bitte ebenso den Grundrissplänen.
Es gibt 65 Garagenstellplätze welche zu EUR 28.000,- erworben werden können.
Lage
Das Hirschfeld ist ein ruhiges Viertel am Stadtrand von Wien. Die Großstadt im Rücken verspricht jedem Heimkehrenden ein Naturerlebnis und Entspannung. Wer die Wiener Linien nutzt, nimmt am besten die Buslinie 32A von der Kollarzgasse bis zum U- und S-Bahn-Knotenpunkt Leopoldau. Von hier aus bieten die U1 in Richtung Zentrum sowie die Schnellbahnlinien S1, S2 und S7 schnelle Verbindungen in und aus der Stadt. Alternativ verläuft die Straßenbahnlinie 31 entlang der Brünner Straße über Floridsdorf direkt bis zum Schottenring. Autofahrer profitieren von der nahegelegenen A22.
Details & Downloads
- Objektnummer IVW-24-12042/26
- Wohnfläche 53 m²
- Zimmer 2
- Badezimmer 1
- Toiletten 1
- Balkon 1 (12 m²)
- Stellplatz 1
- Preis Stellplatz € 28.000
- Verfügbar ab sofort
- Kaufpreis € 325.000
- Provision Provisionsfrei
- HWB 31,0 kWh/m²
- fGEE 0,58
- Baujahr 2024
- Heizung Fußbodenheizung
- Befeuerung Solar, Erdwärme, Wärmepumpe
- Keller Ja
Sonstige Angaben
Wien, 21. Floridsdorf
€ 325.000
Kaufpreis
-
Frau Sonja Kaspar & Frau Elisabeth Papsch home@otto.at +43 1 512 77 77 808
Objekt Nr. IVW-24-12042/26
für Ihre Anfrage!
wird sich in Kürze bei Ihnen melden.
Vielen Dank für Ihre Anfrage! In Kürze melden wir uns bei Ihnen. Wir freuen uns darauf, Ihnen bei der Suche nach Ihrer Wunschimmobilie zu helfen. Entdecken Sie in der Zwischenzeit weitere attraktive Immobilien aus unserem Portfolio. Lassen Sie sich inspirieren und finden Sie Ihre Favoriten.
in der Nähe

Wien, 21. Floridsdorf
Erstbezug – Idyllisch im Grünen – Großes Outdoor-Areal
- 52 m²
- 2 Zimmer
- Balkon
- Verfügbar sofort
€ 334.500

Wien, 21. Floridsdorf
Bezugsfertige Erstbezüge mit Außenflächenam Rande der Stadt!
- 74 m²
- 3 Zimmer
- Balkon
- Verfügbar sofort
€ 464.500

Wien, 21. Floridsdorf
Erstbezug – Idyllisch im Grünen – Großes Outdoor-Areal
- 46 m²
- 2 Zimmer
- Balkon
- Verfügbar sofort
€ 299.000

Wien, 21. Floridsdorf
Bezugsfertige Erstbezüge mit Außenflächenam Rande der Stadt!
- 45 m²
- 2 Zimmer
- Balkon
- Verfügbar sofort
€ 289.500

Wien, 21. Floridsdorf
„Das Hirschfeld“ Erstbezüge mit Außenflächen- Jetzt NEU Stiege 4
- 52 m²
- 2 Zimmer
- Balkon
- Verfügbar sofort
€ 323.500

Wien, 21. Floridsdorf
Neubau-Erstbezug mit großzügigen Außenflächen im Grünen
- 46 m²
- 2 Zimmer
- Balkon
- Verfügbar sofort
€ 294.000

Wien, 21. Floridsdorf
Erstbezug – Idyllisch im Grünen – Großes Outdoor-Areal
- 96 m²
- 5 Zimmer
- Balkon
- Verfügbar sofort
€ 594.000

Wien, 21. Floridsdorf
„Das Hirschfeld“ Erstbezüge mit Außenflächen- Jetzt NEU Stiege 4
- 45 m²
- 2 Zimmer
- Balkon
- Verfügbar sofort
€ 277.500

Wien, 21. Floridsdorf
Bezugsfertige Erstbezüge mit Außenflächenam Rande der Stadt!
- 52 m²
- 2 Zimmer
- Balkon
- Verfügbar sofort
€ 319.900

Wien, 21. Floridsdorf
Neubau-Erstbezug mit großzügigen Außenflächen im Grünen
- 74 m²
- 3 Zimmer
- Balkon
- Verfügbar sofort
€ 454.900

Wien, 21. Floridsdorf
Erstbezug – Idyllisch im Grünen – Großes Outdoor-Areal
- 96 m²
- 5 Zimmer
- Balkon
- Verfügbar sofort
€ 591.000

Wien, 21. Floridsdorf
„Das Hirschfeld“ Erstbezüge mit Außenflächen- Jetzt NEU Stiege 4
- 45 m²
- 2 Zimmer
- Balkon
- Verfügbar sofort
€ 274.500

Wien, 21. Floridsdorf
Neubau-Erstbezug mit großzügigen Außenflächen im Grünen
- 73 m²
- 3 Zimmer
- Balkon
- Verfügbar sofort
€ 451.500

Wien, 21. Floridsdorf
Bezugsfertige Erstbezüge mit Außenflächenam Rande der Stadt!
- 52 m²
- 2 Zimmer
- Balkon
- Verfügbar sofort
€ 314.900

Wien, 21. Floridsdorf
„Das Hirschfeld“ Erstbezüge mit Außenflächen- Jetzt NEU Stiege 4
- 74 m²
- 3 Zimmer
- Terrasse
- Balkon
- Verfügbar sofort
€ 509.500

Wien, 21. Floridsdorf
Neubau-Erstbezug mit großzügigen Außenflächen im Grünen
- 46 m²
- 2 Zimmer
- Terrasse
- Balkon
- Verfügbar sofort
€ 309.900

Wien, 21. Floridsdorf
Bezugsfertige Erstbezüge mit Außenflächenam Rande der Stadt!
- 45 m²
- 2 Zimmer
- Balkon
- Verfügbar sofort
€ 272.000

Wien, 21. Floridsdorf
Erstbezug – Idyllisch im Grünen – Großes Outdoor-Areal
- 73 m²
- 3 Zimmer
- Balkon
- Verfügbar sofort
€ 447.900

Wien, 21. Floridsdorf
„Das Hirschfeld“ Erstbezüge mit Außenflächen- Jetzt NEU Stiege 4
- 52 m²
- 2 Zimmer
- Garten
- Terrasse
- Verfügbar sofort
€ 339.900

Wien, 21. Floridsdorf
Bezugsfertige Erstbezüge mit Außenflächenam Rande der Stadt!
- 83 m²
- 4 Zimmer
- Garten
- Terrasse
- Verfügbar sofort
€ 523.500
in der Nähe

Wien, 21. Floridsdorf
Erstbezug – Idyllisch im Grünen – Großes Outdoor-Areal
- 52 m²
- 2 Zimmer
- Balkon
- Verfügbar sofort
€ 334.500

Wien, 21. Floridsdorf
Bezugsfertige Erstbezüge mit Außenflächenam Rande der Stadt!
- 74 m²
- 3 Zimmer
- Balkon
- Verfügbar sofort
€ 464.500

Wien, 21. Floridsdorf
Erstbezug – Idyllisch im Grünen – Großes Outdoor-Areal
- 46 m²
- 2 Zimmer
- Balkon
- Verfügbar sofort
€ 299.000

Wien, 21. Floridsdorf
Bezugsfertige Erstbezüge mit Außenflächenam Rande der Stadt!
- 45 m²
- 2 Zimmer
- Balkon
- Verfügbar sofort
€ 289.500

Wien, 21. Floridsdorf
„Das Hirschfeld“ Erstbezüge mit Außenflächen- Jetzt NEU Stiege 4
- 52 m²
- 2 Zimmer
- Balkon
- Verfügbar sofort
€ 323.500

Wien, 21. Floridsdorf
Neubau-Erstbezug mit großzügigen Außenflächen im Grünen
- 46 m²
- 2 Zimmer
- Balkon
- Verfügbar sofort
€ 294.000

Wien, 21. Floridsdorf
Erstbezug – Idyllisch im Grünen – Großes Outdoor-Areal
- 96 m²
- 5 Zimmer
- Balkon
- Verfügbar sofort
€ 594.000

Wien, 21. Floridsdorf
„Das Hirschfeld“ Erstbezüge mit Außenflächen- Jetzt NEU Stiege 4
- 45 m²
- 2 Zimmer
- Balkon
- Verfügbar sofort
€ 277.500

Wien, 21. Floridsdorf
Bezugsfertige Erstbezüge mit Außenflächenam Rande der Stadt!
- 52 m²
- 2 Zimmer
- Balkon
- Verfügbar sofort
€ 319.900

Wien, 21. Floridsdorf
Neubau-Erstbezug mit großzügigen Außenflächen im Grünen
- 74 m²
- 3 Zimmer
- Balkon
- Verfügbar sofort
€ 454.900

Wien, 21. Floridsdorf
Erstbezug – Idyllisch im Grünen – Großes Outdoor-Areal
- 96 m²
- 5 Zimmer
- Balkon
- Verfügbar sofort
€ 591.000

Wien, 21. Floridsdorf
„Das Hirschfeld“ Erstbezüge mit Außenflächen- Jetzt NEU Stiege 4
- 45 m²
- 2 Zimmer
- Balkon
- Verfügbar sofort
€ 274.500

Wien, 21. Floridsdorf
Neubau-Erstbezug mit großzügigen Außenflächen im Grünen
- 73 m²
- 3 Zimmer
- Balkon
- Verfügbar sofort
€ 451.500

Wien, 21. Floridsdorf
Bezugsfertige Erstbezüge mit Außenflächenam Rande der Stadt!
- 52 m²
- 2 Zimmer
- Balkon
- Verfügbar sofort
€ 314.900

Wien, 21. Floridsdorf
„Das Hirschfeld“ Erstbezüge mit Außenflächen- Jetzt NEU Stiege 4
- 74 m²
- 3 Zimmer
- Terrasse
- Balkon
- Verfügbar sofort
€ 509.500

Wien, 21. Floridsdorf
Neubau-Erstbezug mit großzügigen Außenflächen im Grünen
- 46 m²
- 2 Zimmer
- Terrasse
- Balkon
- Verfügbar sofort
€ 309.900

Wien, 21. Floridsdorf
Bezugsfertige Erstbezüge mit Außenflächenam Rande der Stadt!
- 45 m²
- 2 Zimmer
- Balkon
- Verfügbar sofort
€ 272.000

Wien, 21. Floridsdorf
Erstbezug – Idyllisch im Grünen – Großes Outdoor-Areal
- 73 m²
- 3 Zimmer
- Balkon
- Verfügbar sofort
€ 447.900

Wien, 21. Floridsdorf
„Das Hirschfeld“ Erstbezüge mit Außenflächen- Jetzt NEU Stiege 4
- 52 m²
- 2 Zimmer
- Garten
- Terrasse
- Verfügbar sofort
€ 339.900

Wien, 21. Floridsdorf
Bezugsfertige Erstbezüge mit Außenflächenam Rande der Stadt!
- 83 m²
- 4 Zimmer
- Garten
- Terrasse
- Verfügbar sofort
€ 523.500