- ca. 916 m² Nutzfläche
- Nach Vereinbarung Verfügbarkeit
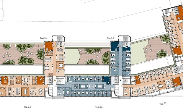
Wien, 3. Landstraße
enna – Das Work-Life-Building
-
Philipp Granabetter, BSc (WU) MA p.granabetter@otto.at +43 664 851 64 41
Alle Immobilien zu diesem Projekt
Ausstattung
- Lichte Raumhöhe: 2,85 - 3,08 m
- Beheizung über Fernwärmeversorgung
- Klimatisierung der Büroflächen mittels Kühlsegeln
- Flächendeckende mechanische Be- und Entlüftung
- Energiesparende LED-Beleuchtung gem. aktuellen Anforderungen
- Teppichboden
Lage
enna liegt in prominenter Lage unmittelbar an der Erdberger Lände. Aufgrund der direkten Lage an dieser Hauptverkehrsachse verfügt das Gebäude über eine sehr gute Visibilität bei gleichzeitiger Nähe zur Innenstadt. In unmittelbarer Nähe finden sich für alle Lebenslagen passende und unterschiedliche Optionen. Die Nähe zum Donaukanal und zum Prater und die Nahversorgung mit Geschäften, Lokalen, Schulen und Kindergärten garantieren urbane Lebensqualität mit idyllischem Flair.
So kann nicht nur enna selbst mit lebensnaher Vielfalt punkten, sondern auch sein direktes Umfeld. Nur wenige Schritte entfernt finden sich viele öffentliche Verkehrsmittel, die Sie jederzeit von A nach B bringen: die U3 Haltestelle Kardinal-Nagl-Platz ist fußläufig erreichbar. Das Gebäude ist zudem optimal mit dem Fahrrad erreichbar. Allen Fahrradfahrern steht im Erdgeschoss ein Fahrradraum mit Duschen zur Verfügung. Der Donaukanal lädt zu Spaziergängen oder Lauftraining in der Mittagspause ein.
Zu Fuß:
- Donaukanal 0 Min
- U3 Kardinal-Nagl-Platz 5 Min
- Bus 77A Lechnerstraße 5 Min
- Bus 80A Ludwig Koeßler Platz 6 Min
- Prater Jesuitenwiese (Park) 12 Min
Mit der Bahn:
- Rochusmarkt 11 Min
- Wien Mitte The Mall 15 Min
- Stephansplatz 15 Min
- Messe Wien 22 Min
- Wien Hauptbahnhof 26 Min
Mit dem Rad:
- Prater Jesuitenwiese (Park) 4 Min
- Rochusmarkt 5 Min
- Wien Mitte The Mall 6 Min
- Messe Wien 8 Min
- Stephansplatz 13 Min
Mit dem Auto:
- Rochusmarkt 7 Min
- Messe Wien 7 Min
- Wien Mitte The Mall 8 Min
- Wien Hauptbahnhof 10 Min
- Flughafen Schwechat 12 Min
- Stephansplatz 15 Min
Details & Downloads
- Objektnummer IVG-O-11390/4.4-4.5
- Nutzfläche ca. 916 m²
- Verfügbar ab Nach Vereinbarung
- Nettomiete/Monat € 19,00 /m²
- Netto-Betriebskosten/Monat € 2,90 /m²
- Kaution 3-6 BMM (bonitätsabhängig)
- Provision 3 BMM zzgl. 20 % USt.
- HWB wird nachgereicht
- fGEE wird nachgereicht
- Heizung Fernwärme
Wien, 3. Landstraße
€ 19,00 /m²
Nettomiete/Monat zzgl. BK, zzgl. USt.
-
Philipp Granabetter, BSc (WU) MA p.granabetter@otto.at +43 664 851 64 41
Objekt Nr. IVG-O-11390/4.4-4.5
für Ihre Anfrage!
wird sich in Kürze bei Ihnen melden.
Vielen Dank für Ihre Anfrage! In Kürze melden wir uns bei Ihnen. Wir freuen uns darauf, Ihnen bei der Suche nach Ihrer Wunschimmobilie zu helfen. Entdecken Sie in der Zwischenzeit weitere attraktive Immobilien aus unserem Portfolio. Lassen Sie sich inspirieren und finden Sie Ihre Favoriten.
in der Nähe
Wien, 3. Landstraße
enna – Das Work-Life-Building
- ca. 364 m² Nutzfläche
- Verfügbar Nach Vereinbarung
€ 19,00 /m²/Monat netto
Wien, 3. Landstraße
enna – Das Work-Life-Building
- ca. 1.285 m² Nutzfläche
- Verfügbar Nach Vereinbarung
€ 19,00 /m²/Monat netto
Wien, 3. Landstraße
enna – Das Work-Life-Building
- ca. 369 m² Nutzfläche
- Verfügbar Nach Vereinbarung
€ 19,00 /m²/Monat netto
Wien, 3. Landstraße
enna – Das Work-Life-Building
- ca. 369 m² Nutzfläche
- Verfügbar Nach Vereinbarung
€ 19,50 /m²/Monat netto
Wien, 3. Landstraße
enna – Das Work-Life-Building
- ca. 916 m² Nutzfläche
- Verfügbar Nach Vereinbarung
€ 19,50 /m²/Monat netto
Wien, 3. Landstraße
die U-Bahn gleich vor der Tür
- ca. 134 m² Nutzfläche
- Verfügbar Nach Vereinbarung
€ 10,00 /m²/Monat netto
Wien, 3. Landstraße
Neubaubüro in TownTown
- ca. 290 m² Nutzfläche
- Verfügbar ab sofort
€ 4.060,00 /Monat netto
Wien, 3. Landstraße
MQM | Moderne Büros Nahe Rinderhalle | innovativ & hochwertig
- ca. 432 m² Nutzfläche
- Verfügbar Nach Vereinbarung
€ 13,00 /m²/Monat netto
Wien, 3. Landstraße
MQM | Moderne Büros Nahe Rinderhalle | innovativ & hochwertig
- ca. 3.623 m² Nutzfläche
- Verfügbar Nach Vereinbarung
€ 13,00 /m²/Monat netto
Wien, 3. Landstraße
MQM | Moderne Büros Nahe Rinderhalle | innovativ & hochwertig
- ca. 348 m² Nutzfläche
- Verfügbar Nach Vereinbarung
€ 13,00 /m²/Monat netto
Wien, 3. Landstraße
MQM | Moderne Büros Nahe Rinderhalle | innovativ & hochwertig
- ca. 1.295 m² Nutzfläche
- Verfügbar Nach Vereinbarung
€ 13,00 /m²/Monat netto
Wien, 3. Landstraße
MQM | Moderne Büros Nahe Rinderhalle | innovativ & hochwertig
- ca. 878 m² Nutzfläche
- Verfügbar Nach Vereinbarung
€ 13,00 /m²/Monat netto
Wien, 3. Landstraße
MQM | Moderne Büros Nahe Rinderhalle | innovativ & hochwertig
- ca. 417 m² Nutzfläche
- Verfügbar Nach Vereinbarung
€ 13,00 /m²/Monat netto
Wien, 3. Landstraße
MQM | Moderne Büros Nahe Rinderhalle | innovativ & hochwertig
- ca. 983 m² Nutzfläche
- Verfügbar Nach Vereinbarung
€ 13,00 /m²/Monat netto
Wien, 3. Landstraße
MQM | Moderne Büros Nahe Rinderhalle | innovativ & hochwertig
- ca. 494 m² Nutzfläche
- Verfügbar Nach Vereinbarung
€ 13,00 /m²/Monat netto
Wien, 3. Landstraße
MQM | Moderne Büros Nahe Rinderhalle | innovativ & hochwertig
- ca. 2.641 m² Nutzfläche
- Verfügbar Nach Vereinbarung
€ 13,00 /m²/Monat netto
Wien, 3. Landstraße
Marxbox | Büro- oder Laborflächen in St. Marx zu mieten | sofort beziehbar
- ca. 276 m² Nutzfläche
- Verfügbar Nach Vereinbarung
€ 25,00 /m²/Monat netto
Wien, 3. Landstraße
Marxbox | Bezugsfertige Laborfläche zu mieten | Nahe Rinderhalle St. Marx
- ca. 369 m² Nutzfläche
- Verfügbar Nach Vereinbarung
€ 25,00 /m²/Monat netto
Wien, 3. Landstraße
Marxbox | Büro mit traumhafter Terrasse zu mieten | perfekte Lage in St. Marx
- ca. 143 m² Nutzfläche
- Verfügbar Nach Vereinbarung
€ 16,50 /m²/Monat netto
Wien, 3. Landstraße
Marxbox | Büro mit voll ausgestatteten Laborflächen zu mieten | Direkt in Neu Marx
- ca. 1.184 m² Nutzfläche
- Verfügbar Nach Vereinbarung
€ 16,50 /m²/Monat netto
in der Nähe
Wien, 3. Landstraße
enna – Das Work-Life-Building
- ca. 364 m² Nutzfläche
- Verfügbar Nach Vereinbarung
€ 19,00 /m²/Monat netto
Wien, 3. Landstraße
enna – Das Work-Life-Building
- ca. 1.285 m² Nutzfläche
- Verfügbar Nach Vereinbarung
€ 19,00 /m²/Monat netto
Wien, 3. Landstraße
enna – Das Work-Life-Building
- ca. 369 m² Nutzfläche
- Verfügbar Nach Vereinbarung
€ 19,00 /m²/Monat netto
Wien, 3. Landstraße
enna – Das Work-Life-Building
- ca. 369 m² Nutzfläche
- Verfügbar Nach Vereinbarung
€ 19,50 /m²/Monat netto
Wien, 3. Landstraße
enna – Das Work-Life-Building
- ca. 916 m² Nutzfläche
- Verfügbar Nach Vereinbarung
€ 19,50 /m²/Monat netto
Wien, 3. Landstraße
die U-Bahn gleich vor der Tür
- ca. 134 m² Nutzfläche
- Verfügbar Nach Vereinbarung
€ 10,00 /m²/Monat netto
Wien, 3. Landstraße
Neubaubüro in TownTown
- ca. 290 m² Nutzfläche
- Verfügbar ab sofort
€ 4.060,00 /Monat netto
Wien, 3. Landstraße
MQM | Moderne Büros Nahe Rinderhalle | innovativ & hochwertig
- ca. 432 m² Nutzfläche
- Verfügbar Nach Vereinbarung
€ 13,00 /m²/Monat netto
Wien, 3. Landstraße
MQM | Moderne Büros Nahe Rinderhalle | innovativ & hochwertig
- ca. 3.623 m² Nutzfläche
- Verfügbar Nach Vereinbarung
€ 13,00 /m²/Monat netto
Wien, 3. Landstraße
MQM | Moderne Büros Nahe Rinderhalle | innovativ & hochwertig
- ca. 348 m² Nutzfläche
- Verfügbar Nach Vereinbarung
€ 13,00 /m²/Monat netto
Wien, 3. Landstraße
MQM | Moderne Büros Nahe Rinderhalle | innovativ & hochwertig
- ca. 1.295 m² Nutzfläche
- Verfügbar Nach Vereinbarung
€ 13,00 /m²/Monat netto
Wien, 3. Landstraße
MQM | Moderne Büros Nahe Rinderhalle | innovativ & hochwertig
- ca. 878 m² Nutzfläche
- Verfügbar Nach Vereinbarung
€ 13,00 /m²/Monat netto
Wien, 3. Landstraße
MQM | Moderne Büros Nahe Rinderhalle | innovativ & hochwertig
- ca. 417 m² Nutzfläche
- Verfügbar Nach Vereinbarung
€ 13,00 /m²/Monat netto
Wien, 3. Landstraße
MQM | Moderne Büros Nahe Rinderhalle | innovativ & hochwertig
- ca. 983 m² Nutzfläche
- Verfügbar Nach Vereinbarung
€ 13,00 /m²/Monat netto
Wien, 3. Landstraße
MQM | Moderne Büros Nahe Rinderhalle | innovativ & hochwertig
- ca. 494 m² Nutzfläche
- Verfügbar Nach Vereinbarung
€ 13,00 /m²/Monat netto
Wien, 3. Landstraße
MQM | Moderne Büros Nahe Rinderhalle | innovativ & hochwertig
- ca. 2.641 m² Nutzfläche
- Verfügbar Nach Vereinbarung
€ 13,00 /m²/Monat netto
Wien, 3. Landstraße
Marxbox | Büro- oder Laborflächen in St. Marx zu mieten | sofort beziehbar
- ca. 276 m² Nutzfläche
- Verfügbar Nach Vereinbarung
€ 25,00 /m²/Monat netto
Wien, 3. Landstraße
Marxbox | Bezugsfertige Laborfläche zu mieten | Nahe Rinderhalle St. Marx
- ca. 369 m² Nutzfläche
- Verfügbar Nach Vereinbarung
€ 25,00 /m²/Monat netto
Wien, 3. Landstraße
Marxbox | Büro mit traumhafter Terrasse zu mieten | perfekte Lage in St. Marx
- ca. 143 m² Nutzfläche
- Verfügbar Nach Vereinbarung
€ 16,50 /m²/Monat netto
Wien, 3. Landstraße
Marxbox | Büro mit voll ausgestatteten Laborflächen zu mieten | Direkt in Neu Marx
- ca. 1.184 m² Nutzfläche
- Verfügbar Nach Vereinbarung
€ 16,50 /m²/Monat netto