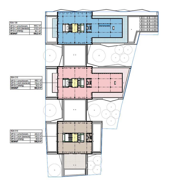
- ca. 1.726 m² Nutzfläche
- Sommer 2026 Verfügbarkeit
Wien, 11. Simmering
ELEMENT Offices - Moderne Neubaubüros in Simmering!
- 
				
	  Andrea Fiedler a.fiedler@otto.at +43 676 684 54 59 
Alle Immobilien zu diesem Projekt
 
		
		
	Ausstattung
- Doppelboden
- Öffenbare raumhohe Fenster mit außenliegendem Sonnenschutz
- State-of-the-Art Lüftungs-, Kühlungs- & Heizungssystem (Lüftung m. Lüftungskanälen im Doppelboden & Bauteilaktivierung)
- Flexible Raumaufteilung & wirklich nutzbare Mittelzonen für eine perfekte Arbeitsumgebung (Achsraster:1,35m)
- Flexibles Stehleuchtenkonzept mit direktem und indirektem Lichtanteil
- Videogegensprechanlage
- Hochwertiger Standard-Mieterausbau - Individuelle Sonderwünsche leicht berücksichtigbar
- Vollschutz-Brandmeldeanlage
- Raumhöhe Büro- und Kernzone: 2,80m, Raumhöhe Flur: 2,50m
Lage
Das Projekt befindet sich angrenzend an die dynamischen Entwicklungsgebiete St. Marx-Erdberg &
Hauptbahnhof an der Schnittstelle der Wiener Bezirk 3, 10 und 11. Das direkte Umfeld ist von Bürogebäuden mit renommierten Mietern wie z.B. Otto Bock healthcare products, Finanzamt (Zollamt Wien), medianet.group, S&T Austria, sowie von der Entwicklung des Immobilienprojektes „Wohngarten“ mit 31.000 m2 Wohnnutzfläche und 3.000 m2 für Einzelhandel geprägt.
Das architektonisch prägnante Gebäude zeichnet sich durch eine gute Sichtbarkeit von der Stadtautobahn A23 aus.
Von der räumlich nahen Schnellbahn-Station sind das Wiener Stadtzentrum in etwa 7 Minuten und der Flughafen Wien-Schwechat in etwa 15 Minuten erreichbar. Straßenbahn- und Autobuslinien führen vom Bürogebäude unter anderem direkt zum Hauptbahnhof Wien.
Öffentliche Verkehrsanbindung
- U-Bahn U3 (Enkplatz)
- Bus 69A
- Zug S1 (Geißelbergstraße)
- Straßenbahn 6, 11
- Straßenanbindung A4, A23
Details & Downloads
- Objektnummer IVG-O-AM-03470/6
- Nutzfläche ca. 1.726 m²
- Verfügbar ab Sommer 2026
- Nettomiete/Monat € 15,90 /m²
- Netto-Betriebskosten/Monat € 3,88 /m²
- Kaution
- Provision 3 BMM inkl. 20% USt.
- HWB wird nachgereicht
- fGEE wird nachgereicht
- Baujahr 2023
Wien, 11. Simmering
€ 15,90 /m²
Nettomiete/Monat zzgl. BK, zzgl. USt.
- 
					
		
	  Andrea Fiedler a.fiedler@otto.at +43 676 684 54 59 
Objekt Nr. IVG-O-AM-03470/6
für Ihre Anfrage!
wird sich in Kürze bei Ihnen melden.
Vielen Dank für Ihre Anfrage! In Kürze melden wir uns bei Ihnen. Wir freuen uns darauf, Ihnen bei der Suche nach Ihrer Wunschimmobilie zu helfen. Entdecken Sie in der Zwischenzeit weitere attraktive Immobilien aus unserem Portfolio. Lassen Sie sich inspirieren und finden Sie Ihre Favoriten.
in der Nähe
 
					
										
					Wien, 11. Simmering
ELEMENT Offices - Moderne Neubaubüros in Simmering!
- ca. 3.454 m² Nutzfläche
- Verfügbar Sommer 2026
€ 15,90 /m²/Monat netto
 
					
										
					Wien, 11. Simmering
ELEMENT Offices - Moderne Neubaubüros in Simmering!
- ca. 4.042 m² Nutzfläche
- Verfügbar Sommer 2026
€ 15,70 /m²/Monat netto
 
					
										
					Wien, 11. Simmering
ELEMENT Offices - Moderne Neubaubüros in Simmering!
- ca. 4.004 m² Nutzfläche
- Verfügbar Sommer 2026
€ 15,50 /m²/Monat netto
 
					
										
					Wien, 11. Simmering
ELEMENT Offices - Moderne Neubaubüros in Simmering!
- ca. 3.912 m² Nutzfläche
- Verfügbar Sommer 2026
€ 15,50 /m²/Monat netto
 
					
										
					Wien, 11. Simmering
ELEMENT Offices - Moderne Neubaubüros in Simmering!
- ca. 1.895 m² Nutzfläche
- Verfügbar Sommer 2026
€ 15,30 /m²/Monat netto
 
					
										
					Wien, 11. Simmering
Attraktives Bürogebäude
- ca. 4.565 m² Nutzfläche
- Verfügbar Nach Vereinbarung
€ 9,70 /m²/Monat netto
 
					
										
					Wien, 11. Simmering
Attraktives Bürogebäude
- ca. 781 m² Nutzfläche
- Verfügbar Nach Vereinbarung
€ 9,70 /m²/Monat netto
 
					
										
					Wien, 11. Simmering
Attraktives Bürogebäude
- ca. 271 m² Nutzfläche
- Verfügbar Nach Vereinbarung
€ 9,70 /m²/Monat netto
 
					
										
					Wien, 11. Simmering
Attraktives Bürogebäude
- ca. 1.522 m² Nutzfläche
- Verfügbar Nach Vereinbarung
€ 9,70 /m²/Monat netto
 
					
										
					Wien, 11. Simmering
Attraktives Bürogebäude
- ca. 3.044 m² Nutzfläche
- Verfügbar Nach Vereinbarung
€ 9,70 /m²/Monat netto
 
					
										
					Wien, 11. Simmering
Attraktives Bürogebäude
- ca. 1.522 m² Nutzfläche
- Verfügbar Nach Vereinbarung
€ 9,70 /m²/Monat netto
 
					
										
					Wien, 11. Simmering
Attraktives Bürogebäude
- ca. 741 m² Nutzfläche
- Verfügbar Nach Vereinbarung
€ 9,70 /m²/Monat netto
 
					
										
					Wien, 11. Simmering
Attraktives Bürogebäude
- ca. 1.522 m² Nutzfläche
- Verfügbar Nach Vereinbarung
€ 9,70 /m²/Monat netto
 
					
										
					Wien, 11. Simmering
Attraktives Bürogebäude
- ca. 433 m² Nutzfläche
- Verfügbar Nach Vereinbarung
€ 9,70 /m²/Monat netto
 
					
										
					Wien, 11. Simmering
Gewerbefläche mit Garten im Wohngarten
- ca. 711 m² Nutzfläche
- Verfügbar sofort
€ 11,00 /m²/Monat netto
 
					
										
					Wien, 3. Landstraße
LOOP Offices
- ca. 2.137 m² Nutzfläche
- Verfügbar Q4 / 2026
€ 18,00 /m²/Monat netto
 
					
										
					Wien, 3. Landstraße
LOOP Offices
- ca. 2.070 m² Nutzfläche
- Verfügbar Q4 / 2026
€ 18,00 /m²/Monat netto
 
					
										
					Wien, 3. Landstraße
LOOP Offices
- ca. 2.066 m² Nutzfläche
- Verfügbar Q4 / 2026
€ 18,00 /m²/Monat netto
 
					
										
					Wien, 3. Landstraße
LOOP Offices
- ca. 2.072 m² Nutzfläche
- Verfügbar Q4 / 2026
€ 18,00 /m²/Monat netto
 
					
										
					Wien, 3. Landstraße
LOOP Offices
- ca. 2.067 m² Nutzfläche
- Verfügbar Q4 / 2026
€ 18,00 /m²/Monat netto
in der Nähe
 
					
										
					Wien, 11. Simmering
ELEMENT Offices - Moderne Neubaubüros in Simmering!
- ca. 3.454 m² Nutzfläche
- Verfügbar Sommer 2026
€ 15,90 /m²/Monat netto
 
					
										
					Wien, 11. Simmering
ELEMENT Offices - Moderne Neubaubüros in Simmering!
- ca. 4.042 m² Nutzfläche
- Verfügbar Sommer 2026
€ 15,70 /m²/Monat netto
 
					
										
					Wien, 11. Simmering
ELEMENT Offices - Moderne Neubaubüros in Simmering!
- ca. 4.004 m² Nutzfläche
- Verfügbar Sommer 2026
€ 15,50 /m²/Monat netto
 
					
										
					Wien, 11. Simmering
ELEMENT Offices - Moderne Neubaubüros in Simmering!
- ca. 3.912 m² Nutzfläche
- Verfügbar Sommer 2026
€ 15,50 /m²/Monat netto
 
					
										
					Wien, 11. Simmering
ELEMENT Offices - Moderne Neubaubüros in Simmering!
- ca. 1.895 m² Nutzfläche
- Verfügbar Sommer 2026
€ 15,30 /m²/Monat netto
 
					
										
					Wien, 11. Simmering
Attraktives Bürogebäude
- ca. 4.565 m² Nutzfläche
- Verfügbar Nach Vereinbarung
€ 9,70 /m²/Monat netto
 
					
										
					Wien, 11. Simmering
Attraktives Bürogebäude
- ca. 781 m² Nutzfläche
- Verfügbar Nach Vereinbarung
€ 9,70 /m²/Monat netto
 
					
										
					Wien, 11. Simmering
Attraktives Bürogebäude
- ca. 271 m² Nutzfläche
- Verfügbar Nach Vereinbarung
€ 9,70 /m²/Monat netto
 
					
										
					Wien, 11. Simmering
Attraktives Bürogebäude
- ca. 1.522 m² Nutzfläche
- Verfügbar Nach Vereinbarung
€ 9,70 /m²/Monat netto
 
					
										
					Wien, 11. Simmering
Attraktives Bürogebäude
- ca. 3.044 m² Nutzfläche
- Verfügbar Nach Vereinbarung
€ 9,70 /m²/Monat netto
 
					
										
					Wien, 11. Simmering
Attraktives Bürogebäude
- ca. 1.522 m² Nutzfläche
- Verfügbar Nach Vereinbarung
€ 9,70 /m²/Monat netto
 
					
										
					Wien, 11. Simmering
Attraktives Bürogebäude
- ca. 741 m² Nutzfläche
- Verfügbar Nach Vereinbarung
€ 9,70 /m²/Monat netto
 
					
										
					Wien, 11. Simmering
Attraktives Bürogebäude
- ca. 1.522 m² Nutzfläche
- Verfügbar Nach Vereinbarung
€ 9,70 /m²/Monat netto
 
					
										
					Wien, 11. Simmering
Attraktives Bürogebäude
- ca. 433 m² Nutzfläche
- Verfügbar Nach Vereinbarung
€ 9,70 /m²/Monat netto
 
					
										
					Wien, 11. Simmering
Gewerbefläche mit Garten im Wohngarten
- ca. 711 m² Nutzfläche
- Verfügbar sofort
€ 11,00 /m²/Monat netto
 
					
										
					Wien, 3. Landstraße
LOOP Offices
- ca. 2.137 m² Nutzfläche
- Verfügbar Q4 / 2026
€ 18,00 /m²/Monat netto
 
					
										
					Wien, 3. Landstraße
LOOP Offices
- ca. 2.070 m² Nutzfläche
- Verfügbar Q4 / 2026
€ 18,00 /m²/Monat netto
 
					
										
					Wien, 3. Landstraße
LOOP Offices
- ca. 2.066 m² Nutzfläche
- Verfügbar Q4 / 2026
€ 18,00 /m²/Monat netto
 
					
										
					Wien, 3. Landstraße
LOOP Offices
- ca. 2.072 m² Nutzfläche
- Verfügbar Q4 / 2026
€ 18,00 /m²/Monat netto
 
					
										
					Wien, 3. Landstraße
LOOP Offices
- ca. 2.067 m² Nutzfläche
- Verfügbar Q4 / 2026
€ 18,00 /m²/Monat netto
 
				
			 
				
			 
				
			 
				
			 
				
			 
				
			 
				
			 
				
			 
				
			 
				
			 
				
			