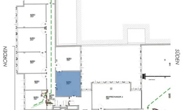
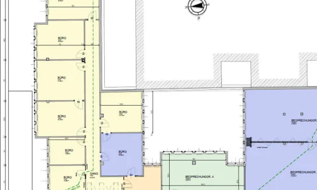
- ca. 270 m² Nutzfläche
- Nach Vereinbarung Verfügbarkeit
Wien, 7. Neubau
Bezugsfertiges Büro in top Lage
-
Andrea Fiedler a.fiedler@otto.at +43 676 684 54 59
Ausstattung
- Zutritt über barrierefreien Lift
- Klimatisierung
- ausgestattete Küche
- große öffenbare Fenster
- Außenjalousien
- Boden- und Wandsteckdosen (Doppelboden)
- Verkabelung
- hochwertiger Laminatboden
- Glastüren mit Sichtschutz
- Deckenfluter
- getrennte WC-Anlagen
- Fahrradabstellplätze im Innenhof
Lage
- U3 Station Zieglergasse sowie U6 Station Westbahnhof gleich weit entfernt
- sämtliche Einkaufsmöglichkeiten in unmittelbarer Umgebung
- Restaurants mit nationaler und internationaler Küche in allen Preisklassen und Fast Food Restaurants vor der Türe
- Ärzte und Gesundheitszentren vor der Türe
- After Work Drinks und Freizeitmöglichkeiten vorhanden
- Parkhäuser in unmittelbarer Umgebung
Details & Downloads
- Objektnummer IVG-O-12821/2.OG
- Nutzfläche ca. 270 m²
- Zimmer 6
- Verfügbar ab Nach Vereinbarung
- Nettomiete/Monat € 18,33 /m²
- Netto-Betriebskosten/Monat € 6,30 /m²
- Kaution 3 BMM
- Provision 3 BMM zzgl. 20% USt.
- HWB 49,9 kWh/m²
- Energieklasse B
- fGEE 1,10
Wien, 7. Neubau
€ 18,33 /m²
Nettomiete/Monat zzgl. BK, zzgl. USt.
-
Andrea Fiedler a.fiedler@otto.at +43 676 684 54 59
Objekt Nr. IVG-O-12821/2.OG
für Ihre Anfrage!
wird sich in Kürze bei Ihnen melden.
Vielen Dank für Ihre Anfrage! In Kürze melden wir uns bei Ihnen. Wir freuen uns darauf, Ihnen bei der Suche nach Ihrer Wunschimmobilie zu helfen. Entdecken Sie in der Zwischenzeit weitere attraktive Immobilien aus unserem Portfolio. Lassen Sie sich inspirieren und finden Sie Ihre Favoriten.
in der Nähe
Wien, 6. Mariahilf
Bürohaus auf der Mariahilfer Straße
- ca. 151 m² Nutzfläche
- Verfügbar Nach Vereinbarung
€ 17,50 /m²/Monat netto
Wien, 6. Mariahilf
Bürohaus auf der Mariahilfer Straße
- ca. 311 m² Nutzfläche
- Verfügbar Nach Vereinbarung
€ 17,50 /m²/Monat netto
Wien, 7. Neubau
Schönes Jugendstilhaus
- ca. 240 m² Nutzfläche
- Verfügbar Nach Vereinbarung
€ 16,50 /m²/Monat netto
Wien, 7. Neubau
Sanierte Bürofläche
- ca. 676 m² Nutzfläche
- Verfügbar Nach Vereinbarung
€ 19,50 /m²/Monat netto
Wien, 6. Mariahilf
Altbau-Büroflächen in bester Lage
- ca. 348 m² Nutzfläche
- Verfügbar Nach Vereinbarung
ab € 12,50 /m²/Monat netto
Wien, 6. Mariahilf
Altbau-Büroflächen in bester Lage
- ca. 405 m² Nutzfläche
- Verfügbar Nach Vereinbarung
ab € 12,50 /m²/Monat netto
Wien, 6. Mariahilf
Altbau-Büroflächen in bester Lage
- ca. 452 m² Nutzfläche
- Verfügbar Nach Vereinbarung
ab € 12,50 /m²/Monat netto
Wien, 6. Mariahilf
Altbau-Büroflächen in bester Lage
- ca. 515 m² Nutzfläche
- Verfügbar Nach Vereinbarung
ab € 12,50 /m²/Monat netto
Wien, 6. Mariahilf
Altbau-Büroflächen in bester Lage
- ca. 540 m² Nutzfläche
- Verfügbar Nach Vereinbarung
ab € 12,50 /m²/Monat netto
Wien, 6. Mariahilf
Altbau-Büroflächen in bester Lage
- ca. 298 m² Nutzfläche
- Verfügbar Nach Vereinbarung
ab € 12,50 /m²/Monat netto
Wien, 7. Neubau
wunderschönes, gepflegtes Altbaubüro nahe Mariahilfer Straße
- ca. 147 m² Nutzfläche
- Verfügbar Nach Vereinbarung
€ 18,50 /m²/Monat netto
Wien, 7. Neubau
Lichtdurchflutetes Altbau-Büro nahe Mariahilfer Straße
- ca. 157 m² Nutzfläche
- Verfügbar Nach Vereinbarung
€ 18,10 /m²/Monat netto
Wien, 12. Meidling
VIO PLAZA
- ca. 605 m² Nutzfläche
- Verfügbar nach Vereinbarung
€ 16,54 /m²/Monat netto
Wien, 5. Margareten
Büroflächen in Sanierung nahe Margaretengürtel
- ca. 847 m² Nutzfläche
- Verfügbar Nach Vereinbarung
€ 10,00 /m²/Monat netto
Wien, 5. Margareten
Bürofläche mieten im 5. Bezirk Wien
- ca. 425 m² Nutzfläche
- Verfügbar Nach Vereinbarung
€ 10,00 /m²/Monat netto
Wien, 6. Mariahilf
Büro im Denzelhaus
- ca. 810 m² Nutzfläche
- Verfügbar nach Vereinbarung
€ 16,50 /m²/Monat netto
Wien, 1. Innere Stadt
Repräsentatives Altbaubüro beim Museumsquartier
- ca. 201 m² Nutzfläche
- Verfügbar Nach Vereinbarung
€ 20,50 /m²/Monat netto
Wien, 6. Mariahilf
Repräsentatives Büro in der Linken Wienzeile
- ca. 164 m² Nutzfläche
- Verfügbar Nach Vereinbarung
€ 20,00 /m²/Monat netto
Wien, 4. Wieden
OC4 - Top Büroflächen in der Operngasse!
- ca. 219 m² Nutzfläche
- Verfügbar nach Vereinbarung
€ 15,00 /m²/Monat netto
Wien, 1. Innere Stadt
Akademiehof - Bürohaus bei der Secession
- ca. 1.300 m² Nutzfläche
- Verfügbar Nach Vereinbarung
€ 22,00 /m²/Monat netto
in der Nähe
Wien, 6. Mariahilf
Bürohaus auf der Mariahilfer Straße
- ca. 151 m² Nutzfläche
- Verfügbar Nach Vereinbarung
€ 17,50 /m²/Monat netto
Wien, 6. Mariahilf
Bürohaus auf der Mariahilfer Straße
- ca. 311 m² Nutzfläche
- Verfügbar Nach Vereinbarung
€ 17,50 /m²/Monat netto
Wien, 7. Neubau
Schönes Jugendstilhaus
- ca. 240 m² Nutzfläche
- Verfügbar Nach Vereinbarung
€ 16,50 /m²/Monat netto
Wien, 7. Neubau
Sanierte Bürofläche
- ca. 676 m² Nutzfläche
- Verfügbar Nach Vereinbarung
€ 19,50 /m²/Monat netto
Wien, 6. Mariahilf
Altbau-Büroflächen in bester Lage
- ca. 348 m² Nutzfläche
- Verfügbar Nach Vereinbarung
ab € 12,50 /m²/Monat netto
Wien, 6. Mariahilf
Altbau-Büroflächen in bester Lage
- ca. 405 m² Nutzfläche
- Verfügbar Nach Vereinbarung
ab € 12,50 /m²/Monat netto
Wien, 6. Mariahilf
Altbau-Büroflächen in bester Lage
- ca. 452 m² Nutzfläche
- Verfügbar Nach Vereinbarung
ab € 12,50 /m²/Monat netto
Wien, 6. Mariahilf
Altbau-Büroflächen in bester Lage
- ca. 515 m² Nutzfläche
- Verfügbar Nach Vereinbarung
ab € 12,50 /m²/Monat netto
Wien, 6. Mariahilf
Altbau-Büroflächen in bester Lage
- ca. 540 m² Nutzfläche
- Verfügbar Nach Vereinbarung
ab € 12,50 /m²/Monat netto
Wien, 6. Mariahilf
Altbau-Büroflächen in bester Lage
- ca. 298 m² Nutzfläche
- Verfügbar Nach Vereinbarung
ab € 12,50 /m²/Monat netto
Wien, 7. Neubau
wunderschönes, gepflegtes Altbaubüro nahe Mariahilfer Straße
- ca. 147 m² Nutzfläche
- Verfügbar Nach Vereinbarung
€ 18,50 /m²/Monat netto
Wien, 7. Neubau
Lichtdurchflutetes Altbau-Büro nahe Mariahilfer Straße
- ca. 157 m² Nutzfläche
- Verfügbar Nach Vereinbarung
€ 18,10 /m²/Monat netto
Wien, 12. Meidling
VIO PLAZA
- ca. 605 m² Nutzfläche
- Verfügbar nach Vereinbarung
€ 16,54 /m²/Monat netto
Wien, 5. Margareten
Büroflächen in Sanierung nahe Margaretengürtel
- ca. 847 m² Nutzfläche
- Verfügbar Nach Vereinbarung
€ 10,00 /m²/Monat netto
Wien, 5. Margareten
Bürofläche mieten im 5. Bezirk Wien
- ca. 425 m² Nutzfläche
- Verfügbar Nach Vereinbarung
€ 10,00 /m²/Monat netto
Wien, 6. Mariahilf
Büro im Denzelhaus
- ca. 810 m² Nutzfläche
- Verfügbar nach Vereinbarung
€ 16,50 /m²/Monat netto
Wien, 1. Innere Stadt
Repräsentatives Altbaubüro beim Museumsquartier
- ca. 201 m² Nutzfläche
- Verfügbar Nach Vereinbarung
€ 20,50 /m²/Monat netto
Wien, 6. Mariahilf
Repräsentatives Büro in der Linken Wienzeile
- ca. 164 m² Nutzfläche
- Verfügbar Nach Vereinbarung
€ 20,00 /m²/Monat netto
Wien, 4. Wieden
OC4 - Top Büroflächen in der Operngasse!
- ca. 219 m² Nutzfläche
- Verfügbar nach Vereinbarung
€ 15,00 /m²/Monat netto
Wien, 1. Innere Stadt
Akademiehof - Bürohaus bei der Secession
- ca. 1.300 m² Nutzfläche
- Verfügbar Nach Vereinbarung
€ 22,00 /m²/Monat netto