- ca. 1.254 m² Nutzfläche
- nach Vereinbarung Verfügbarkeit
Wien, 2. Leopoldstadt
Attraktive Büroflächen direkt am Praterstern
-
Helmut Wanjek h.wanjek@otto.at +43 664 854 91 93
Ausstattung
- vorgehängte Kunststeinfassade
- großzügige Lobby
- Teppichboden auf Estrich, in Teilbereichen Doppelboden
- arbeitsplatzgerechte Beleuchtung
- Kabelkanäle
- Fernwärme
- Kühlung, Lüftung
- Tiefgarage mit 180 Stellplätzen
- Fahrradabstellraum mit Dusche
Lage
Der Standort ist perfekt an das öffentliche Netz in Wien angebunden: durch den Verkehrsknotenpunkt Praterstern insbesondere mit den U-Bahn-Linien U1 und U2, sowie durch den Schnellbahn-Bahnhof Praterstern. Ein weiterer Pluspunkt ist die ausgezeichnete Anbindung mit nur einer Schnellbahn-Station (Wien Mitte Landstraße) an den Flughafen Wien-Schwechat durch den City Airport Train (CAT).
Ebenfalls steht eine große Garage im Haus zur Verfügung.
öffentliche Verkehrsanbindung:
U-Bahn: U1, U2 Station: Praterstern
S-Bahn: S1, S2, S3, S5, S6, S7, S8, S9, S15 Station: Praterstern
Straßenbahn: 5, O Station “Praterstern”
Bus: 80A, 82A Station “Praterstern”
Individualverkehr: A4, A21, A23
Details & Downloads
- Objektnummer IVG-O-04115/10
- Nutzfläche ca. 1.254 m²
- Verfügbar ab nach Vereinbarung
- Nettomiete/Monat € 16,00 /m²
- Netto-Betriebskosten/Monat € 3,60 /m²
- Kaution 3-6 Bruttomonatsmieten
- Provision 3 BMM zzgl. 20 % USt.
- HWB 58,2 kWh/m²
- Energieklasse C
- fGEE 4,38
- Heizung Fernwärme
-
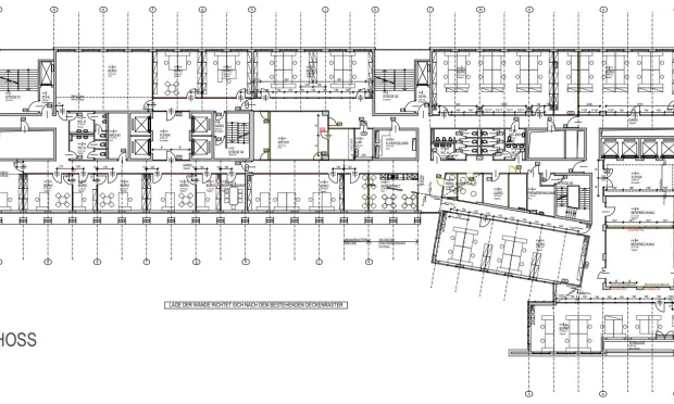
Alle Grundrisse ZIP Archiv
-
Grundriss Plan 7.OG JPG · 146 KB
-
Grundriss Plan 8.OG JPG · 156 KB
-
Grundriss Plan 9.OG JPG · 81 KB
-
Grundriss Plan 10.OG JPG · 61 KB
-
Grundriss Variante Gruppenbüros Raster Bestand PNG · 169 KB
-
Grundriss Variante Mischbüro Raster Bestand PNG · 148 KB
-
Grundriss Variante Zellenbüros Raster Bestand PNG · 168 KB
Wien, 2. Leopoldstadt
€ 16,00 /m²
Nettomiete/Monat zzgl. BK, zzgl. USt.
-
Helmut Wanjek h.wanjek@otto.at +43 664 854 91 93
Objekt Nr. IVG-O-04115/10
für Ihre Anfrage!
wird sich in Kürze bei Ihnen melden.
Vielen Dank für Ihre Anfrage! In Kürze melden wir uns bei Ihnen. Wir freuen uns darauf, Ihnen bei der Suche nach Ihrer Wunschimmobilie zu helfen. Entdecken Sie in der Zwischenzeit weitere attraktive Immobilien aus unserem Portfolio. Lassen Sie sich inspirieren und finden Sie Ihre Favoriten.
in der Nähe
Wien, 2. Leopoldstadt
Quartier Lassalle
- ca. 755 m² Nutzfläche
- Verfügbar Nach Vereinbarung
€ 17,70 /m²/Monat netto
Wien, 2. Leopoldstadt
Quartier Lassalle
- ca. 1.558 m² Nutzfläche
- Verfügbar
€ 17,70 /m²/Monat netto
Wien, 2. Leopoldstadt
Quartier Lassalle
- ca. 803 m² Nutzfläche
- Verfügbar Nach Vereinbarung
€ 17,70 /m²/Monat netto
Wien, 2. Leopoldstadt
Moderne Bürofläche Nähe Austria Campus
- ca. 135 m² Nutzfläche
- Verfügbar Nach Vereinbarung
€ 14,50 /m²/Monat netto
Wien, 2. Leopoldstadt
Modernes Büro im Greenworx
- ca. 563 m² Nutzfläche
- Verfügbar Nach Vereinbarung
€ 16,05 /m²/Monat netto
Wien, 2. Leopoldstadt
Moderne Bürofläche Nähe Austria Campus
- ca. 106 m² Nutzfläche
- Verfügbar Nach Vereinbarung
€ 14,50 /m²/Monat netto
Wien, 2. Leopoldstadt
Moderne Bürofläche Nähe Austria Campus
- ca. 470 m² Nutzfläche
- Verfügbar Nach Vereinbarung
€ 15,50 /m²/Monat netto
Wien, 2. Leopoldstadt
Moderne Bürofläche Nähe Austria Campus
- ca. 345 m² Nutzfläche
- Verfügbar Nach Vereinbarung
€ 16,00 /m²/Monat netto
Wien, 2. Leopoldstadt
Moderne Bürofläche Nähe Austria Campus
- ca. 719 m² Nutzfläche
- Verfügbar Nach Vereinbarung
€ 15,00 /m²/Monat netto
Wien, 2. Leopoldstadt
Moderne Bürofläche Nähe Austria Campus
- ca. 723 m² Nutzfläche
- Verfügbar Nach Vereinbarung
€ 16,50 /m²/Monat netto
Wien, 2. Leopoldstadt
Modernes Büro im Greenworx
- ca. 563 m² Nutzfläche
- Verfügbar Nach Vereinbarung
€ 14,00 /m²/Monat netto
Wien, 2. Leopoldstadt
E-Zone - Top-Neubau an der U-Bahn
- ca. 838 m² Nutzfläche
- Verfügbar Nach Vereinbarung
€ 15,00 /m²/Monat netto
Wien, 2. Leopoldstadt
E-Zone - Top-Neubau an der U-Bahn
- ca. 439 m² Nutzfläche
- Verfügbar Nach Vereinbarung
€ 15,50 /m²/Monat netto
Wien, 2. Leopoldstadt
E-Zone - Top-Neubau an der U-Bahn
- ca. 980 m² Nutzfläche
- Verfügbar Nach Vereinbarung
€ 15,00 /m²/Monat netto
Wien, 2. Leopoldstadt
E-Zone - Top-Neubau an der U-Bahn
- ca. 412 m² Nutzfläche
- Verfügbar Nach Vereinbarung
€ 17,50 /m²/Monat netto
Wien, 2. Leopoldstadt
E-Zone - Top-Neubau an der U-Bahn
- ca. 937 m² Nutzfläche
- Verfügbar Nach Vereinbarung
€ 15,00 /m²/Monat netto
Wien, 2. Leopoldstadt
AUSTRIA CAMPUS
- ca. 1.343 m² Nutzfläche
- Verfügbar Nach Vereinbarung
€ 16,90 /m²/Monat netto
Wien, 2. Leopoldstadt
AUSTRIA CAMPUS
- ca. 346 m² Nutzfläche
- Verfügbar Nach Vereinbarung
€ 8,80 /m²/Monat netto
Wien, 2. Leopoldstadt
AUSTRIA CAMPUS
- ca. 1.939 m² Nutzfläche
- Verfügbar nach Vereinbarung
€ 16,90 /m²/Monat netto
Wien, 2. Leopoldstadt
Vienna Works
- ca. 925 m² Nutzfläche
- Verfügbar Nach Vereinbarung
€ 16,50 /m²/Monat netto
in der Nähe
Wien, 2. Leopoldstadt
Quartier Lassalle
- ca. 755 m² Nutzfläche
- Verfügbar Nach Vereinbarung
€ 17,70 /m²/Monat netto
Wien, 2. Leopoldstadt
Quartier Lassalle
- ca. 1.558 m² Nutzfläche
- Verfügbar
€ 17,70 /m²/Monat netto
Wien, 2. Leopoldstadt
Quartier Lassalle
- ca. 803 m² Nutzfläche
- Verfügbar Nach Vereinbarung
€ 17,70 /m²/Monat netto
Wien, 2. Leopoldstadt
Moderne Bürofläche Nähe Austria Campus
- ca. 135 m² Nutzfläche
- Verfügbar Nach Vereinbarung
€ 14,50 /m²/Monat netto
Wien, 2. Leopoldstadt
Modernes Büro im Greenworx
- ca. 563 m² Nutzfläche
- Verfügbar Nach Vereinbarung
€ 16,05 /m²/Monat netto
Wien, 2. Leopoldstadt
Moderne Bürofläche Nähe Austria Campus
- ca. 106 m² Nutzfläche
- Verfügbar Nach Vereinbarung
€ 14,50 /m²/Monat netto
Wien, 2. Leopoldstadt
Moderne Bürofläche Nähe Austria Campus
- ca. 470 m² Nutzfläche
- Verfügbar Nach Vereinbarung
€ 15,50 /m²/Monat netto
Wien, 2. Leopoldstadt
Moderne Bürofläche Nähe Austria Campus
- ca. 345 m² Nutzfläche
- Verfügbar Nach Vereinbarung
€ 16,00 /m²/Monat netto
Wien, 2. Leopoldstadt
Moderne Bürofläche Nähe Austria Campus
- ca. 719 m² Nutzfläche
- Verfügbar Nach Vereinbarung
€ 15,00 /m²/Monat netto
Wien, 2. Leopoldstadt
Moderne Bürofläche Nähe Austria Campus
- ca. 723 m² Nutzfläche
- Verfügbar Nach Vereinbarung
€ 16,50 /m²/Monat netto
Wien, 2. Leopoldstadt
Modernes Büro im Greenworx
- ca. 563 m² Nutzfläche
- Verfügbar Nach Vereinbarung
€ 14,00 /m²/Monat netto
Wien, 2. Leopoldstadt
E-Zone - Top-Neubau an der U-Bahn
- ca. 838 m² Nutzfläche
- Verfügbar Nach Vereinbarung
€ 15,00 /m²/Monat netto
Wien, 2. Leopoldstadt
E-Zone - Top-Neubau an der U-Bahn
- ca. 439 m² Nutzfläche
- Verfügbar Nach Vereinbarung
€ 15,50 /m²/Monat netto
Wien, 2. Leopoldstadt
E-Zone - Top-Neubau an der U-Bahn
- ca. 980 m² Nutzfläche
- Verfügbar Nach Vereinbarung
€ 15,00 /m²/Monat netto
Wien, 2. Leopoldstadt
E-Zone - Top-Neubau an der U-Bahn
- ca. 412 m² Nutzfläche
- Verfügbar Nach Vereinbarung
€ 17,50 /m²/Monat netto
Wien, 2. Leopoldstadt
E-Zone - Top-Neubau an der U-Bahn
- ca. 937 m² Nutzfläche
- Verfügbar Nach Vereinbarung
€ 15,00 /m²/Monat netto
Wien, 2. Leopoldstadt
AUSTRIA CAMPUS
- ca. 1.343 m² Nutzfläche
- Verfügbar Nach Vereinbarung
€ 16,90 /m²/Monat netto
Wien, 2. Leopoldstadt
AUSTRIA CAMPUS
- ca. 346 m² Nutzfläche
- Verfügbar Nach Vereinbarung
€ 8,80 /m²/Monat netto
Wien, 2. Leopoldstadt
AUSTRIA CAMPUS
- ca. 1.939 m² Nutzfläche
- Verfügbar nach Vereinbarung
€ 16,90 /m²/Monat netto
Wien, 2. Leopoldstadt
Vienna Works
- ca. 925 m² Nutzfläche
- Verfügbar Nach Vereinbarung
€ 16,50 /m²/Monat netto