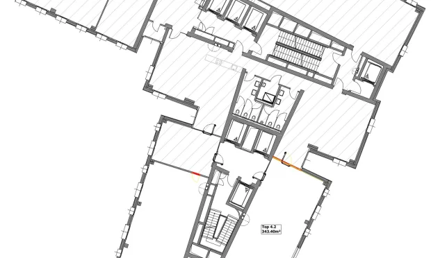
- ca. 343 m² Nutzfläche
- Nach Vereinbarung Verfügbarkeit
Wien, 22. Donaustadt
HOHO | Top Büroflächen in der Seestadt
-
Magdalena Lemut, BSc (WU) m.lemut@otto.at +43 676 480 36 74
Alle Immobilien zu diesem Projekt
Ausstattung
- Kühlung
- Doppelboden
- Teppichfliesen
- Holz-Alu-Fenster
- Außenliegenden Sonnenschutz
- Teeküchenanschlüsse
- computergerechte Beleuchtung
- Zutrittskontrollsystem
- Tiefgarage
- Fitness Center
- Restaurant
- Hotel
Lage
Durch die Verlängerung der U-Bahn-Linie U2 erfolgt der Startschuss zum Stadtentwicklungsgebiet Aspern im 22. Bezirk. Auf einer Fläche von 340 Fußballfeldern entsteht hier in mehreren Etappen über die nächsten Jahre eine Stadt des 21. Jahrhunderts. Mit hochwertigem Wohnraum für rund 20.000 Menschen und noch einmal so vielen Arbeitsplätzen. Durch das Plus-Energie-Bürogebäude aspern IQ, dem Firmensitz der HOERBIGER Holding AG und dem Innovationszentrum der ATOS AG wurde die Entwicklung der gewerblichen Nutzung gestartet.
VERKEHRSANBINDUNG
Öffentlich:
- Ubahn: U2 Station Seestadt
- Bus: 88A, 88B
Individualverkehr:
- A23 (in wenigen Minuten)
- Hochgarage (ca. 450 Stellplätze)
Details & Downloads
- Objektnummer IVG-O-10772/4.1
- Nutzfläche ca. 343 m²
- Verfügbar ab Nach Vereinbarung
- Nettomiete/Monat € 12,00 /m²
- Netto-Betriebskosten/Monat € 4,50 /m²
- Kaution 3-6 BMM (bonitätsabhängig)
- Provision 3 BMM zzgl. 20 % USt.
- HWB 22,3 kWh/m²
- Energieklasse A
- fGEE 0,76
- Heizung Zentralheizung, Fernwärme
Wien, 22. Donaustadt
€ 12,00 /m²
Nettomiete/Monat zzgl. BK, zzgl. USt.
-
Magdalena Lemut, BSc (WU) m.lemut@otto.at +43 676 480 36 74
Objekt Nr. IVG-O-10772/4.1
für Ihre Anfrage!
wird sich in Kürze bei Ihnen melden.
Vielen Dank für Ihre Anfrage! In Kürze melden wir uns bei Ihnen. Wir freuen uns darauf, Ihnen bei der Suche nach Ihrer Wunschimmobilie zu helfen. Entdecken Sie in der Zwischenzeit weitere attraktive Immobilien aus unserem Portfolio. Lassen Sie sich inspirieren und finden Sie Ihre Favoriten.
in der Nähe
Wien, 22. Donaustadt
HOHO | Top Büroflächen in der Seestadt
- ca. 617 m² Nutzfläche
- Verfügbar Nach Vereinbarung
€ 12,00 /m²/Monat netto
Wien, 22. Donaustadt
HOHO | Top Büroflächen in der Seestadt
- ca. 120 m² Nutzfläche
- Verfügbar Nach Vereinbarung
€ 12,00 /m²/Monat netto
Wien, 22. Donaustadt
HOHO | Top Büroflächen in der Seestadt
- ca. 794 m² Nutzfläche
- Verfügbar Nach Vereinbarung
€ 12,00 /m²/Monat netto
Wien, 22. Donaustadt
HOHO | Top Büroflächen in der Seestadt
- ca. 162 m² Nutzfläche
- Verfügbar Nach Vereinbarung
€ 12,00 /m²/Monat netto
Wien, 22. Donaustadt
HOHO | Top Büroflächen in der Seestadt
- ca. 446 m² Nutzfläche
- Verfügbar Nach Vereinbarung
€ 12,00 /m²/Monat netto
Wien, 22. Donaustadt
HOHO | Top Büroflächen in der Seestadt
- ca. 173 m² Nutzfläche
- Verfügbar Nach Vereinbarung
€ 12,00 /m²/Monat netto
Wien, 22. Donaustadt
HOHO | Top Büroflächen in der Seestadt
- ca. 161 m² Nutzfläche
- Verfügbar Nach Vereinbarung
€ 12,00 /m²/Monat netto
Wien, 22. Donaustadt
HOHO | Top Büroflächen in der Seestadt
- ca. 501 m² Nutzfläche
- Verfügbar Nach Vereinbarung
€ 12,00 /m²/Monat netto
Wien, 22. Donaustadt
HOHO | Top Büroflächen in der Seestadt
- ca. 684 m² Nutzfläche
- Verfügbar Nach Vereinbarung
€ 12,00 /m²/Monat netto
Wien, 22. Donaustadt
HOHO | Top Büroflächen in der Seestadt
- ca. 937 m² Nutzfläche
- Verfügbar Nach Vereinbarung
€ 12,00 /m²/Monat netto
Wien, 22. Donaustadt
HOHO | Top Büroflächen in der Seestadt
- ca. 686 m² Nutzfläche
- Verfügbar Nach Vereinbarung
€ 12,00 /m²/Monat netto
Wien, 22. Donaustadt
ROBIN Seestadt
- ca. 334 m² Nutzfläche
- Verfügbar Mitte 2024
€ 15,25 /m²/Monat netto
Wien, 22. Donaustadt
ROBIN Seestadt
- ca. 211 m² Nutzfläche
- Verfügbar Mitte 2024
€ 12,50 /m²/Monat netto
Wien, 22. Donaustadt
ROBIN Seestadt
- ca. 146 m² Nutzfläche
- Verfügbar Mitte 2024
€ 16,10 /m²/Monat netto
Wien, 22. Donaustadt
ROBIN Seestadt
- ca. 751 m² Nutzfläche
- Verfügbar Mitte 2024
€ 16,20 /m²/Monat netto
Wien, 22. Donaustadt
Bürofläche
- ca. 345 m² Nutzfläche
- Verfügbar Nach Vereinbarung
€ 11,50 /m²/Monat netto
Wien, 22. Donaustadt
Vienna Twenty Two - Bauteil 2
- ca. 1.045 m² Nutzfläche
- Verfügbar Nach Vereinbarung
€ 18,50 /m²/Monat netto
Wien, 22. Donaustadt
Vienna Twenty Two - Bauteil 2
- ca. 1.045 m² Nutzfläche
- Verfügbar Nach Vereinbarung
€ 18,50 /m²/Monat netto
Wien, 22. Donaustadt
V22
- ca. 950 m² Nutzfläche
- Verfügbar Nach Vereinbarung
€ 22,45 /m²/Monat netto
Wien, 22. Donaustadt
V22
- ca. 1.075 m² Nutzfläche
- Verfügbar Nach Vereinbarung
ab € 16,80 /m²/Monat netto
in der Nähe
Wien, 22. Donaustadt
HOHO | Top Büroflächen in der Seestadt
- ca. 617 m² Nutzfläche
- Verfügbar Nach Vereinbarung
€ 12,00 /m²/Monat netto
Wien, 22. Donaustadt
HOHO | Top Büroflächen in der Seestadt
- ca. 120 m² Nutzfläche
- Verfügbar Nach Vereinbarung
€ 12,00 /m²/Monat netto
Wien, 22. Donaustadt
HOHO | Top Büroflächen in der Seestadt
- ca. 794 m² Nutzfläche
- Verfügbar Nach Vereinbarung
€ 12,00 /m²/Monat netto
Wien, 22. Donaustadt
HOHO | Top Büroflächen in der Seestadt
- ca. 162 m² Nutzfläche
- Verfügbar Nach Vereinbarung
€ 12,00 /m²/Monat netto
Wien, 22. Donaustadt
HOHO | Top Büroflächen in der Seestadt
- ca. 446 m² Nutzfläche
- Verfügbar Nach Vereinbarung
€ 12,00 /m²/Monat netto
Wien, 22. Donaustadt
HOHO | Top Büroflächen in der Seestadt
- ca. 173 m² Nutzfläche
- Verfügbar Nach Vereinbarung
€ 12,00 /m²/Monat netto
Wien, 22. Donaustadt
HOHO | Top Büroflächen in der Seestadt
- ca. 161 m² Nutzfläche
- Verfügbar Nach Vereinbarung
€ 12,00 /m²/Monat netto
Wien, 22. Donaustadt
HOHO | Top Büroflächen in der Seestadt
- ca. 501 m² Nutzfläche
- Verfügbar Nach Vereinbarung
€ 12,00 /m²/Monat netto
Wien, 22. Donaustadt
HOHO | Top Büroflächen in der Seestadt
- ca. 684 m² Nutzfläche
- Verfügbar Nach Vereinbarung
€ 12,00 /m²/Monat netto
Wien, 22. Donaustadt
HOHO | Top Büroflächen in der Seestadt
- ca. 937 m² Nutzfläche
- Verfügbar Nach Vereinbarung
€ 12,00 /m²/Monat netto
Wien, 22. Donaustadt
HOHO | Top Büroflächen in der Seestadt
- ca. 686 m² Nutzfläche
- Verfügbar Nach Vereinbarung
€ 12,00 /m²/Monat netto
Wien, 22. Donaustadt
ROBIN Seestadt
- ca. 334 m² Nutzfläche
- Verfügbar Mitte 2024
€ 15,25 /m²/Monat netto
Wien, 22. Donaustadt
ROBIN Seestadt
- ca. 211 m² Nutzfläche
- Verfügbar Mitte 2024
€ 12,50 /m²/Monat netto
Wien, 22. Donaustadt
ROBIN Seestadt
- ca. 146 m² Nutzfläche
- Verfügbar Mitte 2024
€ 16,10 /m²/Monat netto
Wien, 22. Donaustadt
ROBIN Seestadt
- ca. 751 m² Nutzfläche
- Verfügbar Mitte 2024
€ 16,20 /m²/Monat netto
Wien, 22. Donaustadt
Bürofläche
- ca. 345 m² Nutzfläche
- Verfügbar Nach Vereinbarung
€ 11,50 /m²/Monat netto
Wien, 22. Donaustadt
Vienna Twenty Two - Bauteil 2
- ca. 1.045 m² Nutzfläche
- Verfügbar Nach Vereinbarung
€ 18,50 /m²/Monat netto
Wien, 22. Donaustadt
Vienna Twenty Two - Bauteil 2
- ca. 1.045 m² Nutzfläche
- Verfügbar Nach Vereinbarung
€ 18,50 /m²/Monat netto
Wien, 22. Donaustadt
V22
- ca. 950 m² Nutzfläche
- Verfügbar Nach Vereinbarung
€ 22,45 /m²/Monat netto
Wien, 22. Donaustadt
V22
- ca. 1.075 m² Nutzfläche
- Verfügbar Nach Vereinbarung
ab € 16,80 /m²/Monat netto