- from approx. 72 sq m Gross leasable area
- Nach Vereinbarung Availability
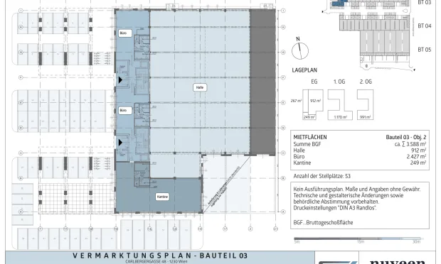
Vienna, 23. Liesing
CITY PARK VIENNA
Facilities
GENERAL ABOUT THE OBJECT
- Room temperature up to 17 degrees (hall) / up to 20 degrees (office/social)
- Extensively greened flat roof on foil roof sealing over insulated trapezoidal sheet metal (warm roof) above the hall
- Intercom system per unit
- Heating via geothermal energy
- Fiber optic connection
OFFICE
- Finishing according to construction and equipment description
- High-quality equipped office space
- Modern social areas
- Steel sheet parapet channel underneath the windows
- External sun protection (electrically operated)
- Plastic windows
- Needle felt floor (according to tenant's color choice)
PRODUCTION AND STORAGE AREA
- BUK 6.50 m
- Ground level sectional doors (W 3.0 m x H 4.30)
- Ramp approach for 40 tons truck (level +1.20 m)
- Industrial floor with max. 50kN (=approx. 5 tons)
- Naturally lit
- Hall floor accessible by forklift
SERVICE AREAS
- Individually designable areas on the first floor of the unit
- Takeover in noble carcass (extension possible on request)
- Sanitary area fully equipped
- Possibilities of use: Office space, service area, small workshop, etc.
- plastic windows
EXTERIOR AREAS
- Parking garage & outdoor parking spaces
- Fenced area
- Parking garage with > 400 parking spaces
Available units (1)
- Property-ID IVG-I-04341/B1
- GLA approx. 1,170 sq m
- divisible from approx. 483 sq m
- Ready-to-use Nach Vereinbarung
- Net rent price per month € 13.25 /sq m
- Net operating costs € 2.20 /sq m/month
- Deposit 3-6 BMM (bonitätsabhängig)
- Commission 3 BMM
- EPC 40.5 kWh/sq m
- Energy demand class B
- fGEE 0.63
- Year of construction 2023
- Heating Geothermal energy, Ceiling heating
Location
The property is located in the 23rd district of Vienna in the industrial center Liesing, one of the most important and largest industrial areas in Vienna. Due to the directly adjoining traffic junctions B12 and A21, in addition to the rapid accessibility of the superordinate traffic junctions, inner-city locations can also be reached very quickly.
PUBLIC CONNECTIONS:
- Bus: 60A - Carlbergergasse
- Bus: 64A - Perfektastraße
- S-Bahn: S1/S2/S3 - Atzgersdorf & Liesing
- subway: U6 - Perfektastraße
INDIVIDUAL TRAFFIC:
- B12, A21 - junction Brunn a. Gebirge
- S1 - junction Vösendorf
- B17 - junction Inzersdorf
Details & Downloads
- Property-ID IVG-I-04341
- divisible from approx. 55 sq m
- Ready-to-use Nach Vereinbarung
- Net rent price per month from € 13.25 /sq m
- Deposit 3-6 BMM (bonitätsabhängig)
- Commission 3 BMM
- EPC 40.5 kWh/sq m
- Energy demand class B
- fGEE 0.63
- Year of construction 2023
- Heating Underfloor heating, Geothermal energy, Ceiling heating
- Lighting Geothermal heating
Vienna, 23. Liesing
from € 13.25 /sq m
Net rent/month excl. operating costs
-
Alexandra Fischer a.fischer@otto.at +43 664 854 85 18
Property-ID IVG-I-04341
for your Request!
will get in touch with you shortly.
Thank you for your request! We will get back to you shortly. We look forward to assisting you in finding your ideal property. In the meantime, explore more attractive properties from our portfolio. Get inspired and find your favorites.
Vienna, 9. Alsergrund
- from approx. 270 sq m
- Available
Vienna, 23. Liesing
- Available
Vienna, 2. Leopoldstadt
Office space in the HSW Office Park near Praterstern
- 4 Units
- from approx. 161 sq m
- Available By Arrangement
Vienna, 4. Wieden
- 1 Unit
- Available
Vienna, 3. Landstraße
Premium Office Spaces at Fabiani House
- 2 Units
- Available By arrangement
Vienna, 23. Liesing
Fabrik1230 - The new neighborhood center
- 4 Units
- from approx. 84 sq m
- Available By arrangement
Vienna, 7. Neubau
Light-flooded office in old building near Mariahilfer Straße
- 2 Units
- from approx. 147 sq m
- Available By arrangement
4020, Linz
COMMISSION-FREE – Modern Offices in the Quadrill Tower
- 4 Units
- from approx. 207 sq m
- Available End of 2025
Vienna, 11. Simmering
- from approx. 440 sq m
- Available
Vienna, 3. Landstraße
- 2 Units
- Available
Vienna, 23. Liesing
Offices for Rent on Slamastraße!
- 7 Units
- Available By arrangement
Vienna, 3. Landstraße
LOOP Offices
- 7 Units
- Available Q4 / 2026
Vienna, 11. Simmering
Modern offices between the main railway station and the airport!
- 9 Units
- Available Nach Vereinbarung
Vienna, 3. Landstraße
DOCKS – 9,000 sqm of flexible workspace
- 6 Units
- from approx. 400 sq m
- Available By arrangement
Vienna, 3. Landstraße
enna - The Work-Life-Building
- 21 Units
- from approx. 311 sq m
- Available by the end
Vienna, 11. Simmering
MC 15 - An office building that combines efficiency, innovation and environmental awareness.
- 15 Units
- from approx. 154 sq m
- Available Q4 2025 / Q1 2026
Vienna, 22. Donaustadt
ROBIN Seestadt
- 4 Units
- Available Nach Vereinbarung
Vienna, 12. Meidling
EURO PLAZA 1 - Your all-in-1 office
- 3 Units
- from approx. 384 sq m
- Available By Arrangement
Vienna, 21. Floridsdorf
Modern working at FutureHub North
- 7 Units
- from approx. 945 sq m
- Available Nach Vereinbarung
Vienna, 3. Landstraße
VILLAGE WORKS
- 20 Units
- from approx. 250 sq m
- Available End of 2025
Vienna, 9. Alsergrund
- from approx. 270 sq m
- Available
Vienna, 23. Liesing
- Available
Vienna, 2. Leopoldstadt
Office space in the HSW Office Park near Praterstern
- 4 Units
- from approx. 161 sq m
- Available By Arrangement
Vienna, 4. Wieden
- 1 Unit
- Available
Vienna, 3. Landstraße
Premium Office Spaces at Fabiani House
- 2 Units
- Available By arrangement
Vienna, 23. Liesing
Fabrik1230 - The new neighborhood center
- 4 Units
- from approx. 84 sq m
- Available By arrangement
Vienna, 7. Neubau
Light-flooded office in old building near Mariahilfer Straße
- 2 Units
- from approx. 147 sq m
- Available By arrangement
4020, Linz
COMMISSION-FREE – Modern Offices in the Quadrill Tower
- 4 Units
- from approx. 207 sq m
- Available End of 2025
Vienna, 11. Simmering
- from approx. 440 sq m
- Available
Vienna, 3. Landstraße
- 2 Units
- Available
Vienna, 23. Liesing
Offices for Rent on Slamastraße!
- 7 Units
- Available By arrangement
Vienna, 3. Landstraße
LOOP Offices
- 7 Units
- Available Q4 / 2026
Vienna, 11. Simmering
Modern offices between the main railway station and the airport!
- 9 Units
- Available Nach Vereinbarung
Vienna, 3. Landstraße
DOCKS – 9,000 sqm of flexible workspace
- 6 Units
- from approx. 400 sq m
- Available By arrangement
Vienna, 3. Landstraße
enna - The Work-Life-Building
- 21 Units
- from approx. 311 sq m
- Available by the end
Vienna, 11. Simmering
MC 15 - An office building that combines efficiency, innovation and environmental awareness.
- 15 Units
- from approx. 154 sq m
- Available Q4 2025 / Q1 2026
Vienna, 22. Donaustadt
ROBIN Seestadt
- 4 Units
- Available Nach Vereinbarung
Vienna, 12. Meidling
EURO PLAZA 1 - Your all-in-1 office
- 3 Units
- from approx. 384 sq m
- Available By Arrangement
Vienna, 21. Floridsdorf
Modern working at FutureHub North
- 7 Units
- from approx. 945 sq m
- Available Nach Vereinbarung
Vienna, 3. Landstraße
VILLAGE WORKS
- 20 Units
- from approx. 250 sq m
- Available End of 2025