- from approx. 945 sq m Gross leasable area
- Nach Vereinbarung Availability
Vienna, 21. Floridsdorf
Modern working at FutureHub North
Facilities
- Hochwertige Büromöbel, sowohl voll- als auch teilmöbeliert
- Jahreszeitgesteuerte Außenjalousien
- Stehleuchten sind anwesenheitsgesteuert, außenlichtabhängig und voll dimmbar
- Siemens Conference Center - Geeignet für Pressekonferenzen, Kongresse oder Hausmessen mit moderner Ausstattung (Beamer, W-LAN, Mediensteuerung, Doordisplays, eindrucksvolle Atmosphäre)
- Kindergarten
- Bücherei
- Kultursportverein
- Medizincenter
- E-Auto
- Ladestationen
- Co-working Space
Gebäude 63/64/69/70:
- Gebäude nach LEED-Gold Standard zertifiziert
- Zentrale Klimatisierung mit Filterung der Frischluft
- Sensorgesteuerter Sonnenschutz
- 2,90m Nettogeschosshöhe, 2,50m unter Gangkoffer
- Doppelboden
- Akkustikdecke
- Phonebooth
- Zutrittskontrolle (Alle Mitarbeiter benötigen Chip-Zugangskarte, Kosten je ~33€)
- Direkter Zugang zum Siemens City Hauptgebäude und seinen Services
- Tiefgaragenstellplätze nach Absprache möglich
- Optional Möbelmiete
- Kantinen Service
Gebäude 14 - ehemalige Lehrwerkstätte:
- Laminat und beschichteter Betonboden
- Klimatisiert
- Radiatoren
- Teeküche
- Getrennte Sanitäreinheiten
- Zutrittskontrolle (Alle Mitarbeiter benötigen Chip-Zugangskarte, Kosten je ~33€)
- Außenparkplätze nach Absprache möglich
- Werkstattfläche auch als Open Office möglich
- Lichte Raumhöhe 3,30m
- Zwei Lastenaufzüge, kein Lift
- Druckluftanlage im 2.OG
- Tragfähigkeit im 2.OG 500kg/m²
- Belegungsplan Architekturbüro
- Kantinen Service
Gebäude 16 - "Industriebüro"/Lager:
- Teppichfliesen und Laminat
- Radiatoren
- Teeküche
- Getrennte Sanitäreinheiten
- Zutrittskontrolle (Alle Mitarbeiter benötigen Chip-Zugangskarte, Kosten je ~33€)
- Außenparkplätze nach Absprache möglich
- Kein Lift, Ein Lastenaufzug
- Nach Absprache Möglichkeit eines neuen Bodens und Anstrichs
- Logistiklager als Mieter im EG
- Kantinen Service
Gebäude 33:
- Doppelboden mit Teppichboden
- Radiatoren
- Teilklimatisiert
- Teeküche
- Getrennte Sanitäreinheiten
- Außenparkplätze nach Absprache möglich
- Vier Lifts
- Ausbildungszentren und Büros von Siemens im Gebäude
- 360° Blick über Floridsdorf
- Kantinen Service
Gebäude 35 - ehemaliger Kindergarten:
- PVC-Boden
- Radiatoren
- Teeküche
- Getrennte Sanitäreinheiten
- Außenparkplätze nach Absprache möglich
- „Drop-Off“-Parkplatzbereich
- 3 Gruppenräume, je ein Sanitärkern
- 1 großer Bewegungsraum
- Bürofläche
- „Malraum“
- Kantinen Service
- Bezugsfertig auf aktuellem Standard
- Mietdauer bis Ende 2028
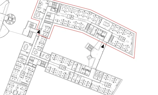
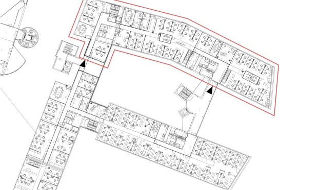
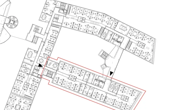
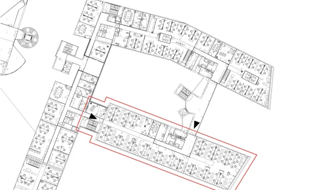
Available units (7)
- Property-ID IVG-O-10812/63-1
- GLA approx. 919 sq m
- Ready-to-use sofort
- Net rent price per month € 14.00 /sq m
- Net operating costs € 4.90 /sq m/month
- Deposit 3-6 BMM (bonitätsabhängig)
- Commission 3 BMM zzgl. 20 % USt.
- EPC in progress
- fGEE in progress
- Property-ID IVG-O-10812/63-2
- GLA approx. 932 sq m
- Ready-to-use sofort
- Net rent price per month € 14.00 /sq m
- Net operating costs € 4.90 /sq m/month
- Deposit 3-6 BMM (bonitätsabhängig)
- Commission 3 BMM zzgl. 20 % USt.
- EPC in progress
- fGEE in progress
- Property-ID IVG-O-10812/64-1
- GLA approx. 685 sq m
- Ready-to-use sofort
- Net rent price per month € 14.00 /sq m
- Net operating costs € 4.90 /sq m/month
- Deposit 3-6 BMM (bonitätsabhängig)
- Commission 3 BMM zzgl. 20 % USt.
- EPC in progress
- fGEE in progress
- Property-ID IVG-O-10812/63-1+2
- GLA approx. 1,963 sq m
- Ready-to-use nach Vereinbarung
- Net rent price per month € 14.95 /sq m
- Net operating costs € 4.99 /sq m/month
- Deposit 3-6 BMM (bonitätsabhängig)
- Commission 3 BMM zzgl. 20 % USt.
- EPC in progress
- fGEE in progress
- Property-ID IVG-O-10812/64-2
- GLA approx. 676 sq m
- Ready-to-use sofort
- Net rent price per month € 14.00 /sq m
- Net operating costs € 4.90 /sq m/month
- Deposit 3-6 BMM (bonitätsabhängig)
- Commission 3 BMM zzgl. 20 % USt.
- EPC in progress
- fGEE in progress
- Property-ID IVG-O-10812/64-1+2
- GLA approx. 1,457 sq m
- Ready-to-use nach Vereinbarung
- Net rent price per month € 14.95 /sq m
- Net operating costs € 4.99 /sq m/month
- Deposit 3-6 BMM (bonitätsabhängig)
- Commission 3 BMM zzgl. 20 % USt.
- EPC in progress
- fGEE in progress
- Property-ID IVG-O-10812/14-2
- GLA approx. 2,407 sq m
- Ready-to-use sofort
- Net rent price per month € 12.90 /sq m
- Net operating costs € 4.50 /sq m/month
- Deposit 3-6 BMM (bonitätsabhängig)
- Commission 3 BMM zzgl. 20 % USt.
- EPC in progress
- fGEE in progress
Location
Öffentliche Verkehrsanbindung:
- S-Bahn: S1, S2, S3, S7
- Bus: 28A, 31A
- Zug: Bahnhof Siemensstraße
Individualverkehr:
- Drei Zufahrten für PKWs
- Eine Zufahrt auch für LKWs
Parken:
- Parkplatzflächen für PKW, Motorrad und Fahrrad für Kunden und Mitarbeiter (>2.500 Parkplätze)
- Außenstellplätze: je € 60,00 / Stellplatz
- Garagenstellplätze: je € 120,00 / Stellplatz (pro 100 m² 1 Stellplatz)
- E-Ladestationen für Gäste und Mieter verfügbar!
Details & Downloads
- Property-ID IVG-O-10812
- divisible from approx. 945 sq m
- Ready-to-use Nach Vereinbarung
- Net rent price per month from € 12.90 /sq m
- Deposit 3-6 BMM (bonitätsabhängig)
- Commission 3 BMM zzgl. 20 % USt.
- EPC in progress
- Energy demand class A++
- fGEE in progress
-
All floor plans ZIP Archive
-
Floor plan Lageplan Gebäude JPG · 261 KB
-
Floor plan Gebäude 64 2. OG JPG · 201 KB
-
Floor plan Gebäude 64 1. OG JPG · 181 KB
-
Floor plan Gebäude 63 2. OG JPG · 204 KB
-
Floor plan Gebäude 63 1. OG JPG · 184 KB
-
Floor plan Gebäude 33 5. OG JPG · 112 KB
-
Floor plan Gebäude 14 2. OG JPG · 120 KB
Vienna, 21. Floridsdorf
from € 12.90 /sq m
Net rent/month excl. operating costs
-
Andrea Fiedler a.fiedler@otto.at +43 676 684 54 59
Property-ID IVG-O-10812
for your Request!
will get in touch with you shortly.
Thank you for your request! We will get back to you shortly. We look forward to assisting you in finding your ideal property. In the meantime, explore more attractive properties from our portfolio. Get inspired and find your favorites.
Vienna, 9. Alsergrund
- from approx. 270 sq m
- Available
Vienna, 23. Liesing
- Available
Vienna, 2. Leopoldstadt
Office space in the HSW Office Park near Praterstern
- 4 Units
- from approx. 161 sq m
- Available By Arrangement
Vienna, 4. Wieden
- 1 Unit
- Available
Vienna, 3. Landstraße
Premium Office Spaces at Fabiani House
- 2 Units
- Available By arrangement
Vienna, 23. Liesing
Fabrik1230 - The new neighborhood center
- 4 Units
- from approx. 84 sq m
- Available By arrangement
Vienna, 7. Neubau
Light-flooded office in old building near Mariahilfer Straße
- 2 Units
- from approx. 147 sq m
- Available By arrangement
4020, Linz
COMMISSION-FREE – Modern Offices in the Quadrill Tower
- 4 Units
- from approx. 207 sq m
- Available End of 2025
Vienna, 11. Simmering
- from approx. 440 sq m
- Available
Vienna, 3. Landstraße
- 2 Units
- Available
Vienna, 23. Liesing
Offices for Rent on Slamastraße!
- 7 Units
- Available By arrangement
Vienna, 3. Landstraße
LOOP Offices
- 7 Units
- Available Q4 / 2026
Vienna, 11. Simmering
Modern offices between the main railway station and the airport!
- 9 Units
- Available Nach Vereinbarung
Vienna, 3. Landstraße
DOCKS – 9,000 sqm of flexible workspace
- 6 Units
- from approx. 400 sq m
- Available By arrangement
Vienna, 3. Landstraße
enna - The Work-Life-Building
- 13 Units
- from approx. 301 sq m
- Available by the end
Vienna, 11. Simmering
MC 15 - An office building that combines efficiency, innovation and environmental awareness.
- 15 Units
- from approx. 154 sq m
- Available Q4 2025 / Q1 2026
Vienna, 22. Donaustadt
ROBIN Seestadt
- 4 Units
- Available Nach Vereinbarung
Vienna, 12. Meidling
EURO PLAZA 1 - Your all-in-1 office
- 3 Units
- from approx. 384 sq m
- Available By Arrangement
Vienna, 3. Landstraße
VILLAGE WORKS
- 20 Units
- from approx. 250 sq m
- Available End of 2025
Vienna, 21. Floridsdorf
GRAND CENTRAL
- 6 Units
- from approx. 301 sq m
- Available By arrangement
Vienna, 9. Alsergrund
- from approx. 270 sq m
- Available
Vienna, 23. Liesing
- Available
Vienna, 2. Leopoldstadt
Office space in the HSW Office Park near Praterstern
- 4 Units
- from approx. 161 sq m
- Available By Arrangement
Vienna, 4. Wieden
- 1 Unit
- Available
Vienna, 3. Landstraße
Premium Office Spaces at Fabiani House
- 2 Units
- Available By arrangement
Vienna, 23. Liesing
Fabrik1230 - The new neighborhood center
- 4 Units
- from approx. 84 sq m
- Available By arrangement
Vienna, 7. Neubau
Light-flooded office in old building near Mariahilfer Straße
- 2 Units
- from approx. 147 sq m
- Available By arrangement
4020, Linz
COMMISSION-FREE – Modern Offices in the Quadrill Tower
- 4 Units
- from approx. 207 sq m
- Available End of 2025
Vienna, 11. Simmering
- from approx. 440 sq m
- Available
Vienna, 3. Landstraße
- 2 Units
- Available
Vienna, 23. Liesing
Offices for Rent on Slamastraße!
- 7 Units
- Available By arrangement
Vienna, 3. Landstraße
LOOP Offices
- 7 Units
- Available Q4 / 2026
Vienna, 11. Simmering
Modern offices between the main railway station and the airport!
- 9 Units
- Available Nach Vereinbarung
Vienna, 3. Landstraße
DOCKS – 9,000 sqm of flexible workspace
- 6 Units
- from approx. 400 sq m
- Available By arrangement
Vienna, 3. Landstraße
enna - The Work-Life-Building
- 13 Units
- from approx. 301 sq m
- Available by the end
Vienna, 11. Simmering
MC 15 - An office building that combines efficiency, innovation and environmental awareness.
- 15 Units
- from approx. 154 sq m
- Available Q4 2025 / Q1 2026
Vienna, 22. Donaustadt
ROBIN Seestadt
- 4 Units
- Available Nach Vereinbarung
Vienna, 12. Meidling
EURO PLAZA 1 - Your all-in-1 office
- 3 Units
- from approx. 384 sq m
- Available By Arrangement
Vienna, 3. Landstraße
VILLAGE WORKS
- 20 Units
- from approx. 250 sq m
- Available End of 2025
Vienna, 21. Floridsdorf
GRAND CENTRAL
- 6 Units
- from approx. 301 sq m
- Available By arrangement