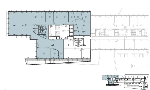
- approx. 667 sq m Gross leasable area
- Nach Vereinbarung Availability
Vienna, 12. Meidling
FORUM SCHÖNBRUNN BTI
-
Philipp Granabetter, BSc (WU) MA p.granabetter@otto.at +43 664 851 64 41
All Units on this Development
Facilities
- Sonnenschutz/Außenjalousien
- Personenaufzüge
- abgehängte Decken
- Einbauleuchten
- Doppelboden
- EDV-Verkabelung (vom Vormieter)
- Serverraum
- lichte Raumhöhe ca. 2,80m
- Teppichfliesen
- Heizung und Kühlung vorhanden
- ausgestattete Teeküchen (vom Vormieter)
- attraktive und effiziente Grundrisse (Einzel-, Kombi- oder Gruppenbüros möglich)
Location
Die Lage des Forums Schönbrunn an der Grünbergstraße bietet ideale Möglichkeiten und eine lückenlose und bequeme Erreichbarkeit. Direkt am Schnittpunkt der Süd- und Westachse sowie der U-Bahnlinie U4 ist die Bürofläche ideal erreichbar sowie bestens an das Stadtzentrum angebunden.
Ein besonderes Highlight ist mit Sicherheit der gegenüberliegende Schlosspark. Dieser bietet sich für sonnige Mittagspausen, Spaziergänge und sportliche Aktivitäten an. Die Infrastruktur rund um den Bürostandort ist hervorragend entwickelt. In den Untergeschossen stehen ausreichend Stellplätze und Lagerflächen zur Verfügung. Geschäfte des täglichen Bedarfs und ein netter Fundus an lokaler Gastronomie ist nur wenigen Gehminuten entfernt.
VERKEHRSANBINDUNGEN:
Öffentliche Anbindung:
- U-Bahn: U4 Schönbrunn
- Bus: 10A, 63A
- Straßenbahn: 10, 60
Details & Downloads
- Property-ID IVG-O-04462/3
- GLA approx. 667 sq m
- Ready-to-use Nach Vereinbarung
- Net rent price per month € 15.50 /sq m
- Net operating costs € 4.70 /sq m/month
- Deposit 3-6 BMM (bonitätsabhängig)
- Commission 3 BMM zzgl. 20 % USt.
- EPC 34.0 kWh/sq m
- Energy demand class B
- fGEE 0.77
- Year of construction 2008
- Heating District heating
Additional
Vienna, 12. Meidling
€ 15.50 /sq m
Net rent/month excl. operating costs
-
Philipp Granabetter, BSc (WU) MA p.granabetter@otto.at +43 664 851 64 41
Property-ID IVG-O-04462/3
for your Request!
will get in touch with you shortly.
Thank you for your request! We will get back to you shortly. We look forward to assisting you in finding your ideal property. In the meantime, explore more attractive properties from our portfolio. Get inspired and find your favorites.
nearby
Vienna, 12. Meidling
Opposite Schoenbrunn Palace
- approx. 781 sq m gross leasable area
- Available immediately
€ 14.00 /sq m/month net
Vienna, 12. Meidling
Opposite Schoenbrunn Palace
- approx. 592 sq m gross leasable area
- Available immediately
€ 14.00 /sq m/month net
Vienna, 12. Meidling
Forum Schönbrunn BT II
- approx. 242 sq m gross leasable area
- Available immediately
€ 13.50 /sq m/month net
Vienna, 15. Rudolfsheim-Fünfhaus
Bürofläche an der Linken Wienzeile
- approx. 377 sq m gross leasable area
- Available April 2021
€ 19.90 /sq m/month net
Vienna, 12. Meidling
VIO PLAZA
- approx. 360 sq m gross leasable area
- Available Q1 2024
€ 16.75 /sq m/month net
Vienna, 12. Meidling
Inno Center Retro
- approx. 308 sq m gross leasable area
- Available Nach Vereinbarung
€ 14.50 /sq m/month net
Vienna, 12. Meidling
Inno Center Retro
- approx. 224 sq m gross leasable area
- Available Nach Vereinbarung
€ 14.50 /sq m/month net
Vienna, 12. Meidling
Inno Center Retro
- approx. 617 sq m gross leasable area
- Available Nach Vereinbarung
€ 14.10 /sq m/month net
Vienna, 12. Meidling
Inno Center Retro
- approx. 4,489 sq m gross leasable area
- Available Nach Vereinbarung
€ 64,728.42 /month net
Vienna, 12. Meidling
Unique loft office - an office with a view!
- approx. 1,239 sq m gross leasable area
- Available nach Vereinbarung
€ 18.00 /sq m/month net
Vienna, 12. Meidling
EURO PLAZA 1 - Ihr All-in-1 Büro
- approx. 533 sq m gross leasable area
- Available nach Vereinbarung
€ 15.90 /sq m/month net
Vienna, 12. Meidling
EURO PLAZA 1 - Ihr All-in-1 Büro
- approx. 917 sq m gross leasable area
- Available nach Vereinbarung
€ 15.70 /sq m/month net
Vienna, 12. Meidling
EURO PLAZA 1 - Ihr All-in-1 Büro
- approx. 1,239 sq m gross leasable area
- Available nach Vereinbarung
€ 15.70 /sq m/month net
Vienna, 12. Meidling
EURO PLAZA - G
- approx. 890 sq m gross leasable area
- Available By arrangement
€ 15.50 /sq m/month net
Vienna, 12. Meidling
EURO PLAZA - G
- approx. 589 sq m gross leasable area
- Available By arrangement
€ 15.50 /sq m/month net
Vienna, 12. Meidling
EURO PLAZA - G
- approx. 684 sq m gross leasable area
- Available By arrangement
€ 14.50 /sq m/month net
Vienna, 12. Meidling
EURO PLAZA - G
- approx. 668 sq m gross leasable area
- Available By arrangement
€ 14.50 /sq m/month net
Vienna, 12. Meidling
EURO PLAZA - G
- approx. 1,479 sq m gross leasable area
- Available By arrangement
€ 15.50 /sq m/month net
Vienna, 12. Meidling
EURO PLAZA - G
- approx. 684 sq m gross leasable area
- Available By arrangement
€ 14.50 /sq m/month net
Vienna, 12. Meidling
Modern working with a campus feeling
- approx. 283 sq m gross leasable area
- Available By arrangement
€ 15.90 /sq m/month net
nearby
Vienna, 12. Meidling
Opposite Schoenbrunn Palace
- approx. 781 sq m gross leasable area
- Available immediately
€ 14.00 /sq m/month net
Vienna, 12. Meidling
Opposite Schoenbrunn Palace
- approx. 592 sq m gross leasable area
- Available immediately
€ 14.00 /sq m/month net
Vienna, 12. Meidling
Forum Schönbrunn BT II
- approx. 242 sq m gross leasable area
- Available immediately
€ 13.50 /sq m/month net
Vienna, 15. Rudolfsheim-Fünfhaus
Bürofläche an der Linken Wienzeile
- approx. 377 sq m gross leasable area
- Available April 2021
€ 19.90 /sq m/month net
Vienna, 12. Meidling
VIO PLAZA
- approx. 360 sq m gross leasable area
- Available Q1 2024
€ 16.75 /sq m/month net
Vienna, 12. Meidling
Inno Center Retro
- approx. 308 sq m gross leasable area
- Available Nach Vereinbarung
€ 14.50 /sq m/month net
Vienna, 12. Meidling
Inno Center Retro
- approx. 224 sq m gross leasable area
- Available Nach Vereinbarung
€ 14.50 /sq m/month net
Vienna, 12. Meidling
Inno Center Retro
- approx. 617 sq m gross leasable area
- Available Nach Vereinbarung
€ 14.10 /sq m/month net
Vienna, 12. Meidling
Inno Center Retro
- approx. 4,489 sq m gross leasable area
- Available Nach Vereinbarung
€ 64,728.42 /month net
Vienna, 12. Meidling
Unique loft office - an office with a view!
- approx. 1,239 sq m gross leasable area
- Available nach Vereinbarung
€ 18.00 /sq m/month net
Vienna, 12. Meidling
EURO PLAZA 1 - Ihr All-in-1 Büro
- approx. 533 sq m gross leasable area
- Available nach Vereinbarung
€ 15.90 /sq m/month net
Vienna, 12. Meidling
EURO PLAZA 1 - Ihr All-in-1 Büro
- approx. 917 sq m gross leasable area
- Available nach Vereinbarung
€ 15.70 /sq m/month net
Vienna, 12. Meidling
EURO PLAZA 1 - Ihr All-in-1 Büro
- approx. 1,239 sq m gross leasable area
- Available nach Vereinbarung
€ 15.70 /sq m/month net
Vienna, 12. Meidling
EURO PLAZA - G
- approx. 890 sq m gross leasable area
- Available By arrangement
€ 15.50 /sq m/month net
Vienna, 12. Meidling
EURO PLAZA - G
- approx. 589 sq m gross leasable area
- Available By arrangement
€ 15.50 /sq m/month net
Vienna, 12. Meidling
EURO PLAZA - G
- approx. 684 sq m gross leasable area
- Available By arrangement
€ 14.50 /sq m/month net
Vienna, 12. Meidling
EURO PLAZA - G
- approx. 668 sq m gross leasable area
- Available By arrangement
€ 14.50 /sq m/month net
Vienna, 12. Meidling
EURO PLAZA - G
- approx. 1,479 sq m gross leasable area
- Available By arrangement
€ 15.50 /sq m/month net
Vienna, 12. Meidling
EURO PLAZA - G
- approx. 684 sq m gross leasable area
- Available By arrangement
€ 14.50 /sq m/month net
Vienna, 12. Meidling
Modern working with a campus feeling
- approx. 283 sq m gross leasable area
- Available By arrangement
€ 15.90 /sq m/month net