- nach Vereinbarung Availability
Vienna, 21. Floridsdorf
Operating location in the north of Vienna
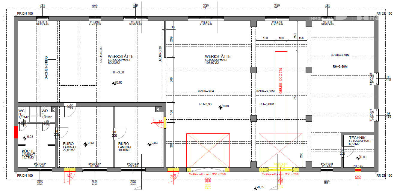
Facilities
WORKSHOP:
- Foundations for 3 lifting platforms
- Workshop pit
- Brake control roller
- Pre-installed compressed air lines
- Separate compressor room (without compressor)
- Approx. 56.5 m² office, social and sanitary rooms
- Gas heating with fan heaters
WAREHOUSE:
- 3 ground-level doors
- Bottom Edge of binders: 6m
- Cold warehouse (insulated but not heatable)
COVERED STORAGE AREA:
- Partially lockable
Location
The property is located in a commercial area with good transport links in the north of Vienna.
Public transport connections such as bus and suburban railway lines are within walking distance. The location is also ideal for private transport - with direct car and lorry access and good connections to national transport routes.
There is also a direct railway siding on the site, which further simplifies logistics processes.
TRANSPORT LINKS
Public transport connections:
Bus: 33B
S-Bahn: ‘Strebersdorf’ station around 700 metres away
INDIVIDUAL:
The property is easily accessible by car and lorry
A22: 1.2 km
Prager Straße: 1.4 km
Details & Downloads
- Property-ID IVG-I-07678/5
- Ready-to-use nach Vereinbarung
- Net rent price per month Price on request
- Deposit 3-6 BMM (bonitätsabhängig)
- Commission 3 BMM zzgl. 20% USt.
- EPC in progress
- fGEE in progress
- Year of construction 2017
- Heating Gas heating
Vienna, 21. Floridsdorf
Price on request
-
Ralph Leitner r.leitner@otto.at +43 664 885 33 203
Property-ID IVG-I-07678/5
for your Request!
will get in touch with you shortly.
Thank you for your request! We will get back to you shortly. We look forward to assisting you in finding your ideal property. In the meantime, explore more attractive properties from our portfolio. Get inspired and find your favorites.

Vienna, 22. Donaustadt
Lagerhalle mit Büro im Wiener Norden
- Available Nach Vereinbarung

Vienna, 22. Donaustadt
Modern Warehouse in the North of Vienna
- Available Upon agreement

3382, Loosdorf
High-quality refrigerated warehouse on the A1 motorway
- 1 Unit
- from approx. 6,271 sq m
- Available Q3 2025

2100, Korneuburg
First occupancy of deep-freeze warehouse in Korneuburg
- from approx. 1,527 sq m
- Available Nach Vereinbarung

Vienna, 21. Floridsdorf
Ideally located business property with warehouse and office space
- 2 Units
- Available Nach Vereinbarung

2460, Bruck an der Leitha
Logistikpark Bruck A4
- from approx. 2,265 sq m
- Available

2201, Hagenbrunn
Warehouse & open space near G3 / Hagenbrunn
- 1 Unit
- from approx. 57 sq m
- Available nach Vereinbarung

Vienna, 21. Floridsdorf
Hall properties on the U1 line / Vienna North
- 2 Units
- from approx. 2,000 sq m
- Available nach Vereinbarung

Vienna, 22. Donaustadt
Attractive commercial property in 1220 Vienna
- 1 Unit
- Available Q4 2025

2540, Bad Vöslau
Business park on the A2
- 4 Units
- from approx. 1,340 sq m
- Available Q2 2025

Senec, Slovakia
Slovakia - Senec: perfectly located logistics hall
- 2 Units
- from approx. 3,300 sq m
- Available sofort

4694, Ohlsdorf
Industrial and Logistics Park Ehrenfeld / Upper Austria
- 3 Units
- from approx. 3,500 sq m
- Available Q3 2024

Vienna, 23. Liesing
Modern high-bay warehouse
- 2 Units
- from approx. 891 sq m
- Available by arrangement

2542, Kottingbrunn
Industrial & Logistics Park south of Vienna
- 5 Units
- Available by arrangement

3131, Inzersdorf ob der Traisen
Industrial Park ST: POELTEN NORTH
- Available upon agreement

Vienna, 23. Liesing
CITY PARK VIENNA - Multifunctional commercial property
- 1 Unit
- from approx. 1,565 sq m
- Available by arrangement

Vienna, 22. Donaustadt
Business Park Vienna
- 8 Units
- from approx. 1,289 sq m
- Available by arrangement

Sezana, Slovenia
Slovenia - Logistics Park ADRIA KOPER / Sezana
- 2 Units
- Available 2026

Sered, Slovakia
Industrial & Logistics Park Sered / Western Slovakia - commission-free rental
- 2 Units
- Available 03/2021

Lozorno, Slovakia
Logistics Park D2 Lozorno / Bratislava - commission-free rental
- 2 Units
- from approx. 2,000 sq m
- Available nach Absprache

Vienna, 22. Donaustadt
Lagerhalle mit Büro im Wiener Norden
- Available Nach Vereinbarung

Vienna, 22. Donaustadt
Modern Warehouse in the North of Vienna
- Available Upon agreement

3382, Loosdorf
High-quality refrigerated warehouse on the A1 motorway
- 1 Unit
- from approx. 6,271 sq m
- Available Q3 2025

2100, Korneuburg
First occupancy of deep-freeze warehouse in Korneuburg
- from approx. 1,527 sq m
- Available Nach Vereinbarung

Vienna, 21. Floridsdorf
Ideally located business property with warehouse and office space
- 2 Units
- Available Nach Vereinbarung

2460, Bruck an der Leitha
Logistikpark Bruck A4
- from approx. 2,265 sq m
- Available

2201, Hagenbrunn
Warehouse & open space near G3 / Hagenbrunn
- 1 Unit
- from approx. 57 sq m
- Available nach Vereinbarung

Vienna, 21. Floridsdorf
Hall properties on the U1 line / Vienna North
- 2 Units
- from approx. 2,000 sq m
- Available nach Vereinbarung

Vienna, 22. Donaustadt
Attractive commercial property in 1220 Vienna
- 1 Unit
- Available Q4 2025

2540, Bad Vöslau
Business park on the A2
- 4 Units
- from approx. 1,340 sq m
- Available Q2 2025

Senec, Slovakia
Slovakia - Senec: perfectly located logistics hall
- 2 Units
- from approx. 3,300 sq m
- Available sofort

4694, Ohlsdorf
Industrial and Logistics Park Ehrenfeld / Upper Austria
- 3 Units
- from approx. 3,500 sq m
- Available Q3 2024

Vienna, 23. Liesing
Modern high-bay warehouse
- 2 Units
- from approx. 891 sq m
- Available by arrangement

2542, Kottingbrunn
Industrial & Logistics Park south of Vienna
- 5 Units
- Available by arrangement

3131, Inzersdorf ob der Traisen
Industrial Park ST: POELTEN NORTH
- Available upon agreement

Vienna, 23. Liesing
CITY PARK VIENNA - Multifunctional commercial property
- 1 Unit
- from approx. 1,565 sq m
- Available by arrangement

Vienna, 22. Donaustadt
Business Park Vienna
- 8 Units
- from approx. 1,289 sq m
- Available by arrangement

Sezana, Slovenia
Slovenia - Logistics Park ADRIA KOPER / Sezana
- 2 Units
- Available 2026

Sered, Slovakia
Industrial & Logistics Park Sered / Western Slovakia - commission-free rental
- 2 Units
- Available 03/2021

Lozorno, Slovakia
Logistics Park D2 Lozorno / Bratislava - commission-free rental
- 2 Units
- from approx. 2,000 sq m
- Available nach Absprache