- 187 sq m Living space
- 10,284 sq m Plot area
- 5 Bedrooms
- immediately Availability
- 2 Bath rooms
- 3 Toilets
Vienna, 19. Döbling
Single-family house in a prestigious location
-
Sonja Kaspar s.kaspar@otto.at +43 664 854 85 15
Facilities
For the purchaser of the property, there are two possible options:
Option 1 – Preservation of the building structure and refurbishment
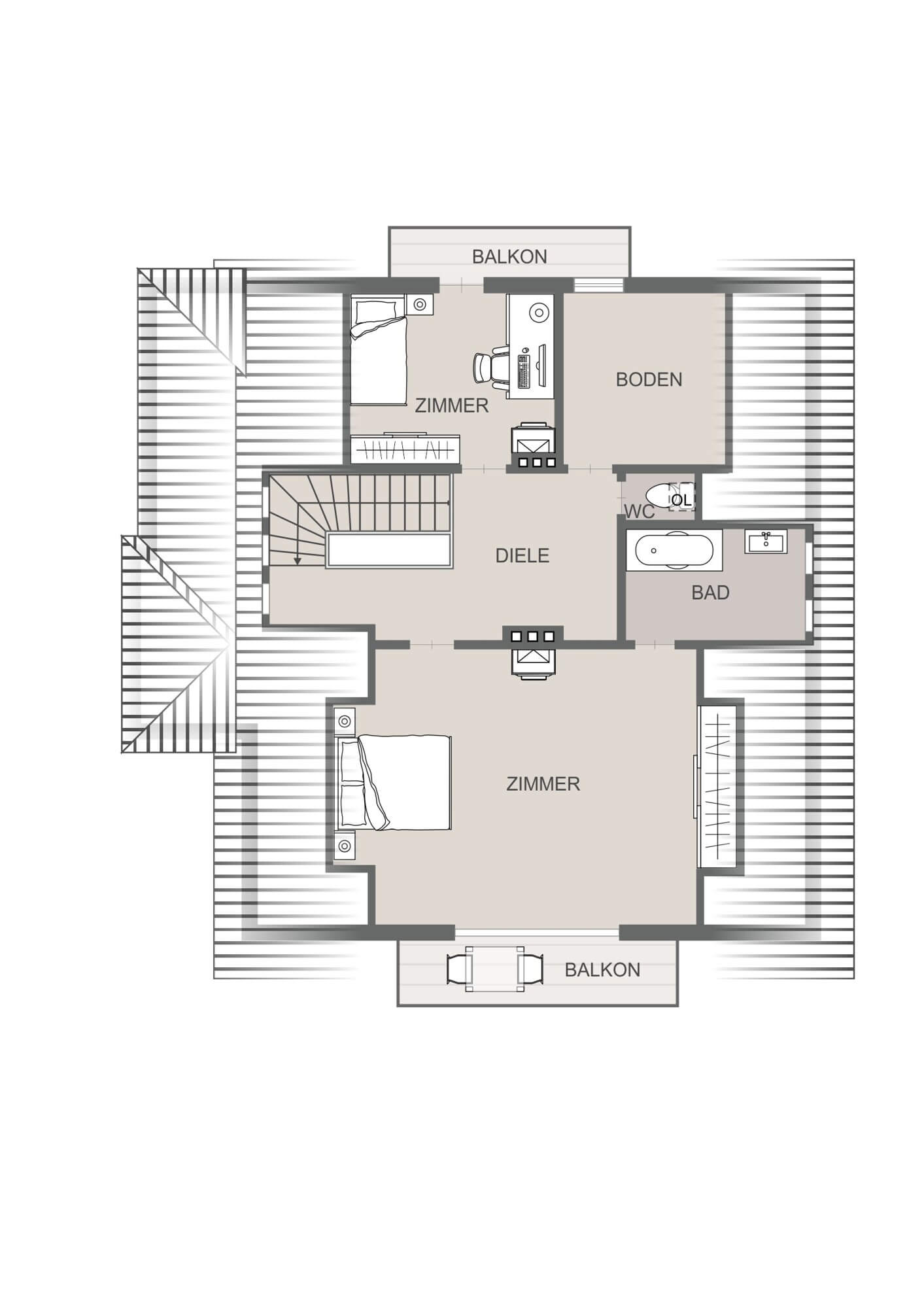
Living areas:
- Basement: approximately 89 sq m
- Ground floor with access to the garden: approximately 119 sq m
- Upper floor: approximately 68 sq m
Option 2 – Demolition and new construction
Building classification: W I 7.5 m OGK
Location
Salmannsdorf is one of the most beautiful residential areas in Döbling. The American International School is located in the immediate vicinity. The property enjoys an excellent green setting, close to the Vienna Woods.
Public transport connections are provided by bus line 35A, with the terminal stop “An der Zwerchwiese” within walking distance.
All shopping facilities can be found on Krottenbachstraße (including Spar, Merkur, and the market at Sonnbergplatz), while a Billa supermarket in Neustift am Walde caters to everyday needs.
Schools, kindergartens, and medical services are available nearby.
Numerous traditional Heurigen wine taverns are within walking distance.
Details & Downloads
- Property-ID IVW-25-12872
- Plot area 10,284 sq m
- Living space 187 sq m
- Bedrooms 5
- Bathrooms 2
- Toilets 3
- Balconies 2 (total 0 sq m)
- Terrace 1 (0 sq m)
- Car space 1
- Price car space Included
- Ready-to-use immediately
- Price € 2,340,000
- Commission 3% of the purchase price plus 20% VAT.
- EPC in progress
- fGEE in progress
- Year of construction 1947
- Heating Floor heating
- Lighting Gas
- Cellar 89 sq m
Additional
Vienna, 19. Döbling
€ 2,340,000
Price
-
Sonja Kaspar s.kaspar@otto.at +43 664 854 85 15
Property-ID IVW-25-12872
for your Request!
will get in touch with you shortly.
Thank you for your request! We will get back to you shortly. We look forward to assisting you in finding your ideal property. In the meantime, explore more attractive properties from our portfolio. Get inspired and find your favorites.
nearby
Vienna, 19. Döbling
Unique living in Döbling
- 129 sq m
- 3 Bedrooms
- Garden
- Terrace
- Balcony
- Available Q4 2023
€ 1,490,000
Vienna, 19. Döbling
Unique living in Döbling
- 129 sq m
- 3 Bedrooms
- Garden
- Terrace
- Balcony
- Available Q4 2023
€ 1,649,000
Vienna, 19. Döbling
Unique living in Döbling
- 129 sq m
- 3 Bedrooms
- Garden
- Terrace
- Balcony
- Available Q4 2023
€ 1,789,000
3400, Klosterneuburg / Weidlingbach
Spacious estate near Klosterneuburg
- 1,030 sq m
- 10 Bedrooms
- Garden
- Available by arrangement
€ 4,900,000
Vienna, 19. Döbling
Designer villa with an incomparable view over Vienna
- 362 sq m
- 3 Bedrooms
- Terrace
- Balcony
- Available on request
€ 8,750,000
Vienna, 18. Währing
Villa Schapira
- 622 sq m
- Garden
- Terrace
- Available immediately
Price on request
Vienna, 16. Ottakring
Wilhelminenberg – A Project with Potential
- 253 sq m
- Garden
- Terrace
- Available immediately
€ 1,590,000
1160, Wien,
Family villa on Wilhelminenberg
- 253 sq m
- Garden
- Terrace
- Available immediately
€ 1,590,000
Vienna, 19. Döbling
Prime location in Grinzing – Maisonette with terrace and garden
- 155 sq m
- 4 Bedrooms
- Terrace
- Available immediately
€ 1,550,000
Vienna, 18. Währing
Cottage villa with a spacious garden.
- 412 sq m
- 11 Bedrooms
- Garden
- Terrace
- Available on request
Price on request
Vienna, 14. Penzing
Modern villa with garden and pool
- 182 sq m
- 3 Bedrooms
- Garden
- Terrace
- Balcony
- Available By arrangement
€ 2,350,000
Vienna, 14. Penzing
Family villa in excellent condition
- 345 sq m
- Terrace
- Balcony
- Available on request
€ 2,289,000
1230, Wien, Liesing
Single-family home in a prime Mauer location
- 280 sq m
- Garden
- Terrace
- Available immediately
€ 1,950,000
1230, Wien, Liesing
Villa with great potential
- 295 sq m
- Terrace
- Available sofort
€ 1,300,000
2371, Hinterbrühl
Villa gem in quiet location of Hinterbrühl
- 400 sq m
- Terrace
- Available by arrangment
€ 5,950,000
2340, Mödling
One-of-a-kind estate in a private park
- 980 sq m
- Garden
- Terrace
- Available By arrangement
€ 6,490,000
2500, Baden
Prestigious "Villa Fröhlich" with planning permission for extensive modernization
- 700 sq m
- Available by arrangement
€ 1,600,000
nearby
Vienna, 19. Döbling
Unique living in Döbling
- 129 sq m
- 3 Bedrooms
- Garden
- Terrace
- Balcony
- Available Q4 2023
€ 1,490,000
Vienna, 19. Döbling
Unique living in Döbling
- 129 sq m
- 3 Bedrooms
- Garden
- Terrace
- Balcony
- Available Q4 2023
€ 1,649,000
Vienna, 19. Döbling
Unique living in Döbling
- 129 sq m
- 3 Bedrooms
- Garden
- Terrace
- Balcony
- Available Q4 2023
€ 1,789,000
3400, Klosterneuburg / Weidlingbach
Spacious estate near Klosterneuburg
- 1,030 sq m
- 10 Bedrooms
- Garden
- Available by arrangement
€ 4,900,000
Vienna, 19. Döbling
Designer villa with an incomparable view over Vienna
- 362 sq m
- 3 Bedrooms
- Terrace
- Balcony
- Available on request
€ 8,750,000
Vienna, 18. Währing
Villa Schapira
- 622 sq m
- Garden
- Terrace
- Available immediately
Price on request
Vienna, 16. Ottakring
Wilhelminenberg – A Project with Potential
- 253 sq m
- Garden
- Terrace
- Available immediately
€ 1,590,000
1160, Wien,
Family villa on Wilhelminenberg
- 253 sq m
- Garden
- Terrace
- Available immediately
€ 1,590,000
Vienna, 19. Döbling
Prime location in Grinzing – Maisonette with terrace and garden
- 155 sq m
- 4 Bedrooms
- Terrace
- Available immediately
€ 1,550,000
Vienna, 18. Währing
Cottage villa with a spacious garden.
- 412 sq m
- 11 Bedrooms
- Garden
- Terrace
- Available on request
Price on request
Vienna, 14. Penzing
Modern villa with garden and pool
- 182 sq m
- 3 Bedrooms
- Garden
- Terrace
- Balcony
- Available By arrangement
€ 2,350,000
Vienna, 14. Penzing
Family villa in excellent condition
- 345 sq m
- Terrace
- Balcony
- Available on request
€ 2,289,000
1230, Wien, Liesing
Single-family home in a prime Mauer location
- 280 sq m
- Garden
- Terrace
- Available immediately
€ 1,950,000
1230, Wien, Liesing
Villa with great potential
- 295 sq m
- Terrace
- Available sofort
€ 1,300,000
2371, Hinterbrühl
Villa gem in quiet location of Hinterbrühl
- 400 sq m
- Terrace
- Available by arrangment
€ 5,950,000
2340, Mödling
One-of-a-kind estate in a private park
- 980 sq m
- Garden
- Terrace
- Available By arrangement
€ 6,490,000
2500, Baden
Prestigious "Villa Fröhlich" with planning permission for extensive modernization
- 700 sq m
- Available by arrangement
€ 1,600,000