- approx. 260 sq m Gross leasable area
- By arrangement Availability
- 6.2 m Clear height
Vienna, 21. Floridsdorf
Newly built warehouses with office space
-
Ralph Leitner r.leitner@otto.at +43 664 885 33 203
Facilities
- Floor load capacity: 5,000 kg/m², including a forklift truck with a 2,000 kg lifting capacity.
- Concrete floor with hard grain reinforcement
- Skylights/window areas
- Effective side height: BUK 6.20 m
- One sectional door per hall (each 4.00 x 4.25 m).
- Access suitable for articulated lorries
Location
The property is located in the industrial area not far from Siemensstrasse and is well connected to the public transport network.
Public transport connections:
- Bus: 29B, 31A
- Underground: U1 Leopoldau station
- Train: S1, S2, S3, S7, REX1, REX2, REX7, CJX9 Siemensstraße station
Central station: 12.9 km (by car)
Vienna-Schwechat Airport: 23.2 km (by car)
Details & Downloads
- Property-ID IVG-I-11568/H2
- GLA approx. 260 sq m
- Warehouse approx. 260 sq m
- Car spaces 3
- Price car space € 35.00 per month
- Ready-to-use By arrangement
- Net rent price per month Price on request
- Deposit 3-6 BMM (bonitätsabhängig)
- Commission 3 BMM
- EPC in progress
- fGEE in progress
- Year of construction 2025
-
All floor plans ZIP Archive
-
Floor plan Ansicht Ost PNG · 71 KB
-
Floor plan Hallenplan Halle 2 markiert PNG · 521 KB
-
Floor plan Hallenplan PNG · 561 KB
-
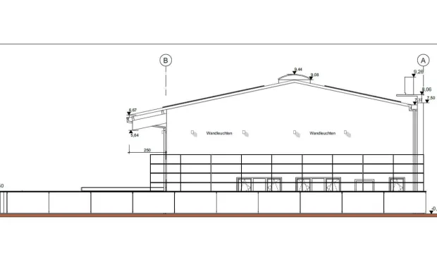
Floor plan Nordansicht JPG · 37 KB
-
Floor plan Südansicht PNG · 46 KB
-
Floor plan Ostansicht JPG · 34 KB
-
Floor plan Westansicht JPG · 25 KB
-
Floor plan Grundriss Querschnitt PNG · 97 KB
-
Floor plan Grundrissplan JPG · 33 KB
Vienna, 21. Floridsdorf
Price on request
-
Ralph Leitner r.leitner@otto.at +43 664 885 33 203
Property-ID IVG-I-11568/H2
for your Request!
will get in touch with you shortly.
Thank you for your request! We will get back to you shortly. We look forward to assisting you in finding your ideal property. In the meantime, explore more attractive properties from our portfolio. Get inspired and find your favorites.
nearby

Vienna, 21. Floridsdorf
Newly built warehouses in the north of Vienna
- approx. 260 sq m gross leasable area
- Available By arrangement
€ 9.50 /sq m/month net

Vienna, 21. Floridsdorf
Newly built warehouses with office space
- approx. 520 sq m gross leasable area
- Available By arrangement
Price on request

Vienna, 21. Floridsdorf
Hall properties on the U1 line / Vienna North
- approx. 4,445 sq m gross leasable area
- Available nach Vereinbarung
€ 31,116.12 /month net

Vienna, 21. Floridsdorf
Hall properties on the U1 line / Vienna North
- approx. 5,022 sq m gross leasable area
- Available nach Vereinbarung
€ 35,153.72 /month net

Vienna, 22. Donaustadt
Attractive commercial property in 1220 Vienna
- approx. 7,496 sq m gross leasable area
- Available Q4 2025
Price on request

Vienna, 22. Donaustadt
Business Park Vienna North
- approx. 1,490 sq m gross leasable area
- Available by arrangement
Price on request

Vienna, 22. Donaustadt
Business Park Vienna North
- approx. 6,290 sq m gross leasable area
- Available by arrangement
Price on request

Vienna, 22. Donaustadt
Business Park Vienna North
- approx. 2,430 sq m gross leasable area
- Available by arrangement
Price on request

Vienna, 22. Donaustadt
Business Park Vienna North
- approx. 1,875 sq m gross leasable area
- Available by arrangement
Price on request

Vienna, 22. Donaustadt
Business Park Vienna North
- approx. 54,029 sq m gross leasable area
- Available by arrangement
Price on request

Vienna, 22. Donaustadt
Business Park Vienna North
- approx. 1,955 sq m gross leasable area
- Available by arrangement
Price on request

Vienna, 22. Donaustadt
Business Park Vienna North
- approx. 3,540 sq m gross leasable area
- Available by arrangement
Price on request

Vienna, 22. Donaustadt
Business Park Vienna North
- approx. 6,781 sq m gross leasable area
- Available by arrangement
Price on request

Vienna, 21. Floridsdorf
Ideally located business property with warehouse and office space
- approx. 973 sq m gross leasable area
- Available Nach Vereinbarung
Price on request

2201, Hagenbrunn
Warehouse & open space near G3 / Hagenbrunn
- approx. 3,037 sq m gross leasable area
- Available nach Vereinbarung
Price on request

2203, Großebersdorf / Eibesbrunn
Business Center Vienna - North
- approx. 1,571 sq m gross leasable area
- Available Q2 2024
€ 14,262.15 /month net

2203, Großebersdorf / Eibesbrunn
Business Center Vienna - North
- approx. 1,719 sq m gross leasable area
- Available Q2 / 2024
€ 15,641.34 /month net

2203, Großebersdorf / Eibesbrunn
Business Center Vienna - North
- approx. 1,745 sq m gross leasable area
- Available Q2 / 2024
€ 15,814.39 /month net

2203, Großebersdorf / Eibesbrunn
Business Center Vienna - North
- approx. 1,720 sq m gross leasable area
- Available Q2 / 2024
€ 15,680.96 /month net

2203, Großebersdorf / Eibesbrunn
Business Center Vienna - North
- approx. 1,734 sq m gross leasable area
- Available Q1 / 2024
€ 15,906.20 /month net
nearby

Vienna, 21. Floridsdorf
Newly built warehouses in the north of Vienna
- approx. 260 sq m gross leasable area
- Available By arrangement
€ 9.50 /sq m/month net

Vienna, 21. Floridsdorf
Newly built warehouses with office space
- approx. 520 sq m gross leasable area
- Available By arrangement
Price on request

Vienna, 21. Floridsdorf
Hall properties on the U1 line / Vienna North
- approx. 4,445 sq m gross leasable area
- Available nach Vereinbarung
€ 31,116.12 /month net

Vienna, 21. Floridsdorf
Hall properties on the U1 line / Vienna North
- approx. 5,022 sq m gross leasable area
- Available nach Vereinbarung
€ 35,153.72 /month net

Vienna, 22. Donaustadt
Attractive commercial property in 1220 Vienna
- approx. 7,496 sq m gross leasable area
- Available Q4 2025
Price on request

Vienna, 22. Donaustadt
Business Park Vienna North
- approx. 1,490 sq m gross leasable area
- Available by arrangement
Price on request

Vienna, 22. Donaustadt
Business Park Vienna North
- approx. 6,290 sq m gross leasable area
- Available by arrangement
Price on request

Vienna, 22. Donaustadt
Business Park Vienna North
- approx. 2,430 sq m gross leasable area
- Available by arrangement
Price on request

Vienna, 22. Donaustadt
Business Park Vienna North
- approx. 1,875 sq m gross leasable area
- Available by arrangement
Price on request

Vienna, 22. Donaustadt
Business Park Vienna North
- approx. 54,029 sq m gross leasable area
- Available by arrangement
Price on request

Vienna, 22. Donaustadt
Business Park Vienna North
- approx. 1,955 sq m gross leasable area
- Available by arrangement
Price on request

Vienna, 22. Donaustadt
Business Park Vienna North
- approx. 3,540 sq m gross leasable area
- Available by arrangement
Price on request

Vienna, 22. Donaustadt
Business Park Vienna North
- approx. 6,781 sq m gross leasable area
- Available by arrangement
Price on request

Vienna, 21. Floridsdorf
Ideally located business property with warehouse and office space
- approx. 973 sq m gross leasable area
- Available Nach Vereinbarung
Price on request

2201, Hagenbrunn
Warehouse & open space near G3 / Hagenbrunn
- approx. 3,037 sq m gross leasable area
- Available nach Vereinbarung
Price on request

2203, Großebersdorf / Eibesbrunn
Business Center Vienna - North
- approx. 1,571 sq m gross leasable area
- Available Q2 2024
€ 14,262.15 /month net

2203, Großebersdorf / Eibesbrunn
Business Center Vienna - North
- approx. 1,719 sq m gross leasable area
- Available Q2 / 2024
€ 15,641.34 /month net

2203, Großebersdorf / Eibesbrunn
Business Center Vienna - North
- approx. 1,745 sq m gross leasable area
- Available Q2 / 2024
€ 15,814.39 /month net

2203, Großebersdorf / Eibesbrunn
Business Center Vienna - North
- approx. 1,720 sq m gross leasable area
- Available Q2 / 2024
€ 15,680.96 /month net

2203, Großebersdorf / Eibesbrunn
Business Center Vienna - North
- approx. 1,734 sq m gross leasable area
- Available Q1 / 2024
€ 15,906.20 /month net