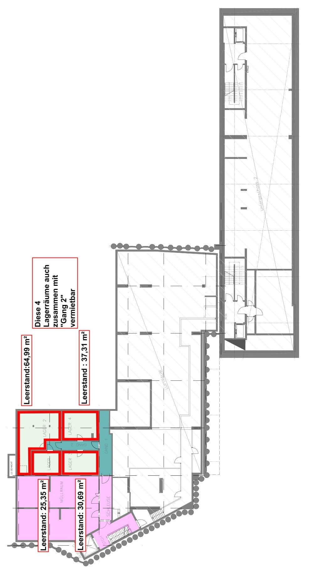
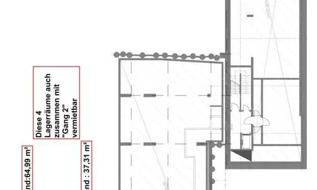
- approx. 276 sq m Gross leasable area
- Nach Vereinbarung Availability
Vienna, 3. Landstraße
Marxbox
-
Isabella Plessl i.plessl@otto.at +43 664 885 90 403
All Units on this Development
Facilities
- Flexible room configuration possible
- Fully equipped lab spaces (BSL 1 and 2) available
- Raised floor
- Concrete core activation
- Openable windows
- Kitchenette connections
- Separate sanitary facilities
- Elevator
- On-site underground parking garage
- Tenant-specific requests can still be partially accommodated
Location
The Robert-Hochner-Park, located directly in front of the building, offers open space for relaxing work breaks.
The restored slaughterhouse halls create a very special atmosphere and house a modern restaurant, which is also ideal for business lunches. Additionally, there are further dining options in the surrounding office buildings. The strategically perfect location ensures excellent transport connections to the city center and the airport.
Public transport connections:
- Subway: U3 Schlachthausgasse
- Tram: 18, 71
- Bus: 74A
- S-Bahn: S7 (Airport Express)
Private transport:
- A23, A4 motorway exit St. Marx
Details & Downloads
- Property-ID IVG-O-02216/04
- GLA approx. 276 sq m
- Ready-to-use Nach Vereinbarung
- Net rent price per month € 25.00 /sq m
- Net operating costs € 4.50 /sq m/month
- Deposit 3-6 BMM (bonitätsabhängig)
- Commission 3 BMM zzgl. 20 % USt.
- EPC 41.4 kWh/sq m
- Energy demand class B
- fGEE 1.06
Vienna, 3. Landstraße
€ 25.00 /sq m
Net rent/month excl. operating costs
-
Isabella Plessl i.plessl@otto.at +43 664 885 90 403
Property-ID IVG-O-02216/04
for your Request!
will get in touch with you shortly.
Thank you for your request! We will get back to you shortly. We look forward to assisting you in finding your ideal property. In the meantime, explore more attractive properties from our portfolio. Get inspired and find your favorites.
nearby
Vienna, 3. Landstraße
MQM - Offices in the Marx Media Quarter
- approx. 432 sq m gross leasable area
- Available Nach Vereinbarung
€ 13.00 /sq m/month net
Vienna, 3. Landstraße
MQM - Offices in the Marx Media Quarter
- approx. 3,623 sq m gross leasable area
- Available Nach Vereinbarung
€ 13.00 /sq m/month net
Vienna, 3. Landstraße
MQM - Offices in the Marx Media Quarter
- approx. 348 sq m gross leasable area
- Available Nach Vereinbarung
€ 13.00 /sq m/month net
Vienna, 3. Landstraße
MQM - Offices in the Marx Media Quarter
- approx. 1,295 sq m gross leasable area
- Available Nach Vereinbarung
€ 13.00 /sq m/month net
Vienna, 3. Landstraße
MQM - Offices in the Marx Media Quarter
- approx. 878 sq m gross leasable area
- Available Nach Vereinbarung
€ 13.00 /sq m/month net
Vienna, 3. Landstraße
MQM - Offices in the Marx Media Quarter
- approx. 417 sq m gross leasable area
- Available Nach Vereinbarung
€ 13.00 /sq m/month net
Vienna, 3. Landstraße
MQM - Offices in the Marx Media Quarter
- approx. 983 sq m gross leasable area
- Available Nach Vereinbarung
€ 13.00 /sq m/month net
Vienna, 3. Landstraße
Marxbox
- approx. 369 sq m gross leasable area
- Available Nach Vereinbarung
€ 25.00 /sq m/month net
Vienna, 3. Landstraße
Marxbox
- approx. 143 sq m gross leasable area
- Available Nach Vereinbarung
€ 16.50 /sq m/month net
Vienna, 3. Landstraße
Marxbox
- approx. 1,184 sq m gross leasable area
- Available Nach Vereinbarung
€ 16.50 /sq m/month net
Vienna, 3. Landstraße
Marxbox
- approx. 136 sq m gross leasable area
- Available Nach Vereinbarung
€ 16.50 /sq m/month net
Vienna, 3. Landstraße
Marxbox
- approx. 627 sq m gross leasable area
- Available Nach Vereinbarung
€ 16.50 /sq m/month net
Vienna, 3. Landstraße
Marxbox
- approx. 312 sq m gross leasable area
- Available Nach Vereinbarung
€ 16.50 /sq m/month net
Vienna, 3. Landstraße
Marxbox
- approx. 654 sq m gross leasable area
- Available nach Vereinbarung
€ 16.50 /sq m/month net
Vienna, 3. Landstraße
MQM - Offices in the Marx Media Quarter
- approx. 494 sq m gross leasable area
- Available Nach Vereinbarung
€ 13.00 /sq m/month net
Vienna, 3. Landstraße
MQM - Offices in the Marx Media Quarter
- approx. 2,641 sq m gross leasable area
- Available Nach Vereinbarung
€ 13.00 /sq m/month net
Vienna, 3. Landstraße
MQM - Offices in the Marx Media Quarter
- approx. 1,542 sq m gross leasable area
- Available Nach Vereinbarung
€ 13.00 /sq m/month net
Vienna, 3. Landstraße
MQM - Offices in the Marx Media Quarter
- approx. 1,099 sq m gross leasable area
- Available Nach Vereinbarung
€ 13.00 /sq m/month net
Vienna, 3. Landstraße
SOLARIS
- approx. 337 sq m gross leasable area
- Available Nach Vereinbarung
€ 13.50 /sq m/month net
Vienna, 3. Landstraße
SOLARIS
- approx. 540 sq m gross leasable area
- Available Nach Vereinbarung
€ 13.50 /sq m/month net
nearby
Vienna, 3. Landstraße
MQM - Offices in the Marx Media Quarter
- approx. 432 sq m gross leasable area
- Available Nach Vereinbarung
€ 13.00 /sq m/month net
Vienna, 3. Landstraße
MQM - Offices in the Marx Media Quarter
- approx. 3,623 sq m gross leasable area
- Available Nach Vereinbarung
€ 13.00 /sq m/month net
Vienna, 3. Landstraße
MQM - Offices in the Marx Media Quarter
- approx. 348 sq m gross leasable area
- Available Nach Vereinbarung
€ 13.00 /sq m/month net
Vienna, 3. Landstraße
MQM - Offices in the Marx Media Quarter
- approx. 1,295 sq m gross leasable area
- Available Nach Vereinbarung
€ 13.00 /sq m/month net
Vienna, 3. Landstraße
MQM - Offices in the Marx Media Quarter
- approx. 878 sq m gross leasable area
- Available Nach Vereinbarung
€ 13.00 /sq m/month net
Vienna, 3. Landstraße
MQM - Offices in the Marx Media Quarter
- approx. 417 sq m gross leasable area
- Available Nach Vereinbarung
€ 13.00 /sq m/month net
Vienna, 3. Landstraße
MQM - Offices in the Marx Media Quarter
- approx. 983 sq m gross leasable area
- Available Nach Vereinbarung
€ 13.00 /sq m/month net
Vienna, 3. Landstraße
Marxbox
- approx. 369 sq m gross leasable area
- Available Nach Vereinbarung
€ 25.00 /sq m/month net
Vienna, 3. Landstraße
Marxbox
- approx. 143 sq m gross leasable area
- Available Nach Vereinbarung
€ 16.50 /sq m/month net
Vienna, 3. Landstraße
Marxbox
- approx. 1,184 sq m gross leasable area
- Available Nach Vereinbarung
€ 16.50 /sq m/month net
Vienna, 3. Landstraße
Marxbox
- approx. 136 sq m gross leasable area
- Available Nach Vereinbarung
€ 16.50 /sq m/month net
Vienna, 3. Landstraße
Marxbox
- approx. 627 sq m gross leasable area
- Available Nach Vereinbarung
€ 16.50 /sq m/month net
Vienna, 3. Landstraße
Marxbox
- approx. 312 sq m gross leasable area
- Available Nach Vereinbarung
€ 16.50 /sq m/month net
Vienna, 3. Landstraße
Marxbox
- approx. 654 sq m gross leasable area
- Available nach Vereinbarung
€ 16.50 /sq m/month net
Vienna, 3. Landstraße
MQM - Offices in the Marx Media Quarter
- approx. 494 sq m gross leasable area
- Available Nach Vereinbarung
€ 13.00 /sq m/month net
Vienna, 3. Landstraße
MQM - Offices in the Marx Media Quarter
- approx. 2,641 sq m gross leasable area
- Available Nach Vereinbarung
€ 13.00 /sq m/month net
Vienna, 3. Landstraße
MQM - Offices in the Marx Media Quarter
- approx. 1,542 sq m gross leasable area
- Available Nach Vereinbarung
€ 13.00 /sq m/month net
Vienna, 3. Landstraße
MQM - Offices in the Marx Media Quarter
- approx. 1,099 sq m gross leasable area
- Available Nach Vereinbarung
€ 13.00 /sq m/month net
Vienna, 3. Landstraße
SOLARIS
- approx. 337 sq m gross leasable area
- Available Nach Vereinbarung
€ 13.50 /sq m/month net
Vienna, 3. Landstraße
SOLARIS
- approx. 540 sq m gross leasable area
- Available Nach Vereinbarung
€ 13.50 /sq m/month net