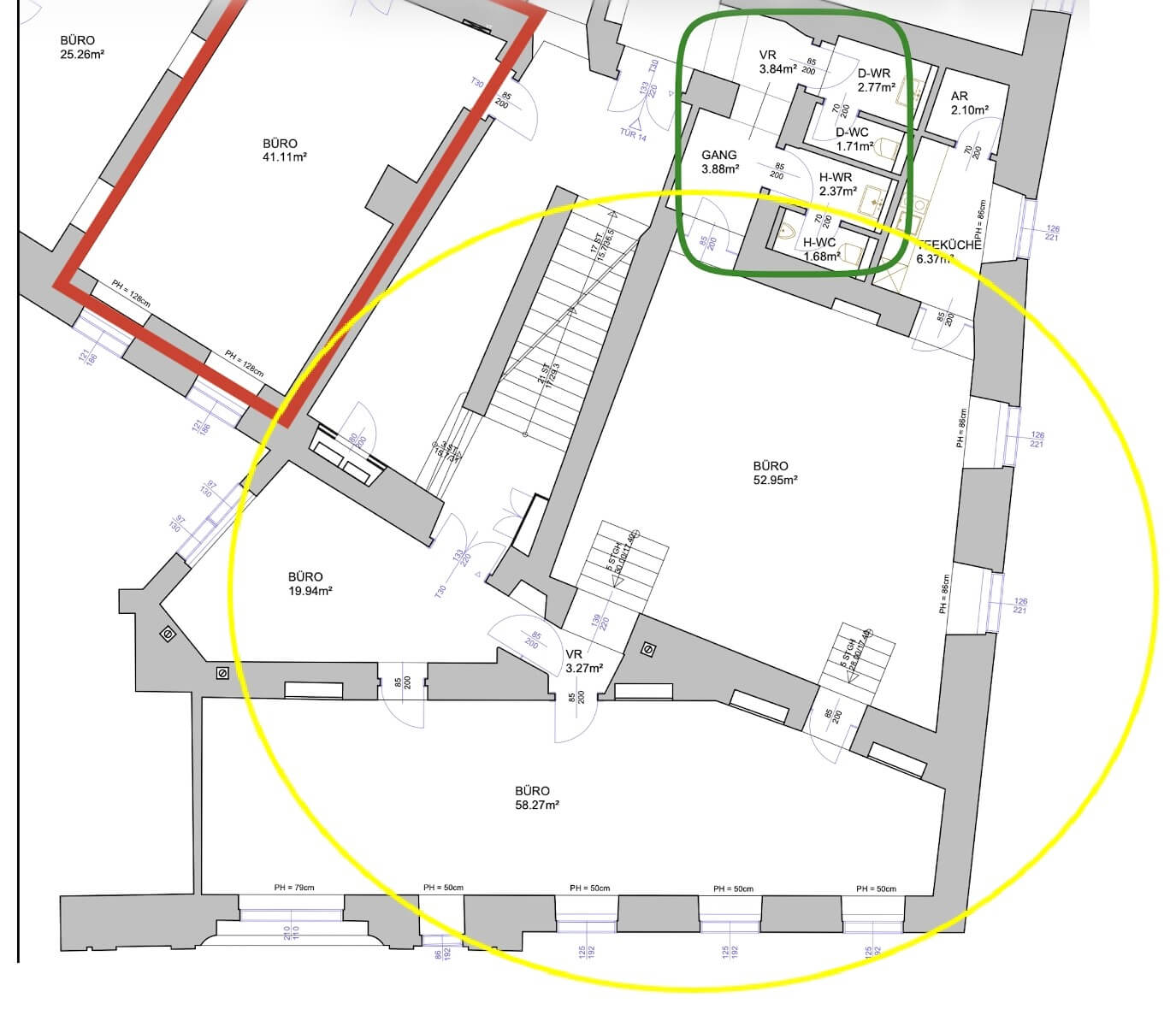
- approx. 140 sq m Gross leasable area
- 01.04.2026 Availability
Vienna, 1. Innere Stadt
Representative historic office unit with modern amenities for sublease
-
Magdalena Lemut, BSc (WU) m.lemut@otto.at +43 676 480 36 74
Facilities
- Kitchenette
- Floor outlets
- Well-maintained herringbone parquet flooring
- Separate sanitary facilities
- Large windows
- Air-conditioned
Location
Details & Downloads
- Property-ID IVG-O-13160/1
- GLA approx. 140 sq m
- Ready-to-use 01.04.2026
- Net rent price per month € 25.00 /sq m
- Net operating costs € 4.48 /sq m/month
- Deposit 3 BMM
- Commission 3 BMM zzgl. 20 % USt
- EPC in progress
- fGEE in progress
- Heating Gas heating
Vienna, 1. Innere Stadt
€ 25.00 /sq m
Net rent/month excl. operating costs
-
Magdalena Lemut, BSc (WU) m.lemut@otto.at +43 676 480 36 74
Property-ID IVG-O-13160/1
for your Request!
will get in touch with you shortly.
Thank you for your request! We will get back to you shortly. We look forward to assisting you in finding your ideal property. In the meantime, explore more attractive properties from our portfolio. Get inspired and find your favorites.
nearby
Vienna, 1. Innere Stadt
Elegant Historic Office near Stephansplatz
- approx. 290 sq m gross leasable area
- Available By arrangement
€ 35.00 /sq m/month net
Vienna, 1. Innere Stadt
EXCLUSIVE OFFICE CENTER IN VIENNA
- approx. 10 sq m gross leasable area
- Available
Price on request
Vienna, 3. Landstraße
Modern office spaces at VIE
- approx. 1,624 sq m gross leasable area
- Available By arrangement
€ 16.90 /sq m/month net
Vienna, 4. Wieden
Ensemble Schwarzenbergplatz
- approx. 514 sq m gross leasable area
- Available By arrangement
€ 20.50 /sq m/month net
Vienna, 4. Wieden
Ensemble Schwarzenbergplatz
- approx. 525 sq m gross leasable area
- Available By arrangement
€ 19.90 /sq m/month net
Vienna, 4. Wieden
Ensemble Schwarzenbergplatz
- approx. 884 sq m gross leasable area
- Available By arrangement
€ 19,448.00 /month net
Vienna, 1. Innere Stadt
- approx. 650 sq m gross leasable area
- Available
€ 23.50 /sq m/month net
Vienna, 1. Innere Stadt
Office location: Palais Kaiserhaus
- approx. 824 sq m gross leasable area
- Available by arrangement
Price on request
Vienna, 1. Innere Stadt
Office location: Palais Kaiserhaus
- approx. 601 sq m gross leasable area
- Available by arrangement
€ 9.00 /sq m/month net
Vienna, 1. Innere Stadt
Office location: Palais Kaiserhaus
- approx. 309 sq m gross leasable area
- Available by arrangement
€ 9.71 /sq m/month net
Vienna, 1. Innere Stadt
Office location: Palais Kaiserhaus
- approx. 259 sq m gross leasable area
- Available by arrangement
€ 10.80 /sq m/month net
Vienna, 1. Innere Stadt
Office location: Palais Kaiserhaus
- approx. 342 sq m gross leasable area
- Available by arrangement
€ 11.98 /sq m/month net
Vienna, 1. Innere Stadt
- approx. 52 sq m gross leasable area
- Available
€ 20.00 /sq m/month net
Vienna, 1. Innere Stadt
Charming office in the heart of Vienna
- approx. 289 sq m gross leasable area
- Available Nach Vereinbarung
€ 5,202.00 /month net
Vienna, 1. Innere Stadt
Prestigious office space in a prime location
- approx. 277 sq m gross leasable area
- Available Nach Vereinbarung
€ 17.70 /sq m/month net
Vienna, 1. Innere Stadt
High-quality office on Fleischmarkt
- approx. 638 sq m gross leasable area
- Available nach Vereinbarung
€ 24.00 /sq m/month net
- New
Vienna, 1. Innere Stadt
Exclusive office at Palais Ferstel
- approx. 164 sq m gross leasable area
- Available Nach Vereinbarung
€ 20.00 /sq m/month net
Vienna, 1. Innere Stadt
- approx. 3,294 sq m gross leasable area
- Available
€ 79,000.00 /month net
Vienna, 1. Innere Stadt
Modern office in the historic Vienna Stock Exchange
- approx. 300 sq m gross leasable area
- Available By arrangement
€ 19.90 /sq m/month net
Vienna, 1. Innere Stadt
Modern office in the historic Vienna Stock Exchange
- approx. 124 sq m gross leasable area
- Available By arrangement
€ 19.90 /sq m/month net
nearby
Vienna, 1. Innere Stadt
Elegant Historic Office near Stephansplatz
- approx. 290 sq m gross leasable area
- Available By arrangement
€ 35.00 /sq m/month net
Vienna, 1. Innere Stadt
EXCLUSIVE OFFICE CENTER IN VIENNA
- approx. 10 sq m gross leasable area
- Available
Price on request
Vienna, 3. Landstraße
Modern office spaces at VIE
- approx. 1,624 sq m gross leasable area
- Available By arrangement
€ 16.90 /sq m/month net
Vienna, 4. Wieden
Ensemble Schwarzenbergplatz
- approx. 514 sq m gross leasable area
- Available By arrangement
€ 20.50 /sq m/month net
Vienna, 4. Wieden
Ensemble Schwarzenbergplatz
- approx. 525 sq m gross leasable area
- Available By arrangement
€ 19.90 /sq m/month net
Vienna, 4. Wieden
Ensemble Schwarzenbergplatz
- approx. 884 sq m gross leasable area
- Available By arrangement
€ 19,448.00 /month net
Vienna, 1. Innere Stadt
- approx. 650 sq m gross leasable area
- Available
€ 23.50 /sq m/month net
Vienna, 1. Innere Stadt
Office location: Palais Kaiserhaus
- approx. 824 sq m gross leasable area
- Available by arrangement
Price on request
Vienna, 1. Innere Stadt
Office location: Palais Kaiserhaus
- approx. 601 sq m gross leasable area
- Available by arrangement
€ 9.00 /sq m/month net
Vienna, 1. Innere Stadt
Office location: Palais Kaiserhaus
- approx. 309 sq m gross leasable area
- Available by arrangement
€ 9.71 /sq m/month net
Vienna, 1. Innere Stadt
Office location: Palais Kaiserhaus
- approx. 259 sq m gross leasable area
- Available by arrangement
€ 10.80 /sq m/month net
Vienna, 1. Innere Stadt
Office location: Palais Kaiserhaus
- approx. 342 sq m gross leasable area
- Available by arrangement
€ 11.98 /sq m/month net
Vienna, 1. Innere Stadt
- approx. 52 sq m gross leasable area
- Available
€ 20.00 /sq m/month net
Vienna, 1. Innere Stadt
Charming office in the heart of Vienna
- approx. 289 sq m gross leasable area
- Available Nach Vereinbarung
€ 5,202.00 /month net
Vienna, 1. Innere Stadt
Prestigious office space in a prime location
- approx. 277 sq m gross leasable area
- Available Nach Vereinbarung
€ 17.70 /sq m/month net
Vienna, 1. Innere Stadt
High-quality office on Fleischmarkt
- approx. 638 sq m gross leasable area
- Available nach Vereinbarung
€ 24.00 /sq m/month net
- New
Vienna, 1. Innere Stadt
Exclusive office at Palais Ferstel
- approx. 164 sq m gross leasable area
- Available Nach Vereinbarung
€ 20.00 /sq m/month net
Vienna, 1. Innere Stadt
- approx. 3,294 sq m gross leasable area
- Available
€ 79,000.00 /month net
Vienna, 1. Innere Stadt
Modern office in the historic Vienna Stock Exchange
- approx. 300 sq m gross leasable area
- Available By arrangement
€ 19.90 /sq m/month net
Vienna, 1. Innere Stadt
Modern office in the historic Vienna Stock Exchange
- approx. 124 sq m gross leasable area
- Available By arrangement
€ 19.90 /sq m/month net