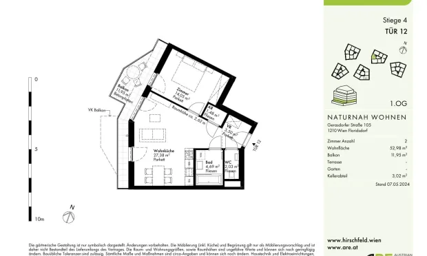
- 52 sq m Living space
- 1 Bedrooms
- 12 sq m Balcony
- Spring 2025 Availability
- 1 Bath rooms
Vienna, 21. Floridsdorf
Hirschfeld - First occupancy with outdoor spaces - sustainable living on the outskirts of the city!
-
Frau Sonja Kaspar & Frau Elisabeth Papsch home@otto.at +43 1 512 77 77 808
All Units on this Development

Facilities
- Windows: PVC with triple insulating glazing
- All windows and patio doors: Equipped with external blinds
- Flooring in bathrooms/storage rooms: Unglazed fine stoneware tiles
- Flooring in living areas: Oak parquet
- Each apartment comes with a designated storage room.
Amenities of the Complex:
Play Areas: Toddler playground and youth/children's playground
Outdoor Facilities: Secured bike storage boxes, indoor bike racks, and a bike repair station
Parking: Option to purchase a garage parking space, which can be equipped with an EV charging station
Additional Services: Package boxes available for residents
Sustainable Living Features
Heat Pumps: These systems utilize ambient heat for heating and cooling the buildings.
Geothermal Energy: Uses ground probes and wells to harness stored thermal energy from the earth.
Photovoltaic Systems: Solar panels generate electricity from sunlight, contributing to the energy supply of the community.
Heating and Cooling: Underfloor heating system
Additional Characteristics
The neighborhood features car-free areas, which help reduce noise and air pollution while enhancing pedestrian safety. EV charging stations are available in the underground garage, promoting the use of environmentally friendly transportation. The landscaped areas between the buildings provide residents with tranquil oases to enjoy sunny days.
Each apartment is assigned a storage room, the size of which can be found in the floor plans.
For detailed room layouts, please refer to the floor plans.
There are 65 garage parking spaces available for purchase at €28,000 each.
Location
The Hirschfeld is a quiet neighborhood on the outskirts of Vienna. With the bustling city at its back, it offers residents a natural retreat and relaxation. Those using Vienna's public transport can take bus line 32A from Kollarzgasse to the U- and S-Bahn hub at Leopoldau. From there, the U1 line heads towards the city center, while rapid transit lines S1, S2, and S7 provide quick connections in and out of the city. Alternatively, tram line 31 runs along Brünner Straße through Floridsdorf directly to Schottenring. Drivers benefit from the nearby A22 highway.
Details & Downloads
- Property-ID IVW-24-12042/118
- Living space 52 sq m
- Bedrooms 1
- Bathrooms 1
- Toilets 1
- Balcony 1 (12 sq m)
- Ready-to-use Spring 2025
- Price € 314,900
- Commission Free of commission
- EPC 31.0 kWh/sq m
- fGEE 0.75
- Year of construction 2024
- Heating Underfloor heating
- Lighting Solar, Geothermal heating, Heat pump
- Cellar Yes
Additional
Vienna, 21. Floridsdorf
€ 314,900
Price
-
Frau Sonja Kaspar & Frau Elisabeth Papsch home@otto.at +43 1 512 77 77 808
Property-ID IVW-24-12042/118
for your Request!
will get in touch with you shortly.
Thank you for your request! We will get back to you shortly. We look forward to assisting you in finding your ideal property. In the meantime, explore more attractive properties from our portfolio. Get inspired and find your favorites.
nearby

Vienna, 21. Floridsdorf
Hirschfeld - First occupancy with outdoor spaces - sustainable living on the outskirts of the city!
- 52 sq m
- 1 Bedroom
- Balcony
- Available Spring 2025
€ 334,500

Vienna, 21. Floridsdorf
Hirschfeld - First occupancy with outdoor spaces - sustainable living on the outskirts of the city!
- 74 sq m
- 2 Bedrooms
- Balcony
- Available Spring 2025
€ 464,500

Vienna, 21. Floridsdorf
Hirschfeld - First occupancy with outdoor spaces - sustainable living on the outskirts of the city!
- 46 sq m
- 1 Bedroom
- Balcony
- Available Spring 2025
€ 299,000

Vienna, 21. Floridsdorf
Hirschfeld - First occupancy with outdoor spaces - sustainable living on the outskirts of the city!
- 45 sq m
- 1 Bedroom
- Balcony
- Available Spring 2025
€ 289,500

Vienna, 21. Floridsdorf
Hirschfeld - First occupancy with outdoor spaces - sustainable living on the outskirts of the city!
- 52 sq m
- 1 Bedroom
- Balcony
- Available Spring 2025
€ 323,500

Vienna, 21. Floridsdorf
Hirschfeld - First occupancy with outdoor spaces - sustainable living on the outskirts of the city!
- 46 sq m
- 1 Bedroom
- Balcony
- Available Spring 2025
€ 294,000

Vienna, 21. Floridsdorf
Hirschfeld - First occupancy with outdoor spaces - sustainable living on the outskirts of the city!
- 96 sq m
- 4 Bedrooms
- Balcony
- Available Spring 2025
€ 594,000

Vienna, 21. Floridsdorf
Hirschfeld - First occupancy with outdoor spaces - sustainable living on the outskirts of the city!
- 45 sq m
- 1 Bedroom
- Balcony
- Available Spring 2025
€ 277,500

Vienna, 21. Floridsdorf
Hirschfeld - First occupancy with outdoor spaces - sustainable living on the outskirts of the city!
- 52 sq m
- 1 Bedroom
- Balcony
- Available Spring 2025
€ 319,900

Vienna, 21. Floridsdorf
Hirschfeld - First occupancy with outdoor spaces - sustainable living on the outskirts of the city!
- 74 sq m
- 2 Bedrooms
- Balcony
- Available Spring 2025
€ 454,900

Vienna, 21. Floridsdorf
Hirschfeld - First occupancy with outdoor spaces - sustainable living on the outskirts of the city!
- 96 sq m
- 4 Bedrooms
- Balcony
- Available Spring 2025
€ 591,000

Vienna, 21. Floridsdorf
Hirschfeld - First occupancy with outdoor spaces - sustainable living on the outskirts of the city!
- 45 sq m
- 1 Bedroom
- Balcony
- Available Spring 2025
€ 274,500

Vienna, 21. Floridsdorf
Hirschfeld - First occupancy with outdoor spaces - sustainable living on the outskirts of the city!
- 73 sq m
- 2 Bedrooms
- Balcony
- Available Spring 2025
€ 451,500

Vienna, 21. Floridsdorf
Hirschfeld - First occupancy with outdoor spaces - sustainable living on the outskirts of the city!
- 74 sq m
- 2 Bedrooms
- Terrace
- Balcony
- Available Spring 2025
€ 509,500

Vienna, 21. Floridsdorf
Hirschfeld - First occupancy with outdoor spaces - sustainable living on the outskirts of the city!
- 46 sq m
- 1 Bedroom
- Terrace
- Balcony
- Available Spring 2025
€ 309,900

Vienna, 21. Floridsdorf
Hirschfeld - First occupancy with outdoor spaces - sustainable living on the outskirts of the city!
- 45 sq m
- 1 Bedroom
- Balcony
- Available Spring 2025
€ 272,000

Vienna, 21. Floridsdorf
Hirschfeld - First occupancy with outdoor spaces - sustainable living on the outskirts of the city!
- 73 sq m
- 2 Bedrooms
- Balcony
- Available Spring 2025
€ 447,900

Vienna, 21. Floridsdorf
Hirschfeld - First occupancy with outdoor spaces - sustainable living on the outskirts of the city!
- 52 sq m
- 1 Bedroom
- Garden
- Terrace
- Available Spring 2025
€ 339,900

Vienna, 21. Floridsdorf
Hirschfeld - First occupancy with outdoor spaces - sustainable living on the outskirts of the city!
- 83 sq m
- 3 Bedrooms
- Garden
- Terrace
- Available Spring 2025
€ 523,500

Vienna, 21. Floridsdorf
Hirschfeld - First occupancy with outdoor spaces - sustainable living on the outskirts of the city!
- 73 sq m
- 2 Bedrooms
- Garden
- Terrace
- Available Spring 2025
€ 474,500
nearby

Vienna, 21. Floridsdorf
Hirschfeld - First occupancy with outdoor spaces - sustainable living on the outskirts of the city!
- 52 sq m
- 1 Bedroom
- Balcony
- Available Spring 2025
€ 334,500

Vienna, 21. Floridsdorf
Hirschfeld - First occupancy with outdoor spaces - sustainable living on the outskirts of the city!
- 74 sq m
- 2 Bedrooms
- Balcony
- Available Spring 2025
€ 464,500

Vienna, 21. Floridsdorf
Hirschfeld - First occupancy with outdoor spaces - sustainable living on the outskirts of the city!
- 46 sq m
- 1 Bedroom
- Balcony
- Available Spring 2025
€ 299,000

Vienna, 21. Floridsdorf
Hirschfeld - First occupancy with outdoor spaces - sustainable living on the outskirts of the city!
- 45 sq m
- 1 Bedroom
- Balcony
- Available Spring 2025
€ 289,500

Vienna, 21. Floridsdorf
Hirschfeld - First occupancy with outdoor spaces - sustainable living on the outskirts of the city!
- 52 sq m
- 1 Bedroom
- Balcony
- Available Spring 2025
€ 323,500

Vienna, 21. Floridsdorf
Hirschfeld - First occupancy with outdoor spaces - sustainable living on the outskirts of the city!
- 46 sq m
- 1 Bedroom
- Balcony
- Available Spring 2025
€ 294,000

Vienna, 21. Floridsdorf
Hirschfeld - First occupancy with outdoor spaces - sustainable living on the outskirts of the city!
- 96 sq m
- 4 Bedrooms
- Balcony
- Available Spring 2025
€ 594,000

Vienna, 21. Floridsdorf
Hirschfeld - First occupancy with outdoor spaces - sustainable living on the outskirts of the city!
- 45 sq m
- 1 Bedroom
- Balcony
- Available Spring 2025
€ 277,500

Vienna, 21. Floridsdorf
Hirschfeld - First occupancy with outdoor spaces - sustainable living on the outskirts of the city!
- 52 sq m
- 1 Bedroom
- Balcony
- Available Spring 2025
€ 319,900

Vienna, 21. Floridsdorf
Hirschfeld - First occupancy with outdoor spaces - sustainable living on the outskirts of the city!
- 74 sq m
- 2 Bedrooms
- Balcony
- Available Spring 2025
€ 454,900

Vienna, 21. Floridsdorf
Hirschfeld - First occupancy with outdoor spaces - sustainable living on the outskirts of the city!
- 96 sq m
- 4 Bedrooms
- Balcony
- Available Spring 2025
€ 591,000

Vienna, 21. Floridsdorf
Hirschfeld - First occupancy with outdoor spaces - sustainable living on the outskirts of the city!
- 45 sq m
- 1 Bedroom
- Balcony
- Available Spring 2025
€ 274,500

Vienna, 21. Floridsdorf
Hirschfeld - First occupancy with outdoor spaces - sustainable living on the outskirts of the city!
- 73 sq m
- 2 Bedrooms
- Balcony
- Available Spring 2025
€ 451,500

Vienna, 21. Floridsdorf
Hirschfeld - First occupancy with outdoor spaces - sustainable living on the outskirts of the city!
- 74 sq m
- 2 Bedrooms
- Terrace
- Balcony
- Available Spring 2025
€ 509,500

Vienna, 21. Floridsdorf
Hirschfeld - First occupancy with outdoor spaces - sustainable living on the outskirts of the city!
- 46 sq m
- 1 Bedroom
- Terrace
- Balcony
- Available Spring 2025
€ 309,900

Vienna, 21. Floridsdorf
Hirschfeld - First occupancy with outdoor spaces - sustainable living on the outskirts of the city!
- 45 sq m
- 1 Bedroom
- Balcony
- Available Spring 2025
€ 272,000

Vienna, 21. Floridsdorf
Hirschfeld - First occupancy with outdoor spaces - sustainable living on the outskirts of the city!
- 73 sq m
- 2 Bedrooms
- Balcony
- Available Spring 2025
€ 447,900

Vienna, 21. Floridsdorf
Hirschfeld - First occupancy with outdoor spaces - sustainable living on the outskirts of the city!
- 52 sq m
- 1 Bedroom
- Garden
- Terrace
- Available Spring 2025
€ 339,900

Vienna, 21. Floridsdorf
Hirschfeld - First occupancy with outdoor spaces - sustainable living on the outskirts of the city!
- 83 sq m
- 3 Bedrooms
- Garden
- Terrace
- Available Spring 2025
€ 523,500

Vienna, 21. Floridsdorf
Hirschfeld - First occupancy with outdoor spaces - sustainable living on the outskirts of the city!
- 73 sq m
- 2 Bedrooms
- Garden
- Terrace
- Available Spring 2025
€ 474,500