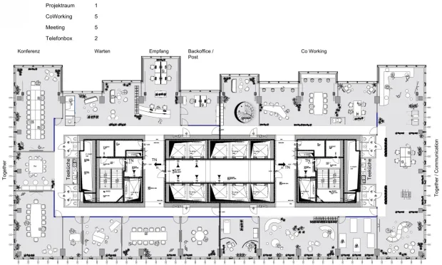
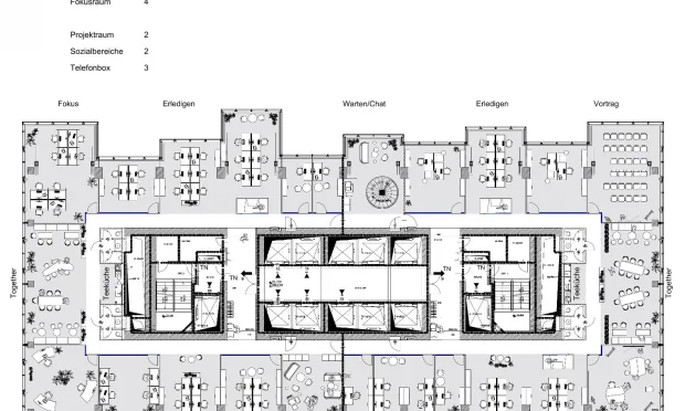
- approx. 3,510 sq m Gross leasable area
- By arrangement Availability
Vienna, 22. Donaustadt
DC TOWER
-
Helmut Wanjek h.wanjek@otto.at +43 664 854 91 93
Facilities
BUILDING
- Height: 220 meters
- 60 above-ground floors
- Approx. 1,200 sqm of rental space per floor
- Operable windows/ventilation panels
- Parapet glass for modern aesthetics and safety
- Clear ceiling height – offices: 3.00 m
- Clear ceiling height – corridors: 2.50 m
- Fit-out grid: 1.40 m
- Passenger elevators with destination control system
- Freight elevators
- Loading bay for deliveries
- “Green Building” certified LEED® & LEED Platinum
On-site amenities:
- Restaurant & Lounge 57
- Restaurant Ra’mien go
- John Harris Fitness Center
- Hotel Meliá Vienna
BUILDING TECHNOLOGY
- Cooling via concrete core activation for efficient temperature control
- Separate climate control for meeting rooms
- Conditioned fresh air supplied through a raised floor system
- High-pressure mist sprinkler system for fire safety
- Smoke detection system
- Heating via façade-integrated heating panels
Location
The DC Tower offers convenient parking options, including an underground garage within the building, as well as additional nearby garages and outdoor parking spaces.
Public transport connections are excellent, ensuring easy access for employees and visitors alike.
Within walking distance, you’ll find:
- UNO City – just 5 minutes away
- Donaupark – a beautifully landscaped park, 10–15 minutes away
- Danube Island – featuring a variety of restaurants and leisure activities
These surroundings provide an ideal balance of work and recreation, creating an attractive environment for both productivity and relaxation.
Public Transport Connections
- Underground: Line U1
- Bus Lines: 20B, 90A, 91A, 92A
Details & Downloads
- Property-ID IVG-O-04665/21-23
- GLA approx. 3,510 sq m
- Ready-to-use By arrangement
- Net rent price per month € 24.00 /sq m
- Net operating costs € 7.20 /sq m/month
- Deposit 3–6 gross monthly rents depending on creditworthiness, plus 20% VAT
- Commission 3 gross monthly rents plus 20% VAT
- EPC 27.4 kWh/sq m
- Energy demand class B
- fGEE 1.34
- Year of construction 2013
Vienna, 22. Donaustadt
€ 24.00 /sq m
Net rent/month excl. operating costs
-
Helmut Wanjek h.wanjek@otto.at +43 664 854 91 93
Property-ID IVG-O-04665/21-23
for your Request!
will get in touch with you shortly.
Thank you for your request! We will get back to you shortly. We look forward to assisting you in finding your ideal property. In the meantime, explore more attractive properties from our portfolio. Get inspired and find your favorites.
nearby

Vienna, 22. Donaustadt
ARES TOWER
- approx. 247 sq m gross leasable area
- Available By arrangement
€ 14.50 /sq m/month net

Vienna, 22. Donaustadt
ARES TOWER
- approx. 246 sq m gross leasable area
- Available By arrangement
€ 14.50 /sq m/month net

Vienna, 22. Donaustadt
ARES TOWER
- approx. 447 sq m gross leasable area
- Available By arrangement
€ 14.50 /sq m/month net

Vienna, 22. Donaustadt
ARES TOWER
- approx. 244 sq m gross leasable area
- Available By arrangement
€ 13.90 /sq m/month net

Vienna, 22. Donaustadt
ARES TOWER
- approx. 694 sq m gross leasable area
- Available By arrangement
€ 15.50 /sq m/month net

Vienna, 22. Donaustadt
ARES TOWER
- approx. 694 sq m gross leasable area
- Available By arrangement
€ 15.50 /sq m/month net

Vienna, 22. Donaustadt
ARES TOWER
- approx. 634 sq m gross leasable area
- Available By arrangement
€ 14.50 /sq m/month net

Vienna, 22. Donaustadt
ARES TOWER
- approx. 1,387 sq m gross leasable area
- Available By arrangement
€ 14.50 /sq m/month net

Vienna, 22. Donaustadt
TECH GATE - Flexible office space in the tower
- approx. 109 sq m gross leasable area
- Available
€ 22.50 /sq m/month net

Vienna, 22. Donaustadt
TECH GATE - Flexible office space in the tower
- approx. 276 sq m gross leasable area
- Available
€ 17.50 /sq m/month net

Vienna, 22. Donaustadt
TECH GATE - Flexible office space in the tower
- approx. 552 sq m gross leasable area
- Available nach Vereinbarung
€ 14.50 /sq m/month net

Vienna, 22. Donaustadt
TECH GATE - Flexible office space in the tower
- approx. 767 sq m gross leasable area
- Available nach Vereinbarung
€ 14.50 /sq m/month net

Vienna, 22. Donaustadt
TECH GATE - Flexible office space in the tower
- approx. 576 sq m gross leasable area
- Available nach Vereinbarung
€ 14.50 /sq m/month net

Vienna, 22. Donaustadt
TECH GATE - Flexible office space in the tower
- approx. 388 sq m gross leasable area
- Available
€ 17.50 /sq m/month net

Vienna, 22. Donaustadt
ANDROMEDA TOWER
- approx. 335 sq m gross leasable area
- Available nach Vereinbarung
€ 13.00 /sq m/month net

Vienna, 22. Donaustadt
ANDROMEDA TOWER
- approx. 363 sq m gross leasable area
- Available sofort
€ 11.00 /sq m/month net

Vienna, 22. Donaustadt
SATURN TOWER
- approx. 774 sq m gross leasable area
- Available Nach Vereinbarung
€ 17.00 /sq m/month net

Vienna, 22. Donaustadt
SATURN TOWER
- approx. 310 sq m gross leasable area
- Available Nach Vereinbarung
€ 17.00 /sq m/month net

Vienna, 22. Donaustadt
SATURN TOWER
- approx. 367 sq m gross leasable area
- Available Nach Vereinbarung
€ 17.00 /sq m/month net

Vienna, 22. Donaustadt
SATURN TOWER
- approx. 350 sq m gross leasable area
- Available Nach Vereinbarung
€ 16.50 /sq m/month net
nearby

Vienna, 22. Donaustadt
ARES TOWER
- approx. 247 sq m gross leasable area
- Available By arrangement
€ 14.50 /sq m/month net

Vienna, 22. Donaustadt
ARES TOWER
- approx. 246 sq m gross leasable area
- Available By arrangement
€ 14.50 /sq m/month net

Vienna, 22. Donaustadt
ARES TOWER
- approx. 447 sq m gross leasable area
- Available By arrangement
€ 14.50 /sq m/month net

Vienna, 22. Donaustadt
ARES TOWER
- approx. 244 sq m gross leasable area
- Available By arrangement
€ 13.90 /sq m/month net

Vienna, 22. Donaustadt
ARES TOWER
- approx. 694 sq m gross leasable area
- Available By arrangement
€ 15.50 /sq m/month net

Vienna, 22. Donaustadt
ARES TOWER
- approx. 694 sq m gross leasable area
- Available By arrangement
€ 15.50 /sq m/month net

Vienna, 22. Donaustadt
ARES TOWER
- approx. 634 sq m gross leasable area
- Available By arrangement
€ 14.50 /sq m/month net

Vienna, 22. Donaustadt
ARES TOWER
- approx. 1,387 sq m gross leasable area
- Available By arrangement
€ 14.50 /sq m/month net

Vienna, 22. Donaustadt
TECH GATE - Flexible office space in the tower
- approx. 109 sq m gross leasable area
- Available
€ 22.50 /sq m/month net

Vienna, 22. Donaustadt
TECH GATE - Flexible office space in the tower
- approx. 276 sq m gross leasable area
- Available
€ 17.50 /sq m/month net

Vienna, 22. Donaustadt
TECH GATE - Flexible office space in the tower
- approx. 552 sq m gross leasable area
- Available nach Vereinbarung
€ 14.50 /sq m/month net

Vienna, 22. Donaustadt
TECH GATE - Flexible office space in the tower
- approx. 767 sq m gross leasable area
- Available nach Vereinbarung
€ 14.50 /sq m/month net

Vienna, 22. Donaustadt
TECH GATE - Flexible office space in the tower
- approx. 576 sq m gross leasable area
- Available nach Vereinbarung
€ 14.50 /sq m/month net

Vienna, 22. Donaustadt
TECH GATE - Flexible office space in the tower
- approx. 388 sq m gross leasable area
- Available
€ 17.50 /sq m/month net

Vienna, 22. Donaustadt
ANDROMEDA TOWER
- approx. 335 sq m gross leasable area
- Available nach Vereinbarung
€ 13.00 /sq m/month net

Vienna, 22. Donaustadt
ANDROMEDA TOWER
- approx. 363 sq m gross leasable area
- Available sofort
€ 11.00 /sq m/month net

Vienna, 22. Donaustadt
SATURN TOWER
- approx. 774 sq m gross leasable area
- Available Nach Vereinbarung
€ 17.00 /sq m/month net

Vienna, 22. Donaustadt
SATURN TOWER
- approx. 310 sq m gross leasable area
- Available Nach Vereinbarung
€ 17.00 /sq m/month net

Vienna, 22. Donaustadt
SATURN TOWER
- approx. 367 sq m gross leasable area
- Available Nach Vereinbarung
€ 17.00 /sq m/month net

Vienna, 22. Donaustadt
SATURN TOWER
- approx. 350 sq m gross leasable area
- Available Nach Vereinbarung
€ 16.50 /sq m/month net