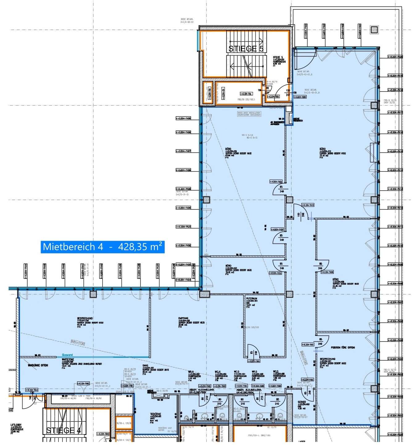
- approx. 428 sq m Gross leasable area
- Nach Vereinbarung Availability
Vienna, 12. Meidling
Modern office spaces in EURO PLAZA
-
Philipp Granabetter, BSc (WU) MA p.granabetter@otto.at +43 664 851 64 41
All Units on this Development
Facilities
- External sun shading
- Draft-free cooling via chilled beams
- Mechanical supply and exhaust ventilation in all rooms
- Double air exchange in office rooms
- Sixfold air exchange in meeting rooms
- Heating via underfloor convectors or radiators
- Raised floors, suspended ceilings, drywall partition walls
- Workplace lighting suitable for computer use
- IT and telecommunications connections
- Maximum flexibility in interior layout
- Single, combined, or open-plan offices possible
- Access control and video surveillance
- Freight elevators in each building and generous delivery areas
Location
EURO PLAZA is the “first choice” for office locations in the south of Vienna, situated within a well-established and rapidly expanding business hub.
The site at Wienerberg is located in Vienna’s 12th district and is one of the city’s most established office locations. EURO PLAZA sits directly on Wienerbergstraße, in close proximity to the U6 underground station Meidling.
Its central and well-connected location ensures excellent accessibility, both by car and public transport. By car, EURO PLAZA can be reached from north and south via the Süd-Ost-Tangente. Access from the west via Schönbrunner Straße and Ruckergasse is also convenient.
The location is complemented by extensive green spaces at Wienerberg, excellent public and private transport connections, and a wide range of leisure and sports facilities.
TRANSPORT CONNECTIONS
Public Transport:
- Underground: U6 station Bahnhof Meidling
- Bus: 7A, 15A (Am Euro Platz), 62A (Wienerbergbrücke)
- Tram: Line 62 (Wienerbergbrücke)
- S-Bahn, Badner Bahn & regional trains: Bahnhof Wien Meidling
By Car:
- From north and south via Süd-Ost-Tangente, exit Inzersdorf / Triester Straße
- From the west via Hadikgasse, Schönbrunner Straße, and Ruckergasse
- From the east via Kledering, Oberlaaer Straße, Laxenburger Straße, and Raxstraße
Parking: On-site underground garage
Details & Downloads
- Property-ID IVG-O-07565/BT2E.4.4
- GLA approx. 428 sq m
- Outside surface approx. 54 sq m
- Ready-to-use Nach Vereinbarung
- Net rent price per month € 15.90 /sq m
- Net operating costs € 5.60 /sq m/month
- Deposit 3-6 BMM (bonitätsabhängig)
- Commission 3 BMM zzgl. 20 % USt.
- EPC 42.0 kWh/sq m
- Energy demand class B
- fGEE in progress
- Year of construction 2004
- Heating Central heating
- Lighting District heating
Vienna, 12. Meidling
€ 15.90 /sq m
Net rent/month excl. operating costs
-
Philipp Granabetter, BSc (WU) MA p.granabetter@otto.at +43 664 851 64 41
Property-ID IVG-O-07565/BT2E.4.4
for your Request!
will get in touch with you shortly.
Thank you for your request! We will get back to you shortly. We look forward to assisting you in finding your ideal property. In the meantime, explore more attractive properties from our portfolio. Get inspired and find your favorites.
nearby
Vienna, 12. Meidling
Modern office spaces in EURO PLAZA
- approx. 580 sq m gross leasable area
- Available By arrangement
€ 15.60 /sq m/month net
Vienna, 12. Meidling
Modern office spaces in EURO PLAZA
- approx. 561 sq m gross leasable area
- Available By arrangement
€ 15.60 /sq m/month net
Vienna, 12. Meidling
Modern office spaces in EURO PLAZA
- approx. 1,141 sq m gross leasable area
- Available By arrangement
€ 15.60 /sq m/month net
Vienna, 12. Meidling
Modern working with a campus feeling
- approx. 283 sq m gross leasable area
- Available By arrangement
€ 15.90 /sq m/month net
Vienna, 12. Meidling
Modern working with a campus feeling
- approx. 896 sq m gross leasable area
- Available By arrangement
€ 15.90 /sq m/month net
Vienna, 12. Meidling
Modern working with a campus feeling
- approx. 571 sq m gross leasable area
- Available By arrangement
€ 15.90 /sq m/month net
Vienna, 12. Meidling
EURO PLAZA - G
- approx. 890 sq m gross leasable area
- Available By arrangement
€ 15.50 /sq m/month net
Vienna, 12. Meidling
EURO PLAZA - G
- approx. 589 sq m gross leasable area
- Available By arrangement
€ 15.50 /sq m/month net
Vienna, 12. Meidling
EURO PLAZA - G
- approx. 684 sq m gross leasable area
- Available By arrangement
€ 14.50 /sq m/month net
Vienna, 12. Meidling
EURO PLAZA - G
- approx. 1,479 sq m gross leasable area
- Available By arrangement
€ 15.50 /sq m/month net
Vienna, 12. Meidling
EURO PLAZA 1 - Ihr All-in-1 Büro
- approx. 533 sq m gross leasable area
- Available nach Vereinbarung
€ 15.90 /sq m/month net
Vienna, 12. Meidling
EURO PLAZA 1 - Ihr All-in-1 Büro
- approx. 917 sq m gross leasable area
- Available nach Vereinbarung
€ 15.70 /sq m/month net
Vienna, 12. Meidling
EURO PLAZA 1 - Ihr All-in-1 Büro
- approx. 1,239 sq m gross leasable area
- Available nach Vereinbarung
€ 15.70 /sq m/month net
Vienna, 12. Meidling
EURO PLAZA - G
- approx. 684 sq m gross leasable area
- Available By arrangement
€ 14.50 /sq m/month net
Vienna, 12. Meidling
Inno Center Retro
- approx. 308 sq m gross leasable area
- Available Nach Vereinbarung
€ 14.50 /sq m/month net
Vienna, 12. Meidling
Inno Center Retro
- approx. 224 sq m gross leasable area
- Available Nach Vereinbarung
€ 14.50 /sq m/month net
Vienna, 12. Meidling
Inno Center Retro
- approx. 617 sq m gross leasable area
- Available Nach Vereinbarung
€ 14.10 /sq m/month net
Vienna, 12. Meidling
Inno Center Retro
- approx. 4,489 sq m gross leasable area
- Available Nach Vereinbarung
€ 64,728.42 /month net
Vienna, 10. Favoriten
- approx. 200 sq m gross leasable area
- Available September 2019
€ 15.50 /sq m/month net
Vienna, 10. Favoriten
my hive Vienna Twin Towers
- approx. 265 sq m gross leasable area
- Available Nach Vereinbarung
€ 15.00 /sq m/month net
nearby
Vienna, 12. Meidling
Modern office spaces in EURO PLAZA
- approx. 580 sq m gross leasable area
- Available By arrangement
€ 15.60 /sq m/month net
Vienna, 12. Meidling
Modern office spaces in EURO PLAZA
- approx. 561 sq m gross leasable area
- Available By arrangement
€ 15.60 /sq m/month net
Vienna, 12. Meidling
Modern office spaces in EURO PLAZA
- approx. 1,141 sq m gross leasable area
- Available By arrangement
€ 15.60 /sq m/month net
Vienna, 12. Meidling
Modern working with a campus feeling
- approx. 283 sq m gross leasable area
- Available By arrangement
€ 15.90 /sq m/month net
Vienna, 12. Meidling
Modern working with a campus feeling
- approx. 896 sq m gross leasable area
- Available By arrangement
€ 15.90 /sq m/month net
Vienna, 12. Meidling
Modern working with a campus feeling
- approx. 571 sq m gross leasable area
- Available By arrangement
€ 15.90 /sq m/month net
Vienna, 12. Meidling
EURO PLAZA - G
- approx. 890 sq m gross leasable area
- Available By arrangement
€ 15.50 /sq m/month net
Vienna, 12. Meidling
EURO PLAZA - G
- approx. 589 sq m gross leasable area
- Available By arrangement
€ 15.50 /sq m/month net
Vienna, 12. Meidling
EURO PLAZA - G
- approx. 684 sq m gross leasable area
- Available By arrangement
€ 14.50 /sq m/month net
Vienna, 12. Meidling
EURO PLAZA - G
- approx. 1,479 sq m gross leasable area
- Available By arrangement
€ 15.50 /sq m/month net
Vienna, 12. Meidling
EURO PLAZA 1 - Ihr All-in-1 Büro
- approx. 533 sq m gross leasable area
- Available nach Vereinbarung
€ 15.90 /sq m/month net
Vienna, 12. Meidling
EURO PLAZA 1 - Ihr All-in-1 Büro
- approx. 917 sq m gross leasable area
- Available nach Vereinbarung
€ 15.70 /sq m/month net
Vienna, 12. Meidling
EURO PLAZA 1 - Ihr All-in-1 Büro
- approx. 1,239 sq m gross leasable area
- Available nach Vereinbarung
€ 15.70 /sq m/month net
Vienna, 12. Meidling
EURO PLAZA - G
- approx. 684 sq m gross leasable area
- Available By arrangement
€ 14.50 /sq m/month net
Vienna, 12. Meidling
Inno Center Retro
- approx. 308 sq m gross leasable area
- Available Nach Vereinbarung
€ 14.50 /sq m/month net
Vienna, 12. Meidling
Inno Center Retro
- approx. 224 sq m gross leasable area
- Available Nach Vereinbarung
€ 14.50 /sq m/month net
Vienna, 12. Meidling
Inno Center Retro
- approx. 617 sq m gross leasable area
- Available Nach Vereinbarung
€ 14.10 /sq m/month net
Vienna, 12. Meidling
Inno Center Retro
- approx. 4,489 sq m gross leasable area
- Available Nach Vereinbarung
€ 64,728.42 /month net
Vienna, 10. Favoriten
- approx. 200 sq m gross leasable area
- Available September 2019
€ 15.50 /sq m/month net
Vienna, 10. Favoriten
my hive Vienna Twin Towers
- approx. 265 sq m gross leasable area
- Available Nach Vereinbarung
€ 15.00 /sq m/month net