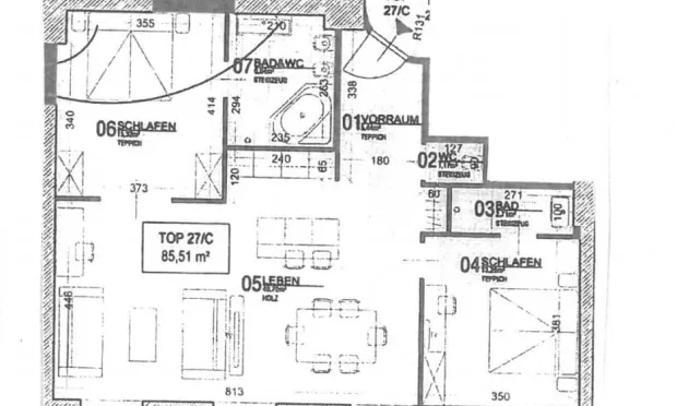
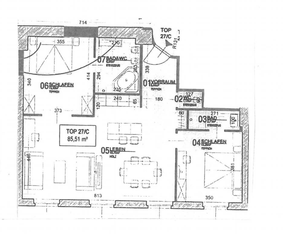
- 85 sq m Living space
- ab sofort Availability
- 1 Bath rooms
Vienna, 1. Innere Stadt
3-room apartment in a city-center palace
-
Mag. Theresa Rojko t.rojko@otto.at +43 676 616 41 44
Facilities
- High-quality parquet flooring
- Bathroom with WC
- Large windows
- Intercom system
- Air conditioning
- Fully equipped kitchen
- Elevator
- Partial ceiling spotlights
Location
The location in the heart of Vienna’s city center is particularly attractive due to its direct connection to Vienna’s most exclusive shopping street, Kohlmarkt. The inner city offers numerous shops, restaurants, and everyday amenities.
TRANSPORT CONNECTIONS
Public transport:
Subway: U3 station Herrengasse or Stephansplatz
Bus: Lines 1A, 2A – Herrengasse stop
Private transport:
1 minute walk to Kohlmarkt
Parking: “Freyung” garage
Details & Downloads
- Property-ID 315/09975/16
- Living space 85 sq m
- Bathrooms 1
- Toilets 1
- Ready-to-use ab sofort
- Total rent price (incl. VAT) € 2,498.88
- Rent (incl. VAT) € 2,200.00
- Operating costs (incl. VAT) € 298.88
- Deposit 6000
- Commission Free of commission
- EPC 150.0 kWh/sq m
- Energy demand class D
- fGEE in progress
- Year of construction 1819
- Heating Central heating, District heating
- Cellar No
Offer
Vienna, 1. Innere Stadt
€ 2,498.88
per month incl. operating costs - incl. 10% VAT
-
Mag. Theresa Rojko t.rojko@otto.at +43 676 616 41 44
Property-ID 315/09975/16
for your Request!
will get in touch with you shortly.
Thank you for your request! We will get back to you shortly. We look forward to assisting you in finding your ideal property. In the meantime, explore more attractive properties from our portfolio. Get inspired and find your favorites.
nearby
Vienna, 1. Innere Stadt
City Apartment at Kohlmarkt
- 108 sq m
- 1 Bedroom
- Terrace
- Loggia
- Available by arrangement
€ 1,690,000
Vienna, 1. Innere Stadt
Smart city center apartment on the Golden H
- 155 sq m
- 3 Bedrooms
- Terrace
- Loggia
- Available by arrangement
€ 2,800,000
Vienna, 1. Innere Stadt
DG apartment in the heart of Vienna city center
- 236 sq m
- 3 Bedrooms
- Available by arrangement
€ 3,990,000
Vienna, 1. Innere Stadt
Top floor apartment in 1A CItylage
- 247 sq m
- 3 Bedrooms
- Available by arrangement
€ 3,990,000
Vienna, 1. Innere Stadt
Modern city penthouse with roof terrace and views of St. Stephen's Cathedral
- 217 sq m
- 3 Bedrooms
- Terrace
- Available ready to move in
€ 5,490,000
Vienna, 1. Innere Stadt
stylishly renovated old building apartment - first occupancy
- 155 sq m
- Available immediately
€ 3,289.00 monthly
Vienna, 1. Innere Stadt
Above the rooftops of Vienna’s city center
- 204 sq m
- 3 Bedrooms
- Terrace
- Available immediately
Price on request
Vienna, 1. Innere Stadt
Modern condominium in stylish old building in prime city centre location
- 160 sq m
- 3 Bedrooms
- Terrace
- Available ready to move in
€ 3,990,000
Vienna, 1. Innere Stadt
Modern condominium in stylish old building in prime city centre location
- 281 sq m
- 4 Bedrooms
- Terrace
- Available ready to move in
€ 8,570,000
Vienna, 1. Innere Stadt
Apartment with roof top terrace in prime city location of Vienna
- 93 sq m
- 2 Bedrooms
- Terrace
- Balcony
- Available ready to move in
€ 2,300,000
Vienna, 1. Innere Stadt
Exquisite penthouse with terrace in prime city location
- 147 sq m
- 2 Bedrooms
- Terrace
- Available ready to move in
€ 4,799,000
Vienna, 1. Innere Stadt
Exquisite apartment in prime city location
- 71 sq m
- 1 Bedroom
- Available ready to move in
€ 1,399,000
Vienna, 1. Innere Stadt
Near the Vienna State Opera - Luxury penthouse
- 265 sq m
- 3 Bedrooms
- Available
€ 7,100,000
Vienna, 1. Innere Stadt
Luxury penthouse near the Vienna State Opera
- 367 sq m
- 4 Bedrooms
- Terrace
- Available by arrangement
€ 15,900,000
Vienna, 1. Innere Stadt
Luxury apartment in prime location near the opera
- 230 sq m
- 3 Bedrooms
- Available
€ 6,800,000
Vienna, 1. Innere Stadt
Luxurious Living with Hotel Service
- 337 sq m
- 3 Bedrooms
- Terrace
- Available ready to move in
Price on request
Vienna, 1. Innere Stadt
Historic building apartment in the historc centre
- 185 sq m
- 3 Bedrooms
- Available by arrangement
€ 2,395,000
Vienna, 1. Innere Stadt
High-quality period apartment with a unique view of the Palace of Justice
- 171 sq m
- 2 Bedrooms
- Available sofort
€ 4,920.00 monthly
Vienna, 1. Innere Stadt
Palace Residence at the Viennese City Park with hotel connection
- 204 sq m
- 2 Bedrooms
- Balcony
- Available by arrangement
€ 5,950,000
- New
Vienna, 4. Wieden
Charming period apartment in the heart of the 4th district, 7 rooms, 3 bathrooms.
- 254 sq m
- 4 Bedrooms
- Available sofort
€ 4,985.00 monthly
nearby
Vienna, 1. Innere Stadt
City Apartment at Kohlmarkt
- 108 sq m
- 1 Bedroom
- Terrace
- Loggia
- Available by arrangement
€ 1,690,000
Vienna, 1. Innere Stadt
Smart city center apartment on the Golden H
- 155 sq m
- 3 Bedrooms
- Terrace
- Loggia
- Available by arrangement
€ 2,800,000
Vienna, 1. Innere Stadt
DG apartment in the heart of Vienna city center
- 236 sq m
- 3 Bedrooms
- Available by arrangement
€ 3,990,000
Vienna, 1. Innere Stadt
Top floor apartment in 1A CItylage
- 247 sq m
- 3 Bedrooms
- Available by arrangement
€ 3,990,000
Vienna, 1. Innere Stadt
Modern city penthouse with roof terrace and views of St. Stephen's Cathedral
- 217 sq m
- 3 Bedrooms
- Terrace
- Available ready to move in
€ 5,490,000
Vienna, 1. Innere Stadt
stylishly renovated old building apartment - first occupancy
- 155 sq m
- Available immediately
€ 3,289.00 monthly
Vienna, 1. Innere Stadt
Above the rooftops of Vienna’s city center
- 204 sq m
- 3 Bedrooms
- Terrace
- Available immediately
Price on request
Vienna, 1. Innere Stadt
Modern condominium in stylish old building in prime city centre location
- 160 sq m
- 3 Bedrooms
- Terrace
- Available ready to move in
€ 3,990,000
Vienna, 1. Innere Stadt
Modern condominium in stylish old building in prime city centre location
- 281 sq m
- 4 Bedrooms
- Terrace
- Available ready to move in
€ 8,570,000
Vienna, 1. Innere Stadt
Apartment with roof top terrace in prime city location of Vienna
- 93 sq m
- 2 Bedrooms
- Terrace
- Balcony
- Available ready to move in
€ 2,300,000
Vienna, 1. Innere Stadt
Exquisite penthouse with terrace in prime city location
- 147 sq m
- 2 Bedrooms
- Terrace
- Available ready to move in
€ 4,799,000
Vienna, 1. Innere Stadt
Exquisite apartment in prime city location
- 71 sq m
- 1 Bedroom
- Available ready to move in
€ 1,399,000
Vienna, 1. Innere Stadt
Near the Vienna State Opera - Luxury penthouse
- 265 sq m
- 3 Bedrooms
- Available
€ 7,100,000
Vienna, 1. Innere Stadt
Luxury penthouse near the Vienna State Opera
- 367 sq m
- 4 Bedrooms
- Terrace
- Available by arrangement
€ 15,900,000
Vienna, 1. Innere Stadt
Luxury apartment in prime location near the opera
- 230 sq m
- 3 Bedrooms
- Available
€ 6,800,000
Vienna, 1. Innere Stadt
Luxurious Living with Hotel Service
- 337 sq m
- 3 Bedrooms
- Terrace
- Available ready to move in
Price on request
Vienna, 1. Innere Stadt
Historic building apartment in the historc centre
- 185 sq m
- 3 Bedrooms
- Available by arrangement
€ 2,395,000
Vienna, 1. Innere Stadt
High-quality period apartment with a unique view of the Palace of Justice
- 171 sq m
- 2 Bedrooms
- Available sofort
€ 4,920.00 monthly
Vienna, 1. Innere Stadt
Palace Residence at the Viennese City Park with hotel connection
- 204 sq m
- 2 Bedrooms
- Balcony
- Available by arrangement
€ 5,950,000
- New
Vienna, 4. Wieden
Charming period apartment in the heart of the 4th district, 7 rooms, 3 bathrooms.
- 254 sq m
- 4 Bedrooms
- Available sofort
€ 4,985.00 monthly